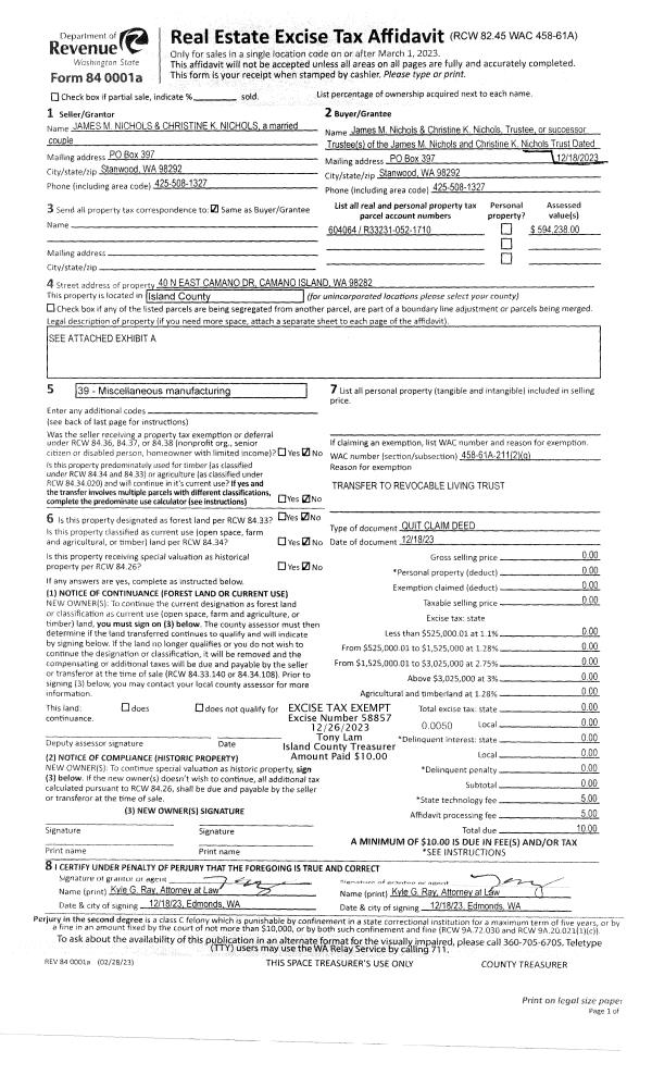
Property
Account |
| Property ID: | 673532 | Abbreviated Legal Description: | LOT 1 SP 68-90.33004.336-4360 V2 SP P351 AF#92008256 |
| Geographic ID: | R33004-342-4290 | Agent Code: | |
| Type: | Real | | |
| Tax Area: | 542 - APPRAISER-Stan/Cam Schl Dist, Special Dist, improved, greater than 1 acre | Land Use Code | 11 |
| Open Space: | N | DFL | N |
| Historic Property: | N | Remodel Property: | N |
| Multi-Family Redevelopment: | N | | |
| Township: | 30 | Section: | 04 |
| Range: | R3 |
Location |
| Address: | 2537 BRETLAND RD CAMANO ISLAND, WA 98282 | Mapsco: | |
| Neighborhood: | Cycle 5 | Map ID: | 854 |
| Neighborhood CD: | 5 |
Owner |
| Name: | BLUE WATER HOMES, LLC | Owner ID: | 304426 |
| Mailing Address: | 4822 240TH AVE SE SAMMAMISH, WA 98029 | % Ownership: | 100.0000000000% |
| | | Exemptions: | |
Taxes and Assessment Details
Values
| (+) Improvement Homesite Value: | + | $0 | |
| (+) Improvement Non-Homesite Value: | + | $768,789 | |
| (+) Land Homesite Value: | + | $0 | |
| (+) Land Non-Homesite Value: | + | $575,000 | |
| (+) Curr Use (HS): | + | $0 | $0 |
| (+) Curr Use (NHS): | + | $0 | $0 |
| | | -------------------------- | |
| (=) Market Value: | = | $1,343,789 | |
| (–) Productivity Loss: | – | $0 | |
| | | -------------------------- | |
| (=) Subtotal: | = | $1,343,789 | |
| (+) Senior Appraised Value: | + | $0 | |
| (+) Non-Senior Appraised Value: | + | $1,343,789 | |
| | | -------------------------- | |
| (=) Total Appraised Value: | = | $1,343,789 | |
| (–) Senior Exemption Loss: | – | $0 | |
| (–) Exemption Loss: | – | $0 | |
| | | -------------------------- | |
| (=) Taxable Value: | = | $1,343,789 | |
Taxing Jurisdiction
| Owner: | BLUE WATER HOMES, LLC | | |
| % Ownership: | 100.0000000000% | | |
| Total Value: | $1,343,789 | | |
| Tax Area: | 542 - APPRAISER-Stan/Cam Schl Dist, Special Dist, improved, greater than 1 acre |
| CF | Conservation Futures | 0.0316035091 | $1,343,789 | $1,343,789 | $42.47 | | |
| EMS1 | Fire & Rescue Dist #1 Camano GEN (EMS) | 0.3677864386 | $1,343,789 | $1,343,789 | $494.23 | | |
| FIRE1 | Fire & Rescue Dist #1 Camano GEN | 1.2502910536 | $1,343,789 | $1,343,789 | $1,680.13 | | |
| FIRE1BOND | Fire & Rescue Dist #1 Camano BOND | 0.1570001679 | $1,343,789 | $1,343,789 | $210.98 | | |
| CE | County Current Expense | 0.3708482477 | $1,343,789 | $1,343,789 | $498.34 | | |
| CR | County Roads | 0.4584763726 | $1,343,789 | $1,343,789 | $616.10 | | |
| LCIB | Library Sno-Isle BOND (Camano Island) | 0.0396325772 | $1,343,789 | $1,343,789 | $53.26 | | |
| LIB | Library Sno-Isle GEN | 0.3153421757 | $1,343,789 | $1,343,789 | $423.75 | | |
| SCH205_401 | School 205-401 Enrichment | 1.2698420524 | $1,343,789 | $1,343,789 | $1,706.40 | | |
| SCH205BOND | School 205-401 BOND | 0.9396497583 | $1,343,789 | $1,343,789 | $1,262.69 | | |
| ST | State School | 1.3035497053 | $1,343,789 | $1,343,789 | $1,751.70 | | |
| ST2 | State School Part 2 | 0.8169543533 | $1,343,789 | $1,343,789 | $1,097.81 | | |
| | Total Tax Rate: | 7.3209764117 | | | | | |
| | | | | Taxes w/Current Exemptions: | $9,837.86 | | |
| | | | | Taxes w/o Exemptions: | $9,837.86 | | |
Improvement / Building
| Improvement #1: | RESIDENTIAL | State Code: | Y | 2395.8 sqft | Value: | $768,789 |
| Bathrooms: | 2 | Bedrooms: | 3 | | Ceiling: | DRYWALL PAINTED | Cooling: | HEAT PUMP/CONV/V | | Exterior Wall/Cover: | WOOD SIDING | Floor Covering: | VINYL TILE/HARWD 20-80 | | Floor Structure: | WOOD W/SUBFLOOR | Foundation: | CONCRETE | | Interior Finish: | DRYWALL PAINT | Plumbing Fixture Cnt: | 9 | | Roof Slope: | 6" IN 12" | Roof Structure/Cover: | STEEL TERNE |
|
| | Type | Description | Class CD | Sub Class CD | Year Built | Area |
| | BAS | BASE/MAIN FLOOR | 4 | 0 | 1996 | 2395.8 |
| | DGR | DETACHED GARAGE | 4 | 0 | 1996 | 1600.0 |
| | OWP | OPEN WOOD PORCH W/STEPS | 4 | 0 | 1996 | 1015.9 |
| | ENP | ENCLOSED PORCH | 4 | 0 | 1996 | 240.0 |
| | OWC | OPEN WOOD PORCH W/STEPS/ROOF/C | 4 | 0 | 1996 | 525.9 |
| | DGR | DETACHED GARAGE | 4 | 0 | 1996 | 1344.0 |
Sketch
Property Image
Land
| 1 | HB | HIGH BLUFF | 1.2000 | 52272.00 | 100.00 | 0.00 | 1.00 | $575,000 | $0 |
Roll Value History
| 2026 | N/A | N/A | N/A | N/A | N/A |
| 2025 | $768,789 | $575,000 | $0 | $1,343,789 | $1,343,789 |
| 2024 | $778,251 | $575,000 | $0 | $1,353,251 | $1,353,251 |
| 2023 | $787,713 | $550,000 | $0 | $1,337,713 | $1,337,713 |
| 2022 | $683,529 | $475,000 | $0 | $1,158,529 | $1,158,529 |
| 2021 | $462,950 | $425,000 | $0 | $887,950 | $887,950 |
| 2020 | $452,898 | $315,000 | $0 | $767,898 | $767,898 |
| 2019 | $343,236 | $325,000 | $0 | $668,236 | $668,236 |
| 2018 | $344,291 | $250,000 | $0 | $594,291 | $594,291 |
| 2017 | $346,404 | $250,000 | $0 | $596,404 | $596,404 |
| 2016 | $334,568 | $250,000 | $0 | $584,568 | $584,568 |
| 2015 | $288,021 | $200,000 | $0 | $488,021 | $488,021 |
| 2014 | $288,021 | $200,000 | $0 | $488,021 | $488,021 |
| 2013 | $349,584 | $217,645 | $0 | $567,229 | $567,229 |
| 2012 | $353,819 | $217,645 | $0 | $571,464 | $571,464 |
| 2011 | $358,055 | $272,056 | $0 | $630,111 | $630,111 |
| 2010 | $374,452 | $272,056 | $0 | $646,508 | $646,508 |
| 2009 | $390,388 | $370,985 | $0 | $761,373 | $761,373 |
| 2008 | $409,346 | $209,730 | $0 | $619,076 | $619,076 |
| 2007 | $414,626 | $253,773 | $0 | $668,399 | $668,399 |
Deed and Sales History
| 1 | 05/23/2022 | WD | Warranty Deed | EDMONDS, DANIEL L | BLUE WATER HOMES, LLC | | | $1,629,950.00 | 53229 | 4545711 |
| 2 | 05/23/2008 | WD | Warranty Deed | THOMPSON, THOMAS E | EDMONDS, DANIEL L | | | $765,000.00 | 81461 | 4230225 |
| 3 | 07/11/2003 | WD | Warranty Deed | CROWDER, ROBERT C | THOMPSON, THOMAS E | | | $399,950.00 | 33058 | 4066940 |
| 4 | 05/01/1996 | WD | Warranty Deed | DAHL, LEROY F | CROWDER, ROBERT C | | | $110,000.00 | 61599 | 96008059 |
| 5 | 08/01/1993 | PRD | Personal Representatives Deed | DAHL, LEROY F | DAHL, LEROY F | | | $0.00 | 33450 | 93017902 |
| 6 | 01/01/1900 | OTHER | Other - Misc. Documents | Unknown | DAHL, LEROY F | | | $0.00 | 11483 | 91006252 |
Payout Agreement
| No payout information available.. |