Property
Account |
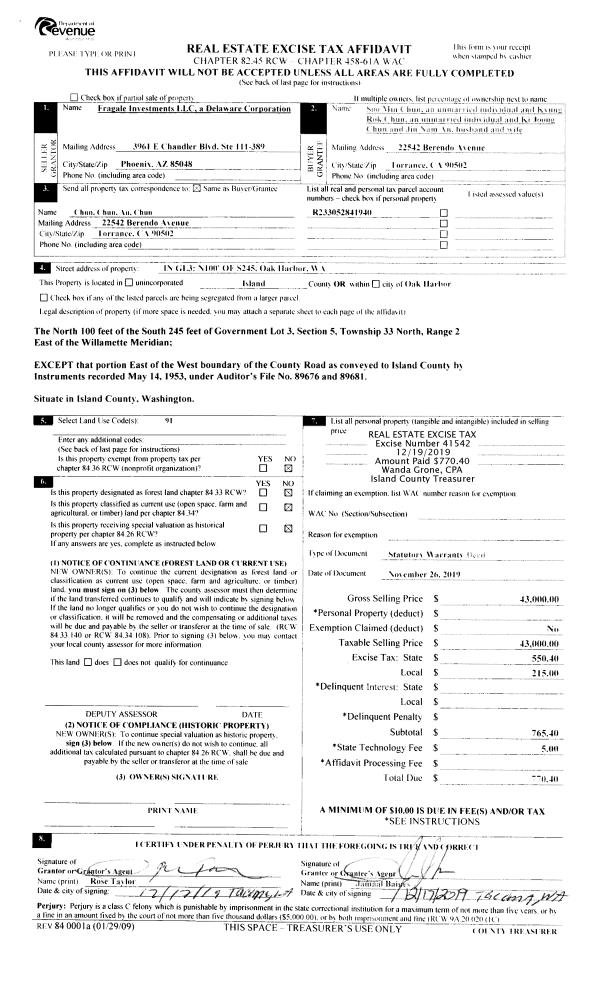
| Property ID: | 67439 | Abbreviated Legal Description: | 17 - IN GL 2 INCL ADJ TIDELANDS TGW DRIVEWAY EZ AF#86015399 |
| Geographic ID: | R23027-167-0330 | Agent Code: | |
| Type: | Real | | |
| Tax Area: | 312 - APPRAISER-Cpvl Schl Dist, outside Cpvl, improved, greater than 1 acre | Land Use Code | 11 |
| Open Space: | N | DFL | N |
| Historic Property: | N | Remodel Property: | N |
| Multi-Family Redevelopment: | N | | |
| Township: | 30 | Section: | 27 |
| Range: | R2 |
Location |
| Address: | 4275 HONEYMOON BAY RD GREENBANK, WA 98253 | Mapsco: | |
| Neighborhood: | Cycle 3 | Map ID: | 419 |
| Neighborhood CD: | 3 |
Owner |
| Name: | MAGPATOC, ABRAHAM | Owner ID: | 193731 |
| Mailing Address: | MARINA MAGPATOC PO BOX 1102 FREELAND, WA 98249-1102 | % Ownership: | 100.0000000000% |
| | | Exemptions: | |
Taxes and Assessment Details
Values
| (+) Improvement Homesite Value: | + | $0 | |
| (+) Improvement Non-Homesite Value: | + | $366,086 | |
| (+) Land Homesite Value: | + | $0 | |
| (+) Land Non-Homesite Value: | + | $853,020 | |
| (+) Curr Use (HS): | + | $0 | $0 |
| (+) Curr Use (NHS): | + | $0 | $0 |
| | | -------------------------- | |
| (=) Market Value: | = | $1,219,106 | |
| (–) Productivity Loss: | – | $0 | |
| | | -------------------------- | |
| (=) Subtotal: | = | $1,219,106 | |
| (+) Senior Appraised Value: | + | $0 | |
| (+) Non-Senior Appraised Value: | + | $1,219,106 | |
| | | -------------------------- | |
| (=) Total Appraised Value: | = | $1,219,106 | |
| (–) Senior Exemption Loss: | – | $0 | |
| (–) Exemption Loss: | – | $0 | |
| | | -------------------------- | |
| (=) Taxable Value: | = | $1,219,106 | |
Taxing Jurisdiction
| Owner: | MAGPATOC, ABRAHAM | | |
| % Ownership: | 100.0000000000% | | |
| Total Value: | $1,219,106 | | |
| Tax Area: | 312 - APPRAISER-Cpvl Schl Dist, outside Cpvl, improved, greater than 1 acre |
| CF | Conservation Futures | 0.0316035091 | $1,219,106 | $1,219,106 | $38.53 | | |
| CEM2 | Cemetery #2 | 0.0095056933 | $1,219,106 | $1,219,106 | $11.59 | | |
| FIRE5 | Fire & Rescue Dist #5 C Whidbey GEN | 1.2008080668 | $1,219,106 | $1,219,106 | $1,463.91 | | |
| FIRE5BOND | Fire & Rescue Dist #5 C Whidbey BOND | 0.1400090713 | $1,219,106 | $1,219,106 | $170.69 | | |
| HOBOND | Hospital BOND | 0.1910887512 | $1,219,106 | $1,219,106 | $232.96 | | |
| HOGEN | Hospital GEN | 0.3902502903 | $1,219,106 | $1,219,106 | $475.76 | | |
| CE | County Current Expense | 0.3708482477 | $1,219,106 | $1,219,106 | $452.10 | | |
| CR | County Roads | 0.4584763726 | $1,219,106 | $1,219,106 | $558.93 | | |
| ISLANDEMS | Hospital GEN (EMS) | 0.5000000000 | $1,219,106 | $1,219,106 | $609.55 | | |
| LIB | Library Sno-Isle GEN | 0.3153421757 | $1,219,106 | $1,219,106 | $384.44 | | |
| LIBCAP | Library Sno-Isle BOND (Cap Fac Imp Area) | 0.0543427938 | $1,219,106 | $1,219,106 | $66.25 | | |
| POCOUP | Port of Coupeville GEN | 0.1093371703 | $1,219,106 | $1,219,106 | $133.29 | | |
| POCOUPIDD | Port of Coupeville IDD | 0.3409740022 | $1,219,106 | $1,219,106 | $415.68 | | |
| COUPSDTECH | School 204 CP (TECH) | 0.7545480007 | $1,219,106 | $1,219,106 | $919.87 | | |
| SCH204MO | School 204 Enrichment | 0.6716186034 | $1,219,106 | $1,219,106 | $818.77 | | |
| ST | State School | 1.3035497053 | $1,219,106 | $1,219,106 | $1,589.17 | | |
| ST2 | State School Part 2 | 0.8169543533 | $1,219,106 | $1,219,106 | $995.95 | | |
| | Total Tax Rate: | 7.6592568070 | | | | | |
| | | | | Taxes w/Current Exemptions: | $9,337.44 | | |
| | | | | Taxes w/o Exemptions: | $9,337.44 | | |
Improvement / Building
| Improvement #1: | RESIDENTIAL | State Code: | Y | 4340.6 sqft | Value: | $366,086 |
| Bathrooms: | 3 | Bedrooms: | 2 | | Ceiling: | DRY WALL SPRAYED | Exterior Wall/Cover: | WOOD SIDING | | Floor Covering: | CARPET/VINYL 80-20 | Floor Structure: | WOOD W/SUBFLOOR | | Foundation: | CONCRETE | Heating: | BASEBOARD ELECTRIC | | Interior Finish: | DRYWALL PAINT | Plumbing Fixture Cnt: | 12 | | Roof Slope: | 4" IN 12" | Roof Structure/Cover: | CJ ASPHALT |
|
| | Type | Description | Class CD | Sub Class CD | Year Built | Area |
| | BAS | BASE/MAIN FLOOR | 3 | 0 | 1977 | 2115.9 |
| | OP2 | OPEN PORCH W/STEPS | 3 | 0 | 1977 | 64.8 |
| | OWP | OPEN WOOD PORCH W/STEPS | 3 | 0 | 1977 | 134.4 |
| | OWP | OPEN WOOD PORCH W/STEPS | 3 | 0 | 1977 | 105.0 |
| | OWC | OPEN WOOD PORCH W/STEPS/ROOF/C | 3 | 0 | 1977 | 116.3 |
| | DWN | DOWNSTAIRS LIVING AREA | 3 | 0 | 1977 | 1968.7 |
| | LOF | LOFT | 3 | 0 | 1977 | 256.0 |
| | DGR | DETACHED GARAGE | 3 | 0 | 1977 | 529.0 |
Sketch
Property Image
Land
| 1 | HB | HIGH BLUFF | 3.5000 | 152460.00 | 272.00 | 0.00 | 1.00 | $850,000 | $0 |
| 2 | 55 | TIDES | 0.0000 | 0.00 | 302.00 | 0.00 | 1.00 | $3,020 | $0 |
Roll Value History
| 2026 | N/A | N/A | N/A | N/A | N/A |
| 2025 | $366,086 | $853,020 | $0 | $1,219,106 | $1,219,106 |
| 2024 | $379,852 | $803,020 | $0 | $1,182,872 | $1,182,872 |
| 2023 | $385,185 | $753,020 | $0 | $1,138,205 | $1,138,205 |
| 2022 | $353,617 | $753,020 | $0 | $1,106,637 | $1,106,637 |
| 2021 | $311,695 | $703,020 | $0 | $1,014,715 | $1,014,715 |
| 2020 | $305,414 | $703,020 | $0 | $1,008,434 | $1,008,434 |
| 2019 | $229,316 | $803,020 | $0 | $1,032,336 | $1,032,336 |
| 2018 | $230,180 | $653,020 | $0 | $883,200 | $883,200 |
| 2017 | $231,828 | $653,020 | $0 | $884,848 | $884,848 |
| 2016 | $235,289 | $653,020 | $0 | $888,309 | $888,309 |
| 2015 | $238,750 | $653,020 | $0 | $891,770 | $891,770 |
| 2014 | $242,210 | $653,020 | $0 | $895,230 | $895,230 |
| 2013 | $249,346 | $571,614 | $0 | $820,960 | $820,960 |
| 2012 | $252,762 | $571,614 | $0 | $824,376 | $824,376 |
| 2011 | $256,180 | $571,614 | $0 | $827,794 | $827,794 |
| 2010 | $271,343 | $571,614 | $0 | $842,957 | $842,957 |
| 2009 | $282,576 | $901,400 | $0 | $1,183,976 | $1,183,976 |
| 2008 | $286,338 | $901,400 | $0 | $1,187,738 | $1,187,738 |
| 2007 | $281,988 | $711,649 | $0 | $993,637 | $993,637 |
Deed and Sales History
| 1 | 10/18/2004 | WD | Warranty Deed | STURKEY, MARY A | MAGPATOC, ABRAHAM | | | $600,000.00 | 45201 | 4117178 |
| 2 | 07/14/2002 | 5 | DNU - Marriage License/Name Change | STURKEY, CHARLES M | STURKEY, MARY A | | | $0.00 | 69751 | 0 |
| 3 | 01/01/1900 | OTHER | Other - Misc. Documents | Unknown | STURKEY, CHARLES M | | | $0.00 | 0 | 0 |
Payout Agreement
| No payout information available.. |