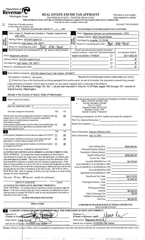
Property
Account |
| Property ID: | 67457 | Abbreviated Legal Description: | 18 - IN GL 2: N86' OF S645' OF GL 2 INCL ADJ TIDES TGW EZ |
| Geographic ID: | R23027-193-0380 | Agent Code: | |
| Type: | Real | | |
| Tax Area: | 312 - APPRAISER-Cpvl Schl Dist, outside Cpvl, improved, greater than 1 acre | Land Use Code | 11 |
| Open Space: | N | DFL | N |
| Historic Property: | N | Remodel Property: | N |
| Multi-Family Redevelopment: | N | | |
| Township: | 30 | Section: | 27 |
| Range: | R2 |
Location |
| Address: | 4255 HONEYMOON BAY RD GREENBANK, WA 98253 | Mapsco: | |
| Neighborhood: | Cycle 3 | Map ID: | 419 |
| Neighborhood CD: | 3 |
Owner |
| Name: | GRUND TRUSTEE, STACEY A | Owner ID: | 52628 |
| Mailing Address: | THE GRUND FAMILY WHIDBEY ISLAND TRUST 920 CAROL WAY EDMONDS, WA 98020-2939 | % Ownership: | 100.0000000000% |
| | | Exemptions: | |
Taxes and Assessment Details
Values
| (+) Improvement Homesite Value: | + | $0 | |
| (+) Improvement Non-Homesite Value: | + | $381,206 | |
| (+) Land Homesite Value: | + | $0 | |
| (+) Land Non-Homesite Value: | + | $775,860 | |
| (+) Curr Use (HS): | + | $0 | $0 |
| (+) Curr Use (NHS): | + | $0 | $0 |
| | | -------------------------- | |
| (=) Market Value: | = | $1,157,066 | |
| (–) Productivity Loss: | – | $0 | |
| | | -------------------------- | |
| (=) Subtotal: | = | $1,157,066 | |
| (+) Senior Appraised Value: | + | $0 | |
| (+) Non-Senior Appraised Value: | + | $1,157,066 | |
| | | -------------------------- | |
| (=) Total Appraised Value: | = | $1,157,066 | |
| (–) Senior Exemption Loss: | – | $0 | |
| (–) Exemption Loss: | – | $0 | |
| | | -------------------------- | |
| (=) Taxable Value: | = | $1,157,066 | |
Taxing Jurisdiction
| Owner: | GRUND TRUSTEE, STACEY A | | |
| % Ownership: | 100.0000000000% | | |
| Total Value: | $1,157,066 | | |
| Tax Area: | 312 - APPRAISER-Cpvl Schl Dist, outside Cpvl, improved, greater than 1 acre |
| CF | Conservation Futures | 0.0316035091 | $1,157,066 | $1,157,066 | $36.57 | | |
| CEM2 | Cemetery #2 | 0.0095056933 | $1,157,066 | $1,157,066 | $11.00 | | |
| FIRE5 | Fire & Rescue Dist #5 C Whidbey GEN | 1.2008080668 | $1,157,066 | $1,157,066 | $1,389.41 | | |
| FIRE5BOND | Fire & Rescue Dist #5 C Whidbey BOND | 0.1400090713 | $1,157,066 | $1,157,066 | $162.00 | | |
| HOBOND | Hospital BOND | 0.1910887512 | $1,157,066 | $1,157,066 | $221.10 | | |
| HOGEN | Hospital GEN | 0.3902502903 | $1,157,066 | $1,157,066 | $451.55 | | |
| CE | County Current Expense | 0.3708482477 | $1,157,066 | $1,157,066 | $429.10 | | |
| CR | County Roads | 0.4584763726 | $1,157,066 | $1,157,066 | $530.49 | | |
| ISLANDEMS | Hospital GEN (EMS) | 0.5000000000 | $1,157,066 | $1,157,066 | $578.53 | | |
| LIB | Library Sno-Isle GEN | 0.3153421757 | $1,157,066 | $1,157,066 | $364.87 | | |
| LIBCAP | Library Sno-Isle BOND (Cap Fac Imp Area) | 0.0543427938 | $1,157,066 | $1,157,066 | $62.88 | | |
| POCOUP | Port of Coupeville GEN | 0.1093371703 | $1,157,066 | $1,157,066 | $126.51 | | |
| POCOUPIDD | Port of Coupeville IDD | 0.3409740022 | $1,157,066 | $1,157,066 | $394.53 | | |
| COUPSDTECH | School 204 CP (TECH) | 0.7545480007 | $1,157,066 | $1,157,066 | $873.06 | | |
| SCH204MO | School 204 Enrichment | 0.6716186034 | $1,157,066 | $1,157,066 | $777.11 | | |
| ST | State School | 1.3035497053 | $1,157,066 | $1,157,066 | $1,508.29 | | |
| ST2 | State School Part 2 | 0.8169543533 | $1,157,066 | $1,157,066 | $945.27 | | |
| | Total Tax Rate: | 7.6592568070 | | | | | |
| | | | | Taxes w/Current Exemptions: | $8,862.27 | | |
| | | | | Taxes w/o Exemptions: | $8,862.27 | | |
Improvement / Building
| Improvement #1: | RESIDENTIAL | State Code: | Y | 2029.0 sqft | Value: | $381,206 |
| Bathrooms: | 2.5 | Bedrooms: | 3 | | Ceiling: | TONGUE & GROOVE | Exterior Wall/Cover: | WOOD SIDING | | Floor Covering: | HARDWOOD/CARP 20-80 | Floor Structure: | WOOD W/SUBFLOOR | | Foundation: | CONCRETE | Heating: | BASEBOARD ELECTRIC | | Interior Finish: | DRYWALL PAINT | Plumbing Fixture Cnt: | 12 | | Roof Slope: | 6" IN 12" | Roof Structure/Cover: | CJ ASPHALT |
|
| | Type | Description | Class CD | Sub Class CD | Year Built | Area |
| | BAS | BASE/MAIN FLOOR | 3 | 0 | 1948 | 1330.2 |
| | OWP | OPEN WOOD PORCH W/STEPS | 3 | 0 | 1948 | 420.0 |
| | OWP | OPEN WOOD PORCH W/STEPS | 3 | 0 | 1948 | 104.4 |
| | OWR | OPEN WOOD PORCH W/STEPS/ROOF | 3 | 0 | 1948 | 242.3 |
| | DWN | DOWNSTAIRS LIVING AREA | 3 | 0 | 1948 | 698.8 |
| | DGR | DETACHED GARAGE | 3 | 0 | 1948 | 819.0 |
| | oDOC | MARINA | 3 | 0 | 1948 | 0.0 |
| | DGR | DETACHED GARAGE | 3 | 0 | 1948 | 518.0 |
| | UTY | STORAGE/UTILITY | 3 | 0 | 1948 | 357.0 |
Sketch
Property Image
Land
| 1 | MB | MEDIUM BANK | 1.6000 | 69696.00 | 86.00 | 0.00 | 1.00 | $775,000 | $0 |
| 2 | 55 | TIDES | 0.0000 | 0.00 | 86.00 | 0.00 | 1.00 | $860 | $0 |
Roll Value History
| 2026 | N/A | N/A | N/A | N/A | N/A |
| 2025 | $381,206 | $775,860 | $0 | $1,157,066 | $1,157,066 |
| 2024 | $393,504 | $725,860 | $0 | $1,119,364 | $1,119,364 |
| 2023 | $398,400 | $725,860 | $0 | $1,124,260 | $1,124,260 |
| 2022 | $367,096 | $650,860 | $0 | $1,017,956 | $1,017,956 |
| 2021 | $325,682 | $450,860 | $0 | $776,542 | $776,542 |
| 2020 | $318,118 | $400,860 | $0 | $718,978 | $718,978 |
| 2019 | $249,066 | $450,860 | $0 | $699,926 | $699,926 |
| 2018 | $249,773 | $350,860 | $0 | $600,633 | $600,633 |
| 2017 | $251,168 | $400,860 | $0 | $652,028 | $652,028 |
| 2016 | $253,989 | $400,860 | $0 | $654,849 | $654,849 |
| 2015 | $256,807 | $400,860 | $0 | $657,667 | $657,667 |
| 2014 | $259,629 | $400,860 | $0 | $660,489 | $660,489 |
| 2013 | $213,208 | $337,329 | $0 | $550,537 | $550,537 |
| 2012 | $215,261 | $337,329 | $0 | $552,590 | $552,590 |
| 2011 | $217,313 | $337,329 | $0 | $554,642 | $554,642 |
| 2010 | $226,706 | $337,329 | $0 | $564,035 | $564,035 |
| 2009 | $234,646 | $421,446 | $0 | $656,092 | $656,092 |
| 2008 | $237,232 | $421,446 | $0 | $658,678 | $658,678 |
| 2007 | $176,247 | $420,844 | $0 | $597,091 | $597,091 |
Deed and Sales History
| 1 | 08/14/2014 | EZ | Easement | GRUND TRUSTEE, STACEY A | GRUND TRUSTEE, STACEY A | | | $1.00 | 16781 | 4365439 |
| 2 | 05/05/2010 | WD | Warranty Deed | GRUND, STACEY A | GRUND TRUSTEE, STACEY A | | | $0.00 | 1091 | 4273370 |
| 3 | 02/29/2000 | QCD | Quit Claim Deed | GRUND, RICHARD A | GRUND, STACEY A | | | $0.00 | 860 | 20004346 |
| 4 | 12/01/1976 | CD | DNU - Correction Deed | GRUND, RICHARD A | GRUND, RICHARD A | | | $0.00 | 64469 | 0 |
| 5 | 01/01/1900 | OTHER | Other - Misc. Documents | Unknown | GRUND, RICHARD A | | | $0.00 | 0 | 0 |
Payout Agreement
| No payout information available.. |