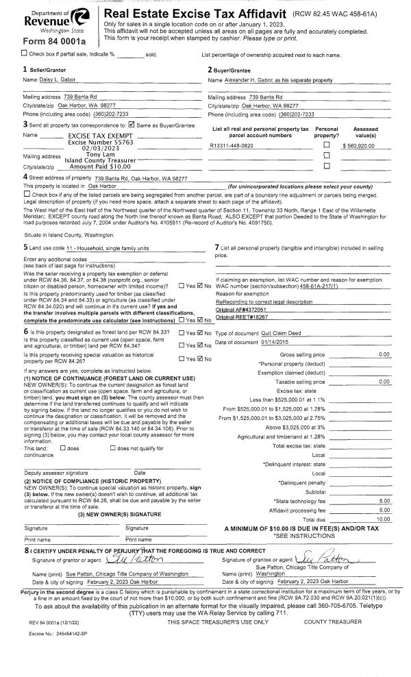
Property
Account |
| Property ID: | 674648 | Abbreviated Legal Description: | 1989 GLENRIVER 26X40 |
| Geographic ID: | M918500000220 | Agent Code: | |
| Type: | Mobile Home | | |
| Tax Area: | 710 - APPRAISER-S Whid Schl Dist, outside Langley, improved & 1 acre or less | Land Use Code | 11 |
| Open Space: | N | DFL | N |
| Historic Property: | N | Remodel Property: | N |
| Multi-Family Redevelopment: | N | | |
| Township: | | Section: | |
| Range: | |
Location |
| Address: | 4957 WHEEL DR LANGLEY, WA 98260 | Mapsco: | |
| Neighborhood: | Cycle 4 | Map ID: | 735 |
| Neighborhood CD: | 4 |
Owner |
| Name: | HARDAWAY, MELISSA | Owner ID: | 316157 |
| Mailing Address: | 4957 WHEEL DR LANGLEY, WA 98260 | % Ownership: | 100.0000000000% |
| | | Exemptions: | |
Taxes and Assessment Details
Values
| (+) Improvement Homesite Value: | + | $0 | |
| (+) Improvement Non-Homesite Value: | + | $76,400 | |
| (+) Land Homesite Value: | + | $0 | |
| (+) Land Non-Homesite Value: | + | $0 | |
| (+) Curr Use (HS): | + | $0 | $0 |
| (+) Curr Use (NHS): | + | $0 | $0 |
| | | -------------------------- | |
| (=) Market Value: | = | $76,400 | |
| (–) Productivity Loss: | – | $0 | |
| | | -------------------------- | |
| (=) Subtotal: | = | $76,400 | |
| (+) Senior Appraised Value: | + | $0 | |
| (+) Non-Senior Appraised Value: | + | $76,400 | |
| | | -------------------------- | |
| (=) Total Appraised Value: | = | $76,400 | |
| (–) Senior Exemption Loss: | – | $0 | |
| (–) Exemption Loss: | – | $0 | |
| | | -------------------------- | |
| (=) Taxable Value: | = | $76,400 | |
Taxing Jurisdiction
| Owner: | HARDAWAY, MELISSA | | |
| % Ownership: | 100.0000000000% | | |
| Total Value: | $76,400 | | |
| Tax Area: | 710 - APPRAISER-S Whid Schl Dist, outside Langley, improved & 1 acre or less |
| CF | Conservation Futures | 0.0316035091 | $76,400 | $76,400 | $2.41 | | |
| FIRE3 | Fire & Rescue Dist #3 S Whidbey GEN | 1.2004855531 | $76,400 | $76,400 | $91.72 | | |
| HOBOND | Hospital BOND | 0.1910887512 | $76,400 | $76,400 | $14.60 | | |
| HOGEN | Hospital GEN | 0.3902502903 | $76,400 | $76,400 | $29.82 | | |
| CE | County Current Expense | 0.3708482477 | $76,400 | $76,400 | $28.33 | | |
| CR | County Roads | 0.4584763726 | $76,400 | $76,400 | $35.03 | | |
| ISLANDEMS | Hospital GEN (EMS) | 0.5000000000 | $76,400 | $76,400 | $38.20 | | |
| LIB | Library Sno-Isle GEN | 0.3153421757 | $76,400 | $76,400 | $24.09 | | |
| PORTWHID | Port of S Whidbey GEN | 0.1094540357 | $76,400 | $76,400 | $8.36 | | |
| SCH206BOND | School 206 BOND | 0.3161759235 | $76,400 | $76,400 | $24.16 | | |
| SCH206MO | School 206 Enrichment | 0.4547169547 | $76,400 | $76,400 | $34.74 | | |
| ST | State School | 1.3035497053 | $76,400 | $76,400 | $99.59 | | |
| ST2 | State School Part 2 | 0.8169543533 | $76,400 | $76,400 | $62.42 | | |
| SWHIDPRBD | P & R S Whidbey BOND | 0.0152817568 | $76,400 | $76,400 | $1.17 | | |
| SWHIDPRBD2 | P & R S Whidbey BOND2 | 0.0138911264 | $76,400 | $76,400 | $1.06 | | |
| SWHIDPRMT | P & R S Whidbey GEN | 0.2053334452 | $76,400 | $76,400 | $15.69 | | |
| | Total Tax Rate: | 6.6934522006 | | | | | |
| | | | | Taxes w/Current Exemptions: | $511.39 | | |
| | | | | Taxes w/o Exemptions: | $511.39 | | |
Improvement / Building
| Improvement #1: | MANUFACTURED HOME | State Code: | Y | 1040.0 sqft | Value: | $76,400 |
| Bathrooms: | 0 | Bedrooms: | 0 | | Ceiling: | PLASTER PAINTED | Cooling: | EVAP NO DUCT | | Exterior Wall/Cover: | VINYL | Floor Covering: | CARPET 100% | | Floor Structure: | SLAB ON GRADE | Foundation: | SLAB | | Heating: | FHA ELECTRIC | Interior Finish: | PLASTER | | Plumbing Fixture Cnt: | 1 | Roof Slope: | FLAT | | Roof Structure/Cover: | CJ ALUMINIUM HEAVY |   |   |
|
| | Type | Description | Class CD | Sub Class CD | Year Built | Area |
| | BAS | BASE/MAIN FLOOR | 4 | 0 | 1989 | 1040.0 |
| | OCP | OPEN CARPORT | 4 | 0 | 1989 | 312.0 |
| | OWP | OPEN WOOD PORCH W/STEPS | 4 | 0 | 1989 | 40.0 |
Sketch
Property Image
Land
No land segments exist for this property.
Roll Value History
| 2026 | N/A | N/A | N/A | N/A | N/A |
| 2025 | $76,400 | $0 | $0 | $76,400 | $76,400 |
| 2024 | $79,723 | $0 | $0 | $79,723 | $79,723 |
| 2023 | $52,175 | $0 | $0 | $52,175 | $52,175 |
| 2022 | $49,095 | $0 | $0 | $49,095 | $49,095 |
| 2021 | $44,301 | $0 | $0 | $44,301 | $0 |
| 2020 | $44,577 | $0 | $0 | $44,577 | $0 |
| 2019 | $36,959 | $0 | $0 | $36,959 | $0 |
| 2018 | $38,191 | $0 | $0 | $38,191 | $0 |
| 2017 | $39,423 | $0 | $0 | $39,423 | $0 |
| 2016 | $40,655 | $0 | $0 | $40,655 | $0 |
| 2015 | $41,887 | $0 | $0 | $41,887 | $0 |
| 2014 | $45,956 | $0 | $0 | $45,956 | $45,956 |
| 2013 | $47,321 | $0 | $0 | $47,321 | $47,321 |
| 2012 | $48,685 | $0 | $0 | $48,685 | $48,685 |
| 2011 | $50,050 | $0 | $0 | $50,050 | $50,050 |
| 2010 | $51,153 | $0 | $0 | $51,153 | $51,153 |
| 2009 | $54,162 | $0 | $0 | $54,162 | $54,162 |
| 2008 | $55,013 | $0 | $0 | $55,013 | $55,013 |
| 2007 | $41,095 | $0 | $0 | $41,095 | $41,095 |
Deed and Sales History
| 1 | 04/18/2025 | MANHOME | Manufactured Home | FITTRO, CARAL | HARDAWAY, MELISSA | | | $90,000.00 | 63168 | |
| 2 | 09/22/2022 | MANHOME | Manufactured Home | HOOVER, LEANN | FITTRO, CARAL | | | $127,280.00 | 54688 | |
Payout Agreement
| No payout information available.. |