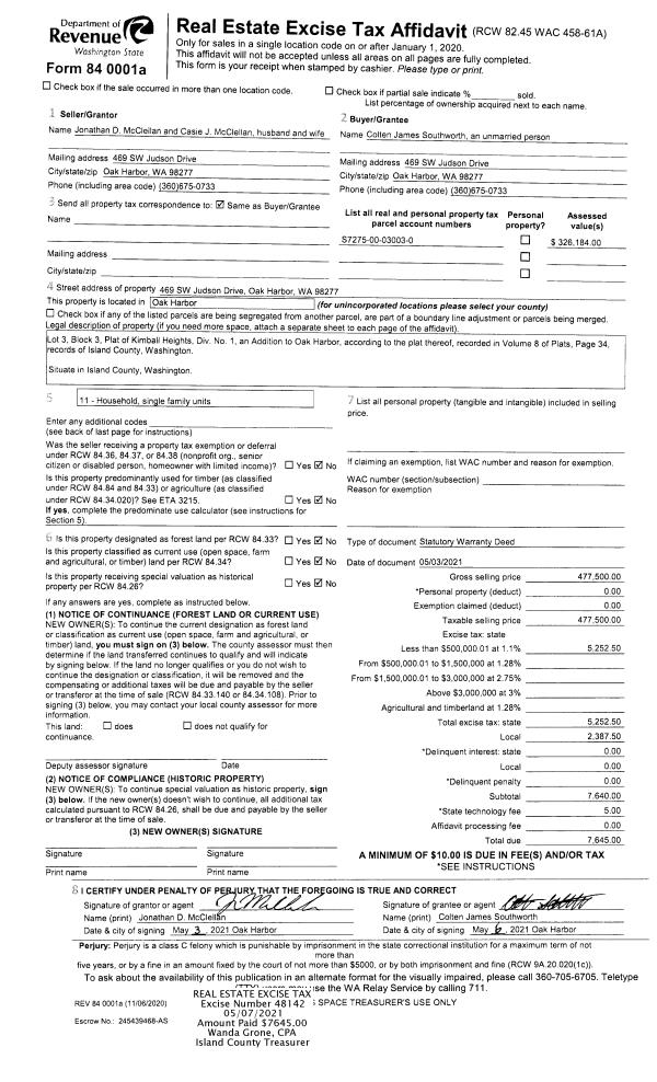
Property
Account |
| Property ID: | 674899 | Abbreviated Legal Description: | S/2 NW SW SE & N/2 SW SW SE EX E/2 TGW S/2 SW SW SE EX CO RD TGW & SUB EZS FR 073-2850 & 026-2840 |
| Geographic ID: | R32914-052-2680 | Agent Code: | |
| Type: | Real | | |
| Tax Area: | 712 - APPRAISER-S Whid Schl Dist, outside Langley, improved, greater than 1 acre | Land Use Code | 11 |
| Open Space: | N | DFL | N |
| Historic Property: | N | Remodel Property: | N |
| Multi-Family Redevelopment: | N | | |
| Township: | 29 | Section: | 14 |
| Range: | R3 |
Location |
| Address: | 4450 CAMPBELL RD CLINTON, WA 98236 | Mapsco: | |
| Neighborhood: | Cycle 4 | Map ID: | 767 |
| Neighborhood CD: | 4 |
Owner |
| Name: | ADDINGTON JTWROS, MONICA | Owner ID: | 307023 |
| Mailing Address: | RON SWITZER JTWROS 4450 CAMPBELL RD CLINTON, WA 98236 | % Ownership: | 100.0000000000% |
| | | Exemptions: | |
Taxes and Assessment Details
Values
| (+) Improvement Homesite Value: | + | $0 | |
| (+) Improvement Non-Homesite Value: | + | $367,704 | |
| (+) Land Homesite Value: | + | $0 | |
| (+) Land Non-Homesite Value: | + | $370,000 | |
| (+) Curr Use (HS): | + | $0 | $0 |
| (+) Curr Use (NHS): | + | $0 | $0 |
| | | -------------------------- | |
| (=) Market Value: | = | $737,704 | |
| (–) Productivity Loss: | – | $0 | |
| | | -------------------------- | |
| (=) Subtotal: | = | $737,704 | |
| (+) Senior Appraised Value: | + | $0 | |
| (+) Non-Senior Appraised Value: | + | $737,704 | |
| | | -------------------------- | |
| (=) Total Appraised Value: | = | $737,704 | |
| (–) Senior Exemption Loss: | – | $0 | |
| (–) Exemption Loss: | – | $0 | |
| | | -------------------------- | |
| (=) Taxable Value: | = | $737,704 | |
Taxing Jurisdiction
| Owner: | ADDINGTON JTWROS, MONICA | | |
| % Ownership: | 100.0000000000% | | |
| Total Value: | $737,704 | | |
| Tax Area: | 712 - APPRAISER-S Whid Schl Dist, outside Langley, improved, greater than 1 acre |
| CF | Conservation Futures | 0.0316035091 | $737,704 | $737,704 | $23.31 | | |
| FIRE3 | Fire & Rescue Dist #3 S Whidbey GEN | 1.2004855531 | $737,704 | $737,704 | $885.60 | | |
| HOBOND | Hospital BOND | 0.1910887512 | $737,704 | $737,704 | $140.97 | | |
| HOGEN | Hospital GEN | 0.3902502903 | $737,704 | $737,704 | $287.89 | | |
| CE | County Current Expense | 0.3708482477 | $737,704 | $737,704 | $273.58 | | |
| CR | County Roads | 0.4584763726 | $737,704 | $737,704 | $338.22 | | |
| ISLANDEMS | Hospital GEN (EMS) | 0.5000000000 | $737,704 | $737,704 | $368.85 | | |
| LIB | Library Sno-Isle GEN | 0.3153421757 | $737,704 | $737,704 | $232.63 | | |
| PORTWHID | Port of S Whidbey GEN | 0.1094540357 | $737,704 | $737,704 | $80.74 | | |
| SCH206BOND | School 206 BOND | 0.3161759235 | $737,704 | $737,704 | $233.24 | | |
| SCH206MO | School 206 Enrichment | 0.4547169547 | $737,704 | $737,704 | $335.45 | | |
| ST | State School | 1.3035497053 | $737,704 | $737,704 | $961.63 | | |
| ST2 | State School Part 2 | 0.8169543533 | $737,704 | $737,704 | $602.67 | | |
| SWHIDPRBD | P & R S Whidbey BOND | 0.0152817568 | $737,704 | $737,704 | $11.27 | | |
| SWHIDPRBD2 | P & R S Whidbey BOND2 | 0.0138911264 | $737,704 | $737,704 | $10.25 | | |
| SWHIDPRMT | P & R S Whidbey GEN | 0.2053334452 | $737,704 | $737,704 | $151.48 | | |
| | Total Tax Rate: | 6.6934522006 | | | | | |
| | | | | Taxes w/Current Exemptions: | $4,937.78 | | |
| | | | | Taxes w/o Exemptions: | $4,937.78 | | |
Improvement / Building
| Improvement #1: | RESIDENTIAL | State Code: | Y | 3528.0 sqft | Value: | $367,704 |
| Bathrooms: | 2.5 | Bedrooms: | 3 | | Ceiling: | DRYWALL PAINTED | Exterior Wall/Cover: | CEMENT FIBER | | Floor Covering: | HARDWOOD/CARP 20-80 | Floor Structure: | WOOD W/SUBFLOOR | | Foundation: | CONCRETE | Heating: | FHA OIL | | Interior Finish: | DRYWALL PAINT | Plumbing Fixture Cnt: | 11 | | Roof Slope: | 4" IN 12" | Roof Structure/Cover: | CJ ALUMINIUM HEAVY |
|
| | Type | Description | Class CD | Sub Class CD | Year Built | Area |
| | BAS | BASE/MAIN FLOOR | 3 | 0 | 1960 | 1896.0 |
| | UB8 | BASEMENT UNFINISHED 8" | 3 | 0 | 1960 | 264.0 |
| | DWN | DOWNSTAIRS LIVING AREA | 3 | 0 | 1960 | 1632.0 |
| | OWP | OPEN WOOD PORCH W/STEPS | 3 | 0 | 1960 | 1060.0 |
| | CPD | OPEN CARPORT DIRT FLOOR | 3 | 0 | 1960 | 1728.0 |
Sketch
Property Image
Land
| 1 | 32 | AC (03.01-09.99) | 0.0000 | 0.00 | 0.00 | 0.00 | 1.00 | $370,000 | $0 |
Roll Value History
| 2026 | N/A | N/A | N/A | N/A | N/A |
| 2025 | $367,704 | $370,000 | $0 | $737,704 | $737,704 |
| 2024 | $372,865 | $350,000 | $0 | $722,865 | $722,865 |
| 2023 | $378,025 | $330,000 | $0 | $708,025 | $708,025 |
| 2022 | $347,000 | $280,000 | $0 | $627,000 | $627,000 |
| 2021 | $305,804 | $230,000 | $0 | $535,804 | $535,804 |
| 2020 | $187,901 | $190,000 | $0 | $377,901 | $377,901 |
| 2019 | $140,422 | $250,000 | $0 | $390,422 | $390,422 |
| 2018 | $141,032 | $210,000 | $0 | $351,032 | $351,032 |
| 2017 | $142,254 | $190,000 | $0 | $332,254 | $332,254 |
| 2016 | $144,698 | $165,000 | $0 | $309,698 | $309,698 |
| 2015 | $147,140 | $150,000 | $0 | $297,140 | $297,140 |
| 2014 | $142,829 | $155,000 | $0 | $297,829 | $297,829 |
| 2013 | $145,975 | $137,850 | $0 | $283,825 | $283,825 |
| 2012 | $148,681 | $137,850 | $0 | $286,531 | $286,531 |
| 2011 | $151,386 | $137,850 | $0 | $289,236 | $289,236 |
| 2010 | $175,494 | $137,850 | $0 | $313,344 | $313,344 |
| 2009 | $183,729 | $165,420 | $0 | $349,149 | $349,149 |
| 2008 | $196,094 | $154,392 | $0 | $350,486 | $350,486 |
| 2007 | $199,929 | $154,392 | $0 | $354,321 | $354,321 |
Deed and Sales History
| 1 | 01/26/2022 | QCD | Quit Claim Deed | SWITZER, RONALD G | ADDINGTON JTWROS, MONICA | | | $0.00 | 55459 | 4555104 |
| 2 | 01/26/2022 | QCD | Quit Claim Deed | SWITZER, PATRICIA I. | SWITZER, RONALD G | | | $76,437.00 | 55458 | 4555103 |
| 3 | 11/07/2003 | DECREE | Divorce Decree/Legal Separation | SWITZER, RONALD G | SWITZER, RONALD G | | | $0.00 | 70054 | 0 |
| 4 | 09/01/1994 | WD | Warranty Deed | GREENE, WANDA M | SWITZER, RONALD G | | | $215,000.00 | 43642 | 94019185 |
| 5 | 08/01/1992 | OTHER | Other - Misc. Documents | GREENE, WANDA M | GREENE, WANDA M | | | $0.00 | 65000 | 92015116 |
| 6 | 01/01/1900 | OTHER | Other - Misc. Documents | Unknown | GREENE, WANDA M | | | $0.00 | 13653 | 91015641 |
Payout Agreement
| No payout information available.. |