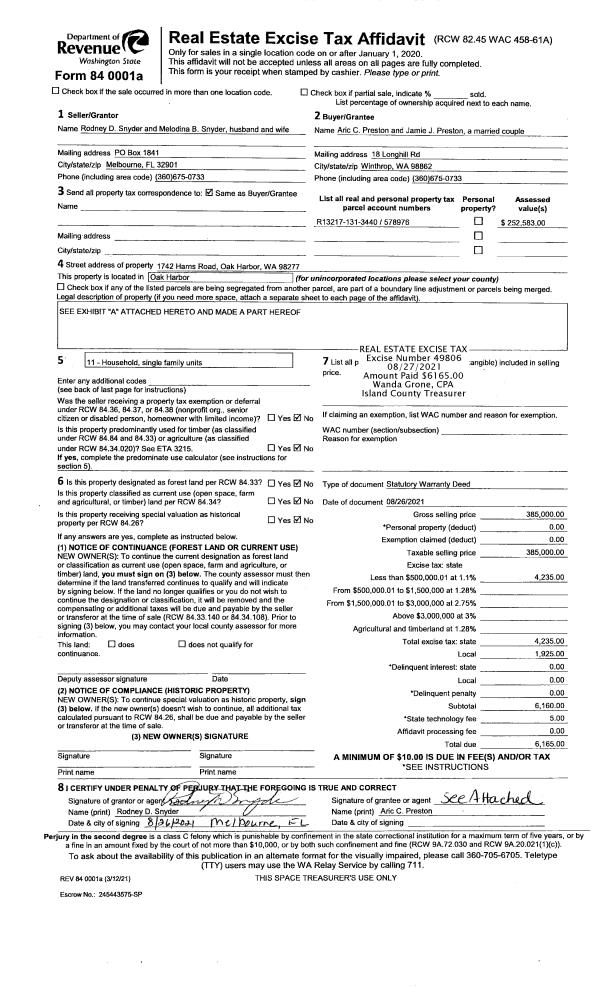
Property
Account |
| Property ID: | 675585 | Abbreviated Legal Description: | PT NE NE NE LY E OF SARATOGA RD & LY S OF FOLL DESC LN: BG NECR SEC 14 S01*W150.47'TPB SD LN N88*W 148.84' S69*W176.41' N20*W 73.15' N88*W112.54'M/L TO ELN SARATOGA RD SUB DRAIN- FIELD EZ FR 479-4990 & 512-4990 |
| Geographic ID: | R23014-493-5200 | Agent Code: | |
| Type: | Real | | |
| Tax Area: | 712 - APPRAISER-S Whid Schl Dist, outside Langley, improved, greater than 1 acre | Land Use Code | 11 |
| Open Space: | N | DFL | N |
| Historic Property: | N | Remodel Property: | N |
| Multi-Family Redevelopment: | N | | |
| Township: | 30 | Section: | 14 |
| Range: | R2 |
Location |
| Address: | 3231 SARATOGA RD LANGLEY, WA 98260 | Mapsco: | |
| Neighborhood: | Cycle 3 | Map ID: | 380 |
| Neighborhood CD: | 3 |
Owner |
| Name: | GRISLEY, FREDERICK L | Owner ID: | 120929 |
| Mailing Address: | CANDACE A LEVINE 3231 SARATOGA RD LANGLEY, WA 98260-8432 | % Ownership: | 100.0000000000% |
| | | Exemptions: | |
Taxes and Assessment Details
Values
| (+) Improvement Homesite Value: | + | $0 | |
| (+) Improvement Non-Homesite Value: | + | $340,458 | |
| (+) Land Homesite Value: | + | $0 | |
| (+) Land Non-Homesite Value: | + | $310,000 | |
| (+) Curr Use (HS): | + | $0 | $0 |
| (+) Curr Use (NHS): | + | $0 | $0 |
| | | -------------------------- | |
| (=) Market Value: | = | $650,458 | |
| (–) Productivity Loss: | – | $0 | |
| | | -------------------------- | |
| (=) Subtotal: | = | $650,458 | |
| (+) Senior Appraised Value: | + | $0 | |
| (+) Non-Senior Appraised Value: | + | $650,458 | |
| | | -------------------------- | |
| (=) Total Appraised Value: | = | $650,458 | |
| (–) Senior Exemption Loss: | – | $0 | |
| (–) Exemption Loss: | – | $0 | |
| | | -------------------------- | |
| (=) Taxable Value: | = | $650,458 | |
Taxing Jurisdiction
| Owner: | GRISLEY, FREDERICK L | | |
| % Ownership: | 100.0000000000% | | |
| Total Value: | $650,458 | | |
| Tax Area: | 712 - APPRAISER-S Whid Schl Dist, outside Langley, improved, greater than 1 acre |
| CF | Conservation Futures | 0.0316035091 | $650,458 | $650,458 | $20.56 | | |
| FIRE3 | Fire & Rescue Dist #3 S Whidbey GEN | 1.2004855531 | $650,458 | $650,458 | $780.87 | | |
| HOBOND | Hospital BOND | 0.1910887512 | $650,458 | $650,458 | $124.30 | | |
| HOGEN | Hospital GEN | 0.3902502903 | $650,458 | $650,458 | $253.84 | | |
| CE | County Current Expense | 0.3708482477 | $650,458 | $650,458 | $241.22 | | |
| CR | County Roads | 0.4584763726 | $650,458 | $650,458 | $298.22 | | |
| ISLANDEMS | Hospital GEN (EMS) | 0.5000000000 | $650,458 | $650,458 | $325.23 | | |
| LIB | Library Sno-Isle GEN | 0.3153421757 | $650,458 | $650,458 | $205.12 | | |
| PORTWHID | Port of S Whidbey GEN | 0.1094540357 | $650,458 | $650,458 | $71.20 | | |
| SCH206BOND | School 206 BOND | 0.3161759235 | $650,458 | $650,458 | $205.66 | | |
| SCH206MO | School 206 Enrichment | 0.4547169547 | $650,458 | $650,458 | $295.77 | | |
| ST | State School | 1.3035497053 | $650,458 | $650,458 | $847.90 | | |
| ST2 | State School Part 2 | 0.8169543533 | $650,458 | $650,458 | $531.39 | | |
| SWHIDPRBD | P & R S Whidbey BOND | 0.0152817568 | $650,458 | $650,458 | $9.94 | | |
| SWHIDPRBD2 | P & R S Whidbey BOND2 | 0.0138911264 | $650,458 | $650,458 | $9.04 | | |
| SWHIDPRMT | P & R S Whidbey GEN | 0.2053334452 | $650,458 | $650,458 | $133.56 | | |
| | Total Tax Rate: | 6.6934522006 | | | | | |
| | | | | Taxes w/Current Exemptions: | $4,353.82 | | |
| | | | | Taxes w/o Exemptions: | $4,353.82 | | |
Improvement / Building
| Improvement #1: | RESIDENTIAL | State Code: | Y | 3439.1 sqft | Value: | $340,458 |
| Bathrooms: | 2 | Bedrooms: | 3 | | Ceiling: | DRYWALL PAINTED | Cooling: | HEAT PUMP/CONV/V | | Exterior Wall/Cover: | WOOD SIDING | Floor Covering: | CARPET/VINYL 80-20 | | Floor Structure: | WOOD W/SUBFLOOR | Foundation: | CONCRETE | | Interior Finish: | DRYWALL PAINT | Plumbing Fixture Cnt: | 9 | | Roof Slope: | 4" IN 12" | Roof Structure/Cover: | CJ ASPHALT |
|
| | Type | Description | Class CD | Sub Class CD | Year Built | Area |
| | BAS | BASE/MAIN FLOOR | 3 | 0 | 1981 | 1687.1 |
| | DWN | DOWNSTAIRS LIVING AREA | 3 | 0 | 1981 | 387.6 |
| | AGR | ATTACHED GARAGE | 3 | 0 | 1981 | 480.9 |
| | UPS | UPPER STORY | 3 | 0 | 1981 | 1364.4 |
| | OWP | OPEN WOOD PORCH W/STEPS | 3 | 0 | 1981 | 143.8 |
| | OWR | OPEN WOOD PORCH W/STEPS/ROOF | 3 | 0 | 1981 | 190.0 |
| | OWR | OPEN WOOD PORCH W/STEPS/ROOF | 3 | 0 | 1981 | 143.8 |
| | OWC | OPEN WOOD PORCH W/STEPS/ROOF/C | 3 | 0 | 1981 | 40.0 |
Sketch
Property Image
Land
| 1 | 18 | AC (02.01-03.00) | 0.0000 | 0.00 | 0.00 | 0.00 | 1.00 | $310,000 | $0 |
Roll Value History
| 2026 | N/A | N/A | N/A | N/A | N/A |
| 2025 | $340,458 | $310,000 | $0 | $650,458 | $650,458 |
| 2024 | $345,676 | $290,000 | $0 | $635,676 | $635,676 |
| 2023 | $350,894 | $330,000 | $0 | $680,894 | $680,894 |
| 2022 | $318,151 | $270,000 | $0 | $588,151 | $588,151 |
| 2021 | $281,858 | $190,000 | $0 | $471,858 | $471,858 |
| 2020 | $276,384 | $165,000 | $0 | $441,384 | $441,384 |
| 2019 | $224,858 | $200,000 | $0 | $424,858 | $424,858 |
| 2018 | $225,648 | $170,000 | $0 | $395,648 | $395,648 |
| 2017 | $227,164 | $150,000 | $0 | $377,164 | $377,164 |
| 2016 | $230,319 | $125,000 | $0 | $355,319 | $355,319 |
| 2015 | $233,475 | $100,000 | $0 | $333,475 | $333,475 |
| 2014 | $236,632 | $85,000 | $0 | $321,632 | $321,632 |
| 2013 | $226,761 | $95,000 | $0 | $321,761 | $321,761 |
| 2012 | $230,034 | $103,275 | $0 | $333,309 | $333,309 |
| 2011 | $233,306 | $121,500 | $0 | $354,806 | $354,806 |
| 2010 | $245,417 | $135,000 | $0 | $380,417 | $380,417 |
| 2009 | $233,367 | $143,032 | $0 | $376,399 | $376,399 |
| 2008 | $259,846 | $120,000 | $0 | $379,846 | $379,846 |
| 2007 | $259,398 | $120,000 | $0 | $379,398 | $379,398 |
Deed and Sales History
| 1 | 11/30/1998 | EZ | Easement | GRISLEY, FREDERICK L | SUMIDA, STANFORD E | | | $4,000.00 | 84801 | 98026346 |
| 2 | 07/10/1998 | WD | Warranty Deed | SUMIDA, STAN E/SUMIKO | GRISLEY, FREDERICK L | | | $262,000.00 | 82926 | 98018655 |
| 3 | 01/01/1998 | QCD | Quit Claim Deed | SUMIDA, STAN | SUMIDA, STAN E | | | $0.00 | 80422 | 98002119 |
| 4 | 01/01/1998 | QCD | Quit Claim Deed | SUMIDA, STAN | SUMIDA, STAN E/SUMIKO | | | $0.00 | 80422 | 98002119 |
| 5 | 09/01/1992 | OTHER | Other - Misc. Documents | SUMIDA, STAN | SUMIDA, STAN | | | $0.00 | 65060 | 92017107 |
| 6 | 09/01/1992 | BLA | DNU - Boundary Line Adjustment | SUMIDA, STANFORD E | SUMIDA, STAN | | | $0.00 | 65060 | 99007904 |
| 7 | 01/01/1900 | OTHER | Other - Misc. Documents | Unknown | SUMIDA, STAN | | | $0.00 | 0 | 0 |
| 8 | 01/01/1900 | OTHER | Other - Misc. Documents | SUMIDA, STAN E | GRISLEY, FREDERICK L | | | $0.00 | 82926 | 98015362 |
Payout Agreement
| No payout information available.. |