Property
Account |
| Property ID: | 67563 | Abbreviated Legal Description: | 10 - IN GL 4: N 5AC OF S10 AC EX RDS & TGW TIDELANDS |
| Geographic ID: | R23027-423-0660 | Agent Code: | |
| Type: | Real | | |
| Tax Area: | 312 - APPRAISER-Cpvl Schl Dist, outside Cpvl, improved, greater than 1 acre | Land Use Code | 11 |
| Open Space: | N | DFL | N |
| Historic Property: | N | Remodel Property: | N |
| Multi-Family Redevelopment: | N | | |
| Township: | 30 | Section: | 27 |
| Range: | R2 |
Location |
| Address: | 4081 RESORT RD GREENBANK, WA 98253 | Mapsco: | |
| Neighborhood: | Cycle 3 | Map ID: | 420 |
| Neighborhood CD: | 3 |
Owner |
| Name: | STARR, ALAN | Owner ID: | 15699 |
| Mailing Address: | 4081 RESORT RD GREENBANK, WA 98253-9734 | % Ownership: | 100.0000000000% |
| | | Exemptions: | |
Taxes and Assessment Details
Values
| (+) Improvement Homesite Value: | + | $0 | |
| (+) Improvement Non-Homesite Value: | + | $376,896 | |
| (+) Land Homesite Value: | + | $0 | |
| (+) Land Non-Homesite Value: | + | $776,650 | |
| (+) Curr Use (HS): | + | $0 | $0 |
| (+) Curr Use (NHS): | + | $0 | $0 |
| | | -------------------------- | |
| (=) Market Value: | = | $1,153,546 | |
| (–) Productivity Loss: | – | $0 | |
| | | -------------------------- | |
| (=) Subtotal: | = | $1,153,546 | |
| (+) Senior Appraised Value: | + | $0 | |
| (+) Non-Senior Appraised Value: | + | $1,153,546 | |
| | | -------------------------- | |
| (=) Total Appraised Value: | = | $1,153,546 | |
| (–) Senior Exemption Loss: | – | $0 | |
| (–) Exemption Loss: | – | $0 | |
| | | -------------------------- | |
| (=) Taxable Value: | = | $1,153,546 | |
Taxing Jurisdiction
| Owner: | STARR, ALAN | | |
| % Ownership: | 100.0000000000% | | |
| Total Value: | $1,153,546 | | |
| Tax Area: | 312 - APPRAISER-Cpvl Schl Dist, outside Cpvl, improved, greater than 1 acre |
| CF | Conservation Futures | 0.0316035091 | $1,153,546 | $1,153,546 | $36.46 | | |
| CEM2 | Cemetery #2 | 0.0095056933 | $1,153,546 | $1,153,546 | $10.97 | | |
| FIRE5 | Fire & Rescue Dist #5 C Whidbey GEN | 1.2008080668 | $1,153,546 | $1,153,546 | $1,385.19 | | |
| FIRE5BOND | Fire & Rescue Dist #5 C Whidbey BOND | 0.1400090713 | $1,153,546 | $1,153,546 | $161.51 | | |
| HOBOND | Hospital BOND | 0.1910887512 | $1,153,546 | $1,153,546 | $220.43 | | |
| HOGEN | Hospital GEN | 0.3902502903 | $1,153,546 | $1,153,546 | $450.17 | | |
| CE | County Current Expense | 0.3708482477 | $1,153,546 | $1,153,546 | $427.79 | | |
| CR | County Roads | 0.4584763726 | $1,153,546 | $1,153,546 | $528.87 | | |
| ISLANDEMS | Hospital GEN (EMS) | 0.5000000000 | $1,153,546 | $1,153,546 | $576.77 | | |
| LIB | Library Sno-Isle GEN | 0.3153421757 | $1,153,546 | $1,153,546 | $363.76 | | |
| LIBCAP | Library Sno-Isle BOND (Cap Fac Imp Area) | 0.0543427938 | $1,153,546 | $1,153,546 | $62.69 | | |
| POCOUP | Port of Coupeville GEN | 0.1093371703 | $1,153,546 | $1,153,546 | $126.13 | | |
| POCOUPIDD | Port of Coupeville IDD | 0.3409740022 | $1,153,546 | $1,153,546 | $393.33 | | |
| COUPSDTECH | School 204 CP (TECH) | 0.7545480007 | $1,153,546 | $1,153,546 | $870.41 | | |
| SCH204MO | School 204 Enrichment | 0.6716186034 | $1,153,546 | $1,153,546 | $774.74 | | |
| ST | State School | 1.3035497053 | $1,153,546 | $1,153,546 | $1,503.70 | | |
| ST2 | State School Part 2 | 0.8169543533 | $1,153,546 | $1,153,546 | $942.39 | | |
| | Total Tax Rate: | 7.6592568070 | | | | | |
| | | | | Taxes w/Current Exemptions: | $8,835.31 | | |
| | | | | Taxes w/o Exemptions: | $8,835.31 | | |
Improvement / Building
| Improvement #1: | RESIDENTIAL | State Code: | Y | 1775.2 sqft | Value: | $376,896 |
| Bathrooms: | 2 | Bedrooms: | 3 | | Ceiling: | BEAM PAINTED | Exterior Wall/Cover: | PLY/HARDBOARD T-111 | | Floor Covering: | HARDWOOD/CARP 20-80 | Floor Structure: | SLAB ABOVE GRADE | | Foundation: | SLAB | Heating: | RADIANT FLOOR | | Interior Finish: | DRYWALL PAINT | Plumbing Fixture Cnt: | 10 | | Roof Slope: | 4" IN 12" | Roof Structure/Cover: | CJ ASPHALT |
|
| | Type | Description | Class CD | Sub Class CD | Year Built | Area |
| | BAS | BASE/MAIN FLOOR | 3 | 0 | 1988 | 1775.2 |
| | OP1 | OPEN PORCH SLAB | 3 | 0 | 1988 | 1164.2 |
| | OP4 | OPEN PORCH W/CEILING-ROOF | 3 | 0 | 1988 | 35.0 |
| | AGR | ATTACHED GARAGE | 3 | 0 | 1988 | 576.0 |
| | DGR | DETACHED GARAGE | 3 | 0 | 1988 | 1296.0 |
| | OCP | OPEN CARPORT | 3 | 0 | 1988 | 306.0 |
Sketch
Property Image
Land
| 1 | HB | HIGH BLUFF | 5.0000 | 217800.00 | 165.00 | 0.00 | 1.00 | $775,000 | $0 |
| 2 | 55 | TIDES | 0.0000 | 0.00 | 165.00 | 0.00 | 1.00 | $1,650 | $0 |
Roll Value History
| 2026 | N/A | N/A | N/A | N/A | N/A |
| 2025 | $376,896 | $776,650 | $0 | $1,153,546 | $1,153,546 |
| 2024 | $374,741 | $726,650 | $0 | $1,101,391 | $1,101,391 |
| 2023 | $379,354 | $676,650 | $0 | $1,056,004 | $1,056,004 |
| 2022 | $347,676 | $676,650 | $0 | $1,024,326 | $1,024,326 |
| 2021 | $305,952 | $551,650 | $0 | $857,602 | $857,602 |
| 2020 | $298,167 | $501,650 | $0 | $799,817 | $799,817 |
| 2019 | $195,396 | $601,650 | $0 | $797,046 | $797,046 |
| 2018 | $195,938 | $501,650 | $0 | $697,588 | $697,588 |
| 2017 | $196,996 | $501,650 | $0 | $698,646 | $698,646 |
| 2016 | $199,165 | $501,650 | $0 | $700,815 | $700,815 |
| 2015 | $201,333 | $501,650 | $0 | $702,983 | $702,983 |
| 2014 | $203,502 | $501,650 | $0 | $705,152 | $705,152 |
| 2013 | $238,528 | $453,692 | $0 | $692,220 | $692,220 |
| 2012 | $240,752 | $453,692 | $0 | $694,444 | $694,444 |
| 2011 | $242,976 | $453,692 | $0 | $696,668 | $696,668 |
| 2010 | $252,614 | $453,692 | $0 | $706,306 | $706,306 |
| 2009 | $261,215 | $604,372 | $0 | $865,587 | $865,587 |
| 2008 | $264,293 | $604,372 | $0 | $868,665 | $868,665 |
| 2007 | $259,570 | $477,332 | $0 | $736,902 | $736,902 |
Deed and Sales History
| 1 | 12/01/1986 | WD | Warranty Deed | HARGREAVES, RICHARD E | STARR, ALAN E | | | $50,000.00 | 63574 | 86016124 |
| 2 | 09/01/1985 | REC | Real Estate Contract | S, & A | HARGREAVES, RICHARD E | | | $90,300.00 | 52598 | 85010265 |
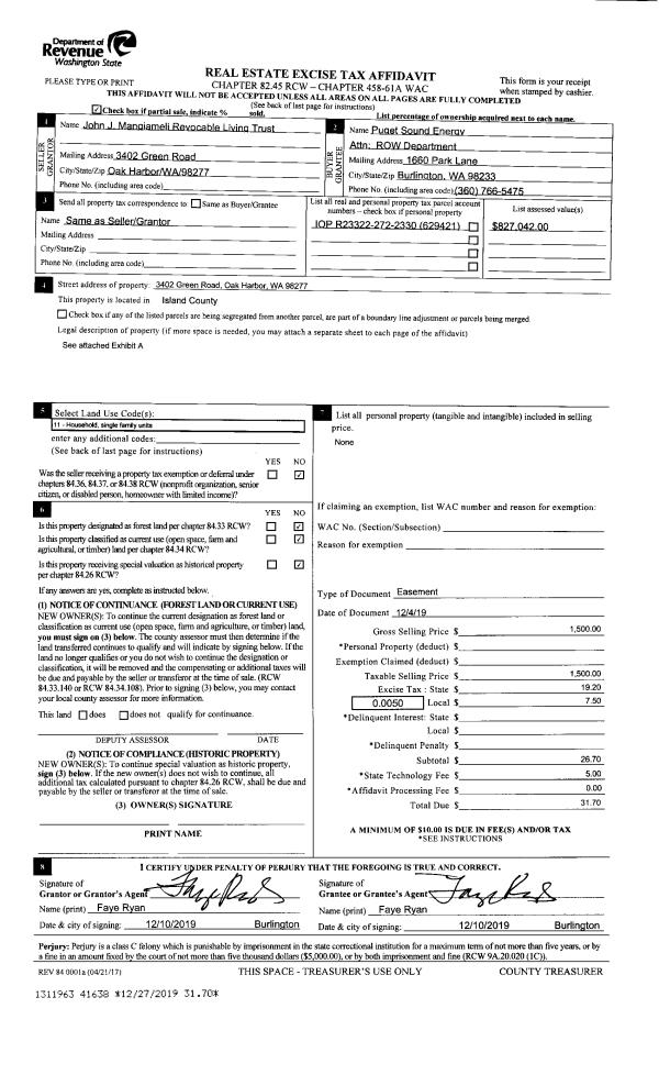
| 3 | 05/01/1982 | EZ | Easement | KING, ROBERT A | S, & A | | | $1.00 | 21248 | 396714 |
| 4 | 01/01/1981 | EZ | Easement | KING, ROBERT A | KING, ROBERT A | | | $0.00 | 10134 | 378442 |
| 5 | 01/01/1979 | OTHER | Other - Misc. Documents | Unknown | KING, ROBERT A | | | $156,000.00 | 90170 | 345870 |
Payout Agreement
| No payout information available.. |