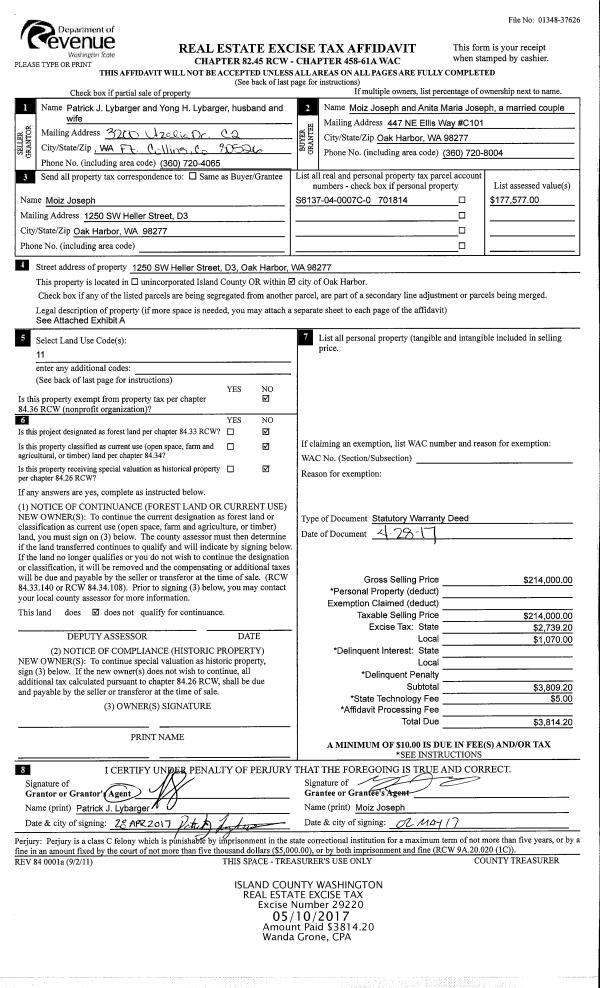
Property
Account |
| Property ID: | 675969 | Abbreviated Legal Description: | N/2 S/2 NW SW SUB TO EZS SUB R/W CULTUS BAY RD FR 170-0750 |
| Geographic ID: | R32935-183-0750 | Agent Code: | |
| Type: | Real | | |
| Tax Area: | 712 - APPRAISER-S Whid Schl Dist, outside Langley, improved, greater than 1 acre | Land Use Code | 11 |
| Open Space: | N | DFL | N |
| Historic Property: | N | Remodel Property: | N |
| Multi-Family Redevelopment: | N | | |
| Township: | 29 | Section: | 35 |
| Range: | R3 |
Location |
| Address: | 7065 CULTUS BAY RD CLINTON, WA 98236 | Mapsco: | |
| Neighborhood: | Cycle 4 | Map ID: | 842 |
| Neighborhood CD: | 4 |
Owner |
| Name: | MONELL, PEGGY | Owner ID: | 280614 |
| Mailing Address: | 1366 AUPEPACHE ST KAILUA, HI 96734 | % Ownership: | 100.0000000000% |
| | | Exemptions: | |
Taxes and Assessment Details
Values
| (+) Improvement Homesite Value: | + | $0 | |
| (+) Improvement Non-Homesite Value: | + | $421,842 | |
| (+) Land Homesite Value: | + | $0 | |
| (+) Land Non-Homesite Value: | + | $400,000 | |
| (+) Curr Use (HS): | + | $0 | $0 |
| (+) Curr Use (NHS): | + | $0 | $0 |
| | | -------------------------- | |
| (=) Market Value: | = | $821,842 | |
| (–) Productivity Loss: | – | $0 | |
| | | -------------------------- | |
| (=) Subtotal: | = | $821,842 | |
| (+) Senior Appraised Value: | + | $0 | |
| (+) Non-Senior Appraised Value: | + | $821,842 | |
| | | -------------------------- | |
| (=) Total Appraised Value: | = | $821,842 | |
| (–) Senior Exemption Loss: | – | $0 | |
| (–) Exemption Loss: | – | $0 | |
| | | -------------------------- | |
| (=) Taxable Value: | = | $821,842 | |
Taxing Jurisdiction
| Owner: | MONELL, PEGGY | | |
| % Ownership: | 100.0000000000% | | |
| Total Value: | $821,842 | | |
| Tax Area: | 712 - APPRAISER-S Whid Schl Dist, outside Langley, improved, greater than 1 acre |
| CF | Conservation Futures | 0.0316035091 | $821,842 | $821,842 | $25.97 | | |
| FIRE3 | Fire & Rescue Dist #3 S Whidbey GEN | 1.2004855531 | $821,842 | $821,842 | $986.61 | | |
| HOBOND | Hospital BOND | 0.1910887512 | $821,842 | $821,842 | $157.04 | | |
| HOGEN | Hospital GEN | 0.3902502903 | $821,842 | $821,842 | $320.72 | | |
| CE | County Current Expense | 0.3708482477 | $821,842 | $821,842 | $304.78 | | |
| CR | County Roads | 0.4584763726 | $821,842 | $821,842 | $376.80 | | |
| ISLANDEMS | Hospital GEN (EMS) | 0.5000000000 | $821,842 | $821,842 | $410.92 | | |
| LIB | Library Sno-Isle GEN | 0.3153421757 | $821,842 | $821,842 | $259.16 | | |
| PORTWHID | Port of S Whidbey GEN | 0.1094540357 | $821,842 | $821,842 | $89.95 | | |
| SCH206BOND | School 206 BOND | 0.3161759235 | $821,842 | $821,842 | $259.85 | | |
| SCH206MO | School 206 Enrichment | 0.4547169547 | $821,842 | $821,842 | $373.71 | | |
| ST | State School | 1.3035497053 | $821,842 | $821,842 | $1,071.31 | | |
| ST2 | State School Part 2 | 0.8169543533 | $821,842 | $821,842 | $671.41 | | |
| SWHIDPRBD | P & R S Whidbey BOND | 0.0152817568 | $821,842 | $821,842 | $12.56 | | |
| SWHIDPRBD2 | P & R S Whidbey BOND2 | 0.0138911264 | $821,842 | $821,842 | $11.42 | | |
| SWHIDPRMT | P & R S Whidbey GEN | 0.2053334452 | $821,842 | $821,842 | $168.75 | | |
| | Total Tax Rate: | 6.6934522006 | | | | | |
| | | | | Taxes w/Current Exemptions: | $5,500.96 | | |
| | | | | Taxes w/o Exemptions: | $5,500.96 | | |
Improvement / Building
| Improvement #1: | RESIDENTIAL | State Code: | Y | 2462.1 sqft | Value: | $421,842 |
| Bathrooms: | 3 | Bedrooms: | 3 | | Ceiling: | DRYWALL PAINTED | Cooling: | HEAT PUMP/CONV/V | | Exterior Wall/Cover: | CEMENT FIBER | Floor Covering: | CARPET/VINYL 60-40 | | Floor Structure: | SLAB ON GRADE | Foundation: | SLAB | | Interior Finish: | DRYWALL PAINT | Plumbing Fixture Cnt: | 13 | | Roof Slope: | 4" IN 12" | Roof Structure/Cover: | CJ ASPHALT |
|
| | Type | Description | Class CD | Sub Class CD | Year Built | Area |
| | BAS | BASE/MAIN FLOOR | 3 | 0 | 2006 | 2462.1 |
| | OP4 | OPEN PORCH W/CEILING-ROOF | 3 | 0 | 2006 | 80.0 |
| | OP3 | OPEN PORCH W/ROOF | 3 | 0 | 2006 | 107.3 |
| | AGR | ATTACHED GARAGE | 3 | 0 | 2006 | 1344.0 |
| | OP3 | OPEN PORCH W/ROOF | 3 | 0 | 2006 | 112.0 |
Sketch
Property Image
Land
| 1 | 35 | AC (10.00-30.99) | 10.0000 | 435600.00 | 0.00 | 0.00 | 1.00 | $400,000 | $0 |
Roll Value History
| 2026 | N/A | N/A | N/A | N/A | N/A |
| 2025 | $421,842 | $400,000 | $0 | $821,842 | $821,842 |
| 2024 | $425,387 | $360,000 | $0 | $785,387 | $785,387 |
| 2023 | $429,168 | $360,000 | $0 | $789,168 | $789,168 |
| 2022 | $391,613 | $350,000 | $0 | $741,613 | $741,613 |
| 2021 | $343,328 | $250,000 | $0 | $593,328 | $593,328 |
| 2020 | $347,841 | $250,000 | $0 | $597,841 | $597,841 |
| 2019 | $248,811 | $300,000 | $0 | $548,811 | $548,811 |
| 2018 | $249,514 | $245,000 | $0 | $494,514 | $494,514 |
| 2017 | $245,445 | $165,000 | $0 | $410,445 | $410,445 |
| 2016 | $248,193 | $165,000 | $0 | $413,193 | $413,193 |
| 2015 | $250,943 | $165,000 | $0 | $415,943 | $415,943 |
| 2014 | $250,196 | $155,000 | $0 | $405,196 | $405,196 |
| 2013 | $260,537 | $125,000 | $0 | $385,537 | $385,537 |
| 2012 | $263,288 | $150,000 | $0 | $413,288 | $413,288 |
| 2011 | $266,036 | $150,000 | $0 | $416,036 | $416,036 |
| 2010 | $274,232 | $150,000 | $0 | $424,232 | $424,232 |
| 2009 | $285,438 | $220,000 | $0 | $505,438 | $505,438 |
| 2008 | $317,907 | $174,000 | $0 | $491,907 | $491,907 |
| 2007 | $23,301 | $174,000 | $0 | $197,301 | $197,301 |
Deed and Sales History
| 1 | 06/27/2017 | WD | Warranty Deed | WILMOTH, LADD | MONELL, PEGGY | | | $523,000.00 | 29961 | 4425159 |
| 2 | 08/18/2004 | WD | Warranty Deed | OBLAS, VICTOR & | WILMOTH, LADD | | | $105,000.00 | 43845 | 4110408 |
| 3 | 05/01/1994 | WD | Warranty Deed | B, L F | OBLAS, VICTOR & | | | $60,000.00 | 42325 | 94013196 |
| 4 | 07/01/1992 | OTHER | Other - Misc. Documents | Unknown | B, L F | | | $0.00 | 64959 | 0 |
Payout Agreement
| No payout information available.. |