Property
Account |
| Property ID: | 676209 | Abbreviated Legal Description: | GL 1 & GL 2 FR 120-2480 |
| Geographic ID: | R23136-160-2180 | Agent Code: | |
| Type: | Real | | |
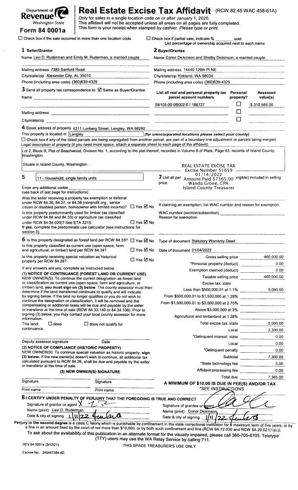
| Tax Area: | 542 - APPRAISER-Stan/Cam Schl Dist, Special Dist, improved, greater than 1 acre | Land Use Code | 76 |
| Open Space: | N | DFL | N |
| Historic Property: | N | Remodel Property: | N |
| Multi-Family Redevelopment: | N | | |
| Township: | 31 | Section: | 36 |
| Range: | R2 |
Location |
| Address: | 2269 LOWELL POINT RD CAMANO ISLAND, WA 98282 | Mapsco: | |
| Neighborhood: | 56cRR-wmt view rd | Map ID: | 533 |
| Neighborhood CD: | 56cRRwmtvw |
Owner |
| Name: | WASHINGTON STATE PARKS & | Owner ID: | 82443 |
| Mailing Address: | RECREATION COMMISSION NORTHWEST REGION 220 N WALNUT ST BURLINGTON, WA 98233 | % Ownership: | 100.0000000000% |
| | | Exemptions: | EX |
Taxes and Assessment Details
Values
| (+) Improvement Homesite Value: | + | $0 | |
| (+) Improvement Non-Homesite Value: | + | $449,995 | |
| (+) Land Homesite Value: | + | $0 | |
| (+) Land Non-Homesite Value: | + | $9,170,000 | |
| (+) Curr Use (HS): | + | $0 | $0 |
| (+) Curr Use (NHS): | + | $0 | $0 |
| | | -------------------------- | |
| (=) Market Value: | = | $9,619,995 | |
| (–) Productivity Loss: | – | $0 | |
| | | -------------------------- | |
| (=) Subtotal: | = | $9,619,995 | |
| (+) Senior Appraised Value: | + | $0 | |
| (+) Non-Senior Appraised Value: | + | $9,619,995 | |
| | | -------------------------- | |
| (=) Total Appraised Value: | = | $9,619,995 | |
| (–) Senior Exemption Loss: | – | $0 | |
| (–) Exemption Loss: | – | $9,619,995 | |
| | | -------------------------- | |
| (=) Taxable Value: | = | $0 | |
Taxing Jurisdiction
| Owner: | WASHINGTON STATE PARKS & | | |
| % Ownership: | 100.0000000000% | | |
| Total Value: | $9,619,995 | | |
| Tax Area: | 542 - APPRAISER-Stan/Cam Schl Dist, Special Dist, improved, greater than 1 acre |
| CF | Conservation Futures | 0.0316035091 | $9,619,995 | $0 | $0.00 | | |
| EMS1 | Fire & Rescue Dist #1 Camano GEN (EMS) | 0.3677864386 | $9,619,995 | $0 | $0.00 | | |
| FIRE1 | Fire & Rescue Dist #1 Camano GEN | 1.2502910536 | $9,619,995 | $0 | $0.00 | | |
| FIRE1BOND | Fire & Rescue Dist #1 Camano BOND | 0.1570001679 | $9,619,995 | $0 | $0.00 | | |
| CE | County Current Expense | 0.3708482477 | $9,619,995 | $0 | $0.00 | | |
| CR | County Roads | 0.4584763726 | $9,619,995 | $0 | $0.00 | | |
| LCIB | Library Sno-Isle BOND (Camano Island) | 0.0396325772 | $9,619,995 | $0 | $0.00 | | |
| LIB | Library Sno-Isle GEN | 0.3153421757 | $9,619,995 | $0 | $0.00 | | |
| SCH205_401 | School 205-401 Enrichment | 1.2698420524 | $9,619,995 | $0 | $0.00 | | |
| SCH205BOND | School 205-401 BOND | 0.9396497583 | $9,619,995 | $0 | $0.00 | | |
| ST | State School | 1.3035497053 | $9,619,995 | $0 | $0.00 | | |
| ST2 | State School Part 2 | 0.8169543533 | $9,619,995 | $0 | $0.00 | | |
| | Total Tax Rate: | 7.3209764117 | | | | | |
| | | | | Taxes w/Current Exemptions: | $0.00 | | |
| | | | | Taxes w/o Exemptions: | $70,427.76 | | |
Improvement / Building
| Improvement #1: | COMMERCIAL | State Code: | F1 | 216.0 sqft | Value: | $164,753 |
| Bathrooms: | 1 | Bedrooms: | 0 | | Ceiling: | DRYWALL PAINTED | Exterior Wall/Cover: | CEMENT FIBER | | Floor Covering: | CARPET 100% | Floor Structure: | CONCRETE ON GROUND | | Foundation: | SLAB | Heating: | BASEBOARD ELECTRIC | | Interior Finish: | GOVERNMENT | Plumbing Fixture Cnt: | 3 | | Roof Structure/Cover: | COMP OPEN WOOD |   |   |
|
| | Type | Description | Class CD | Sub Class CD | Year Built | Area |
| | BAS | BASE/MAIN FLOOR | 3 | 0 | 1985 | 216.0 |
| | OP4 | OPEN PORCH W/CEILING-ROOF | 3 | 0 | 1985 | 65.0 |
| | OP4 | OPEN PORCH W/CEILING-ROOF | 3 | 0 | 1985 | 65.0 |
| | CPD | OPEN CARPORT DIRT FLOOR | 3 | 0 | 1985 | 435.0 |
| | oEQU | EQUIP SHED | 3 | 0 | 1985 | 1752.0 |
| | oPOL | POLE BARN | 3 | 0 | 1985 | 576.0 |
| | AGR | ATTACHED GARAGE | 3 | 0 | 1985 | 1524.0 |
| | oWT3 | 30K GALLON TANK | 3 | 0 | 1985 | 314.2 |
| Improvement #2: | RESIDENTIAL/COMMERCIAL | State Code: | F1 | 1300.0 sqft | Value: | $148,979 |
| Bathrooms: | 2 | Bedrooms: | 0 | | Ceiling: | DRYWALL PAINTED | Exterior Wall/Cover: | WOOD SIDING | | Floor Covering: | CARPET/VINYL 60-40 | Floor Structure: | WOOD W/SUBFLOOR | | Foundation: | CONCRETE | Heating: | FHA ELECTRIC | | Interior Finish: | DRYWALL PAINT | Plumbing Fixture Cnt: | 9 | | Roof Slope: | 5" IN 12" | Roof Structure/Cover: | CJ ASPHALT |
|
| | Type | Description | Class CD | Sub Class CD | Year Built | Area |
| | BAS | BASE/MAIN FLOOR | 3 | 0 | 1976 | 1300.0 |
| | AGR | ATTACHED GARAGE | 3 | 0 | 1976 | 364.0 |
| | OWP | OPEN WOOD PORCH W/STEPS | 3 | 0 | 1976 | 294.0 |
| Improvement #3: | RESIDENTIAL/COMMERCIAL | State Code: | F1 | 915.0 sqft | Value: | $136,263 |
| Bathrooms: | 2 | Bedrooms: | 0 | | Ceiling: | TONGUE & GROOVE | Exterior Wall/Cover: | WOOD SIDING | | Floor Covering: | VINYL 100% | Floor Structure: | WOOD W/SUBFLOOR | | Foundation: | CONCRETE | Heating: | FHA OIL | | Interior Finish: | DRYWALL PAINT | Plumbing Fixture Cnt: | 9 | | Roof Slope: | 3" IN 12" | Roof Structure/Cover: | BEAM ROLL COMPOSITION |
|
| | Type | Description | Class CD | Sub Class CD | Year Built | Area |
| | BAS | BASE/MAIN FLOOR | 2 | 0 | 1955 | 915.0 |
| | CPD | OPEN CARPORT DIRT FLOOR | 2 | 0 | 1955 | 192.4 |
| | UTY | STORAGE/UTILITY | 2 | 0 | 1955 | 96.0 |
| | DGR | DETACHED GARAGE | 2 | 0 | 1955 | 1280.0 |
| | UTY | STORAGE/UTILITY | 2 | 0 | 1955 | 313.5 |
| | CPD | OPEN CARPORT DIRT FLOOR | 2 | 0 | 1955 | 294.7 |
Sketch
Property Image
Land
| 1 | MB | MEDIUM BANK | 0.0000 | 0.00 | 1450.00 | 0.00 | 1.00 | $2,610,000 | $0 |
| 2 | HB | HIGH BLUFF | 0.0000 | 0.00 | 2250.00 | 0.00 | 1.00 | $5,400,000 | $0 |
| 3 | LB | LOW BANK | 0.0000 | 0.00 | 240.00 | 0.00 | 1.00 | $800,000 | $0 |
| 4 | 37 | AC (31.00-+) | 0.0000 | 0.00 | 0.00 | 0.00 | 1.00 | $360,000 | $0 |
Roll Value History
| 2026 | N/A | N/A | N/A | N/A | N/A |
| 2025 | $449,995 | $9,170,000 | $0 | $9,619,995 | $0 |
| 2024 | $465,504 | $9,170,000 | $0 | $9,635,504 | $0 |
| 2023 | $471,795 | $9,170,000 | $0 | $9,641,795 | $0 |
| 2022 | $434,810 | $9,170,000 | $0 | $9,604,810 | $0 |
| 2021 | $478,517 | $7,647,000 | $0 | $8,125,517 | $0 |
| 2020 | $472,923 | $7,647,000 | $0 | $8,119,923 | $0 |
| 2019 | $400,392 | $5,205,000 | $0 | $5,605,392 | $0 |
| 2018 | $401,146 | $5,205,000 | $0 | $5,606,146 | $0 |
| 2017 | $402,654 | $5,491,296 | $0 | $5,893,950 | $0 |
| 2016 | $400,443 | $5,491,296 | $0 | $5,891,739 | $0 |
| 2015 | $378,054 | $5,491,296 | $0 | $5,869,350 | $0 |
| 2014 | $381,037 | $5,491,296 | $0 | $5,872,333 | $0 |
| 2013 | $384,020 | $5,491,296 | $0 | $5,875,316 | $0 |
| 2012 | $387,001 | $5,491,296 | $0 | $5,878,297 | $0 |
| 2011 | $384,239 | $5,491,296 | $0 | $5,875,535 | $0 |
| 2010 | $406,396 | $5,491,296 | $0 | $5,897,692 | $0 |
| 2009 | $413,829 | $5,498,017 | $0 | $5,911,846 | $0 |
| 2008 | $428,892 | $5,516,496 | $0 | $5,945,388 | $0 |
| 2007 | $440,116 | $5,516,496 | $0 | $5,956,612 | $0 |
Deed and Sales History
| 1 | 10/01/1992 | QCD | Quit Claim Deed | WASHINGTON, STATE P | WASHINGTON, STATE P | | | $0.00 | 24306 | 92021063 |
| 2 | 01/01/1900 | OTHER | Other - Misc. Documents | Unknown | WASHINGTON, STATE P | | | $0.00 | 62134 | 86009928 |
Payout Agreement
| No payout information available.. |