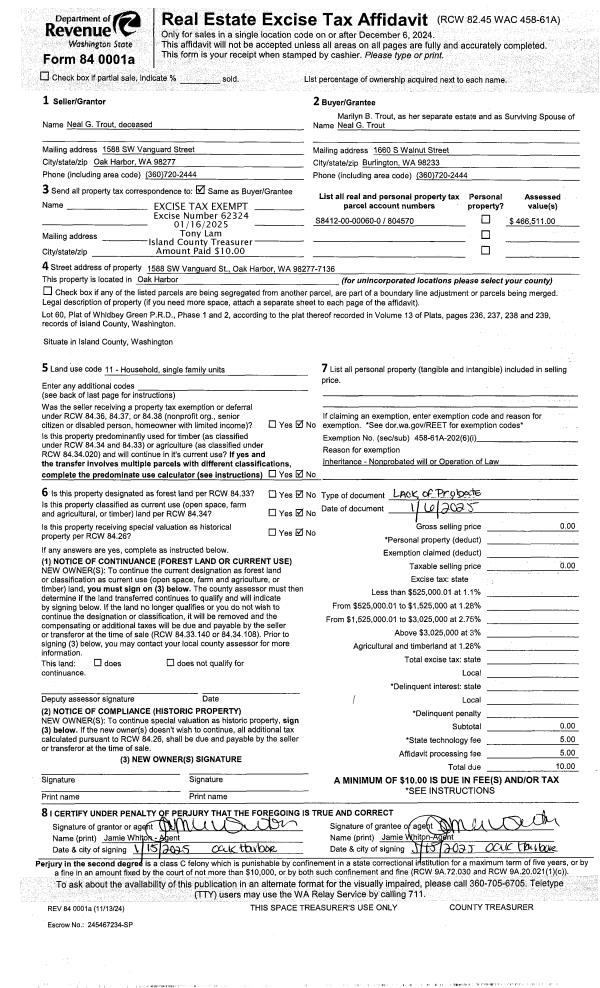
Property
Account |
| Property ID: | 676307 | Abbreviated Legal Description: | LOT 1 SP 15-92.32933.503-1810 V2 SP P383 AF#92021064 |
| Geographic ID: | R32933-505-1650 | Agent Code: | |
| Type: | Real | | |
| Tax Area: | 712 - APPRAISER-S Whid Schl Dist, outside Langley, improved, greater than 1 acre | Land Use Code | 11 |
| Open Space: | N | DFL | N |
| Historic Property: | N | Remodel Property: | N |
| Multi-Family Redevelopment: | N | | |
| Township: | 29 | Section: | 33 |
| Range: | R3 |
Location |
| Address: | 3330 SOLITUDE PLACE CLINTON, WA 98236 | Mapsco: | |
| Neighborhood: | Cycle 4 | Map ID: | 836 |
| Neighborhood CD: | 4 |
Owner |
| Name: | SWANSON, HERBERT K | Owner ID: | 265512 |
| Mailing Address: | 217 28TH AVE SEATTLE, WA 98122 | % Ownership: | 100.0000000000% |
| | | Exemptions: | |
Taxes and Assessment Details
Values
| (+) Improvement Homesite Value: | + | $0 | |
| (+) Improvement Non-Homesite Value: | + | $227,869 | |
| (+) Land Homesite Value: | + | $0 | |
| (+) Land Non-Homesite Value: | + | $370,000 | |
| (+) Curr Use (HS): | + | $0 | $0 |
| (+) Curr Use (NHS): | + | $0 | $0 |
| | | -------------------------- | |
| (=) Market Value: | = | $597,869 | |
| (–) Productivity Loss: | – | $0 | |
| | | -------------------------- | |
| (=) Subtotal: | = | $597,869 | |
| (+) Senior Appraised Value: | + | $0 | |
| (+) Non-Senior Appraised Value: | + | $597,869 | |
| | | -------------------------- | |
| (=) Total Appraised Value: | = | $597,869 | |
| (–) Senior Exemption Loss: | – | $0 | |
| (–) Exemption Loss: | – | $0 | |
| | | -------------------------- | |
| (=) Taxable Value: | = | $597,869 | |
Taxing Jurisdiction
| Owner: | SWANSON, HERBERT K | | |
| % Ownership: | 100.0000000000% | | |
| Total Value: | $597,869 | | |
| Tax Area: | 712 - APPRAISER-S Whid Schl Dist, outside Langley, improved, greater than 1 acre |
| CF | Conservation Futures | 0.0316035091 | $597,869 | $597,869 | $18.89 | | |
| FIRE3 | Fire & Rescue Dist #3 S Whidbey GEN | 1.2004855531 | $597,869 | $597,869 | $717.73 | | |
| HOBOND | Hospital BOND | 0.1910887512 | $597,869 | $597,869 | $114.25 | | |
| HOGEN | Hospital GEN | 0.3902502903 | $597,869 | $597,869 | $233.32 | | |
| CE | County Current Expense | 0.3708482477 | $597,869 | $597,869 | $221.72 | | |
| CR | County Roads | 0.4584763726 | $597,869 | $597,869 | $274.11 | | |
| ISLANDEMS | Hospital GEN (EMS) | 0.5000000000 | $597,869 | $597,869 | $298.93 | | |
| LIB | Library Sno-Isle GEN | 0.3153421757 | $597,869 | $597,869 | $188.53 | | |
| PORTWHID | Port of S Whidbey GEN | 0.1094540357 | $597,869 | $597,869 | $65.44 | | |
| SCH206BOND | School 206 BOND | 0.3161759235 | $597,869 | $597,869 | $189.03 | | |
| SCH206MO | School 206 Enrichment | 0.4547169547 | $597,869 | $597,869 | $271.86 | | |
| ST | State School | 1.3035497053 | $597,869 | $597,869 | $779.35 | | |
| ST2 | State School Part 2 | 0.8169543533 | $597,869 | $597,869 | $488.43 | | |
| SWHIDPRBD | P & R S Whidbey BOND | 0.0152817568 | $597,869 | $597,869 | $9.14 | | |
| SWHIDPRBD2 | P & R S Whidbey BOND2 | 0.0138911264 | $597,869 | $597,869 | $8.31 | | |
| SWHIDPRMT | P & R S Whidbey GEN | 0.2053334452 | $597,869 | $597,869 | $122.76 | | |
| | Total Tax Rate: | 6.6934522006 | | | | | |
| | | | | Taxes w/Current Exemptions: | $4,001.80 | | |
| | | | | Taxes w/o Exemptions: | $4,001.80 | | |
Improvement / Building
| Improvement #1: | RESIDENTIAL | State Code: | Y | 1930.7 sqft | Value: | $227,869 |
| Bathrooms: | 2 | Bedrooms: | 2 | | Ceiling: | TONGUE & GROOVE | Exterior Wall/Cover: | WOOD SIDING | | Floor Covering: | (NONE) | Floor Structure: | WOOD W/SUBFLOOR | | Foundation: | CONCRETE | Heating: | B/B HOT WATER-GAS | | Interior Finish: | DRYWALL PAINT | Plumbing Fixture Cnt: | 9 | | Roof Slope: | 10" IN 12" | Roof Structure/Cover: | CJ ALUMINIUM HEAVY |
|
| | Type | Description | Class CD | Sub Class CD | Year Built | Area |
| | BAS | BASE/MAIN FLOOR | 3 | 0 | 1988 | 1738.7 |
| | AGR | ATTACHED GARAGE | 3 | 0 | 1988 | 463.1 |
| | OWP | OPEN WOOD PORCH W/STEPS | 3 | 0 | 1988 | 266.7 |
| | OP4 | OPEN PORCH W/CEILING-ROOF | 3 | 0 | 1988 | 120.0 |
| | LOF | LOFT | 3 | 0 | 1988 | 192.0 |
Sketch
Property Image
Land
| 1 | 32 | AC (03.01-09.99) | 4.2900 | 0.00 | 0.00 | 0.00 | 1.00 | $370,000 | $0 |
Roll Value History
| 2026 | N/A | N/A | N/A | N/A | N/A |
| 2025 | $227,869 | $370,000 | $0 | $597,869 | $597,869 |
| 2024 | $231,256 | $350,000 | $0 | $581,256 | $581,256 |
| 2023 | $234,644 | $330,000 | $0 | $564,644 | $564,644 |
| 2022 | $215,550 | $280,000 | $0 | $495,550 | $495,550 |
| 2021 | $190,092 | $230,000 | $0 | $420,092 | $420,092 |
| 2020 | $146,711 | $190,000 | $0 | $336,711 | $336,711 |
| 2019 | $111,901 | $250,000 | $0 | $361,901 | $361,901 |
| 2018 | $112,284 | $210,000 | $0 | $322,284 | $322,284 |
| 2017 | $112,924 | $190,000 | $0 | $302,924 | $302,924 |
| 2016 | $114,449 | $135,000 | $0 | $249,449 | $249,449 |
| 2015 | $115,973 | $135,000 | $0 | $250,973 | $250,973 |
| 2014 | $116,826 | $110,000 | $0 | $226,826 | $226,826 |
| 2013 | $119,370 | $110,000 | $0 | $229,370 | $229,370 |
| 2012 | $120,971 | $145,860 | $0 | $266,831 | $72,982 |
| 2011 | $122,573 | $145,860 | $0 | $268,433 | $72,982 |
| 2010 | $124,635 | $145,860 | $0 | $270,495 | $72,982 |
| 2009 | $130,734 | $188,760 | $0 | $319,494 | $72,982 |
| 2008 | $144,397 | $194,500 | $0 | $338,897 | $72,982 |
| 2007 | $146,795 | $135,000 | $0 | $281,795 | $72,982 |
Deed and Sales History
| 1 | 03/20/2014 | WD | Warranty Deed | HOOVER, MARK MARTIN | SWANSON, HERBERT K | | | $195,000.00 | 14735 | 4357142 |
| 2 | 05/10/2013 | QCD | Quit Claim Deed | HOOVER TRUSTEE, BARBARA JESSIE | HOOVER, MARK MARTIN | | | $0.00 | 11346 | 4340009 |
| 3 | 07/23/1998 | WD | Warranty Deed | HOOVER, BARBARA J | HOOVER TRUSTEE, BARBARA JESSI | | | $185,000.00 | 82881 | 98015026 |
| 4 | 02/01/1997 | 5 | DNU - Marriage License/Name Change | MILCZAREK, GARY J | MILCZAREK, GARY J | | | $0.00 | 67231 | 97001391 |
| 5 | 06/01/1993 | WD | Warranty Deed | HOLM, ARNOLD L | MILCZAREK, GARY J | | | $141,500.00 | 32291 | 93011869 |
| 6 | 01/01/1900 | OTHER | Other - Misc. Documents | Unknown | HOLM, ARNOLD L | | | $0.00 | 71548 | 87007325 |
Payout Agreement
| No payout information available.. |