Property
Account |
| Property ID: | 676496 | Abbreviated Legal Description: | LOT 4 L-SP 90-3.33034.206-0650 V2 SP P386-8 AF#92022431 TGW & SUB EZ AF#95016503 |
| Geographic ID: | R33034-188-0600 | Agent Code: | |
| Type: | Real | | |
| Tax Area: | 700 - APPRAISER-S Whid Schl Dist, in town of Langley | Land Use Code | 11 |
| Open Space: | N | DFL | N |
| Historic Property: | N | Remodel Property: | N |
| Multi-Family Redevelopment: | N | | |
| Township: | 30 | Section: | 34 |
| Range: | R3 |
Location |
| Address: | 96 SARATOGA CREEK LN LANGLEY, WA 98260 | Mapsco: | |
| Neighborhood: | City of Langley | Map ID: | 912 |
| Neighborhood CD: | 04-L |
Owner |
| Name: | ROTTSOLK, MARGARET | Owner ID: | 316822 |
| Mailing Address: | ERID NIEBLER 1024 E SHELBY ST SEATTLE, WA 98012 | % Ownership: | 100.0000000000% |
| | | Exemptions: | |
Taxes and Assessment Details
Values
| (+) Improvement Homesite Value: | + | $0 | |
| (+) Improvement Non-Homesite Value: | + | $169,238 | |
| (+) Land Homesite Value: | + | $0 | |
| (+) Land Non-Homesite Value: | + | $420,000 | |
| (+) Curr Use (HS): | + | $0 | $0 |
| (+) Curr Use (NHS): | + | $0 | $0 |
| | | -------------------------- | |
| (=) Market Value: | = | $589,238 | |
| (–) Productivity Loss: | – | $0 | |
| | | -------------------------- | |
| (=) Subtotal: | = | $589,238 | |
| (+) Senior Appraised Value: | + | $0 | |
| (+) Non-Senior Appraised Value: | + | $589,238 | |
| | | -------------------------- | |
| (=) Total Appraised Value: | = | $589,238 | |
| (–) Senior Exemption Loss: | – | $0 | |
| (–) Exemption Loss: | – | $0 | |
| | | -------------------------- | |
| (=) Taxable Value: | = | $589,238 | |
Taxing Jurisdiction
| Owner: | ROTTSOLK, MARGARET | | |
| % Ownership: | 100.0000000000% | | |
| Total Value: | $589,238 | | |
| Tax Area: | 700 - APPRAISER-S Whid Schl Dist, in town of Langley |
| CF | Conservation Futures | 0.0316035091 | $589,238 | $589,238 | $18.62 | | |
| LANG | City of Langley | 1.0093520762 | $589,238 | $589,238 | $594.75 | | |
| LANGBOND | City of Langley BOND | 1.0326110892 | $589,238 | $589,238 | $608.45 | | |
| FIRE3 | Fire & Rescue Dist #3 S Whidbey GEN | 1.2004855531 | $589,238 | $589,238 | $707.37 | | |
| HOBOND | Hospital BOND | 0.1910887512 | $589,238 | $589,238 | $112.60 | | |
| HOGEN | Hospital GEN | 0.3902502903 | $589,238 | $589,238 | $229.95 | | |
| CE | County Current Expense | 0.3708482477 | $589,238 | $589,238 | $218.52 | | |
| ISLANDEMS | Hospital GEN (EMS) | 0.5000000000 | $589,238 | $589,238 | $294.62 | | |
| LIB | Library Sno-Isle GEN | 0.3153421757 | $589,238 | $589,238 | $185.81 | | |
| PORTWHID | Port of S Whidbey GEN | 0.1094540357 | $589,238 | $589,238 | $64.49 | | |
| SCH206BOND | School 206 BOND | 0.3161759235 | $589,238 | $589,238 | $186.30 | | |
| SCH206MO | School 206 Enrichment | 0.4547169547 | $589,238 | $589,238 | $267.94 | | |
| ST | State School | 1.3035497053 | $589,238 | $589,238 | $768.10 | | |
| ST2 | State School Part 2 | 0.8169543533 | $589,238 | $589,238 | $481.38 | | |
| SWHIDPRBD | P & R S Whidbey BOND | 0.0152817568 | $589,238 | $589,238 | $9.00 | | |
| SWHIDPRBD2 | P & R S Whidbey BOND2 | 0.0138911264 | $589,238 | $589,238 | $8.19 | | |
| SWHIDPRMT | P & R S Whidbey GEN | 0.2053334452 | $589,238 | $589,238 | $120.99 | | |
| | Total Tax Rate: | 8.2769389934 | | | | | |
| | | | | Taxes w/Current Exemptions: | $4,877.08 | | |
| | | | | Taxes w/o Exemptions: | $4,877.08 | | |
Improvement / Building
| Improvement #1: | RESIDENTIAL | State Code: | Y | 774.0 sqft | Value: | $169,238 |
| Bathrooms: | 1 | Bedrooms: | 1 | | Ceiling: | DRYWALL PAINTED | Exterior Wall/Cover: | SHINGLE | | Floor Covering: | CERAMIC TILE/CPT 40-60 | Floor Structure: | SLAB ON GRADE | | Foundation: | SLAB | Heating: | (NONE) | | Interior Finish: | DRYWALL PAINT | Plumbing Fixture Cnt: | 6 | | Roof Slope: | 5" IN 12" | Roof Structure/Cover: | CJ ASPHALT |
|
| | Type | Description | Class CD | Sub Class CD | Year Built | Area |
| | BAS | BASE/MAIN FLOOR | 4 | 0 | 2004 | 546.5 |
| | UTY | STORAGE/UTILITY | 4 | 0 | 2004 | 148.0 |
| | OWP | OPEN WOOD PORCH W/STEPS | 4 | 0 | 2004 | 210.0 |
| | LOF | LOFT | 4 | 0 | 2004 | 227.5 |
Sketch
Property Image
Land
| 1 | 32 | AC (03.01-09.99) | 3.7300 | 0.00 | 0.00 | 0.00 | 1.00 | $420,000 | $0 |
Roll Value History
| 2026 | N/A | N/A | N/A | N/A | N/A |
| 2025 | $169,238 | $420,000 | $0 | $589,238 | $589,238 |
| 2024 | $171,176 | $420,000 | $0 | $591,176 | $591,176 |
| 2023 | $173,116 | $420,000 | $0 | $593,116 | $593,116 |
| 2022 | $158,078 | $350,000 | $0 | $508,078 | $508,078 |
| 2021 | $130,208 | $280,000 | $0 | $410,208 | $410,208 |
| 2020 | $126,383 | $280,000 | $0 | $406,383 | $406,383 |
| 2019 | $85,394 | $300,000 | $0 | $385,394 | $385,394 |
| 2018 | $85,639 | $210,000 | $0 | $295,639 | $295,639 |
| 2017 | $86,076 | $210,000 | $0 | $296,076 | $296,076 |
| 2016 | $87,053 | $150,000 | $0 | $237,053 | $237,053 |
| 2015 | $88,033 | $135,000 | $0 | $223,033 | $223,033 |
| 2014 | $91,381 | $100,710 | $0 | $192,091 | $192,091 |
| 2013 | $92,408 | $100,710 | $0 | $193,118 | $193,118 |
| 2012 | $93,435 | $100,710 | $0 | $194,145 | $194,145 |
| 2011 | $94,462 | $100,710 | $0 | $195,172 | $195,172 |
| 2010 | $100,042 | $100,710 | $0 | $200,752 | $200,752 |
| 2009 | $105,285 | $164,120 | $0 | $269,405 | $269,405 |
| 2008 | $112,769 | $166,172 | $0 | $278,941 | $278,941 |
| 2007 | $114,082 | $166,172 | $0 | $280,254 | $280,254 |
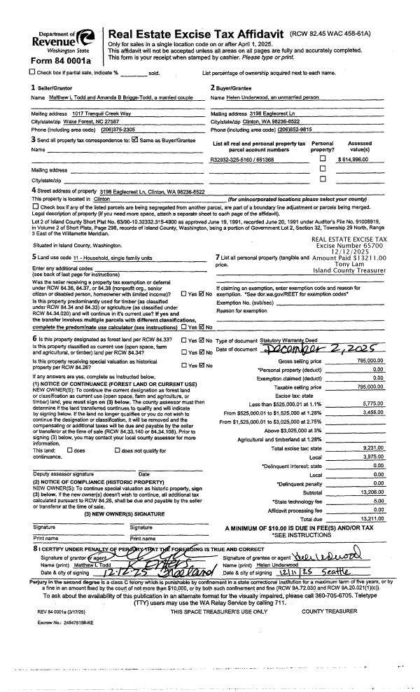
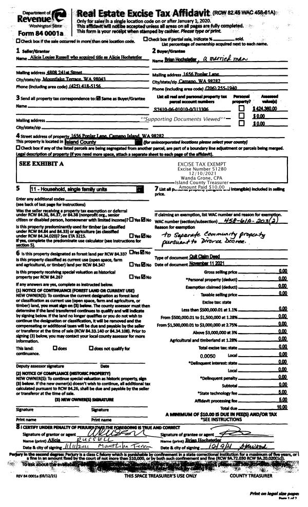
Deed and Sales History
| 1 | 06/04/2025 | WD | Warranty Deed | THOMPSON TTEE, DENISE A | ROTTSOLK, MARGARET | | | $665,000.00 | 63694 | 4586652 |
| 2 | 06/21/2021 | WD | Warranty Deed | FOSS TTEE, NANCY | THOMPSON TTEE, DENISE A | | | $711,000.00 | 48943 | 4523190 |
| 3 | 06/02/2007 | QCD | Quit Claim Deed | FOSS TTEE, NANCY | FOSS TTEE, NANCY | | | $0.00 | 71891 | 4204061 |
| 4 | 06/02/2007 | QCD | Quit Claim Deed | FOSS, NANCY | FOSS TTEE, NANCY | | | $0.00 | 71890 | 4204060 |
| 5 | 07/27/2005 | WD | Warranty Deed | BROWNE, KERTH | FOSS, NANCY | | | $235,000.00 | 53725 | 4142716 |
| 6 | 07/15/2003 | WD | Warranty Deed | MONROE, ROBERT H | BROWNE, KERTH | | | $75,000.00 | 33108 | 4067257 |
| 7 | 01/01/1900 | OTHER | Other - Misc. Documents | Unknown | MONROE, ROBERT H | | | $0.00 | 2224 | 90007254 |
Payout Agreement
| No payout information available.. |