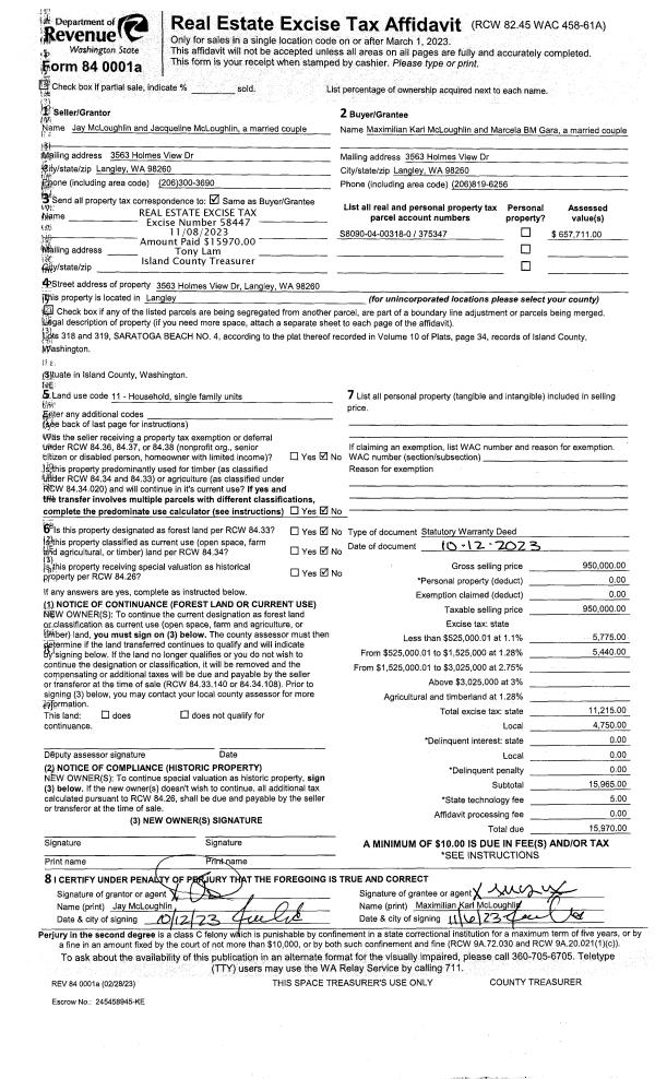
Property
Account |
| Property ID: | 67689 | Abbreviated Legal Description: | 26 - N288.25'OF E/2 SE SE LY W OF HONEYMOON LAKE RD |
| Geographic ID: | R23028-116-5020 | Agent Code: | |
| Type: | Real | | |
| Tax Area: | 312 - APPRAISER-Cpvl Schl Dist, outside Cpvl, improved, greater than 1 acre | Land Use Code | 11 |
| Open Space: | N | DFL | N |
| Historic Property: | N | Remodel Property: | N |
| Multi-Family Redevelopment: | N | | |
| Township: | 30 | Section: | 28 |
| Range: | R2 |
Location |
| Address: | 4316 HONEYMOON BAY RD GREENBANK, WA 98253 | Mapsco: | |
| Neighborhood: | Cycle 3 | Map ID: | 422 |
| Neighborhood CD: | 3 |
Owner |
| Name: | SORENSEN TTEE, NEAL R | Owner ID: | 287206 |
| Mailing Address: | MARTHA A RYAN TTEE 1514 HICKS AVE SAN JOSE, CA 95125 | % Ownership: | 100.0000000000% |
| | | Exemptions: | |
Taxes and Assessment Details
Values
| (+) Improvement Homesite Value: | + | $0 | |
| (+) Improvement Non-Homesite Value: | + | $353,512 | |
| (+) Land Homesite Value: | + | $0 | |
| (+) Land Non-Homesite Value: | + | $390,000 | |
| (+) Curr Use (HS): | + | $0 | $0 |
| (+) Curr Use (NHS): | + | $0 | $0 |
| | | -------------------------- | |
| (=) Market Value: | = | $743,512 | |
| (–) Productivity Loss: | – | $0 | |
| | | -------------------------- | |
| (=) Subtotal: | = | $743,512 | |
| (+) Senior Appraised Value: | + | $0 | |
| (+) Non-Senior Appraised Value: | + | $743,512 | |
| | | -------------------------- | |
| (=) Total Appraised Value: | = | $743,512 | |
| (–) Senior Exemption Loss: | – | $0 | |
| (–) Exemption Loss: | – | $0 | |
| | | -------------------------- | |
| (=) Taxable Value: | = | $743,512 | |
Taxing Jurisdiction
| Owner: | SORENSEN TTEE, NEAL R | | |
| % Ownership: | 100.0000000000% | | |
| Total Value: | $743,512 | | |
| Tax Area: | 312 - APPRAISER-Cpvl Schl Dist, outside Cpvl, improved, greater than 1 acre |
| CF | Conservation Futures | 0.0316035091 | $743,512 | $743,512 | $23.50 | | |
| CEM2 | Cemetery #2 | 0.0095056933 | $743,512 | $743,512 | $7.07 | | |
| FIRE5 | Fire & Rescue Dist #5 C Whidbey GEN | 1.2008080668 | $743,512 | $743,512 | $892.82 | | |
| FIRE5BOND | Fire & Rescue Dist #5 C Whidbey BOND | 0.1400090713 | $743,512 | $743,512 | $104.10 | | |
| HOBOND | Hospital BOND | 0.1910887512 | $743,512 | $743,512 | $142.08 | | |
| HOGEN | Hospital GEN | 0.3902502903 | $743,512 | $743,512 | $290.16 | | |
| CE | County Current Expense | 0.3708482477 | $743,512 | $743,512 | $275.73 | | |
| CR | County Roads | 0.4584763726 | $743,512 | $743,512 | $340.88 | | |
| ISLANDEMS | Hospital GEN (EMS) | 0.5000000000 | $743,512 | $743,512 | $371.76 | | |
| LIB | Library Sno-Isle GEN | 0.3153421757 | $743,512 | $743,512 | $234.46 | | |
| LIBCAP | Library Sno-Isle BOND (Cap Fac Imp Area) | 0.0543427938 | $743,512 | $743,512 | $40.40 | | |
| POCOUP | Port of Coupeville GEN | 0.1093371703 | $743,512 | $743,512 | $81.29 | | |
| POCOUPIDD | Port of Coupeville IDD | 0.3409740022 | $743,512 | $743,512 | $253.52 | | |
| COUPSDTECH | School 204 CP (TECH) | 0.7545480007 | $743,512 | $743,512 | $561.02 | | |
| SCH204MO | School 204 Enrichment | 0.6716186034 | $743,512 | $743,512 | $499.36 | | |
| ST | State School | 1.3035497053 | $743,512 | $743,512 | $969.20 | | |
| ST2 | State School Part 2 | 0.8169543533 | $743,512 | $743,512 | $607.42 | | |
| | Total Tax Rate: | 7.6592568070 | | | | | |
| | | | | Taxes w/Current Exemptions: | $5,694.77 | | |
| | | | | Taxes w/o Exemptions: | $5,694.77 | | |
Improvement / Building
| Improvement #1: | RESIDENTIAL | State Code: | Y | 1184.0 sqft | Value: | $353,512 |
| Bathrooms: | 2.5 | Bedrooms: | 2 | | Ceiling: | DRYWALL PAINTED | Cooling: | HEAT PUMP/CONV/V | | Exterior Wall/Cover: | WOOD SIDING | Floor Covering: | CARPET/VINYL 60-40 | | Floor Structure: | WOOD W/SUBFLOOR | Foundation: | SLAB | | Interior Finish: | DRYWALL PAINT | Plumbing Fixture Cnt: | 11 | | Roof Slope: | 10" IN 12" | Roof Structure/Cover: | CJ ALUMINIUM HEAVY |
|
| | Type | Description | Class CD | Sub Class CD | Year Built | Area |
| | BIG | BUILT IN GARAGE | 3 | 0 | 2005 | 1728.0 |
| | BAS | BASE/MAIN FLOOR | 3 | 0 | 2005 | 1184.0 |
| | OCP | OPEN CARPORT | 3 | 0 | 2005 | 672.0 |
| | OCP | OPEN CARPORT | 3 | 0 | 2005 | 672.0 |
Sketch
Property Image
Land
| 1 | 32 | AC (03.01-09.99) | 3.9000 | 0.00 | 0.00 | 0.00 | 1.00 | $390,000 | $0 |
Roll Value History
| 2026 | N/A | N/A | N/A | N/A | N/A |
| 2025 | $353,512 | $390,000 | $0 | $743,512 | $743,512 |
| 2024 | $357,563 | $370,000 | $0 | $727,563 | $727,563 |
| 2023 | $361,615 | $350,000 | $0 | $711,615 | $711,615 |
| 2022 | $291,462 | $350,000 | $0 | $641,462 | $641,462 |
| 2021 | $256,318 | $280,000 | $0 | $536,318 | $536,318 |
| 2020 | $248,502 | $240,000 | $0 | $488,502 | $488,502 |
| 2019 | $95,743 | $280,000 | $0 | $375,743 | $375,743 |
| 2018 | $95,743 | $170,000 | $0 | $265,743 | $265,743 |
| 2017 | $95,743 | $160,000 | $0 | $255,743 | $255,743 |
| 2016 | $95,743 | $165,000 | $0 | $260,743 | $260,743 |
| 2015 | $95,743 | $130,000 | $0 | $225,743 | $225,743 |
| 2014 | $95,743 | $94,770 | $0 | $190,513 | $190,513 |
| 2013 | $95,743 | $94,770 | $0 | $190,513 | $190,513 |
| 2012 | $95,743 | $94,770 | $0 | $190,513 | $190,513 |
| 2011 | $95,743 | $105,300 | $0 | $201,043 | $201,043 |
| 2010 | $97,747 | $105,300 | $0 | $203,047 | $203,047 |
| 2009 | $99,828 | $195,000 | $0 | $294,828 | $294,828 |
| 2008 | $101,748 | $195,000 | $0 | $296,748 | $296,748 |
| 2007 | $101,698 | $195,000 | $0 | $296,698 | $296,698 |
Deed and Sales History
| 1 | 07/02/2018 | WD | Warranty Deed | RYAN, MARTHA | SORENSEN TTEE, NEAL R | | | $0.00 | 36067 | 4452443 |
| 2 | 02/25/2005 | WD | Warranty Deed | ORACH, NICK | RYAN, MARTHA | | | $220,000.00 | 50872 | 4127435 |
| 3 | 01/01/1900 | OTHER | Other - Misc. Documents | Unknown | ORACH, NICK | | | $0.00 | 0 | 0 |
Payout Agreement
| No payout information available.. |