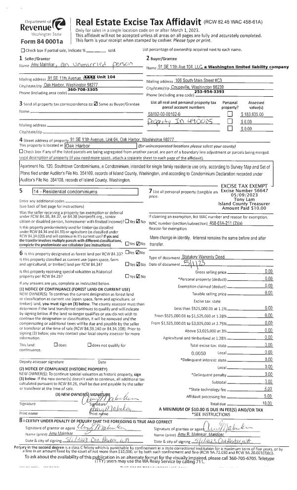
Property
Account |
| Property ID: | 677066 | Abbreviated Legal Description: | LOT 1 SP 5-92.33217.055-4680 V2 SP P393 AF#93001698 |
| Geographic ID: | R33217-035-5180 | Agent Code: | |
| Type: | Real | | |
| Tax Area: | 512 - APPRAISER-Stan/Cam Schl Dist, improved, greater than 1 acre | Land Use Code | 11 |
| Open Space: | N | DFL | N |
| Historic Property: | N | Remodel Property: | N |
| Multi-Family Redevelopment: | N | | |
| Township: | 32 | Section: | 17 |
| Range: | R3 |
Location |
| Address: | 1211 MOORE RD CAMANO ISLAND, WA 98282 | Mapsco: | |
| Neighborhood: | North Camano | Map ID: | 954 |
| Neighborhood CD: | 06-C |
Owner |
| Name: | NICKELSON, DANIEL R | Owner ID: | 28687 |
| Mailing Address: | PO BOX 612 STANWOOD, WA 98292-0612 | % Ownership: | 100.0000000000% |
| | | Exemptions: | |
Taxes and Assessment Details
Values
| (+) Improvement Homesite Value: | + | $0 | |
| (+) Improvement Non-Homesite Value: | + | $632,901 | |
| (+) Land Homesite Value: | + | $0 | |
| (+) Land Non-Homesite Value: | + | $380,000 | |
| (+) Curr Use (HS): | + | $0 | $0 |
| (+) Curr Use (NHS): | + | $0 | $0 |
| | | -------------------------- | |
| (=) Market Value: | = | $1,012,901 | |
| (–) Productivity Loss: | – | $0 | |
| | | -------------------------- | |
| (=) Subtotal: | = | $1,012,901 | |
| (+) Senior Appraised Value: | + | $0 | |
| (+) Non-Senior Appraised Value: | + | $1,012,901 | |
| | | -------------------------- | |
| (=) Total Appraised Value: | = | $1,012,901 | |
| (–) Senior Exemption Loss: | – | $0 | |
| (–) Exemption Loss: | – | $0 | |
| | | -------------------------- | |
| (=) Taxable Value: | = | $1,012,901 | |
Taxing Jurisdiction
| Owner: | NICKELSON, DANIEL R | | |
| % Ownership: | 100.0000000000% | | |
| Total Value: | $1,012,901 | | |
| Tax Area: | 512 - APPRAISER-Stan/Cam Schl Dist, improved, greater than 1 acre |
| CF | Conservation Futures | 0.0316035091 | $1,012,901 | $1,012,901 | $32.01 | | |
| EMS1 | Fire & Rescue Dist #1 Camano GEN (EMS) | 0.3677864386 | $1,012,901 | $1,012,901 | $372.53 | | |
| FIRE1 | Fire & Rescue Dist #1 Camano GEN | 1.2502910536 | $1,012,901 | $1,012,901 | $1,266.42 | | |
| FIRE1BOND | Fire & Rescue Dist #1 Camano BOND | 0.1570001679 | $1,012,901 | $1,012,901 | $159.03 | | |
| CE | County Current Expense | 0.3708482477 | $1,012,901 | $1,012,901 | $375.63 | | |
| CR | County Roads | 0.4584763726 | $1,012,901 | $1,012,901 | $464.39 | | |
| LCIB | Library Sno-Isle BOND (Camano Island) | 0.0396325772 | $1,012,901 | $1,012,901 | $40.14 | | |
| LIB | Library Sno-Isle GEN | 0.3153421757 | $1,012,901 | $1,012,901 | $319.41 | | |
| SCH205_401 | School 205-401 Enrichment | 1.2698420524 | $1,012,901 | $1,012,901 | $1,286.22 | | |
| SCH205BOND | School 205-401 BOND | 0.9396497583 | $1,012,901 | $1,012,901 | $951.77 | | |
| ST | State School | 1.3035497053 | $1,012,901 | $1,012,901 | $1,320.37 | | |
| ST2 | State School Part 2 | 0.8169543533 | $1,012,901 | $1,012,901 | $827.49 | | |
| | Total Tax Rate: | 7.3209764117 | | | | | |
| | | | | Taxes w/Current Exemptions: | $7,415.41 | | |
| | | | | Taxes w/o Exemptions: | $7,415.41 | | |
Improvement / Building
| Improvement #1: | RESIDENTIAL | State Code: | Y | 2640.0 sqft | Value: | $632,901 |
| Bathrooms: | 4 | Bedrooms: | 3 | | Ceiling: | TONGUE & GROOVE | Exterior Wall/Cover: | WOOD SIDING | | Floor Covering: | HARDWOOD/CARP 20-80 | Floor Structure: | WOOD W/SUBFLOOR | | Foundation: | CONCRETE | Heating: | FHA GAS | | Interior Finish: | DRYWALL PAINT | Plumbing Fixture Cnt: | 16 | | Roof Slope: | 5" IN 12" | Roof Structure/Cover: | CJ WOOD SHAKES |
|
| | Type | Description | Class CD | Sub Class CD | Year Built | Area |
| | BAS | BASE/MAIN FLOOR | 4 | 0 | 1993 | 1424.0 |
| | OP4 | OPEN PORCH W/CEILING-ROOF | 4 | 0 | 1993 | 140.0 |
| | OP4 | OPEN PORCH W/CEILING-ROOF | 4 | 0 | 1993 | 680.0 |
| | OP4 | OPEN PORCH W/CEILING-ROOF | 4 | 0 | 1993 | 80.0 |
| | AGR | ATTACHED GARAGE | 4 | 0 | 1993 | 624.0 |
| | UPS | UPPER STORY | 4 | 0 | 1993 | 1216.0 |
| | CPD | OPEN CARPORT DIRT FLOOR | 4 | 0 | 1993 | 336.0 |
| | DGR | DETACHED GARAGE | 4 | 0 | 1993 | 1152.0 |
Sketch
Property Image
Land
| 1 | 32 | AC (03.01-09.99) | 4.7800 | 0.00 | 0.00 | 0.00 | 1.00 | $380,000 | $0 |
Roll Value History
| 2026 | N/A | N/A | N/A | N/A | N/A |
| 2025 | $632,901 | $380,000 | $0 | $1,012,901 | $1,012,901 |
| 2024 | $640,789 | $390,000 | $0 | $1,030,789 | $1,030,789 |
| 2023 | $648,676 | $380,000 | $0 | $1,028,676 | $1,028,676 |
| 2022 | $542,669 | $350,000 | $0 | $892,669 | $892,669 |
| 2021 | $477,775 | $240,000 | $0 | $717,775 | $717,775 |
| 2020 | $465,465 | $200,000 | $0 | $665,465 | $665,465 |
| 2019 | $351,591 | $240,000 | $0 | $591,591 | $591,591 |
| 2018 | $352,645 | $220,000 | $0 | $572,645 | $572,645 |
| 2017 | $354,758 | $200,000 | $0 | $554,758 | $554,758 |
| 2016 | $347,509 | $180,000 | $0 | $527,509 | $527,509 |
| 2015 | $351,334 | $191,200 | $0 | $542,534 | $542,534 |
| 2014 | $355,160 | $191,200 | $0 | $546,360 | $546,360 |
| 2013 | $358,984 | $143,400 | $0 | $502,384 | $502,384 |
| 2012 | $362,810 | $152,960 | $0 | $515,770 | $515,770 |
| 2011 | $366,635 | $191,200 | $0 | $557,835 | $557,835 |
| 2010 | $385,742 | $191,200 | $0 | $576,942 | $576,942 |
| 2009 | $401,419 | $239,000 | $0 | $640,419 | $640,419 |
| 2008 | $407,319 | $239,000 | $0 | $646,319 | $646,319 |
| 2007 | $413,246 | $239,000 | $0 | $652,246 | $652,246 |
Deed and Sales History
| 1 | 02/01/1993 | WD | Warranty Deed | GIARD, FRANCIS H | NICKELSON, DANIEL R | | | $30,000.00 | 30598 | 93003200 |
| 2 | 01/01/1900 | OTHER | Other - Misc. Documents | Unknown | GIARD, FRANCIS H | | | $0.00 | 62341 | 87011745 |
Payout Agreement
| No payout information available.. |