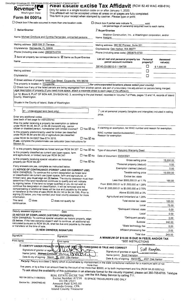
Property
Account |
| Property ID: | 677280 | Abbreviated Legal Description: | 1970 SECURITY 12X57 TPO @85200 FROM K-582774 |
| Geographic ID: | M91250000024-1 | Agent Code: | |
| Type: | Mobile Home | | |
| Tax Area: | 110 - APPRAISER-OH Schl Dist, outside OH, improved & 1 acre or less | Land Use Code | 11 |
| Open Space: | N | DFL | N |
| Historic Property: | N | Remodel Property: | N |
| Multi-Family Redevelopment: | N | | |
| Township: | | Section: | |
| Range: | |
Location |
| Address: | B ST # 24 OAK HARBOR, WA 98277 | Mapsco: | |
| Neighborhood: | Cycle 6 | Map ID: | |
| Neighborhood CD: | 6 |
Owner |
| Name: | MARTIN TTEE, PETER E | Owner ID: | 297884 |
| Mailing Address: | 1872 PATRICK'S POINT DR TRINIDAD, CA 95570 | % Ownership: | 100.0000000000% |
| | | Exemptions: | |
Taxes and Assessment Details
Values
| (+) Improvement Homesite Value: | + | $0 | |
| (+) Improvement Non-Homesite Value: | + | $4,127 | |
| (+) Land Homesite Value: | + | $0 | |
| (+) Land Non-Homesite Value: | + | $0 | |
| (+) Curr Use (HS): | + | $0 | $0 |
| (+) Curr Use (NHS): | + | $0 | $0 |
| | | -------------------------- | |
| (=) Market Value: | = | $4,127 | |
| (–) Productivity Loss: | – | $0 | |
| | | -------------------------- | |
| (=) Subtotal: | = | $4,127 | |
| (+) Senior Appraised Value: | + | $0 | |
| (+) Non-Senior Appraised Value: | + | $4,127 | |
| | | -------------------------- | |
| (=) Total Appraised Value: | = | $4,127 | |
| (–) Senior Exemption Loss: | – | $0 | |
| (–) Exemption Loss: | – | $0 | |
| | | -------------------------- | |
| (=) Taxable Value: | = | $4,127 | |
Taxing Jurisdiction
| Owner: | MARTIN TTEE, PETER E | | |
| % Ownership: | 100.0000000000% | | |
| Total Value: | $4,127 | | |
| Tax Area: | 110 - APPRAISER-OH Schl Dist, outside OH, improved & 1 acre or less |
| CF | Conservation Futures | 0.0316035091 | $4,127 | $4,127 | $0.13 | | |
| CEM1 | Cemetery #1 | 0.0040320932 | $4,127 | $4,127 | $0.02 | | |
| FIRE2 | Fire & Rescue Dist #2 N Whidbey GEN | 0.5475949600 | $4,127 | $4,127 | $2.26 | | |
| HOBOND | Hospital BOND | 0.1910887512 | $4,127 | $4,127 | $0.79 | | |
| HOGEN | Hospital GEN | 0.3902502903 | $4,127 | $4,127 | $1.61 | | |
| CE | County Current Expense | 0.3708482477 | $4,127 | $4,127 | $1.53 | | |
| CR | County Roads | 0.4584763726 | $4,127 | $4,127 | $1.89 | | |
| ISLANDEMS | Hospital GEN (EMS) | 0.5000000000 | $4,127 | $4,127 | $2.06 | | |
| LIB | Library Sno-Isle GEN | 0.3153421757 | $4,127 | $4,127 | $1.30 | | |
| NWHIDPRMT | P & R N Whidbey GEN | 0.2004466701 | $4,127 | $4,127 | $0.83 | | |
| SCH201MO | School 201 Enrichment | 1.8559231640 | $4,127 | $4,127 | $7.66 | | |
| ST | State School | 1.3035497053 | $4,127 | $4,127 | $5.38 | | |
| ST2 | State School Part 2 | 0.8169543533 | $4,127 | $4,127 | $3.37 | | |
| | Total Tax Rate: | 6.9861102925 | | | | | |
| | | | | Taxes w/Current Exemptions: | $28.83 | | |
| | | | | Taxes w/o Exemptions: | $28.83 | | |
Improvement / Building
| Improvement #1: | MANUFACTURED HOME | State Code: | Y | 684.0 sqft | Value: | $4,127 |
| Bathrooms: | 0 | Bedrooms: | 0 | | Ceiling: | PLASTER PAINTED | Cooling: | EVAP NO DUCT | | Exterior Wall/Cover: | VINYL | Floor Covering: | CARPET 100% | | Floor Structure: | SLAB ON GRADE | Foundation: | SLAB | | Heating: | FHA ELECTRIC | Interior Finish: | PLASTER | | Plumbing Fixture Cnt: | 1 | Roof Slope: | FLAT | | Roof Structure/Cover: | CJ ALUMINIUM HEAVY |   |   |
|
Sketch
Property Image
Land
No land segments exist for this property.
Roll Value History
| 2026 | N/A | N/A | N/A | N/A | N/A |
| 2025 | $4,127 | $0 | $0 | $4,127 | $4,127 |
| 2024 | $4,280 | $0 | $0 | $4,280 | $4,280 |
| 2023 | $3,987 | $0 | $0 | $3,987 | $3,987 |
| 2022 | $3,370 | $0 | $0 | $3,370 | $3,370 |
| 2021 | $3,140 | $0 | $0 | $3,140 | $3,140 |
| 2020 | $3,150 | $0 | $0 | $3,150 | $3,150 |
| 2019 | $2,641 | $0 | $0 | $2,641 | $2,641 |
| 2018 | $2,801 | $0 | $0 | $2,801 | $2,801 |
| 2017 | $3,041 | $0 | $0 | $3,041 | $3,041 |
| 2016 | $2,048 | $0 | $0 | $2,048 | $2,048 |
| 2015 | $2,086 | $0 | $0 | $2,086 | $2,086 |
| 2014 | $2,125 | $0 | $0 | $2,125 | $2,125 |
| 2013 | $2,163 | $0 | $0 | $2,163 | $2,163 |
| 2012 | $2,202 | $0 | $0 | $2,202 | $2,202 |
| 2011 | $2,241 | $0 | $0 | $2,241 | $2,241 |
| 2010 | $2,292 | $0 | $0 | $2,292 | $2,292 |
| 2009 | $2,407 | $0 | $0 | $2,407 | $2,407 |
| 2008 | $2,407 | $0 | $0 | $2,407 | $2,407 |
| 2007 | $2,407 | $0 | $0 | $2,407 | $2,407 |
Deed and Sales History
| 1 | 01/29/2021 | MANHOME | Manufactured Home | J. AND M.J. LAMBERT, LLC | MARTIN TTEE, PETER E | | | $3,000.00 | 46747 | |
| 2 | 07/16/2007 | OTHER | Other - Misc. Documents | LAMBERT, GEORGE | J. AND M.J. LAMBERT, LLC, | | | $2,407.00 | 72366 | 0 |
| 3 | 09/01/1984 | OTHER | Other - Misc. Documents | Unknown | LAMBERT, GEORGE | | | $8,500.00 | 42754 | 0 |
Payout Agreement
| No payout information available.. |