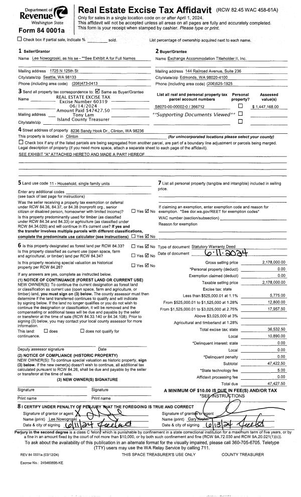
Property
Account |
| Property ID: | 677468 | Abbreviated Legal Description: | CASA DEL MAR CONDO UNIT 9 8.75% INT |
| Geographic ID: | S6323-00-00009-0 | Agent Code: | |
| Type: | Real | | |
| Tax Area: | 100 - APPRAISER-OH Schl Dist, in OH | Land Use Code | 14 |
| Open Space: | N | DFL | N |
| Historic Property: | N | Remodel Property: | N |
| Multi-Family Redevelopment: | N | | |
| Township: | | Section: | |
| Range: | |
Location |
| Address: | 1199 SE 9TH AVE UNIT 303 OAK HARBOR, WA 98277 | Mapsco: | |
| Neighborhood: | 13*OH-casa delmar | Map ID: | 89 |
| Neighborhood CD: | 13*OHcdmar |
Owner |
| Name: | KEWISH, STEVEN | Owner ID: | 290204 |
| Mailing Address: | YURIKO KEWISH 6850 NE 137TH ST KIRKLAND, WA 98034 | % Ownership: | 100.0000000000% |
| | | Exemptions: | |
Taxes and Assessment Details
Values
| (+) Improvement Homesite Value: | + | $0 | |
| (+) Improvement Non-Homesite Value: | + | $166,232 | |
| (+) Land Homesite Value: | + | $0 | |
| (+) Land Non-Homesite Value: | + | $85,000 | |
| (+) Curr Use (HS): | + | $0 | $0 |
| (+) Curr Use (NHS): | + | $0 | $0 |
| | | -------------------------- | |
| (=) Market Value: | = | $251,232 | |
| (–) Productivity Loss: | – | $0 | |
| | | -------------------------- | |
| (=) Subtotal: | = | $251,232 | |
| (+) Senior Appraised Value: | + | $0 | |
| (+) Non-Senior Appraised Value: | + | $251,232 | |
| | | -------------------------- | |
| (=) Total Appraised Value: | = | $251,232 | |
| (–) Senior Exemption Loss: | – | $0 | |
| (–) Exemption Loss: | – | $0 | |
| | | -------------------------- | |
| (=) Taxable Value: | = | $251,232 | |
Taxing Jurisdiction
| Owner: | KEWISH, STEVEN | | |
| % Ownership: | 100.0000000000% | | |
| Total Value: | $251,232 | | |
| Tax Area: | 100 - APPRAISER-OH Schl Dist, in OH |
| CF | Conservation Futures | 0.0316035091 | $251,232 | $251,232 | $7.94 | | |
| CEM1 | Cemetery #1 | 0.0040320932 | $251,232 | $251,232 | $1.01 | | |
| COH | City of Oak Harbor | 2.3001546061 | $251,232 | $251,232 | $577.87 | | |
| OAKBOND | City of Oak Harbor BOND | 0.1926904192 | $251,232 | $251,232 | $48.41 | | |
| HOBOND | Hospital BOND | 0.1910887512 | $251,232 | $251,232 | $48.01 | | |
| HOGEN | Hospital GEN | 0.3902502903 | $251,232 | $251,232 | $98.04 | | |
| CE | County Current Expense | 0.3708482477 | $251,232 | $251,232 | $93.17 | | |
| ISLANDEMS | Hospital GEN (EMS) | 0.5000000000 | $251,232 | $251,232 | $125.62 | | |
| LIB | Library Sno-Isle GEN | 0.3153421757 | $251,232 | $251,232 | $79.22 | | |
| NWHIDPRMT | P & R N Whidbey GEN | 0.2004466701 | $251,232 | $251,232 | $50.36 | | |
| SCH201MO | School 201 Enrichment | 1.8559231640 | $251,232 | $251,232 | $466.27 | | |
| ST | State School | 1.3035497053 | $251,232 | $251,232 | $327.49 | | |
| ST2 | State School Part 2 | 0.8169543533 | $251,232 | $251,232 | $205.25 | | |
| | Total Tax Rate: | 8.4728839852 | | | | | |
| | | | | Taxes w/Current Exemptions: | $2,128.66 | | |
| | | | | Taxes w/o Exemptions: | $2,128.66 | | |
Improvement / Building
| Improvement #1: | RESIDENTIAL | State Code: | Y | 964.0 sqft | Value: | $166,232 |
| Bathrooms: | 1.5 | Bedrooms: | 2 | | Ceiling: | DRYWALL PAINTED | Exterior Wall/Cover: | WOOD SIDING | | Floor Covering: | CARPET/VINYL 80-20 | Floor Structure: | WOOD W/SUBFLOOR | | Foundation: | CONCRETE | Heating: | BASEBOARD ELECTRIC | | Interior Finish: | DRYWALL PAINT | Plumbing Fixture Cnt: | 8 | | Roof Slope: | FLAT | Roof Structure/Cover: | BEAM BUILT-UP ROCK |
|
| | Type | Description | Class CD | Sub Class CD | Year Built | Area |
| | BAS | BASE/MAIN FLOOR | 3 | 0 | 1972 | 964.0 |
| | OWP | OPEN WOOD PORCH W/STEPS | 3 | 0 | 1972 | 191.0 |
| | oPV1 | PV/ASPH 2" | 3 | 0 | 1972 | 0.0 |
| | oSTR | STRUCTURE/OTHER FEAT | 3 | 0 | 1972 | 0.0 |
| | OWP | OPEN WOOD PORCH W/STEPS | 3 | 0 | 1972 | 12.0 |
Sketch
Property Image
Land
| 1 | 61 | MULTIPLE RESIDENCES | 0.0537 | 2339.27 | 0.00 | 0.00 | 1.00 | $85,000 | $0 |
Roll Value History
| 2026 | N/A | N/A | N/A | N/A | N/A |
| 2025 | $166,232 | $85,000 | $0 | $251,232 | $251,232 |
| 2024 | $171,678 | $90,000 | $0 | $261,678 | $261,678 |
| 2023 | $157,316 | $90,000 | $0 | $247,316 | $247,316 |
| 2022 | $144,809 | $90,000 | $0 | $234,809 | $234,809 |
| 2021 | $128,142 | $60,000 | $0 | $188,142 | $188,142 |
| 2020 | $124,899 | $55,000 | $0 | $179,899 | $179,899 |
| 2019 | $88,517 | $70,000 | $0 | $158,517 | $158,517 |
| 2018 | $88,806 | $65,000 | $0 | $153,806 | $153,806 |
| 2017 | $68,348 | $42,000 | $0 | $110,348 | $110,348 |
| 2016 | $69,311 | $42,000 | $0 | $111,311 | $111,311 |
| 2015 | $70,275 | $42,000 | $0 | $112,275 | $112,275 |
| 2014 | $71,237 | $42,000 | $0 | $113,237 | $113,237 |
| 2013 | $72,202 | $42,000 | $0 | $114,202 | $114,202 |
| 2012 | $70,567 | $42,000 | $0 | $112,567 | $112,567 |
| 2011 | $78,433 | $57,270 | $0 | $135,703 | $135,703 |
| 2010 | $87,212 | $42,513 | $0 | $129,725 | $129,725 |
| 2009 | $90,986 | $58,568 | $0 | $149,554 | $149,554 |
| 2008 | $92,193 | $30,544 | $0 | $122,737 | $122,737 |
| 2007 | $93,457 | $30,544 | $0 | $124,001 | $124,001 |
Deed and Sales History
| 1 | 06/06/2019 | WD | Warranty Deed | LARKIN, KELLY | KEWISH, STEVEN | | | $179,000.00 | 38926 | 4465179 |
| 2 | 07/05/2017 | QCD | Quit Claim Deed | LARKIN, KELLY | LARKIN, KELLY | | | $0.00 | 30065 | 4425596 |
| 3 | 06/20/2017 | WD | Warranty Deed | TOWNSDIN, PEGGY C | LARKIN, KELLY | | | $149,000.00 | 30064 | 4425595 |
| 4 | 03/30/2011 | QCD | Quit Claim Deed | TOWNSDIN, PEGGY C | TOWNSDIN, PEGGY C | | | $0.00 | 4021 | 4293063 |
| 5 | 03/29/2011 | WD | Warranty Deed | CANE, TR, ROBERT I / LULU I | TOWNSDIN, PEGGY C | | | $115,000.00 | 4020 | 4293062 |
| 6 | 08/04/2000 | WD | Warranty Deed | Unknown | CANE, TR, ROBERT I | | | $77,500.00 | 3052 | 20014336 |
| 7 | 11/23/1998 | QCD | Quit Claim Deed | JACOBY, LOUIS C | JACOBY, LOIS E | | | $0.00 | 84731 | 98026019 |
| 8 | 08/01/1993 | WD | Warranty Deed | DEL, MAR I | JACOBY, LOUIS C | | | $86,178.00 | 33045 | 93015707 |
| 9 | 01/01/1900 | OTHER | Other - Misc. Documents | Unknown | DEL, MAR I | | | $0.00 | 24342 | 92021309 |
Payout Agreement
| No payout information available.. |