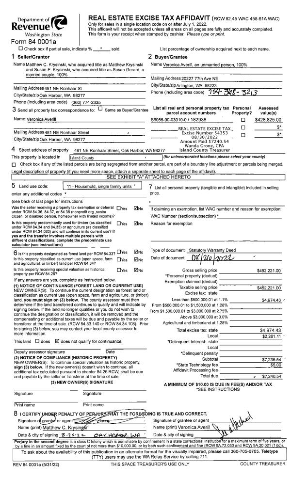
Property
Account |
| Property ID: | 677690 | Abbreviated Legal Description: | LOT 2 SP 47-90.33130.433-2800 V2 SP P392 AF#93001665 |
| Geographic ID: | R33130-416-2610 | Agent Code: | |
| Type: | Real | | |
| Tax Area: | 512 - APPRAISER-Stan/Cam Schl Dist, improved, greater than 1 acre | Land Use Code | 11 |
| Open Space: | N | DFL | N |
| Historic Property: | N | Remodel Property: | N |
| Multi-Family Redevelopment: | N | | |
| Township: | 31 | Section: | 30 |
| Range: | R3 |
Location |
| Address: | 1674 JODEAN CT CAMANO ISLAND, WA 98282 | Mapsco: | |
| Neighborhood: | Cycle 5 | Map ID: | 938 |
| Neighborhood CD: | 5 |
Owner |
| Name: | ELLERBECK, RONALD L | Owner ID: | 292141 |
| Mailing Address: | JEANNE L ELLERBECK 162 EAGLE VIEW LN CAMANO ISLAND, WA 98282 | % Ownership: | 100.0000000000% |
| | | Exemptions: | |
Taxes and Assessment Details
Values
| (+) Improvement Homesite Value: | + | $0 | |
| (+) Improvement Non-Homesite Value: | + | $222,501 | |
| (+) Land Homesite Value: | + | $0 | |
| (+) Land Non-Homesite Value: | + | $260,000 | |
| (+) Curr Use (HS): | + | $0 | $0 |
| (+) Curr Use (NHS): | + | $0 | $0 |
| | | -------------------------- | |
| (=) Market Value: | = | $482,501 | |
| (–) Productivity Loss: | – | $0 | |
| | | -------------------------- | |
| (=) Subtotal: | = | $482,501 | |
| (+) Senior Appraised Value: | + | $0 | |
| (+) Non-Senior Appraised Value: | + | $482,501 | |
| | | -------------------------- | |
| (=) Total Appraised Value: | = | $482,501 | |
| (–) Senior Exemption Loss: | – | $0 | |
| (–) Exemption Loss: | – | $0 | |
| | | -------------------------- | |
| (=) Taxable Value: | = | $482,501 | |
Taxing Jurisdiction
| Owner: | ELLERBECK, RONALD L | | |
| % Ownership: | 100.0000000000% | | |
| Total Value: | $482,501 | | |
| Tax Area: | 512 - APPRAISER-Stan/Cam Schl Dist, improved, greater than 1 acre |
| CF | Conservation Futures | 0.0316035091 | $482,501 | $482,501 | $15.25 | | |
| EMS1 | Fire & Rescue Dist #1 Camano GEN (EMS) | 0.3677864386 | $482,501 | $482,501 | $177.46 | | |
| FIRE1 | Fire & Rescue Dist #1 Camano GEN | 1.2502910536 | $482,501 | $482,501 | $603.27 | | |
| FIRE1BOND | Fire & Rescue Dist #1 Camano BOND | 0.1570001679 | $482,501 | $482,501 | $75.75 | | |
| CE | County Current Expense | 0.3708482477 | $482,501 | $482,501 | $178.93 | | |
| CR | County Roads | 0.4584763726 | $482,501 | $482,501 | $221.22 | | |
| LCIB | Library Sno-Isle BOND (Camano Island) | 0.0396325772 | $482,501 | $482,501 | $19.12 | | |
| LIB | Library Sno-Isle GEN | 0.3153421757 | $482,501 | $482,501 | $152.15 | | |
| SCH205_401 | School 205-401 Enrichment | 1.2698420524 | $482,501 | $482,501 | $612.70 | | |
| SCH205BOND | School 205-401 BOND | 0.9396497583 | $482,501 | $482,501 | $453.38 | | |
| ST | State School | 1.3035497053 | $482,501 | $482,501 | $628.96 | | |
| ST2 | State School Part 2 | 0.8169543533 | $482,501 | $482,501 | $394.18 | | |
| | Total Tax Rate: | 7.3209764117 | | | | | |
| | | | | Taxes w/Current Exemptions: | $3,532.37 | | |
| | | | | Taxes w/o Exemptions: | $3,532.37 | | |
Improvement / Building
| Improvement #1: | MANUFACTURED HOME | State Code: | Y | 2410.2 sqft | Value: | $222,501 |
| Bathrooms: | 0 | Bedrooms: | 0 | | Ceiling: | PLASTER PAINTED | Cooling: | EVAP NO DUCT | | Exterior Wall/Cover: | VINYL | Floor Covering: | CARPET 100% | | Floor Structure: | SLAB ON GRADE | Foundation: | SLAB | | Heating: | FHA ELECTRIC | Interior Finish: | PLASTER | | Plumbing Fixture Cnt: | 1 | Roof Slope: | FLAT | | Roof Structure/Cover: | CJ ALUMINIUM HEAVY |   |   |
|
| | Type | Description | Class CD | Sub Class CD | Year Built | Area |
| | BAS | BASE/MAIN FLOOR | 5 | 0 | 1996 | 2410.2 |
| | UTY | STORAGE/UTILITY | 5 | 0 | 1996 | 96.0 |
| | DGR | DETACHED GARAGE | 5 | 0 | 1996 | 1152.0 |
| | OWP | OPEN WOOD PORCH W/STEPS | 5 | 0 | 1996 | 360.0 |
| | OWP | OPEN WOOD PORCH W/STEPS | 5 | 0 | 1996 | 114.0 |
Sketch
Property Image
Land
| 1 | 17 | AC (01.01-02.00) | 0.0000 | 0.00 | 0.00 | 0.00 | 1.00 | $260,000 | $0 |
Roll Value History
| 2026 | N/A | N/A | N/A | N/A | N/A |
| 2025 | $222,501 | $260,000 | $0 | $482,501 | $482,501 |
| 2024 | $225,175 | $240,000 | $0 | $465,175 | $465,175 |
| 2023 | $204,357 | $230,000 | $0 | $434,357 | $434,357 |
| 2022 | $192,095 | $240,000 | $0 | $432,095 | $432,095 |
| 2021 | $145,870 | $170,000 | $0 | $315,870 | $315,870 |
| 2020 | $145,792 | $150,000 | $0 | $295,792 | $295,792 |
| 2019 | $123,823 | $200,000 | $0 | $323,823 | $323,823 |
| 2018 | $125,126 | $150,000 | $0 | $275,126 | $275,126 |
| 2017 | $127,682 | $120,000 | $0 | $247,682 | $247,682 |
| 2016 | $130,286 | $80,000 | $0 | $210,286 | $210,286 |
| 2015 | $135,345 | $86,500 | $0 | $221,845 | $221,845 |
| 2014 | $136,471 | $86,500 | $0 | $222,971 | $222,971 |
| 2013 | $138,722 | $86,500 | $0 | $225,222 | $225,222 |
| 2012 | $140,973 | $86,500 | $0 | $227,473 | $227,473 |
| 2011 | $143,224 | $86,500 | $0 | $229,724 | $229,724 |
| 2010 | $154,661 | $86,500 | $0 | $241,161 | $241,161 |
| 2009 | $157,227 | $130,000 | $0 | $287,227 | $287,227 |
| 2008 | $160,309 | $130,000 | $0 | $290,309 | $290,309 |
| 2007 | $162,145 | $130,000 | $0 | $292,145 | $292,145 |
Deed and Sales History
| 1 | 10/01/2019 | WD | Warranty Deed | CAWVEY, CHARLES E | ELLERBECK, RONALD L | | | $315,000.00 | 40602 | 4472989 |
| 2 | 09/23/2004 | WD | Warranty Deed | LEFFEL, PHILLIP B | CAWVEY, CHARLES E | | | $205,000.00 | 44583 | 4114227 |
| 3 | 10/30/2000 | WD | Warranty Deed | HAMMER, RAY S | LEFFEL, PHILLIP B | | | $178,000.00 | 4121 | 20018916 |
| 4 | 08/19/1999 | WD | Warranty Deed | PETERSON, DARRELL V | HAMMER, RAY S | | | $43,000.00 | 94308 | 99023552 |
| 5 | 01/01/1900 | OTHER | Other - Misc. Documents | Unknown | PETERSON, DARRELL V | | | $0.00 | 0 | 0 |
Payout Agreement
| No payout information available.. |