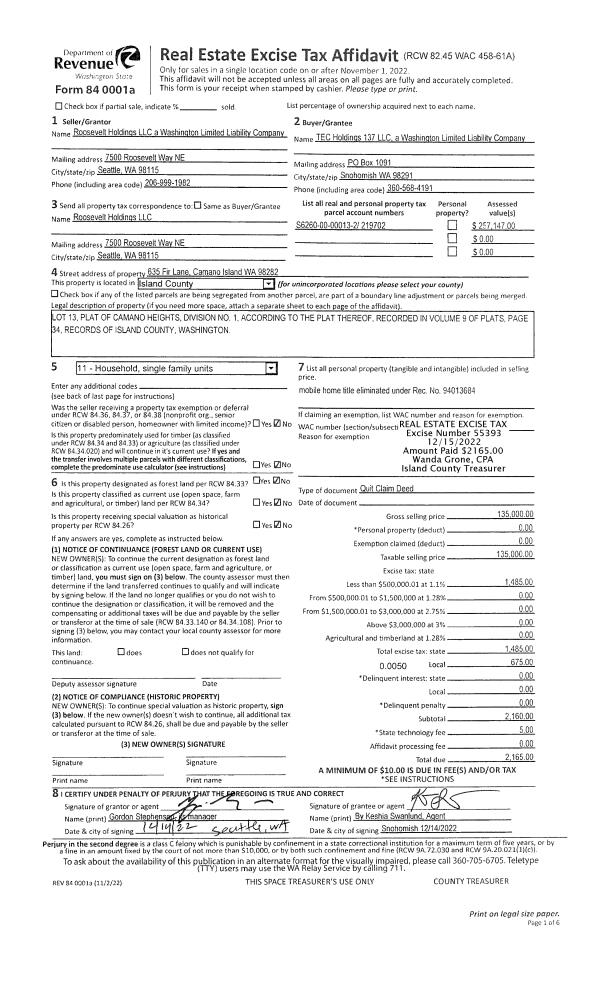
Property
Account |
| Property ID: | 677887 | Abbreviated Legal Description: | 1980 SKYLINE 14X52 VIN# 01950516N TPO $89069 FROM K-497983 |
| Geographic ID: | M91700000018-1 | Agent Code: | |
| Type: | Mobile Home | | |
| Tax Area: | 110 - APPRAISER-OH Schl Dist, outside OH, improved & 1 acre or less | Land Use Code | 11 |
| Open Space: | N | DFL | N |
| Historic Property: | N | Remodel Property: | N |
| Multi-Family Redevelopment: | N | | |
| Township: | | Section: | |
| Range: | |
Location |
| Address: | 2920 HELLER RD # 18 OAK HARBOR, WA 98277 | Mapsco: | |
| Neighborhood: | Cycle 6 | Map ID: | |
| Neighborhood CD: | 6 |
Owner |
| Name: | CAMPBELL, JUSTIN | Owner ID: | 309953 |
| Mailing Address: | 2920 HELLER RD #18 OAK HARBOR, WA 98277 | % Ownership: | 100.0000000000% |
| | | Exemptions: | |
Taxes and Assessment Details
Values
| (+) Improvement Homesite Value: | + | $0 | |
| (+) Improvement Non-Homesite Value: | + | $7,665 | |
| (+) Land Homesite Value: | + | $0 | |
| (+) Land Non-Homesite Value: | + | $0 | |
| (+) Curr Use (HS): | + | $0 | $0 |
| (+) Curr Use (NHS): | + | $0 | $0 |
| | | -------------------------- | |
| (=) Market Value: | = | $7,665 | |
| (–) Productivity Loss: | – | $0 | |
| | | -------------------------- | |
| (=) Subtotal: | = | $7,665 | |
| (+) Senior Appraised Value: | + | $0 | |
| (+) Non-Senior Appraised Value: | + | $7,665 | |
| | | -------------------------- | |
| (=) Total Appraised Value: | = | $7,665 | |
| (–) Senior Exemption Loss: | – | $0 | |
| (–) Exemption Loss: | – | $0 | |
| | | -------------------------- | |
| (=) Taxable Value: | = | $7,665 | |
Taxing Jurisdiction
| Owner: | CAMPBELL, JUSTIN | | |
| % Ownership: | 100.0000000000% | | |
| Total Value: | $7,665 | | |
| Tax Area: | 110 - APPRAISER-OH Schl Dist, outside OH, improved & 1 acre or less |
| CF | Conservation Futures | 0.0316035091 | $7,665 | $7,665 | $0.24 | | |
| CEM1 | Cemetery #1 | 0.0040320932 | $7,665 | $7,665 | $0.03 | | |
| FIRE2 | Fire & Rescue Dist #2 N Whidbey GEN | 0.5475949600 | $7,665 | $7,665 | $4.20 | | |
| HOBOND | Hospital BOND | 0.1910887512 | $7,665 | $7,665 | $1.46 | | |
| HOGEN | Hospital GEN | 0.3902502903 | $7,665 | $7,665 | $2.99 | | |
| CE | County Current Expense | 0.3708482477 | $7,665 | $7,665 | $2.84 | | |
| CR | County Roads | 0.4584763726 | $7,665 | $7,665 | $3.51 | | |
| ISLANDEMS | Hospital GEN (EMS) | 0.5000000000 | $7,665 | $7,665 | $3.83 | | |
| LIB | Library Sno-Isle GEN | 0.3153421757 | $7,665 | $7,665 | $2.42 | | |
| NWHIDPRMT | P & R N Whidbey GEN | 0.2004466701 | $7,665 | $7,665 | $1.54 | | |
| SCH201MO | School 201 Enrichment | 1.8559231640 | $7,665 | $7,665 | $14.23 | | |
| ST | State School | 1.3035497053 | $7,665 | $7,665 | $9.99 | | |
| ST2 | State School Part 2 | 0.8169543533 | $7,665 | $7,665 | $6.26 | | |
| | Total Tax Rate: | 6.9861102925 | | | | | |
| | | | | Taxes w/Current Exemptions: | $53.54 | | |
| | | | | Taxes w/o Exemptions: | $53.54 | | |
Improvement / Building
| Improvement #1: | MANUFACTURED HOME | State Code: | Y | 728.0 sqft | Value: | $7,665 |
| Bathrooms: | 0 | Bedrooms: | 0 | | Ceiling: | PLASTER PAINTED | Cooling: | EVAP NO DUCT | | Exterior Wall/Cover: | VINYL | Floor Covering: | CARPET 100% | | Floor Structure: | SLAB ON GRADE | Foundation: | SLAB | | Heating: | FHA ELECTRIC | Interior Finish: | PLASTER | | Plumbing Fixture Cnt: | 1 | Roof Slope: | FLAT | | Roof Structure/Cover: | CJ ALUMINIUM HEAVY |   |   |
|
Sketch
Property Image
Land
No land segments exist for this property.
Roll Value History
| 2026 | N/A | N/A | N/A | N/A | N/A |
| 2025 | $7,665 | $0 | $0 | $7,665 | $7,665 |
| 2024 | $7,984 | $0 | $0 | $7,984 | $7,984 |
| 2023 | $8,623 | $0 | $0 | $8,623 | $8,623 |
| 2022 | $6,341 | $0 | $0 | $6,341 | $6,341 |
| 2021 | $5,954 | $0 | $0 | $5,954 | $5,954 |
| 2020 | $5,995 | $0 | $0 | $5,995 | $5,995 |
| 2019 | $5,060 | $0 | $0 | $5,060 | $5,060 |
| 2018 | $5,229 | $0 | $0 | $5,229 | $5,229 |
| 2017 | $5,566 | $0 | $0 | $5,566 | $5,566 |
| 2016 | $3,364 | $0 | $0 | $3,364 | $3,364 |
| 2015 | $3,418 | $0 | $0 | $3,418 | $3,418 |
| 2014 | $3,471 | $0 | $0 | $3,471 | $3,471 |
| 2013 | $3,525 | $0 | $0 | $3,525 | $3,525 |
| 2012 | $3,578 | $0 | $0 | $3,578 | $3,578 |
| 2011 | $3,631 | $0 | $0 | $3,631 | $3,631 |
| 2010 | $3,883 | $0 | $0 | $3,883 | $3,883 |
| 2009 | $4,072 | $0 | $0 | $4,072 | $4,072 |
| 2008 | $4,082 | $0 | $0 | $4,082 | $4,082 |
| 2007 | $4,088 | $0 | $0 | $4,088 | $4,088 |
Deed and Sales History
| 1 | 09/05/2023 | MANHOME | Manufactured Home | CAMPBELL, QUENTIN | CAMPBELL, JUSTIN | | | $0.00 | 57875 | |
| 2 | 08/06/2023 | MANHOME | Manufactured Home | FLAT TOP LLC | CAMPBELL, QUENTIN | | | $5,000.00 | 57662 | |
| 3 | 08/23/2016 | MANHOME | Manufactured Home | AMOS, LARRY W | FLAT TOP LLC | | | $0.00 | 25793 | |
| 4 | 07/01/1994 | OTHER | Other - Misc. Documents | WILSON, DARIN K | AMOS, LARRY W | | | $7,080.00 | 42878 | 0 |
| 5 | 01/01/1989 | OTHER | Other - Misc. Documents | Unknown | WILSON, DARIN K | | | $8,895.00 | 90285 | 0 |
Payout Agreement
| No payout information available.. |