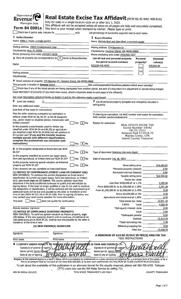
Property
Account |
| Property ID: | 677976 | Abbreviated Legal Description: | CEDAR HAVEN LOT 6 |
| Geographic ID: | S6354-00-00006-0 | Agent Code: | |
| Type: | Real | | |
| Tax Area: | 512 - APPRAISER-Stan/Cam Schl Dist, improved, greater than 1 acre | Land Use Code | 11 |
| Open Space: | N | DFL | N |
| Historic Property: | N | Remodel Property: | N |
| Multi-Family Redevelopment: | N | | |
| Township: | | Section: | |
| Range: | |
Location |
| Address: | 489 ALETHA PL CAMANO, WA 98282 | Mapsco: | |
| Neighborhood: | Cycle 5 | Map ID: | 933 |
| Neighborhood CD: | 5 |
Owner |
| Name: | BUTCHER, ROBERT JIM | Owner ID: | 287755 |
| Mailing Address: | ROBERTA MORGAN BUTCHER 489 ALETHA PL CAMANO ISLAND, WA 98282 | % Ownership: | 100.0000000000% |
| | | Exemptions: | |
Taxes and Assessment Details
Values
| (+) Improvement Homesite Value: | + | $0 | |
| (+) Improvement Non-Homesite Value: | + | $473,629 | |
| (+) Land Homesite Value: | + | $0 | |
| (+) Land Non-Homesite Value: | + | $270,000 | |
| (+) Curr Use (HS): | + | $0 | $0 |
| (+) Curr Use (NHS): | + | $0 | $0 |
| | | -------------------------- | |
| (=) Market Value: | = | $743,629 | |
| (–) Productivity Loss: | – | $0 | |
| | | -------------------------- | |
| (=) Subtotal: | = | $743,629 | |
| (+) Senior Appraised Value: | + | $0 | |
| (+) Non-Senior Appraised Value: | + | $743,629 | |
| | | -------------------------- | |
| (=) Total Appraised Value: | = | $743,629 | |
| (–) Senior Exemption Loss: | – | $0 | |
| (–) Exemption Loss: | – | $0 | |
| | | -------------------------- | |
| (=) Taxable Value: | = | $743,629 | |
Taxing Jurisdiction
| Owner: | BUTCHER, ROBERT JIM | | |
| % Ownership: | 100.0000000000% | | |
| Total Value: | $743,629 | | |
| Tax Area: | 512 - APPRAISER-Stan/Cam Schl Dist, improved, greater than 1 acre |
| CF | Conservation Futures | 0.0316035091 | $743,629 | $743,629 | $23.50 | | |
| EMS1 | Fire & Rescue Dist #1 Camano GEN (EMS) | 0.3677864386 | $743,629 | $743,629 | $273.50 | | |
| FIRE1 | Fire & Rescue Dist #1 Camano GEN | 1.2502910536 | $743,629 | $743,629 | $929.75 | | |
| FIRE1BOND | Fire & Rescue Dist #1 Camano BOND | 0.1570001679 | $743,629 | $743,629 | $116.75 | | |
| CE | County Current Expense | 0.3708482477 | $743,629 | $743,629 | $275.77 | | |
| CR | County Roads | 0.4584763726 | $743,629 | $743,629 | $340.94 | | |
| LCIB | Library Sno-Isle BOND (Camano Island) | 0.0396325772 | $743,629 | $743,629 | $29.47 | | |
| LIB | Library Sno-Isle GEN | 0.3153421757 | $743,629 | $743,629 | $234.50 | | |
| SCH205_401 | School 205-401 Enrichment | 1.2698420524 | $743,629 | $743,629 | $944.29 | | |
| SCH205BOND | School 205-401 BOND | 0.9396497583 | $743,629 | $743,629 | $698.75 | | |
| ST | State School | 1.3035497053 | $743,629 | $743,629 | $969.36 | | |
| ST2 | State School Part 2 | 0.8169543533 | $743,629 | $743,629 | $607.51 | | |
| | Total Tax Rate: | 7.3209764117 | | | | | |
| | | | | Taxes w/Current Exemptions: | $5,444.09 | | |
| | | | | Taxes w/o Exemptions: | $5,444.09 | | |
Improvement / Building
| Improvement #1: | RESIDENTIAL | State Code: | Y | 2685.6 sqft | Value: | $473,629 |
| Bathrooms: | 3 | Bedrooms: | 4 | | Ceiling: | DRYWALL PAINTED | Cooling: | HEAT PUMP/CONV/V | | Exterior Wall/Cover: | CEMENT FIBER | Floor Covering: | HARDWOOD/CARP 20-80 | | Floor Structure: | WOOD W/SUBFLOOR | Foundation: | CONCRETE | | Interior Finish: | DRYWALL PAINT | Plumbing Fixture Cnt: | 12 | | Roof Slope: | 5" IN 12" | Roof Structure/Cover: | CJ ASPHALT |
|
| | Type | Description | Class CD | Sub Class CD | Year Built | Area |
| | BAS | BASE/MAIN FLOOR | 3 | 0 | 1998 | 1551.6 |
| | DWN | DOWNSTAIRS LIVING AREA | 3 | 0 | 1998 | 1134.0 |
| | OP1 | OPEN PORCH SLAB | 3 | 0 | 1998 | 207.7 |
| | AGR | ATTACHED GARAGE | 3 | 0 | 1998 | 624.0 |
| | OWP | OPEN WOOD PORCH W/STEPS | 3 | 0 | 1998 | 294.0 |
| | OWC | OPEN WOOD PORCH W/STEPS/ROOF/C | 3 | 0 | 1998 | 56.0 |
| | OWP | OPEN WOOD PORCH W/STEPS | 3 | 0 | 1998 | 84.0 |
| | DGR | DETACHED GARAGE | 3 | 0 | 1998 | 1344.0 |
| | ENP | ENCLOSED PORCH | 3 | 0 | 1998 | 196.0 |
| | OCP | OPEN CARPORT | 3 | 0 | 1998 | 218.6 |
Sketch
Property Image
Land
| 1 | 18 | AC (02.01-03.00) | 2.3800 | 103672.80 | 0.00 | 0.00 | 1.00 | $270,000 | $0 |
Roll Value History
| 2026 | N/A | N/A | N/A | N/A | N/A |
| 2025 | $473,629 | $270,000 | $0 | $743,629 | $743,629 |
| 2024 | $479,183 | $270,000 | $0 | $749,183 | $749,183 |
| 2023 | $484,739 | $270,000 | $0 | $754,739 | $754,739 |
| 2022 | $438,345 | $260,000 | $0 | $698,345 | $698,345 |
| 2021 | $368,217 | $220,000 | $0 | $588,217 | $588,217 |
| 2020 | $359,336 | $200,000 | $0 | $559,336 | $559,336 |
| 2019 | $282,286 | $200,000 | $0 | $482,286 | $482,286 |
| 2018 | $250,240 | $150,000 | $0 | $400,240 | $400,240 |
| 2017 | $251,697 | $135,000 | $0 | $386,697 | $386,697 |
| 2016 | $254,694 | $100,000 | $0 | $354,694 | $354,694 |
| 2015 | $240,859 | $74,400 | $0 | $315,259 | $315,259 |
| 2014 | $243,394 | $74,400 | $0 | $317,794 | $317,794 |
| 2013 | $245,929 | $74,400 | $0 | $320,329 | $320,329 |
| 2012 | $248,464 | $74,400 | $0 | $322,864 | $322,864 |
| 2011 | $251,000 | $93,000 | $0 | $344,000 | $344,000 |
| 2010 | $260,836 | $93,000 | $0 | $353,836 | $353,836 |
| 2009 | $263,691 | $120,000 | $0 | $383,691 | $383,691 |
| 2008 | $267,581 | $85,000 | $0 | $352,581 | $352,581 |
| 2007 | $271,426 | $85,000 | $0 | $356,426 | $356,426 |
Deed and Sales History
| 1 | 10/11/2018 | WD | Warranty Deed | BERGSMA, DAN | BUTCHER, ROBERT JIM | | | $470,000.00 | 36521 | 4454452 |
| 2 | 01/30/2003 | 5 | DNU - Marriage License/Name Change | BERGSMA, DAN | BERGSMA, DAN | | | $0.00 | 30951 | 4050415 |
| 3 | 04/07/1999 | WD | Warranty Deed | KWANT, ALLEN R | BERGSMA, DAN | | | $227,000.00 | 91395 | 99009226 |
| 4 | 03/01/1998 | WD | Warranty Deed | HOXIE, RICHARD A | KWANT, ALLEN R | | | $52,000.00 | 80851 | 98004789 |
| 5 | 04/01/1994 | WD | Warranty Deed | ESPERSON, SAMUEL H | HOXIE, RICHARD A | | | $40,000.00 | 41457 | 94008893 |
| 6 | 01/01/1900 | OTHER | Other - Misc. Documents | Unknown | ESPERSON, SAMUEL H | | | $0.00 | 60506 | 420587 |
Payout Agreement
| No payout information available.. |