Property
Account |
| Property ID: | 678010 | Abbreviated Legal Description: | CAMANO HILLS #2 - PRD LOT 2 |
| Geographic ID: | S6263-02-00002-0 | Agent Code: | |
| Type: | Real | | |
| Tax Area: | 510 - APPRAISER-Stan/Cam Schl Dist, improved & 1 acre or less | Land Use Code | 11 |
| Open Space: | N | DFL | N |
| Historic Property: | N | Remodel Property: | N |
| Multi-Family Redevelopment: | N | | |
| Township: | | Section: | |
| Range: | |
Location |
| Address: | 248 JIM CREEK RD CAMANO ISLAND, WA 98282 | Mapsco: | |
| Neighborhood: | Cycle 5 | Map ID: | 451 |
| Neighborhood CD: | 5 |
Owner |
| Name: | ORCHARD, DANIEL D | Owner ID: | 313981 |
| Mailing Address: | KABRINA C ORHARD 248 JIM CREEK RD CAMANO ISLAND, WA 98282 | % Ownership: | 100.0000000000% |
| | | Exemptions: | |
Taxes and Assessment Details
Values
| (+) Improvement Homesite Value: | + | $0 | |
| (+) Improvement Non-Homesite Value: | + | $743,983 | |
| (+) Land Homesite Value: | + | $0 | |
| (+) Land Non-Homesite Value: | + | $300,000 | |
| (+) Curr Use (HS): | + | $0 | $0 |
| (+) Curr Use (NHS): | + | $0 | $0 |
| | | -------------------------- | |
| (=) Market Value: | = | $1,043,983 | |
| (–) Productivity Loss: | – | $0 | |
| | | -------------------------- | |
| (=) Subtotal: | = | $1,043,983 | |
| (+) Senior Appraised Value: | + | $0 | |
| (+) Non-Senior Appraised Value: | + | $1,043,983 | |
| | | -------------------------- | |
| (=) Total Appraised Value: | = | $1,043,983 | |
| (–) Senior Exemption Loss: | – | $0 | |
| (–) Exemption Loss: | – | $0 | |
| | | -------------------------- | |
| (=) Taxable Value: | = | $1,043,983 | |
Taxing Jurisdiction
| Owner: | ORCHARD, DANIEL D | | |
| % Ownership: | 100.0000000000% | | |
| Total Value: | $1,043,983 | | |
| Tax Area: | 510 - APPRAISER-Stan/Cam Schl Dist, improved & 1 acre or less |
| CF | Conservation Futures | 0.0316035091 | $1,043,983 | $1,043,983 | $32.99 | | |
| EMS1 | Fire & Rescue Dist #1 Camano GEN (EMS) | 0.3677864386 | $1,043,983 | $1,043,983 | $383.96 | | |
| FIRE1 | Fire & Rescue Dist #1 Camano GEN | 1.2502910536 | $1,043,983 | $1,043,983 | $1,305.28 | | |
| FIRE1BOND | Fire & Rescue Dist #1 Camano BOND | 0.1570001679 | $1,043,983 | $1,043,983 | $163.91 | | |
| CE | County Current Expense | 0.3708482477 | $1,043,983 | $1,043,983 | $387.16 | | |
| CR | County Roads | 0.4584763726 | $1,043,983 | $1,043,983 | $478.64 | | |
| LCIB | Library Sno-Isle BOND (Camano Island) | 0.0396325772 | $1,043,983 | $1,043,983 | $41.38 | | |
| LIB | Library Sno-Isle GEN | 0.3153421757 | $1,043,983 | $1,043,983 | $329.21 | | |
| SCH205_401 | School 205-401 Enrichment | 1.2698420524 | $1,043,983 | $1,043,983 | $1,325.69 | | |
| SCH205BOND | School 205-401 BOND | 0.9396497583 | $1,043,983 | $1,043,983 | $980.98 | | |
| ST | State School | 1.3035497053 | $1,043,983 | $1,043,983 | $1,360.88 | | |
| ST2 | State School Part 2 | 0.8169543533 | $1,043,983 | $1,043,983 | $852.89 | | |
| | Total Tax Rate: | 7.3209764117 | | | | | |
| | | | | Taxes w/Current Exemptions: | $7,642.97 | | |
| | | | | Taxes w/o Exemptions: | $7,642.97 | | |
Improvement / Building
| Improvement #1: | RESIDENTIAL | State Code: | Y | 3840.2 sqft | Value: | $743,983 |
| Bathrooms: | 2.5 | Bedrooms: | 4 | | Ceiling: | DRYWALL PAINTED | Cooling: | HEAT PUMP/CONV/V | | Exterior Wall/Cover: | WOOD SIDING | Floor Covering: | HARDWOOD/CARP 60-40 | | Floor Structure: | WOOD W/SUBFLOOR | Foundation: | CONCRETE | | Interior Finish: | DRYWALL PAINT | Plumbing Fixture Cnt: | 14 | | Roof Slope: | 8" IN 12" | Roof Structure/Cover: | CJ ASPHALT |
|
| | Type | Description | Class CD | Sub Class CD | Year Built | Area |
| | BAS | BASE/MAIN FLOOR | 5 | 0 | 1997 | 1820.2 |
| | BIG | BUILT IN GARAGE | 5 | 0 | 1997 | 977.2 |
| | UPS | UPPER STORY | 5 | 0 | 1997 | 2020.0 |
| | OWP | OPEN WOOD PORCH W/STEPS | 5 | 0 | 1997 | 290.2 |
| | OWC | OPEN WOOD PORCH W/STEPS/ROOF/C | 5 | 0 | 1997 | 174.0 |
Sketch
| No sketches available for this property. |
Property Image
Land
| 1 | 16 | AC (00.51-01.00) | 0.0000 | 0.00 | 0.00 | 0.00 | 1.00 | $300,000 | $0 |
Roll Value History
| 2026 | N/A | N/A | N/A | N/A | N/A |
| 2025 | $743,983 | $300,000 | $0 | $1,043,983 | $1,043,983 |
| 2024 | $664,694 | $285,000 | $0 | $949,694 | $949,694 |
| 2023 | $619,429 | $285,000 | $0 | $904,429 | $904,429 |
| 2022 | $567,474 | $275,000 | $0 | $842,474 | $842,474 |
| 2021 | $464,871 | $175,000 | $0 | $639,871 | $639,871 |
| 2020 | $454,397 | $150,000 | $0 | $604,397 | $604,397 |
| 2019 | $371,312 | $160,000 | $0 | $531,312 | $531,312 |
| 2018 | $372,428 | $140,000 | $0 | $512,428 | $512,428 |
| 2017 | $374,633 | $130,000 | $0 | $504,633 | $504,633 |
| 2016 | $379,093 | $110,000 | $0 | $489,093 | $489,093 |
| 2015 | $360,110 | $66,400 | $0 | $426,510 | $426,510 |
| 2014 | $364,461 | $66,400 | $0 | $430,861 | $430,861 |
| 2013 | $368,812 | $66,400 | $0 | $435,212 | $435,212 |
| 2012 | $373,162 | $66,400 | $0 | $439,562 | $439,562 |
| 2011 | $377,513 | $83,000 | $0 | $460,513 | $460,513 |
| 2010 | $391,808 | $83,000 | $0 | $474,808 | $474,808 |
| 2009 | $409,184 | $130,000 | $0 | $539,184 | $539,184 |
| 2008 | $428,174 | $136,000 | $0 | $564,174 | $564,174 |
| 2007 | $434,027 | $74,500 | $0 | $508,527 | $508,527 |
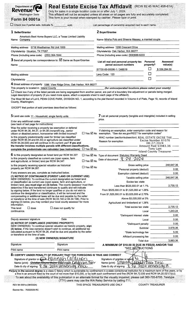
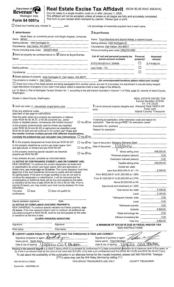
Deed and Sales History
| 1 | 09/23/2024 | WD | Warranty Deed | LEMELSON, CAROLYN RENE | ORCHARD, DANIEL D | | | $1,064,000.00 | 61364 | 4577456 |
| 2 | 01/18/2024 | WD | Warranty Deed | NYGARD, FREDERICK C | LEMELSON, CAROLYN RENE | | | $960,000.00 | 59053 | 4568754 |
| 3 | 06/25/2004 | WD | Warranty Deed | GREEN, RALPH A | NYGARD, FREDERICK C | | | $419,950.00 | 42862 | 4105175 |
| 4 | 09/04/2002 | WD | Warranty Deed | HENNING, MATTHEW | GREEN, RALPH A | | | $368,000.00 | 23573 | 4030632 |
| 5 | 09/04/2002 | QCD | Quit Claim Deed | HENNING CONSTRUCTION, INC, | HENNING, MATTHEW | | | $0.00 | 23572 | 4030631 |
| 6 | 04/04/2002 | QCD | Quit Claim Deed | HENNING, MATTHEW S | HENNING CONSTRUCTION, INC, | | | $0.00 | 21954 | 4020895 |
| 7 | 04/01/1997 | WD | Warranty Deed | HOLBECK, LIMITED P | HENNING, MATTHEW S | | | $46,750.00 | 71191 | 97005342 |
| 8 | 01/01/1900 | OTHER | Other - Misc. Documents | Unknown | HOLBECK, LIMITED P | | | $0.00 | 4475 | 90014757 |
Payout Agreement
| No payout information available.. |