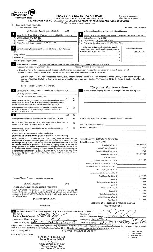
Property
Account |
| Property ID: | 678083 | Abbreviated Legal Description: | CAMANO HILLS #2 - PRD LOT 9 |
| Geographic ID: | S6263-02-00009-0 | Agent Code: | |
| Type: | Real | | |
| Tax Area: | 512 - APPRAISER-Stan/Cam Schl Dist, improved, greater than 1 acre | Land Use Code | 11 |
| Open Space: | N | DFL | N |
| Historic Property: | N | Remodel Property: | N |
| Multi-Family Redevelopment: | N | | |
| Township: | | Section: | |
| Range: | |
Location |
| Address: | 280 JIM CREEK RD CAMANO ISLAND, WA 98282 | Mapsco: | |
| Neighborhood: | Cycle 5 | Map ID: | 451 |
| Neighborhood CD: | 5 |
Owner |
| Name: | JAYNES, CLAUDE | Owner ID: | 295155 |
| Mailing Address: | MONICA JAYNES 280 JIM CREEK RD CAMANO ISLAND, WA 98282 | % Ownership: | 100.0000000000% |
| | | Exemptions: | |
Taxes and Assessment Details
Values
| (+) Improvement Homesite Value: | + | $0 | |
| (+) Improvement Non-Homesite Value: | + | $364,879 | |
| (+) Land Homesite Value: | + | $0 | |
| (+) Land Non-Homesite Value: | + | $300,000 | |
| (+) Curr Use (HS): | + | $0 | $0 |
| (+) Curr Use (NHS): | + | $0 | $0 |
| | | -------------------------- | |
| (=) Market Value: | = | $664,879 | |
| (–) Productivity Loss: | – | $0 | |
| | | -------------------------- | |
| (=) Subtotal: | = | $664,879 | |
| (+) Senior Appraised Value: | + | $0 | |
| (+) Non-Senior Appraised Value: | + | $664,879 | |
| | | -------------------------- | |
| (=) Total Appraised Value: | = | $664,879 | |
| (–) Senior Exemption Loss: | – | $0 | |
| (–) Exemption Loss: | – | $0 | |
| | | -------------------------- | |
| (=) Taxable Value: | = | $664,879 | |
Taxing Jurisdiction
| Owner: | JAYNES, CLAUDE | | |
| % Ownership: | 100.0000000000% | | |
| Total Value: | $664,879 | | |
| Tax Area: | 512 - APPRAISER-Stan/Cam Schl Dist, improved, greater than 1 acre |
| CF | Conservation Futures | 0.0316035091 | $664,879 | $664,879 | $21.01 | | |
| EMS1 | Fire & Rescue Dist #1 Camano GEN (EMS) | 0.3677864386 | $664,879 | $664,879 | $244.53 | | |
| FIRE1 | Fire & Rescue Dist #1 Camano GEN | 1.2502910536 | $664,879 | $664,879 | $831.29 | | |
| FIRE1BOND | Fire & Rescue Dist #1 Camano BOND | 0.1570001679 | $664,879 | $664,879 | $104.39 | | |
| CE | County Current Expense | 0.3708482477 | $664,879 | $664,879 | $246.57 | | |
| CR | County Roads | 0.4584763726 | $664,879 | $664,879 | $304.83 | | |
| LCIB | Library Sno-Isle BOND (Camano Island) | 0.0396325772 | $664,879 | $664,879 | $26.35 | | |
| LIB | Library Sno-Isle GEN | 0.3153421757 | $664,879 | $664,879 | $209.66 | | |
| SCH205_401 | School 205-401 Enrichment | 1.2698420524 | $664,879 | $664,879 | $844.29 | | |
| SCH205BOND | School 205-401 BOND | 0.9396497583 | $664,879 | $664,879 | $624.75 | | |
| ST | State School | 1.3035497053 | $664,879 | $664,879 | $866.70 | | |
| ST2 | State School Part 2 | 0.8169543533 | $664,879 | $664,879 | $543.18 | | |
| | Total Tax Rate: | 7.3209764117 | | | | | |
| | | | | Taxes w/Current Exemptions: | $4,867.55 | | |
| | | | | Taxes w/o Exemptions: | $4,867.55 | | |
Improvement / Building
| Improvement #1: | RESIDENTIAL | State Code: | Y | 1986.8 sqft | Value: | $364,879 |
| Bathrooms: | 2.5 | Bedrooms: | 3 | | Ceiling: | DRYWALL PAINTED | Exterior Wall/Cover: | CEMENT FIBER | | Floor Covering: | CERAMIC TILE/CPT 40-60 | Floor Structure: | WOOD W/SUBFLOOR | | Foundation: | CONCRETE | Heating: | FHA GAS | | Interior Finish: | DRYWALL PAINT | Plumbing Fixture Cnt: | 13 | | Roof Slope: | 5" IN 12" | Roof Structure/Cover: | CJ ASPHALT |
|
| | Type | Description | Class CD | Sub Class CD | Year Built | Area |
| | BAS | BASE/MAIN FLOOR | 3 | 0 | 1996 | 1986.8 |
| | OP1 | OPEN PORCH SLAB | 3 | 0 | 1996 | 633.0 |
| | OP1 | OPEN PORCH SLAB | 3 | 0 | 1996 | 230.9 |
| | AGR | ATTACHED GARAGE | 3 | 0 | 1996 | 896.0 |
| | OWC | OPEN WOOD PORCH W/STEPS/ROOF/C | 3 | 0 | 1996 | 108.0 |
Sketch
Property Image
Land
| 1 | 17 | AC (01.01-02.00) | 0.0000 | 0.00 | 0.00 | 0.00 | 1.00 | $300,000 | $0 |
Roll Value History
| 2026 | N/A | N/A | N/A | N/A | N/A |
| 2025 | $364,879 | $300,000 | $0 | $664,879 | $664,879 |
| 2024 | $369,484 | $285,000 | $0 | $654,484 | $654,484 |
| 2023 | $374,088 | $285,000 | $0 | $659,088 | $659,088 |
| 2022 | $342,913 | $275,000 | $0 | $617,913 | $617,913 |
| 2021 | $287,318 | $175,000 | $0 | $462,318 | $462,318 |
| 2020 | $279,981 | $150,000 | $0 | $429,981 | $429,981 |
| 2019 | $211,434 | $160,000 | $0 | $371,434 | $371,434 |
| 2018 | $212,084 | $140,000 | $0 | $352,084 | $352,084 |
| 2017 | $213,304 | $130,000 | $0 | $343,304 | $343,304 |
| 2016 | $215,906 | $110,000 | $0 | $325,906 | $325,906 |
| 2015 | $204,094 | $66,400 | $0 | $270,494 | $270,494 |
| 2014 | $206,516 | $66,400 | $0 | $272,916 | $272,916 |
| 2013 | $208,936 | $66,400 | $0 | $275,336 | $275,336 |
| 2012 | $211,357 | $66,400 | $0 | $277,757 | $277,757 |
| 2011 | $213,779 | $83,000 | $0 | $296,779 | $296,779 |
| 2010 | $224,590 | $83,000 | $0 | $307,590 | $307,590 |
| 2009 | $228,214 | $130,000 | $0 | $358,214 | $358,214 |
| 2008 | $231,802 | $136,000 | $0 | $367,802 | $367,802 |
| 2007 | $235,496 | $74,500 | $0 | $309,996 | $309,996 |
Deed and Sales History
| 1 | 07/06/2020 | WD | Warranty Deed | CARDER, CHERYL L | JAYNES, CLAUDE | | | $497,500.00 | 43769 | 4491115 |
| 2 | 09/15/2015 | DECREE | Divorce Decree/Legal Separation | MCCOY, CHAD T | CARDER, CHERYL L | | | $0.00 | 21433 | 4386396 |
| 3 | 10/18/2012 | CCOMPROP | Create Community Property | MCCOY, CHAD T | MCCOY, CHAD T | | | $0.00 | 9324 | 4326292 |
| 4 | 07/23/2003 | ESTSEPPROP | Establish Separate Property | MCCOY, CHAD T | MCCOY, CHAD T | | | $0.00 | 33256 | 4068690 |
| 5 | 07/17/2003 | WD | Warranty Deed | GRIGSBY, TIMOTHY J | MCCOY, CHAD T | | | $240,000.00 | 33254 | 4068689 |
| 6 | 04/25/2000 | WD | Warranty Deed | CALLEN, SUSAN M | GRIGSBY, TIMOTHY J | | | $225,000.00 | 1550 | 20007480 |
| 7 | 09/09/1999 | ESTSEPPROP | Establish Separate Property | WILSON, DAN E | CALLEN, SUSAN M | | | $0.00 | 93824 | 99021334 |
| 8 | 02/10/1999 | WD | Warranty Deed | HARRIS, STANLEY J | WILSON, DAN E | | | $199,999.00 | 90583 | 99004093 |
| 9 | 02/01/1996 | WD | Warranty Deed | HOLBECK, LIMITED P | HARRIS, STANLEY J | | | $45,475.00 | 60626 | 96003330 |
| 10 | 01/01/1900 | OTHER | Other - Misc. Documents | Unknown | HOLBECK, LIMITED P | | | $0.00 | 4475 | 90014757 |
Payout Agreement
| No payout information available.. |