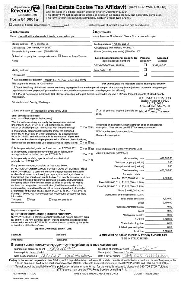
Property
Account |
| Property ID: | 678172 | Abbreviated Legal Description: | SUNNY VW FRM LOT 1 SP 16-92.8245.00-00001.1 V2 SP P395 AF#93002675 |
| Geographic ID: | S8245-00-00001-3 | Agent Code: | |
| Type: | Real | | |
| Tax Area: | 762 - APPRAISER-S Whid Schl Dist, Special District, improved, greater than 1 acre | Land Use Code | 11 |
| Open Space: | N | DFL | N |
| Historic Property: | N | Remodel Property: | N |
| Multi-Family Redevelopment: | N | | |
| Township: | | Section: | |
| Range: | |
Location |
| Address: | 5647 HAWKSBEARD RD FREELAND, WA 98249 | Mapsco: | |
| Neighborhood: | Cycle 3 | Map ID: | 327 |
| Neighborhood CD: | 3 |
Owner |
| Name: | DANCE, CHRISTOPHER L | Owner ID: | 101408 |
| Mailing Address: | MYSTI E MCMASTER PO BOX 1396 FREELAND, WA 98249-1396 | % Ownership: | 100.0000000000% |
| | | Exemptions: | |
Taxes and Assessment Details
Values
| (+) Improvement Homesite Value: | + | $0 | |
| (+) Improvement Non-Homesite Value: | + | $421,202 | |
| (+) Land Homesite Value: | + | $0 | |
| (+) Land Non-Homesite Value: | + | $310,000 | |
| (+) Curr Use (HS): | + | $0 | $0 |
| (+) Curr Use (NHS): | + | $0 | $0 |
| | | -------------------------- | |
| (=) Market Value: | = | $731,202 | |
| (–) Productivity Loss: | – | $0 | |
| | | -------------------------- | |
| (=) Subtotal: | = | $731,202 | |
| (+) Senior Appraised Value: | + | $0 | |
| (+) Non-Senior Appraised Value: | + | $731,202 | |
| | | -------------------------- | |
| (=) Total Appraised Value: | = | $731,202 | |
| (–) Senior Exemption Loss: | – | $0 | |
| (–) Exemption Loss: | – | $0 | |
| | | -------------------------- | |
| (=) Taxable Value: | = | $731,202 | |
Taxing Jurisdiction
| Owner: | DANCE, CHRISTOPHER L | | |
| % Ownership: | 100.0000000000% | | |
| Total Value: | $731,202 | | |
| Tax Area: | 762 - APPRAISER-S Whid Schl Dist, Special District, improved, greater than 1 acre |
| CF | Conservation Futures | 0.0316035091 | $731,202 | $731,202 | $23.11 | | |
| FIRE3 | Fire & Rescue Dist #3 S Whidbey GEN | 1.2004855531 | $731,202 | $731,202 | $877.80 | | |
| HOBOND | Hospital BOND | 0.1910887512 | $731,202 | $731,202 | $139.72 | | |
| HOGEN | Hospital GEN | 0.3902502903 | $731,202 | $731,202 | $285.35 | | |
| CE | County Current Expense | 0.3708482477 | $731,202 | $731,202 | $271.16 | | |
| CR | County Roads | 0.4584763726 | $731,202 | $731,202 | $335.24 | | |
| ISLANDEMS | Hospital GEN (EMS) | 0.5000000000 | $731,202 | $731,202 | $365.60 | | |
| LIB | Library Sno-Isle GEN | 0.3153421757 | $731,202 | $731,202 | $230.58 | | |
| PORTWHID | Port of S Whidbey GEN | 0.1094540357 | $731,202 | $731,202 | $80.03 | | |
| SCH206BOND | School 206 BOND | 0.3161759235 | $731,202 | $731,202 | $231.19 | | |
| SCH206MO | School 206 Enrichment | 0.4547169547 | $731,202 | $731,202 | $332.49 | | |
| ST | State School | 1.3035497053 | $731,202 | $731,202 | $953.16 | | |
| ST2 | State School Part 2 | 0.8169543533 | $731,202 | $731,202 | $597.36 | | |
| SWHIDPRBD | P & R S Whidbey BOND | 0.0152817568 | $731,202 | $731,202 | $11.17 | | |
| SWHIDPRBD2 | P & R S Whidbey BOND2 | 0.0138911264 | $731,202 | $731,202 | $10.16 | | |
| SWHIDPRMT | P & R S Whidbey GEN | 0.2053334452 | $731,202 | $731,202 | $150.14 | | |
| | Total Tax Rate: | 6.6934522006 | | | | | |
| | | | | Taxes w/Current Exemptions: | $4,894.26 | | |
| | | | | Taxes w/o Exemptions: | $4,894.26 | | |
Improvement / Building
| Improvement #1: | RESIDENTIAL | State Code: | Y | 1395.0 sqft | Value: | $283,900 |
| Bathrooms: | 1.75 | Bedrooms: | 2 | | Ceiling: | DRYWALL PAINTED | Exterior Wall/Cover: | SHINGLE | | Floor Covering: | CERAMIC TILE/CPT 40-60 | Floor Structure: | WOOD W/SUBFLOOR | | Foundation: | CONCRETE BLOCKS | Heating: | FHA ELECTRIC | | Interior Finish: | DRYWALL PAINT | Plumbing Fixture Cnt: | 9 | | Roof Slope: | 5" IN 12" | Roof Structure/Cover: | CJ ASPHALT |
|
| | Type | Description | Class CD | Sub Class CD | Year Built | Area |
| | BAS | BASE/MAIN FLOOR | 3 | 0 | 1963 | 1395.0 |
| | UB6 | BASEMENT UNFINISHED 6" | 3 | 0 | 1963 | 1395.0 |
| | OWP | OPEN WOOD PORCH W/STEPS | 3 | 0 | 1963 | 613.6 |
| | OWP | OPEN WOOD PORCH W/STEPS | 3 | 0 | 1963 | 288.0 |
| | ENP | ENCLOSED PORCH | 3 | 0 | 1963 | 80.0 |
| | DGR | DETACHED GARAGE | 3 | 0 | 1963 | 672.0 |
| | UTY | STORAGE/UTILITY | 3 | 0 | 1963 | 864.0 |
| Improvement #2: | RESIDENTIAL | State Code: | Y | 672.0 sqft | Value: | $137,302 |
| Bathrooms: | 1 | Bedrooms: | 1 | | Ceiling: | DRYWALL PAINTED | Exterior Wall/Cover: | PLY/HARDBOARD T-111 | | Floor Covering: | CARPET/VINYL 80-20 | Floor Structure: | WOOD W/SUBFLOOR | | Foundation: | CONCRETE | Heating: | (NONE) | | Interior Finish: | DRYWALL PAINT | Plumbing Fixture Cnt: | 6 | | Roof Slope: | 4" IN 12" | Roof Structure/Cover: | CJ ASPHALT |
|
| | Type | Description | Class CD | Sub Class CD | Year Built | Area |
| | BAS | BASE/MAIN FLOOR | 3 | 0 | 1999 | 672.0 |
| | BIG | BUILT IN GARAGE | 3 | 0 | 1999 | 672.0 |
| | OWP | OPEN WOOD PORCH W/STEPS | 3 | 0 | 1999 | 108.0 |
| | OWP | OPEN WOOD PORCH W/STEPS | 3 | 0 | 1999 | 52.0 |
Sketch
Property Image
Land
| 1 | 18 | AC (02.01-03.00) | 2.9100 | 126759.60 | 0.00 | 0.00 | 1.00 | $310,000 | $0 |
Roll Value History
| 2026 | N/A | N/A | N/A | N/A | N/A |
| 2025 | $421,202 | $310,000 | $0 | $731,202 | $731,202 |
| 2024 | $427,403 | $290,000 | $0 | $717,403 | $717,403 |
| 2023 | $433,601 | $290,000 | $0 | $723,601 | $723,601 |
| 2022 | $398,247 | $270,000 | $0 | $668,247 | $668,247 |
| 2021 | $351,183 | $190,000 | $0 | $541,183 | $541,183 |
| 2020 | $342,341 | $180,000 | $0 | $522,341 | $522,341 |
| 2019 | $219,659 | $200,000 | $0 | $419,659 | $419,659 |
| 2018 | $220,373 | $190,000 | $0 | $410,373 | $410,373 |
| 2017 | $221,805 | $190,000 | $0 | $411,805 | $411,805 |
| 2016 | $224,670 | $140,000 | $0 | $364,670 | $364,670 |
| 2015 | $227,536 | $106,250 | $0 | $333,786 | $333,786 |
| 2014 | $213,123 | $106,250 | $0 | $319,373 | $319,373 |
| 2013 | $193,928 | $106,250 | $0 | $300,178 | $300,178 |
| 2012 | $196,686 | $106,250 | $0 | $302,936 | $302,936 |
| 2011 | $199,450 | $125,000 | $0 | $324,450 | $324,450 |
| 2010 | $214,995 | $125,000 | $0 | $339,995 | $339,995 |
| 2009 | $224,804 | $155,000 | $0 | $379,804 | $379,804 |
| 2008 | $227,862 | $179,034 | $0 | $406,896 | $406,896 |
| 2007 | $204,135 | $178,378 | $0 | $382,513 | $382,513 |
Deed and Sales History
| 1 | 06/22/2004 | WD | Warranty Deed | CLARK, STEVE D | DANCE, CHRISTOPHER L | | | $240,000.00 | 42951 | 4105582 |
| 2 | 12/01/1995 | WD | Warranty Deed | FULLER, ROY A | CLARK, STEVE D | | | $125,000.00 | 54520 | 95020800 |
| 3 | 01/01/1900 | OTHER | Other - Misc. Documents | Unknown | FULLER, ROY A | | | $0.00 | 62474 | 0 |
Payout Agreement
| No payout information available.. |