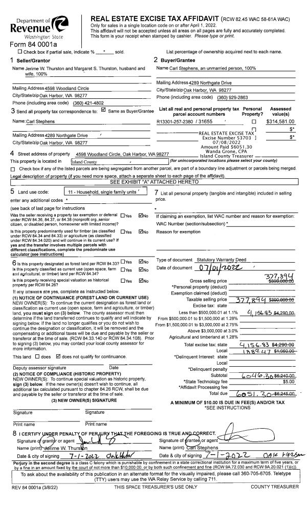
Property
Account |
| Property ID: | 678216 | Abbreviated Legal Description: | SCENIC HILL E76.11' OF N136.5' OF LOT 7 EX N20.5' INCL ADJ VAC ALLEY |
| Geographic ID: | S8120-00-00007-0 | Agent Code: | |
| Type: | Real | | |
| Tax Area: | 100 - APPRAISER-OH Schl Dist, in OH | Land Use Code | 12 |
| Open Space: | N | DFL | N |
| Historic Property: | N | Remodel Property: | N |
| Multi-Family Redevelopment: | N | | |
| Township: | | Section: | |
| Range: | |
Location |
| Address: | 50 SE PASEK ST OAK HARBOR, WA 98277 | Mapsco: | |
| Neighborhood: | Cycle 1 | Map ID: | 257 |
| Neighborhood CD: | 1 |
Owner |
| Name: | LYCKSELL, ROBERT L | Owner ID: | 201595 |
| Mailing Address: | JUDY M LYCKSELL 2410 W MARIE WAY OAK HARBOR, WA 98277 | % Ownership: | 100.0000000000% |
| | | Exemptions: | |
Taxes and Assessment Details
Values
| (+) Improvement Homesite Value: | + | $0 | |
| (+) Improvement Non-Homesite Value: | + | $248,334 | |
| (+) Land Homesite Value: | + | $0 | |
| (+) Land Non-Homesite Value: | + | $185,000 | |
| (+) Curr Use (HS): | + | $0 | $0 |
| (+) Curr Use (NHS): | + | $0 | $0 |
| | | -------------------------- | |
| (=) Market Value: | = | $433,334 | |
| (–) Productivity Loss: | – | $0 | |
| | | -------------------------- | |
| (=) Subtotal: | = | $433,334 | |
| (+) Senior Appraised Value: | + | $0 | |
| (+) Non-Senior Appraised Value: | + | $433,334 | |
| | | -------------------------- | |
| (=) Total Appraised Value: | = | $433,334 | |
| (–) Senior Exemption Loss: | – | $0 | |
| (–) Exemption Loss: | – | $0 | |
| | | -------------------------- | |
| (=) Taxable Value: | = | $433,334 | |
Taxing Jurisdiction
| Owner: | LYCKSELL, ROBERT L | | |
| % Ownership: | 100.0000000000% | | |
| Total Value: | $433,334 | | |
| Tax Area: | 100 - APPRAISER-OH Schl Dist, in OH |
| CF | Conservation Futures | 0.0316035091 | $433,334 | $433,334 | $13.69 | | |
| CEM1 | Cemetery #1 | 0.0040320932 | $433,334 | $433,334 | $1.75 | | |
| COH | City of Oak Harbor | 2.3001546061 | $433,334 | $433,334 | $996.74 | | |
| OAKBOND | City of Oak Harbor BOND | 0.1926904192 | $433,334 | $433,334 | $83.50 | | |
| HOBOND | Hospital BOND | 0.1910887512 | $433,334 | $433,334 | $82.81 | | |
| HOGEN | Hospital GEN | 0.3902502903 | $433,334 | $433,334 | $169.11 | | |
| CE | County Current Expense | 0.3708482477 | $433,334 | $433,334 | $160.70 | | |
| ISLANDEMS | Hospital GEN (EMS) | 0.5000000000 | $433,334 | $433,334 | $216.67 | | |
| LIB | Library Sno-Isle GEN | 0.3153421757 | $433,334 | $433,334 | $136.65 | | |
| NWHIDPRMT | P & R N Whidbey GEN | 0.2004466701 | $433,334 | $433,334 | $86.86 | | |
| SCH201MO | School 201 Enrichment | 1.8559231640 | $433,334 | $433,334 | $804.23 | | |
| ST | State School | 1.3035497053 | $433,334 | $433,334 | $564.87 | | |
| ST2 | State School Part 2 | 0.8169543533 | $433,334 | $433,334 | $354.01 | | |
| | Total Tax Rate: | 8.4728839852 | | | | | |
| | | | | Taxes w/Current Exemptions: | $3,671.59 | | |
| | | | | Taxes w/o Exemptions: | $3,671.59 | | |
Improvement / Building
| Improvement #1: | RESIDENTIAL | State Code: | Y | 1488.0 sqft | Value: | $248,334 |
| Bathrooms: | 2 | Bedrooms: | 4 | | Ceiling: | DRYWALL PAINTED | Exterior Wall/Cover: | WOOD SIDING | | Floor Covering: | CARPET/VINYL 80-20 | Floor Structure: | WOOD W/SUBFLOOR | | Foundation: | CONCRETE | Heating: | BASEBOARD ELECTRIC | | Interior Finish: | DRYWALL PAINT | Plumbing Fixture Cnt: | 12 | | Roof Slope: | 4" IN 12" | Roof Structure/Cover: | CJ ASPHALT |
|
| | Type | Description | Class CD | Sub Class CD | Year Built | Area |
| | BAS | BASE/MAIN FLOOR | 3 | 0 | 1962 | 1488.0 |
| | OCP | OPEN CARPORT | 3 | 0 | 1962 | 294.0 |
| | OCP | OPEN CARPORT | 3 | 0 | 1962 | 293.4 |
| | UTY | STORAGE/UTILITY | 3 | 0 | 1962 | 42.0 |
| | UTY | STORAGE/UTILITY | 3 | 0 | 1962 | 42.0 |
Sketch
| No sketches available for this property. |
Property Image
Land
| 1 | 15 | SQ (12001-21780) | 0.2198 | 9574.49 | 0.00 | 0.00 | 1.00 | $185,000 | $0 |
Roll Value History
| 2026 | N/A | N/A | N/A | N/A | N/A |
| 2025 | $248,334 | $185,000 | $0 | $433,334 | $433,334 |
| 2024 | $256,543 | $175,000 | $0 | $431,543 | $431,543 |
| 2023 | $246,966 | $180,000 | $0 | $426,966 | $426,966 |
| 2022 | $226,527 | $180,000 | $0 | $406,527 | $406,527 |
| 2021 | $177,508 | $125,000 | $0 | $302,508 | $302,508 |
| 2020 | $172,789 | $100,000 | $0 | $272,789 | $272,789 |
| 2019 | $128,665 | $140,000 | $0 | $268,665 | $268,665 |
| 2018 | $129,088 | $110,000 | $0 | $239,088 | $239,088 |
| 2017 | $93,452 | $110,000 | $0 | $203,452 | $203,452 |
| 2016 | $95,090 | $90,000 | $0 | $185,090 | $185,090 |
| 2015 | $96,732 | $55,000 | $0 | $151,732 | $151,732 |
| 2014 | $98,370 | $55,000 | $0 | $153,370 | $153,370 |
| 2013 | $100,008 | $55,000 | $0 | $155,008 | $155,008 |
| 2012 | $101,649 | $90,000 | $0 | $191,649 | $191,649 |
| 2011 | $97,551 | $90,000 | $0 | $187,551 | $187,551 |
| 2010 | $98,197 | $90,000 | $0 | $188,197 | $188,197 |
| 2009 | $102,868 | $104,000 | $0 | $206,868 | $206,868 |
| 2008 | $104,522 | $122,000 | $0 | $226,522 | $226,522 |
| 2007 | $106,175 | $114,550 | $0 | $220,725 | $220,725 |
Deed and Sales History
| 1 | 12/06/2021 | WD | Warranty Deed | MILLER, KRISTIE J | LYCKSELL, ROBERT L | | | $540,000.00 | 51509 | 4536844 |
| 2 | 03/29/1999 | WD | Warranty Deed | MAGILL, JOSEPH G | MILLER, KRISTIE J | | | $116,000.00 | 91294 | 99008553 |
| 3 | 12/01/1992 | WD | Warranty Deed | EVERETT, LORNA M | MAGILL, JOSEPH G | | | $88,950.00 | 25138 | 92025310 |
| 4 | 12/01/1990 | QCD | Quit Claim Deed | Unknown | EVERETT, LORNA M | | | $0.00 | 6790 | 90023678 |
Payout Agreement
| No payout information available.. |