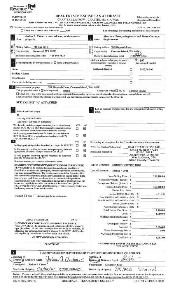
Property
Account |
| Property ID: | 678403 | Abbreviated Legal Description: | THE CEDARS LOT 7 |
| Geographic ID: | S6362-00-00007-0 | Agent Code: | |
| Type: | Real | | |
| Tax Area: | 700 - APPRAISER-S Whid Schl Dist, in town of Langley | Land Use Code | 11 |
| Open Space: | N | DFL | N |
| Historic Property: | N | Remodel Property: | N |
| Multi-Family Redevelopment: | N | | |
| Township: | | Section: | |
| Range: | |
Location |
| Address: | 1033 CEDAR CIR LANGLEY, WA 98260 | Mapsco: | |
| Neighborhood: | City of Langley | Map ID: | 720 |
| Neighborhood CD: | 04-L |
Owner |
| Name: | DEERFOOT, ERIN | Owner ID: | 314592 |
| Mailing Address: | 1033 CEDAR CIR LANGLEY, WA 98260 | % Ownership: | 100.0000000000% |
| | | Exemptions: | |
Taxes and Assessment Details
Values
| (+) Improvement Homesite Value: | + | $0 | |
| (+) Improvement Non-Homesite Value: | + | $424,330 | |
| (+) Land Homesite Value: | + | $0 | |
| (+) Land Non-Homesite Value: | + | $270,000 | |
| (+) Curr Use (HS): | + | $0 | $0 |
| (+) Curr Use (NHS): | + | $0 | $0 |
| | | -------------------------- | |
| (=) Market Value: | = | $694,330 | |
| (–) Productivity Loss: | – | $0 | |
| | | -------------------------- | |
| (=) Subtotal: | = | $694,330 | |
| (+) Senior Appraised Value: | + | $0 | |
| (+) Non-Senior Appraised Value: | + | $694,330 | |
| | | -------------------------- | |
| (=) Total Appraised Value: | = | $694,330 | |
| (–) Senior Exemption Loss: | – | $0 | |
| (–) Exemption Loss: | – | $0 | |
| | | -------------------------- | |
| (=) Taxable Value: | = | $694,330 | |
Taxing Jurisdiction
| Owner: | DEERFOOT, ERIN | | |
| % Ownership: | 100.0000000000% | | |
| Total Value: | $694,330 | | |
| Tax Area: | 700 - APPRAISER-S Whid Schl Dist, in town of Langley |
| CF | Conservation Futures | 0.0316035091 | $694,330 | $694,330 | $21.94 | | |
| LANG | City of Langley | 1.0093520762 | $694,330 | $694,330 | $700.82 | | |
| LANGBOND | City of Langley BOND | 1.0326110892 | $694,330 | $694,330 | $716.97 | | |
| FIRE3 | Fire & Rescue Dist #3 S Whidbey GEN | 1.2004855531 | $694,330 | $694,330 | $833.53 | | |
| HOBOND | Hospital BOND | 0.1910887512 | $694,330 | $694,330 | $132.68 | | |
| HOGEN | Hospital GEN | 0.3902502903 | $694,330 | $694,330 | $270.96 | | |
| CE | County Current Expense | 0.3708482477 | $694,330 | $694,330 | $257.49 | | |
| ISLANDEMS | Hospital GEN (EMS) | 0.5000000000 | $694,330 | $694,330 | $347.17 | | |
| LIB | Library Sno-Isle GEN | 0.3153421757 | $694,330 | $694,330 | $218.95 | | |
| PORTWHID | Port of S Whidbey GEN | 0.1094540357 | $694,330 | $694,330 | $76.00 | | |
| SCH206BOND | School 206 BOND | 0.3161759235 | $694,330 | $694,330 | $219.53 | | |
| SCH206MO | School 206 Enrichment | 0.4547169547 | $694,330 | $694,330 | $315.72 | | |
| ST | State School | 1.3035497053 | $694,330 | $694,330 | $905.09 | | |
| ST2 | State School Part 2 | 0.8169543533 | $694,330 | $694,330 | $567.24 | | |
| SWHIDPRBD | P & R S Whidbey BOND | 0.0152817568 | $694,330 | $694,330 | $10.61 | | |
| SWHIDPRBD2 | P & R S Whidbey BOND2 | 0.0138911264 | $694,330 | $694,330 | $9.65 | | |
| SWHIDPRMT | P & R S Whidbey GEN | 0.2053334452 | $694,330 | $694,330 | $142.57 | | |
| | Total Tax Rate: | 8.2769389934 | | | | | |
| | | | | Taxes w/Current Exemptions: | $5,746.92 | | |
| | | | | Taxes w/o Exemptions: | $5,746.92 | | |
Improvement / Building
| Improvement #1: | RESIDENTIAL | State Code: | Y | 2740.0 sqft | Value: | $424,330 |
| Bathrooms: | 3 | Bedrooms: | 0 | | Ceiling: | DRYWALL PAINTED | Exterior Wall/Cover: | SHINGLE | | Floor Covering: | CERAMIC TILE/CPT 40-60 | Floor Structure: | WOOD W/SUBFLOOR | | Foundation: | CONCRETE | Heating: | FHA GAS | | Interior Finish: | DRYWALL PAINT | Plumbing Fixture Cnt: | 12 | | Roof Slope: | 10" IN 12" | Roof Structure/Cover: | CJ ASPHALT |
|
| | Type | Description | Class CD | Sub Class CD | Year Built | Area |
| | BAS | BASE/MAIN FLOOR | 3 | 0 | 2004 | 1152.0 |
| | ATF | ATTIC FINISHED | 3 | 0 | 2004 | 540.0 |
| | DGR | DETACHED GARAGE | 3 | 0 | 2004 | 576.0 |
| | UPS | UPPER STORY | 3 | 0 | 2004 | 1252.0 |
| | OWP | OPEN WOOD PORCH W/STEPS | 3 | 0 | 2004 | 97.2 |
| | OWC | OPEN WOOD PORCH W/STEPS/ROOF/C | 3 | 0 | 2004 | 272.0 |
| | UPH | HALF STORY | 3 | 0 | 2004 | 336.0 |
Sketch
Property Image
Land
| 1 | 15 | SQ (12001-21780) | 0.0000 | 0.00 | 0.00 | 0.00 | 1.00 | $270,000 | $0 |
Roll Value History
| 2026 | N/A | N/A | N/A | N/A | N/A |
| 2025 | $424,330 | $270,000 | $0 | $694,330 | $694,330 |
| 2024 | $429,428 | $270,000 | $0 | $699,428 | $699,428 |
| 2023 | $434,524 | $270,000 | $0 | $704,524 | $704,524 |
| 2022 | $398,080 | $240,000 | $0 | $638,080 | $638,080 |
| 2021 | $350,164 | $200,000 | $0 | $550,164 | $550,164 |
| 2020 | $341,860 | $180,000 | $0 | $521,860 | $521,860 |
| 2019 | $270,179 | $230,000 | $0 | $500,179 | $500,179 |
| 2018 | $270,938 | $200,000 | $0 | $470,938 | $470,938 |
| 2017 | $272,452 | $170,000 | $0 | $442,452 | $442,452 |
| 2016 | $275,479 | $150,000 | $0 | $425,479 | $425,479 |
| 2015 | $278,505 | $130,000 | $0 | $408,505 | $408,505 |
| 2014 | $322,404 | $110,000 | $0 | $432,404 | $432,404 |
| 2013 | $325,889 | $110,000 | $0 | $435,889 | $435,889 |
| 2012 | $329,371 | $162,000 | $0 | $491,371 | $491,371 |
| 2011 | $332,856 | $180,000 | $0 | $512,856 | $512,856 |
| 2010 | $344,861 | $180,000 | $0 | $524,861 | $524,861 |
| 2009 | $362,488 | $200,000 | $0 | $562,488 | $562,488 |
| 2008 | $350,136 | $225,000 | $0 | $575,136 | $575,136 |
| 2007 | $353,856 | $183,750 | $0 | $537,606 | $537,606 |
Deed and Sales History
| 1 | 11/13/2024 | QCD | Quit Claim Deed | RODRIGUEZ, IAN D | DEERFOOT, ERIN | | | $0.00 | 61862 | 4579537 |
| 2 | 06/23/2012 | WD | Warranty Deed | LINEHAN JTWROS, PATRICIA | RODRIGUEZ, IAN D | | | $475,000.00 | 8096 | 4318216 |
| 3 | 03/17/2004 | WD | Warranty Deed | PAYNE, VICTORIA | LINEHAN JTWROS, PATRICIA | | | $350,000.00 | 41265 | 4095837 |
| 4 | 06/16/2003 | WD | Warranty Deed | GING, JOHN H | PAYNE, VICTORIA | | | $58,000.00 | 33706 | 4072145 |
| 5 | 07/01/1993 | WD | Warranty Deed | J, A M | GING, JOHN H | | | $46,500.00 | 32767 | 93014273 |
| 6 | 01/01/1900 | OTHER | Other - Misc. Documents | Unknown | J, A M | | | $0.00 | 13117 | 91013279 |
Payout Agreement
| No payout information available.. |