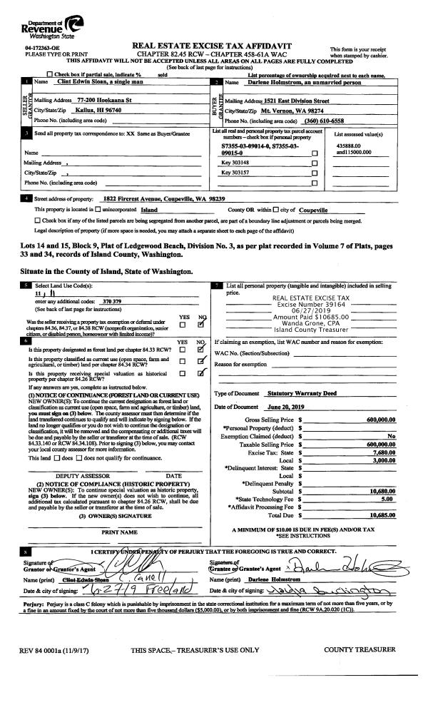
Property
Account |
| Property ID: | 678458 | Abbreviated Legal Description: | THE CEDARS LOT 12 TGW & SUB EZ AF#94001145 |
| Geographic ID: | S6362-00-00012-0 | Agent Code: | |
| Type: | Real | | |
| Tax Area: | 700 - APPRAISER-S Whid Schl Dist, in town of Langley | Land Use Code | 11 |
| Open Space: | N | DFL | N |
| Historic Property: | N | Remodel Property: | N |
| Multi-Family Redevelopment: | N | | |
| Township: | | Section: | |
| Range: | |
Location |
| Address: | 992 CEDAR CIR LANGLEY, WA 98260 | Mapsco: | |
| Neighborhood: | City of Langley | Map ID: | 720 |
| Neighborhood CD: | 04-L |
Owner |
| Name: | FORSBERG, JON | Owner ID: | 290206 |
| Mailing Address: | VICTORIA FORSBERG 992 CEDAR CIRCLE LANGLEY, WA 98260 | % Ownership: | 100.0000000000% |
| | | Exemptions: | |
Taxes and Assessment Details
Values
| (+) Improvement Homesite Value: | + | $0 | |
| (+) Improvement Non-Homesite Value: | + | $492,511 | |
| (+) Land Homesite Value: | + | $0 | |
| (+) Land Non-Homesite Value: | + | $270,000 | |
| (+) Curr Use (HS): | + | $0 | $0 |
| (+) Curr Use (NHS): | + | $0 | $0 |
| | | -------------------------- | |
| (=) Market Value: | = | $762,511 | |
| (–) Productivity Loss: | – | $0 | |
| | | -------------------------- | |
| (=) Subtotal: | = | $762,511 | |
| (+) Senior Appraised Value: | + | $0 | |
| (+) Non-Senior Appraised Value: | + | $762,511 | |
| | | -------------------------- | |
| (=) Total Appraised Value: | = | $762,511 | |
| (–) Senior Exemption Loss: | – | $0 | |
| (–) Exemption Loss: | – | $0 | |
| | | -------------------------- | |
| (=) Taxable Value: | = | $762,511 | |
Taxing Jurisdiction
| Owner: | FORSBERG, JON | | |
| % Ownership: | 100.0000000000% | | |
| Total Value: | $762,511 | | |
| Tax Area: | 700 - APPRAISER-S Whid Schl Dist, in town of Langley |
| CF | Conservation Futures | 0.0316035091 | $762,511 | $762,511 | $24.10 | | |
| LANG | City of Langley | 1.0093520762 | $762,511 | $762,511 | $769.64 | | |
| LANGBOND | City of Langley BOND | 1.0326110892 | $762,511 | $762,511 | $787.38 | | |
| FIRE3 | Fire & Rescue Dist #3 S Whidbey GEN | 1.2004855531 | $762,511 | $762,511 | $915.38 | | |
| HOBOND | Hospital BOND | 0.1910887512 | $762,511 | $762,511 | $145.71 | | |
| HOGEN | Hospital GEN | 0.3902502903 | $762,511 | $762,511 | $297.57 | | |
| CE | County Current Expense | 0.3708482477 | $762,511 | $762,511 | $282.78 | | |
| ISLANDEMS | Hospital GEN (EMS) | 0.5000000000 | $762,511 | $762,511 | $381.26 | | |
| LIB | Library Sno-Isle GEN | 0.3153421757 | $762,511 | $762,511 | $240.45 | | |
| PORTWHID | Port of S Whidbey GEN | 0.1094540357 | $762,511 | $762,511 | $83.46 | | |
| SCH206BOND | School 206 BOND | 0.3161759235 | $762,511 | $762,511 | $241.09 | | |
| SCH206MO | School 206 Enrichment | 0.4547169547 | $762,511 | $762,511 | $346.73 | | |
| ST | State School | 1.3035497053 | $762,511 | $762,511 | $993.97 | | |
| ST2 | State School Part 2 | 0.8169543533 | $762,511 | $762,511 | $622.94 | | |
| SWHIDPRBD | P & R S Whidbey BOND | 0.0152817568 | $762,511 | $762,511 | $11.65 | | |
| SWHIDPRBD2 | P & R S Whidbey BOND2 | 0.0138911264 | $762,511 | $762,511 | $10.59 | | |
| SWHIDPRMT | P & R S Whidbey GEN | 0.2053334452 | $762,511 | $762,511 | $156.57 | | |
| | Total Tax Rate: | 8.2769389934 | | | | | |
| | | | | Taxes w/Current Exemptions: | $6,311.27 | | |
| | | | | Taxes w/o Exemptions: | $6,311.27 | | |
Improvement / Building
| Improvement #1: | RESIDENTIAL | State Code: | Y | 2146.5 sqft | Value: | $492,511 |
| Bathrooms: | 2.5 | Bedrooms: | 3 | | Ceiling: | DRYWALL PAINTED | Exterior Wall/Cover: | WOOD SIDING | | Floor Covering: | HARDWOOD/CARP 60-40 | Floor Structure: | WOOD W/SUBFLOOR | | Foundation: | CONCRETE | Heating: | FHA GAS | | Interior Finish: | DRYWALL PAINT | Plumbing Fixture Cnt: | 15 | | Roof Slope: | 8" IN 12" | Roof Structure/Cover: | CJ ASPHALT |
|
| | Type | Description | Class CD | Sub Class CD | Year Built | Area |
| | BAS | BASE/MAIN FLOOR | 4 | 0 | 1994 | 1339.5 |
| | ATF | ATTIC FINISHED | 4 | 0 | 1994 | 343.0 |
| | DGR | DETACHED GARAGE | 4 | 0 | 1994 | 539.0 |
| | UPS | UPPER STORY | 4 | 0 | 1994 | 807.0 |
| | OWP | OPEN WOOD PORCH W/STEPS | 4 | 0 | 1994 | 496.0 |
| | OWC | OPEN WOOD PORCH W/STEPS/ROOF/C | 4 | 0 | 1994 | 496.5 |
Sketch
Property Image
Land
| 1 | 16 | AC (00.51-01.00) | 0.0000 | 0.00 | 0.00 | 0.00 | 1.00 | $270,000 | $0 |
Roll Value History
| 2026 | N/A | N/A | N/A | N/A | N/A |
| 2025 | $492,511 | $270,000 | $0 | $762,511 | $762,511 |
| 2024 | $498,573 | $270,000 | $0 | $768,573 | $768,573 |
| 2023 | $504,635 | $270,000 | $0 | $774,635 | $774,635 |
| 2022 | $462,441 | $240,000 | $0 | $702,441 | $702,441 |
| 2021 | $406,892 | $200,000 | $0 | $606,892 | $606,892 |
| 2020 | $374,450 | $180,000 | $0 | $554,450 | $554,450 |
| 2019 | $293,828 | $230,000 | $0 | $523,828 | $523,828 |
| 2018 | $294,711 | $200,000 | $0 | $494,711 | $466,476 |
| 2017 | $296,476 | $170,000 | $0 | $466,476 | $466,476 |
| 2016 | $300,006 | $150,000 | $0 | $450,006 | $450,006 |
| 2015 | $303,536 | $130,000 | $0 | $433,536 | $433,536 |
| 2014 | $267,899 | $110,000 | $0 | $377,899 | $377,899 |
| 2013 | $271,196 | $110,000 | $0 | $381,196 | $381,196 |
| 2012 | $274,497 | $162,000 | $0 | $436,497 | $436,497 |
| 2011 | $277,795 | $180,000 | $0 | $457,795 | $457,795 |
| 2010 | $288,428 | $180,000 | $0 | $468,428 | $468,428 |
| 2009 | $301,170 | $200,000 | $0 | $501,170 | $501,170 |
| 2008 | $292,059 | $225,000 | $0 | $517,059 | $517,059 |
| 2007 | $282,808 | $196,527 | $0 | $479,335 | $479,335 |
Deed and Sales History
| 1 | 05/11/2019 | WD | Warranty Deed | MARSTON, MARSHALL | FORSBERG, JON | | | $545,000.00 | 38666 | 4464028 |
| 2 | 12/11/2014 | ESTSEPPROP | Establish Separate Property | MARSTON, MARSHALL | MARSTON, MARSHALL | | | $0.00 | 17989 | 4370598 |
| 3 | 10/28/2014 | WD | Warranty Deed | EDGLEY, DAVID A & JANE | MARSTON, MARSHALL | | | $420,000.00 | 17410 | 4367887 |
| 4 | 08/01/1994 | WD | Warranty Deed | J, A M | EDGLEY, DAVID A | | | $50,000.00 | 43477 | 94018497 |
| 5 | 01/01/1900 | OTHER | Other - Misc. Documents | Unknown | J, A M | | | $0.00 | 13117 | 91013279 |
Payout Agreement
| No payout information available.. |