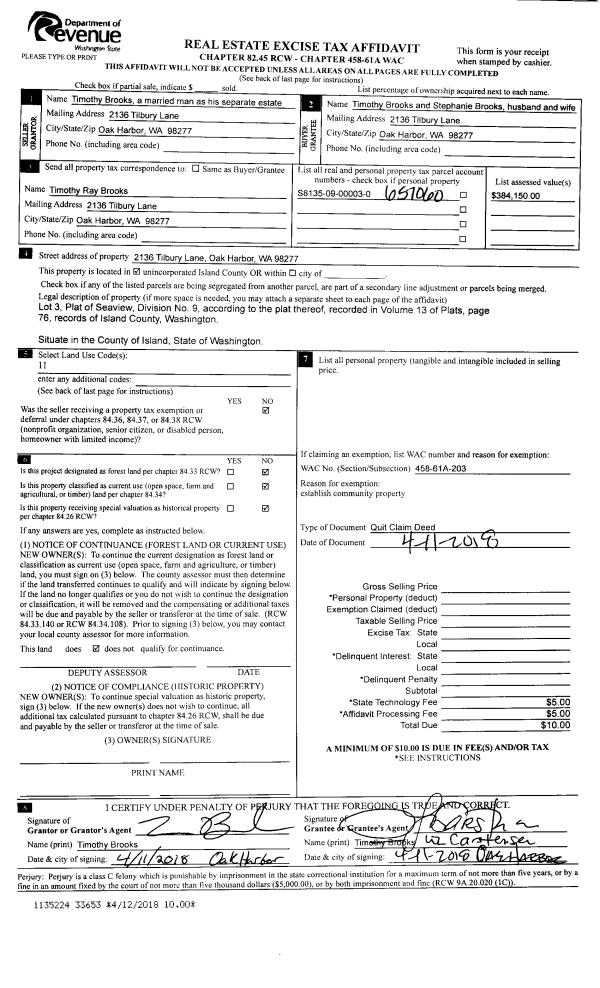
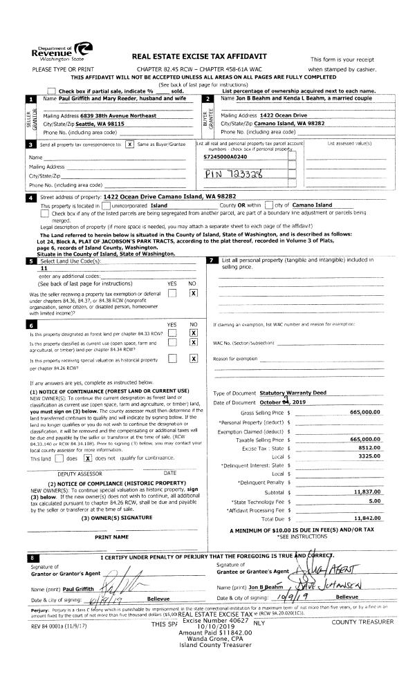
Property
Account |
| Property ID: | 678555 | Abbreviated Legal Description: | THE CEDARS LOT 22 |
| Geographic ID: | S6362-00-00022-0 | Agent Code: | |
| Type: | Real | | |
| Tax Area: | 700 - APPRAISER-S Whid Schl Dist, in town of Langley | Land Use Code | 11 |
| Open Space: | N | DFL | N |
| Historic Property: | N | Remodel Property: | N |
| Multi-Family Redevelopment: | N | | |
| Township: | | Section: | |
| Range: | |
Location |
| Address: | 1124 CEDAR CIR LANGLEY, WA 98260 | Mapsco: | |
| Neighborhood: | City of Langley | Map ID: | 720 |
| Neighborhood CD: | 04-L |
Owner |
| Name: | BAILEY III, WALTER BOYCE | Owner ID: | 284447 |
| Mailing Address: | NANCY GISBRECHT BAILEY 1124 CEDAR CIR LANGLEY, WA 98260 | % Ownership: | 100.0000000000% |
| | | Exemptions: | |
Taxes and Assessment Details
Values
| (+) Improvement Homesite Value: | + | $0 | |
| (+) Improvement Non-Homesite Value: | + | $393,976 | |
| (+) Land Homesite Value: | + | $0 | |
| (+) Land Non-Homesite Value: | + | $270,000 | |
| (+) Curr Use (HS): | + | $0 | $0 |
| (+) Curr Use (NHS): | + | $0 | $0 |
| | | -------------------------- | |
| (=) Market Value: | = | $663,976 | |
| (–) Productivity Loss: | – | $0 | |
| | | -------------------------- | |
| (=) Subtotal: | = | $663,976 | |
| (+) Senior Appraised Value: | + | $0 | |
| (+) Non-Senior Appraised Value: | + | $663,976 | |
| | | -------------------------- | |
| (=) Total Appraised Value: | = | $663,976 | |
| (–) Senior Exemption Loss: | – | $0 | |
| (–) Exemption Loss: | – | $0 | |
| | | -------------------------- | |
| (=) Taxable Value: | = | $663,976 | |
Taxing Jurisdiction
| Owner: | BAILEY III, WALTER BOYCE | | |
| % Ownership: | 100.0000000000% | | |
| Total Value: | $663,976 | | |
| Tax Area: | 700 - APPRAISER-S Whid Schl Dist, in town of Langley |
| CF | Conservation Futures | 0.0316035091 | $663,976 | $663,976 | $20.98 | | |
| LANG | City of Langley | 1.0093520762 | $663,976 | $663,976 | $670.19 | | |
| LANGBOND | City of Langley BOND | 1.0326110892 | $663,976 | $663,976 | $685.63 | | |
| FIRE3 | Fire & Rescue Dist #3 S Whidbey GEN | 1.2004855531 | $663,976 | $663,976 | $797.09 | | |
| HOBOND | Hospital BOND | 0.1910887512 | $663,976 | $663,976 | $126.88 | | |
| HOGEN | Hospital GEN | 0.3902502903 | $663,976 | $663,976 | $259.12 | | |
| CE | County Current Expense | 0.3708482477 | $663,976 | $663,976 | $246.23 | | |
| ISLANDEMS | Hospital GEN (EMS) | 0.5000000000 | $663,976 | $663,976 | $331.99 | | |
| LIB | Library Sno-Isle GEN | 0.3153421757 | $663,976 | $663,976 | $209.38 | | |
| PORTWHID | Port of S Whidbey GEN | 0.1094540357 | $663,976 | $663,976 | $72.67 | | |
| SCH206BOND | School 206 BOND | 0.3161759235 | $663,976 | $663,976 | $209.93 | | |
| SCH206MO | School 206 Enrichment | 0.4547169547 | $663,976 | $663,976 | $301.92 | | |
| ST | State School | 1.3035497053 | $663,976 | $663,976 | $865.53 | | |
| ST2 | State School Part 2 | 0.8169543533 | $663,976 | $663,976 | $542.44 | | |
| SWHIDPRBD | P & R S Whidbey BOND | 0.0152817568 | $663,976 | $663,976 | $10.15 | | |
| SWHIDPRBD2 | P & R S Whidbey BOND2 | 0.0138911264 | $663,976 | $663,976 | $9.22 | | |
| SWHIDPRMT | P & R S Whidbey GEN | 0.2053334452 | $663,976 | $663,976 | $136.34 | | |
| | Total Tax Rate: | 8.2769389934 | | | | | |
| | | | | Taxes w/Current Exemptions: | $5,495.69 | | |
| | | | | Taxes w/o Exemptions: | $5,495.69 | | |
Improvement / Building
| Improvement #1: | RESIDENTIAL | State Code: | Y | 1892.2 sqft | Value: | $393,976 |
| Bathrooms: | 3 | Bedrooms: | 3 | | Ceiling: | DRYWALL PAINTED | Cooling: | HEAT PUMP/CONV/V | | Exterior Wall/Cover: | PLY/HARDBOARD T-111 | Floor Covering: | HARDWOOD/CARP 20-80 | | Floor Structure: | WOOD W/SUBFLOOR | Foundation: | CONCRETE | | Interior Finish: | DRYWALL PAINT | Plumbing Fixture Cnt: | 11 | | Roof Slope: | 8" IN 12" | Roof Structure/Cover: | CJ ASPHALT |
|
| | Type | Description | Class CD | Sub Class CD | Year Built | Area |
| | BAS | BASE/MAIN FLOOR | 4 | 0 | 1993 | 1008.7 |
| | AGR | ATTACHED GARAGE | 4 | 0 | 1993 | 528.0 |
| | UPS | UPPER STORY | 4 | 0 | 1993 | 883.5 |
| | OWP | OPEN WOOD PORCH W/STEPS | 4 | 0 | 1993 | 145.2 |
| | OWC | OPEN WOOD PORCH W/STEPS/ROOF/C | 4 | 0 | 1993 | 247.5 |
| | ENP | ENCLOSED PORCH | 4 | 0 | 1993 | 113.8 |
Sketch
Property Image
Land
| 1 | 15 | SQ (12001-21780) | 0.0000 | 0.00 | 0.00 | 0.00 | 1.00 | $270,000 | $0 |
Roll Value History
| 2026 | N/A | N/A | N/A | N/A | N/A |
| 2025 | $393,976 | $270,000 | $0 | $663,976 | $663,976 |
| 2024 | $398,824 | $270,000 | $0 | $668,824 | $668,824 |
| 2023 | $403,673 | $270,000 | $0 | $673,673 | $673,673 |
| 2022 | $369,928 | $240,000 | $0 | $609,928 | $609,928 |
| 2021 | $321,520 | $200,000 | $0 | $521,520 | $521,520 |
| 2020 | $313,125 | $180,000 | $0 | $493,125 | $493,125 |
| 2019 | $230,613 | $230,000 | $0 | $460,613 | $460,613 |
| 2018 | $220,700 | $200,000 | $0 | $420,700 | $420,700 |
| 2017 | $222,023 | $170,000 | $0 | $392,023 | $392,023 |
| 2016 | $224,666 | $150,000 | $0 | $374,666 | $374,666 |
| 2015 | $227,308 | $130,000 | $0 | $357,308 | $357,308 |
| 2014 | $219,598 | $110,000 | $0 | $329,598 | $329,598 |
| 2013 | $222,292 | $110,000 | $0 | $332,292 | $332,292 |
| 2012 | $224,984 | $162,000 | $0 | $386,984 | $386,984 |
| 2011 | $227,679 | $180,000 | $0 | $407,679 | $407,679 |
| 2010 | $239,182 | $180,000 | $0 | $419,182 | $419,182 |
| 2009 | $249,232 | $200,000 | $0 | $449,232 | $449,232 |
| 2008 | $244,524 | $225,000 | $0 | $469,524 | $469,524 |
| 2007 | $293,420 | $183,750 | $0 | $477,170 | $477,170 |
Deed and Sales History
| 1 | 03/28/2018 | WD | Warranty Deed | KORNFELD, MARION E | BAILEY III, WALTER BOYCE | | | $420,000.00 | 33518 | 4441821 |
| 2 | 01/21/2011 | WD | Warranty Deed | KORNFELD, MARION E | KORNFELD, MARION E | | | $0.00 | 3578 | 4290391 |
| 3 | 11/12/1999 | QCD | Quit Claim Deed | KORNFELD, MARION E P | KORNFELD, MARION E | | | $0.00 | 94710 | 99026341 |
| 4 | 06/01/1993 | WD | Warranty Deed | CARLIN, MARK A | KORNFELD, MARION E | | | $225,000.00 | 32460 | 93012681 |
| 5 | 07/01/1992 | WD | Warranty Deed | J, A M | CARLIN, MARK A | | | $46,667.00 | 22794 | 92013651 |
| 6 | 01/01/1900 | OTHER | Other - Misc. Documents | Unknown | J, A M | | | $0.00 | 13117 | 91013279 |
| 7 | 01/01/1900 | OTHER | Other - Misc. Documents | KORNFELD, MARION E | KORNFELD, MARION E P | | | $0.00 | 0 | 0 |
Payout Agreement
| No payout information available.. |