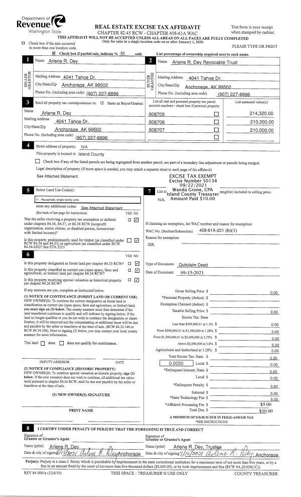
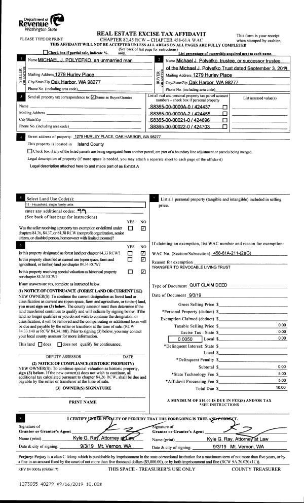
Property
Account |
| Property ID: | 678564 | Abbreviated Legal Description: | THE CEDARS LOT 23 |
| Geographic ID: | S6362-00-00023-0 | Agent Code: | |
| Type: | Real | | |
| Tax Area: | 700 - APPRAISER-S Whid Schl Dist, in town of Langley | Land Use Code | 11 |
| Open Space: | N | DFL | N |
| Historic Property: | N | Remodel Property: | N |
| Multi-Family Redevelopment: | N | | |
| Township: | | Section: | |
| Range: | |
Location |
| Address: | 1138 CEDAR CIR LANGLEY, WA 98260 | Mapsco: | |
| Neighborhood: | City of Langley | Map ID: | 720 |
| Neighborhood CD: | 04-L |
Owner |
| Name: | GUTIERREZ, BRIAN R | Owner ID: | 291768 |
| Mailing Address: | HALEY R GUTIERREZ 1138 CEDAR CIR LANGLEY, WA 98260 | % Ownership: | 100.0000000000% |
| | | Exemptions: | |
Taxes and Assessment Details
Values
| (+) Improvement Homesite Value: | + | $0 | |
| (+) Improvement Non-Homesite Value: | + | $321,364 | |
| (+) Land Homesite Value: | + | $0 | |
| (+) Land Non-Homesite Value: | + | $270,000 | |
| (+) Curr Use (HS): | + | $0 | $0 |
| (+) Curr Use (NHS): | + | $0 | $0 |
| | | -------------------------- | |
| (=) Market Value: | = | $591,364 | |
| (–) Productivity Loss: | – | $0 | |
| | | -------------------------- | |
| (=) Subtotal: | = | $591,364 | |
| (+) Senior Appraised Value: | + | $0 | |
| (+) Non-Senior Appraised Value: | + | $591,364 | |
| | | -------------------------- | |
| (=) Total Appraised Value: | = | $591,364 | |
| (–) Senior Exemption Loss: | – | $0 | |
| (–) Exemption Loss: | – | $0 | |
| | | -------------------------- | |
| (=) Taxable Value: | = | $591,364 | |
Taxing Jurisdiction
| Owner: | GUTIERREZ, BRIAN R | | |
| % Ownership: | 100.0000000000% | | |
| Total Value: | $591,364 | | |
| Tax Area: | 700 - APPRAISER-S Whid Schl Dist, in town of Langley |
| CF | Conservation Futures | 0.0316035091 | $591,364 | $591,364 | $18.69 | | |
| LANG | City of Langley | 1.0093520762 | $591,364 | $591,364 | $596.89 | | |
| LANGBOND | City of Langley BOND | 1.0326110892 | $591,364 | $591,364 | $610.65 | | |
| FIRE3 | Fire & Rescue Dist #3 S Whidbey GEN | 1.2004855531 | $591,364 | $591,364 | $709.92 | | |
| HOBOND | Hospital BOND | 0.1910887512 | $591,364 | $591,364 | $113.00 | | |
| HOGEN | Hospital GEN | 0.3902502903 | $591,364 | $591,364 | $230.78 | | |
| CE | County Current Expense | 0.3708482477 | $591,364 | $591,364 | $219.31 | | |
| ISLANDEMS | Hospital GEN (EMS) | 0.5000000000 | $591,364 | $591,364 | $295.68 | | |
| LIB | Library Sno-Isle GEN | 0.3153421757 | $591,364 | $591,364 | $186.48 | | |
| PORTWHID | Port of S Whidbey GEN | 0.1094540357 | $591,364 | $591,364 | $64.73 | | |
| SCH206BOND | School 206 BOND | 0.3161759235 | $591,364 | $591,364 | $186.98 | | |
| SCH206MO | School 206 Enrichment | 0.4547169547 | $591,364 | $591,364 | $268.90 | | |
| ST | State School | 1.3035497053 | $591,364 | $591,364 | $770.87 | | |
| ST2 | State School Part 2 | 0.8169543533 | $591,364 | $591,364 | $483.12 | | |
| SWHIDPRBD | P & R S Whidbey BOND | 0.0152817568 | $591,364 | $591,364 | $9.04 | | |
| SWHIDPRBD2 | P & R S Whidbey BOND2 | 0.0138911264 | $591,364 | $591,364 | $8.21 | | |
| SWHIDPRMT | P & R S Whidbey GEN | 0.2053334452 | $591,364 | $591,364 | $121.43 | | |
| | Total Tax Rate: | 8.2769389934 | | | | | |
| | | | | Taxes w/Current Exemptions: | $4,894.68 | | |
| | | | | Taxes w/o Exemptions: | $4,894.68 | | |
Improvement / Building
| Improvement #1: | RESIDENTIAL | State Code: | Y | 1559.0 sqft | Value: | $321,364 |
| Bathrooms: | 2 | Bedrooms: | 3 | | Ceiling: | DRYWALL PAINTED | Exterior Wall/Cover: | SHINGLE | | Floor Covering: | HARDWOOD/CARP 80-20 | Floor Structure: | WOOD W/SUBFLOOR | | Foundation: | CONCRETE | Heating: | FHA ELECTRIC | | Interior Finish: | DRYWALL PAINT | Plumbing Fixture Cnt: | 11 | | Roof Slope: | 8" IN 12" | Roof Structure/Cover: | CJ ASPHALT |
|
| | Type | Description | Class CD | Sub Class CD | Year Built | Area |
| | BAS | BASE/MAIN FLOOR | 3 | 0 | 1993 | 1559.0 |
| | OP4 | OPEN PORCH W/CEILING-ROOF | 3 | 0 | 1993 | 135.0 |
| | AGR | ATTACHED GARAGE | 3 | 0 | 1993 | 506.0 |
Sketch
Property Image
Land
| 1 | 15 | SQ (12001-21780) | 0.0000 | 0.00 | 0.00 | 0.00 | 1.00 | $270,000 | $0 |
Roll Value History
| 2026 | N/A | N/A | N/A | N/A | N/A |
| 2025 | $321,364 | $270,000 | $0 | $591,364 | $591,364 |
| 2024 | $325,524 | $270,000 | $0 | $595,524 | $595,524 |
| 2023 | $329,684 | $270,000 | $0 | $599,684 | $599,684 |
| 2022 | $302,292 | $240,000 | $0 | $542,292 | $542,292 |
| 2021 | $266,147 | $200,000 | $0 | $466,147 | $466,147 |
| 2020 | $259,256 | $180,000 | $0 | $439,256 | $439,256 |
| 2019 | $188,362 | $230,000 | $0 | $418,362 | $418,362 |
| 2018 | $188,929 | $200,000 | $0 | $388,929 | $388,929 |
| 2017 | $190,060 | $170,000 | $0 | $360,060 | $360,060 |
| 2016 | $192,323 | $150,000 | $0 | $342,323 | $342,323 |
| 2015 | $194,585 | $130,000 | $0 | $324,585 | $324,585 |
| 2014 | $227,235 | $110,000 | $0 | $337,235 | $337,235 |
| 2013 | $230,108 | $110,000 | $0 | $340,108 | $340,108 |
| 2012 | $232,980 | $162,000 | $0 | $394,980 | $394,980 |
| 2011 | $235,851 | $180,000 | $0 | $415,851 | $415,851 |
| 2010 | $242,934 | $180,000 | $0 | $422,934 | $422,934 |
| 2009 | $253,389 | $200,000 | $0 | $453,389 | $453,389 |
| 2008 | $253,655 | $225,000 | $0 | $478,655 | $478,655 |
| 2007 | $256,968 | $183,750 | $0 | $440,718 | $440,718 |
Deed and Sales History
| 1 | 09/12/2019 | WD | Warranty Deed | HUNT, JASON | GUTIERREZ, BRIAN R | | | $439,000.00 | 40264 | 4471406 |
| 2 | 10/27/2011 | BARGSLD | Bargain And Sale Deed | FEDERAL HOME LOAN MORTGAGE CORPORATION | HUNT, JASON | | | $255,000.00 | 5998 | 4303721 |
| 3 | 08/30/2011 | TRUSTEED | Trustee's Deed | MORGAN, LOUISE M | FEDERAL HOME LOAN MORTGAGE CORPORATION | | | $260,567.00 | 5437 | 4300587 |
| 4 | 11/19/2004 | WD | Warranty Deed | EMGE, MARGERY A | MORGAN, LOUISE M | | | $310,000.00 | 45667 | 4119866 |
| 5 | 10/20/1998 | WD | Warranty Deed | EMGE, LAWRENCE B | EMGE, MARGERY A | | | $0.00 | 84233 | 98023034 |
| 6 | 10/01/1993 | WD | Warranty Deed | CARLIN, MARK A | EMGE, LAWRENCE B | | | $205,000.00 | 34160 | 93021703 |
| 7 | 07/01/1992 | WD | Warranty Deed | J, A M | CARLIN, MARK A | | | $46,667.00 | 22794 | 92013651 |
| 8 | 01/01/1900 | OTHER | Other - Misc. Documents | Unknown | J, A M | | | $0.00 | 13117 | 91013279 |
Payout Agreement
| No payout information available.. |