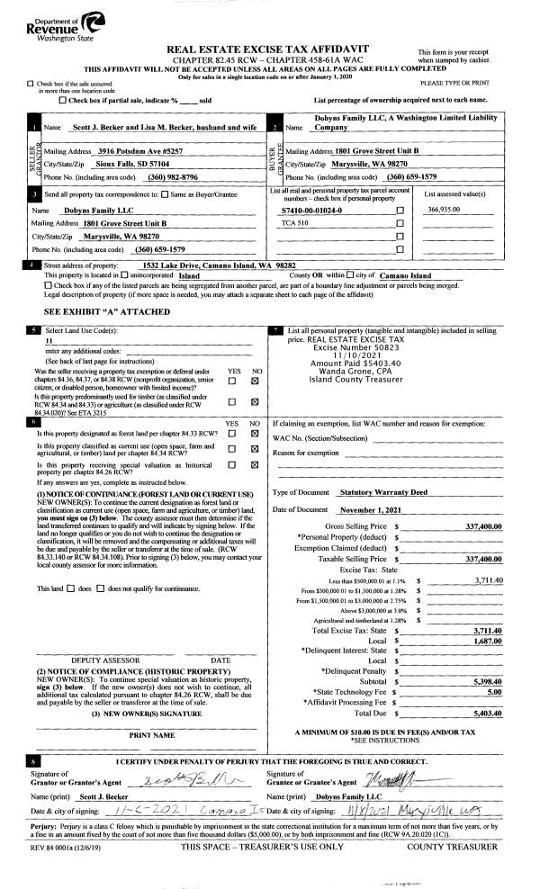
Property
Account |
| Property ID: | 678626 | Abbreviated Legal Description: | THE CEDARS LOT 29 |
| Geographic ID: | S6362-00-00029-0 | Agent Code: | |
| Type: | Real | | |
| Tax Area: | 700 - APPRAISER-S Whid Schl Dist, in town of Langley | Land Use Code | 11 |
| Open Space: | N | DFL | N |
| Historic Property: | N | Remodel Property: | N |
| Multi-Family Redevelopment: | N | | |
| Township: | | Section: | |
| Range: | |
Location |
| Address: | 1230 CEDAR CIR LANGLEY, WA 98260 | Mapsco: | |
| Neighborhood: | City of Langley | Map ID: | 720 |
| Neighborhood CD: | 04-L |
Owner |
| Name: | SOBOL, RYAN | Owner ID: | 300806 |
| Mailing Address: | JANE FUNG 1230 CEDAR CIR LANGLEY, WA 98260 | % Ownership: | 100.0000000000% |
| | | Exemptions: | |
Taxes and Assessment Details
Values
| (+) Improvement Homesite Value: | + | $0 | |
| (+) Improvement Non-Homesite Value: | + | $394,360 | |
| (+) Land Homesite Value: | + | $0 | |
| (+) Land Non-Homesite Value: | + | $270,000 | |
| (+) Curr Use (HS): | + | $0 | $0 |
| (+) Curr Use (NHS): | + | $0 | $0 |
| | | -------------------------- | |
| (=) Market Value: | = | $664,360 | |
| (–) Productivity Loss: | – | $0 | |
| | | -------------------------- | |
| (=) Subtotal: | = | $664,360 | |
| (+) Senior Appraised Value: | + | $0 | |
| (+) Non-Senior Appraised Value: | + | $664,360 | |
| | | -------------------------- | |
| (=) Total Appraised Value: | = | $664,360 | |
| (–) Senior Exemption Loss: | – | $0 | |
| (–) Exemption Loss: | – | $0 | |
| | | -------------------------- | |
| (=) Taxable Value: | = | $664,360 | |
Taxing Jurisdiction
| Owner: | SOBOL, RYAN | | |
| % Ownership: | 100.0000000000% | | |
| Total Value: | $664,360 | | |
| Tax Area: | 700 - APPRAISER-S Whid Schl Dist, in town of Langley |
| CF | Conservation Futures | 0.0316035091 | $664,360 | $664,360 | $21.00 | | |
| LANG | City of Langley | 1.0093520762 | $664,360 | $664,360 | $670.57 | | |
| LANGBOND | City of Langley BOND | 1.0326110892 | $664,360 | $664,360 | $686.03 | | |
| FIRE3 | Fire & Rescue Dist #3 S Whidbey GEN | 1.2004855531 | $664,360 | $664,360 | $797.55 | | |
| HOBOND | Hospital BOND | 0.1910887512 | $664,360 | $664,360 | $126.95 | | |
| HOGEN | Hospital GEN | 0.3902502903 | $664,360 | $664,360 | $259.27 | | |
| CE | County Current Expense | 0.3708482477 | $664,360 | $664,360 | $246.38 | | |
| ISLANDEMS | Hospital GEN (EMS) | 0.5000000000 | $664,360 | $664,360 | $332.18 | | |
| LIB | Library Sno-Isle GEN | 0.3153421757 | $664,360 | $664,360 | $209.50 | | |
| PORTWHID | Port of S Whidbey GEN | 0.1094540357 | $664,360 | $664,360 | $72.72 | | |
| SCH206BOND | School 206 BOND | 0.3161759235 | $664,360 | $664,360 | $210.05 | | |
| SCH206MO | School 206 Enrichment | 0.4547169547 | $664,360 | $664,360 | $302.10 | | |
| ST | State School | 1.3035497053 | $664,360 | $664,360 | $866.03 | | |
| ST2 | State School Part 2 | 0.8169543533 | $664,360 | $664,360 | $542.75 | | |
| SWHIDPRBD | P & R S Whidbey BOND | 0.0152817568 | $664,360 | $664,360 | $10.15 | | |
| SWHIDPRBD2 | P & R S Whidbey BOND2 | 0.0138911264 | $664,360 | $664,360 | $9.23 | | |
| SWHIDPRMT | P & R S Whidbey GEN | 0.2053334452 | $664,360 | $664,360 | $136.42 | | |
| | Total Tax Rate: | 8.2769389934 | | | | | |
| | | | | Taxes w/Current Exemptions: | $5,498.88 | | |
| | | | | Taxes w/o Exemptions: | $5,498.88 | | |
Improvement / Building
| Improvement #1: | RESIDENTIAL | State Code: | Y | 2060.0 sqft | Value: | $394,360 |
| Bathrooms: | 2.5 | Bedrooms: | 4 | | Ceiling: | DRYWALL PAINTED | Cooling: | HEAT PUMP/CONV/V | | Exterior Wall/Cover: | WOOD SIDING | Floor Covering: | VINYL/HARDWOOD 60-40 | | Floor Structure: | WOOD W/SUBFLOOR | Foundation: | CONCRETE | | Interior Finish: | DRYWALL PAINT | Plumbing Fixture Cnt: | 14 | | Roof Slope: | 6" IN 12" | Roof Structure/Cover: | CJ ASPHALT |
|
| | Type | Description | Class CD | Sub Class CD | Year Built | Area |
| | BAS | BASE/MAIN FLOOR | 4 | 0 | 1993 | 994.0 |
| | AGR | ATTACHED GARAGE | 4 | 0 | 1993 | 184.0 |
| | BIG | BUILT IN GARAGE | 4 | 0 | 1993 | 368.0 |
| | UPS | UPPER STORY | 4 | 0 | 1993 | 1066.0 |
| | OWP | OPEN WOOD PORCH W/STEPS | 4 | 0 | 1993 | 54.0 |
| | OWP | OPEN WOOD PORCH W/STEPS | 4 | 0 | 1993 | 384.0 |
| | OWR | OPEN WOOD PORCH W/STEPS/ROOF | 4 | 0 | 1993 | 54.0 |
Sketch
Property Image
Land
| 1 | 15 | SQ (12001-21780) | 0.0000 | 0.00 | 0.00 | 0.00 | 1.00 | $270,000 | $0 |
Roll Value History
| 2026 | N/A | N/A | N/A | N/A | N/A |
| 2025 | $394,360 | $270,000 | $0 | $664,360 | $664,360 |
| 2024 | $399,338 | $270,000 | $0 | $669,338 | $669,338 |
| 2023 | $404,312 | $270,000 | $0 | $674,312 | $674,312 |
| 2022 | $370,622 | $240,000 | $0 | $610,622 | $610,622 |
| 2021 | $326,204 | $200,000 | $0 | $526,204 | $526,204 |
| 2020 | $284,822 | $180,000 | $0 | $464,822 | $464,822 |
| 2019 | $211,180 | $230,000 | $0 | $441,180 | $441,180 |
| 2018 | $211,847 | $200,000 | $0 | $411,847 | $411,847 |
| 2017 | $213,179 | $170,000 | $0 | $383,179 | $383,179 |
| 2016 | $215,843 | $150,000 | $0 | $365,843 | $365,843 |
| 2015 | $218,509 | $130,000 | $0 | $348,509 | $348,509 |
| 2014 | $212,995 | $110,000 | $0 | $322,995 | $322,995 |
| 2013 | $215,645 | $110,000 | $0 | $325,645 | $325,645 |
| 2012 | $218,296 | $162,000 | $0 | $380,296 | $380,296 |
| 2011 | $220,948 | $180,000 | $0 | $400,948 | $400,948 |
| 2010 | $230,300 | $180,000 | $0 | $410,300 | $410,300 |
| 2009 | $240,192 | $200,000 | $0 | $440,192 | $440,192 |
| 2008 | $234,006 | $225,000 | $0 | $459,006 | $459,006 |
| 2007 | $236,983 | $183,750 | $0 | $420,733 | $420,733 |
Deed and Sales History
| 1 | 08/18/2021 | WD | Warranty Deed | GALFER TTEE, BARRY MARK | SOBOL, RYAN | | | $775,000.00 | 49712 | 4527286 |
| 2 | 05/19/2021 | QCD | Quit Claim Deed | GALFER, BARRY | GALFER TTEE, BARRY MARK | | | $0.00 | 48314 | 4519727 |
| 3 | 07/24/2020 | WD | Warranty Deed | MARKLIN, THOMAS G | GALFER, BARRY | | | $594,000.00 | 44028 | 4492658 |
| 4 | 08/20/2007 | WD | Warranty Deed | KELTNER, THOMAS R | MARKLIN, THOMAS G | | | $460,000.00 | 72854 | 4210141 |
| 5 | 11/14/2003 | WD | Warranty Deed | NISELY, ROBERT S | KELTNER, THOMAS R | | | $272,900.00 | 34147 | 4082947 |
| 6 | 09/01/1994 | WD | Warranty Deed | CASA, GROUP I | NISELY, ROBERT S | | | $192,000.00 | 43817 | 94019870 |
| 7 | 09/01/1994 | QCD | Quit Claim Deed | NISELY, ROBERT S | NISELY, ROBERT S | | | $0.00 | 43818 | 94019871 |
| 8 | 09/01/1993 | WD | Warranty Deed | J, A M | CASA, GROUP I | | | $49,500.00 | 33784 | 93019719 |
| 9 | 01/01/1900 | OTHER | Other - Misc. Documents | Unknown | J, A M | | | $0.00 | 13117 | 91013279 |
Payout Agreement
| No payout information available.. |