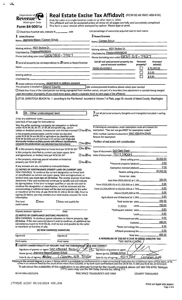
Property
Account |
| Property ID: | 678813 | Abbreviated Legal Description: | FINISTERRE HTS - PRD LOT 8 |
| Geographic ID: | S6627-00-00008-0 | Agent Code: | |
| Type: | Real | | |
| Tax Area: | 510 - APPRAISER-Stan/Cam Schl Dist, improved & 1 acre or less | Land Use Code | 11 |
| Open Space: | N | DFL | N |
| Historic Property: | N | Remodel Property: | N |
| Multi-Family Redevelopment: | N | | |
| Township: | | Section: | |
| Range: | |
Location |
| Address: | 347 SAMANTHIA LN CAMANO ISLAND, WA 98282 | Mapsco: | |
| Neighborhood: | North Camano | Map ID: | 560 |
| Neighborhood CD: | 06-C |
Owner |
| Name: | WOLKEN, THEODORE E | Owner ID: | 309125 |
| Mailing Address: | RENEE M WOLKEN 347 SAMANTHIA LN CAMANO ISLAND, WA 98282 | % Ownership: | 100.0000000000% |
| | | Exemptions: | |
Taxes and Assessment Details
Values
| (+) Improvement Homesite Value: | + | $0 | |
| (+) Improvement Non-Homesite Value: | + | $540,082 | |
| (+) Land Homesite Value: | + | $0 | |
| (+) Land Non-Homesite Value: | + | $500,000 | |
| (+) Curr Use (HS): | + | $0 | $0 |
| (+) Curr Use (NHS): | + | $0 | $0 |
| | | -------------------------- | |
| (=) Market Value: | = | $1,040,082 | |
| (–) Productivity Loss: | – | $0 | |
| | | -------------------------- | |
| (=) Subtotal: | = | $1,040,082 | |
| (+) Senior Appraised Value: | + | $0 | |
| (+) Non-Senior Appraised Value: | + | $1,040,082 | |
| | | -------------------------- | |
| (=) Total Appraised Value: | = | $1,040,082 | |
| (–) Senior Exemption Loss: | – | $0 | |
| (–) Exemption Loss: | – | $0 | |
| | | -------------------------- | |
| (=) Taxable Value: | = | $1,040,082 | |
Taxing Jurisdiction
| Owner: | WOLKEN, THEODORE E | | |
| % Ownership: | 100.0000000000% | | |
| Total Value: | $1,040,082 | | |
| Tax Area: | 510 - APPRAISER-Stan/Cam Schl Dist, improved & 1 acre or less |
| CF | Conservation Futures | 0.0316035091 | $1,040,082 | $1,040,082 | $32.87 | | |
| EMS1 | Fire & Rescue Dist #1 Camano GEN (EMS) | 0.3677864386 | $1,040,082 | $1,040,082 | $382.53 | | |
| FIRE1 | Fire & Rescue Dist #1 Camano GEN | 1.2502910536 | $1,040,082 | $1,040,082 | $1,300.41 | | |
| FIRE1BOND | Fire & Rescue Dist #1 Camano BOND | 0.1570001679 | $1,040,082 | $1,040,082 | $163.29 | | |
| CE | County Current Expense | 0.3708482477 | $1,040,082 | $1,040,082 | $385.71 | | |
| CR | County Roads | 0.4584763726 | $1,040,082 | $1,040,082 | $476.85 | | |
| LCIB | Library Sno-Isle BOND (Camano Island) | 0.0396325772 | $1,040,082 | $1,040,082 | $41.22 | | |
| LIB | Library Sno-Isle GEN | 0.3153421757 | $1,040,082 | $1,040,082 | $327.98 | | |
| SCH205_401 | School 205-401 Enrichment | 1.2698420524 | $1,040,082 | $1,040,082 | $1,320.74 | | |
| SCH205BOND | School 205-401 BOND | 0.9396497583 | $1,040,082 | $1,040,082 | $977.31 | | |
| ST | State School | 1.3035497053 | $1,040,082 | $1,040,082 | $1,355.80 | | |
| ST2 | State School Part 2 | 0.8169543533 | $1,040,082 | $1,040,082 | $849.70 | | |
| | Total Tax Rate: | 7.3209764117 | | | | | |
| | | | | Taxes w/Current Exemptions: | $7,614.41 | | |
| | | | | Taxes w/o Exemptions: | $7,614.41 | | |
Improvement / Building
| Improvement #1: | RESIDENTIAL | State Code: | Y | 2907.2 sqft | Value: | $540,082 |
| Bathrooms: | 3 | Bedrooms: | 3 | | Ceiling: | DRYWALL PAINTED | Exterior Wall/Cover: | CEMENT FIBER | | Floor Covering: | HARDWOOD/CARP 80-20 | Floor Structure: | WOOD W/SUBFLOOR | | Foundation: | CONCRETE | Heating: | RADIANT FLOOR | | Interior Finish: | DRYWALL PAINT | Plumbing Fixture Cnt: | 15 | | Roof Slope: | 6" IN 12" | Roof Structure/Cover: | CJ ASPHALT |
|
| | Type | Description | Class CD | Sub Class CD | Year Built | Area |
| | BAS | BASE/MAIN FLOOR | 4 | 0 | 2002 | 1027.6 |
| | BIG | BUILT IN GARAGE | 4 | 0 | 2002 | 632.5 |
| | UPS | UPPER STORY | 4 | 0 | 2002 | 1103.4 |
| | OP4 | OPEN PORCH W/CEILING-ROOF | 4 | 0 | 2002 | 50.0 |
| | DWN | DOWNSTAIRS LIVING AREA | 4 | 0 | 2002 | 776.2 |
| | OWP | OPEN WOOD PORCH W/STEPS | 4 | 0 | 2002 | 72.5 |
| | OWP | OPEN WOOD PORCH W/STEPS | 4 | 0 | 2002 | 592.5 |
Sketch
Property Image
Land
| 1 | 16 | AC (00.51-01.00) | 0.6420 | 27965.52 | 0.00 | 0.00 | 1.00 | $500,000 | $0 |
Roll Value History
| 2026 | N/A | N/A | N/A | N/A | N/A |
| 2025 | $540,082 | $500,000 | $0 | $1,040,082 | $1,040,082 |
| 2024 | $546,492 | $490,000 | $0 | $1,036,492 | $1,036,492 |
| 2023 | $540,082 | $470,000 | $0 | $1,010,082 | $1,010,082 |
| 2022 | $477,423 | $450,000 | $0 | $927,423 | $927,423 |
| 2021 | $420,199 | $260,000 | $0 | $680,199 | $680,199 |
| 2020 | $409,832 | $220,000 | $0 | $629,832 | $629,832 |
| 2019 | $319,068 | $290,000 | $0 | $609,068 | $609,068 |
| 2018 | $320,006 | $250,000 | $0 | $570,006 | $570,006 |
| 2017 | $321,531 | $180,000 | $0 | $501,531 | $501,531 |
| 2016 | $317,763 | $175,000 | $0 | $492,763 | $492,763 |
| 2015 | $321,501 | $150,000 | $0 | $471,501 | $471,501 |
| 2014 | $325,240 | $150,000 | $0 | $475,240 | $475,240 |
| 2013 | $328,979 | $150,000 | $0 | $478,979 | $478,979 |
| 2012 | $332,717 | $160,000 | $0 | $492,717 | $492,717 |
| 2011 | $336,455 | $200,000 | $0 | $536,455 | $536,455 |
| 2010 | $332,319 | $200,000 | $0 | $532,319 | $532,319 |
| 2009 | $342,650 | $250,000 | $0 | $592,650 | $592,650 |
| 2008 | $346,405 | $300,000 | $0 | $646,405 | $646,405 |
| 2007 | $353,773 | $300,000 | $0 | $653,773 | $653,773 |
Deed and Sales History
| 1 | 06/28/2023 | WD | Warranty Deed | COOROUGH, MARY CALLEEN | WOLKEN, THEODORE E | | | $1,090,000.00 | 57157 | 4561675 |
| 2 | 03/01/2010 | ESTSEPPROP | Establish Separate Property | BERRY, IAN B | COOROUGH, MARY CALLEEN | | | $0.00 | 465 | 4269514 |
| 3 | 03/19/2001 | WD | Warranty Deed | GIBBONS, DRILLING I | BERRY, IAN B | | | $59,900.00 | 10858 | 20027724 |
| 4 | 01/01/1900 | OTHER | Other - Misc. Documents | Unknown | GIBBONS, DRILLING I | | | $0.00 | 92734 | 89009269 |
Payout Agreement
| No payout information available.. |