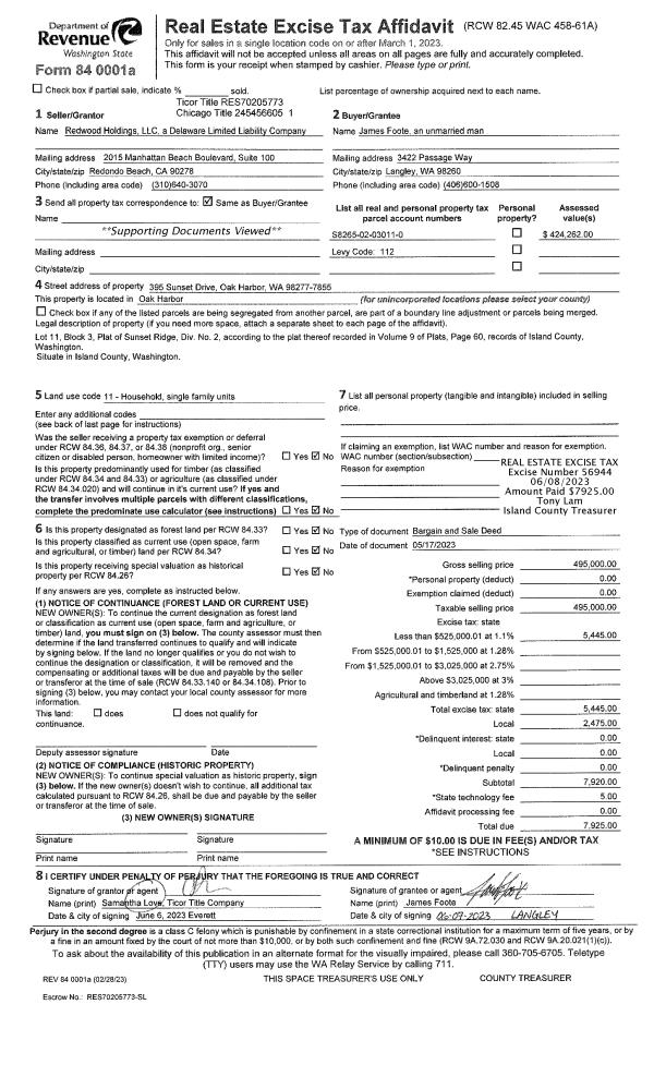
Property
Account |
| Property ID: | 678831 | Abbreviated Legal Description: | FINISTERRE HTS - PRD LOT 10 |
| Geographic ID: | S6627-00-00010-0 | Agent Code: | |
| Type: | Real | | |
| Tax Area: | 510 - APPRAISER-Stan/Cam Schl Dist, improved & 1 acre or less | Land Use Code | 11 |
| Open Space: | N | DFL | N |
| Historic Property: | N | Remodel Property: | N |
| Multi-Family Redevelopment: | N | | |
| Township: | | Section: | |
| Range: | |
Location |
| Address: | 213 MEGGIA LN CAMANO ISLAND, WA 98282 | Mapsco: | |
| Neighborhood: | North Camano | Map ID: | 560 |
| Neighborhood CD: | 06-C |
Owner |
| Name: | BEAUCHAMP, MICHAEL J / KATHY | Owner ID: | 64703 |
| Mailing Address: | 213 MEGGIA LN CAMANO ISLAND, WA 98282-6618 | % Ownership: | 100.0000000000% |
| | | Exemptions: | |
Taxes and Assessment Details
Values
| (+) Improvement Homesite Value: | + | $0 | |
| (+) Improvement Non-Homesite Value: | + | $458,516 | |
| (+) Land Homesite Value: | + | $0 | |
| (+) Land Non-Homesite Value: | + | $300,000 | |
| (+) Curr Use (HS): | + | $0 | $0 |
| (+) Curr Use (NHS): | + | $0 | $0 |
| | | -------------------------- | |
| (=) Market Value: | = | $758,516 | |
| (–) Productivity Loss: | – | $0 | |
| | | -------------------------- | |
| (=) Subtotal: | = | $758,516 | |
| (+) Senior Appraised Value: | + | $0 | |
| (+) Non-Senior Appraised Value: | + | $758,516 | |
| | | -------------------------- | |
| (=) Total Appraised Value: | = | $758,516 | |
| (–) Senior Exemption Loss: | – | $0 | |
| (–) Exemption Loss: | – | $0 | |
| | | -------------------------- | |
| (=) Taxable Value: | = | $758,516 | |
Taxing Jurisdiction
| Owner: | BEAUCHAMP, MICHAEL J / KATHY | | |
| % Ownership: | 100.0000000000% | | |
| Total Value: | $758,516 | | |
| Tax Area: | 510 - APPRAISER-Stan/Cam Schl Dist, improved & 1 acre or less |
| CF | Conservation Futures | 0.0316035091 | $758,516 | $758,516 | $23.97 | | |
| EMS1 | Fire & Rescue Dist #1 Camano GEN (EMS) | 0.3677864386 | $758,516 | $758,516 | $278.97 | | |
| FIRE1 | Fire & Rescue Dist #1 Camano GEN | 1.2502910536 | $758,516 | $758,516 | $948.37 | | |
| FIRE1BOND | Fire & Rescue Dist #1 Camano BOND | 0.1570001679 | $758,516 | $758,516 | $119.09 | | |
| CE | County Current Expense | 0.3708482477 | $758,516 | $758,516 | $281.29 | | |
| CR | County Roads | 0.4584763726 | $758,516 | $758,516 | $347.76 | | |
| LCIB | Library Sno-Isle BOND (Camano Island) | 0.0396325772 | $758,516 | $758,516 | $30.06 | | |
| LIB | Library Sno-Isle GEN | 0.3153421757 | $758,516 | $758,516 | $239.19 | | |
| SCH205_401 | School 205-401 Enrichment | 1.2698420524 | $758,516 | $758,516 | $963.20 | | |
| SCH205BOND | School 205-401 BOND | 0.9396497583 | $758,516 | $758,516 | $712.74 | | |
| ST | State School | 1.3035497053 | $758,516 | $758,516 | $988.76 | | |
| ST2 | State School Part 2 | 0.8169543533 | $758,516 | $758,516 | $619.67 | | |
| | Total Tax Rate: | 7.3209764117 | | | | | |
| | | | | Taxes w/Current Exemptions: | $5,553.07 | | |
| | | | | Taxes w/o Exemptions: | $5,553.07 | | |
Improvement / Building
| Improvement #1: | RESIDENTIAL | State Code: | Y | 2736.0 sqft | Value: | $458,516 |
| Bathrooms: | 2.5 | Bedrooms: | 4 | | Ceiling: | DRYWALL PAINTED | Exterior Wall/Cover: | PLY/HARDBOARD T-111 | | Floor Covering: | HARDWOOD/CARP 20-80 | Floor Structure: | WOOD W/SUBFLOOR | | Foundation: | CONCRETE | Heating: | FHA GAS | | Interior Finish: | DRYWALL PAINT | Plumbing Fixture Cnt: | 13 | | Roof Slope: | 8" IN 12" | Roof Structure/Cover: | CJ ASPHALT |
|
| | Type | Description | Class CD | Sub Class CD | Year Built | Area |
| | BAS | BASE/MAIN FLOOR | 4 | 0 | 1993 | 1436.0 |
| | OP4 | OPEN PORCH W/CEILING-ROOF | 4 | 0 | 1993 | 208.0 |
| | AGR | ATTACHED GARAGE | 4 | 0 | 1993 | 600.0 |
| | UTY | STORAGE/UTILITY | 4 | 0 | 1993 | 56.0 |
| | OWP | OPEN WOOD PORCH W/STEPS | 4 | 0 | 1993 | 460.0 |
| | DWN | DOWNSTAIRS LIVING AREA | 4 | 0 | 1993 | 1300.0 |
| | OWC | OPEN WOOD PORCH W/STEPS/ROOF/C | 4 | 0 | 1993 | 64.0 |
Sketch
Property Image
Land
| 1 | 15 | SQ (12001-21780) | 0.0000 | 0.00 | 0.00 | 0.00 | 1.00 | $300,000 | $0 |
Roll Value History
| 2026 | N/A | N/A | N/A | N/A | N/A |
| 2025 | $458,516 | $300,000 | $0 | $758,516 | $758,516 |
| 2024 | $464,376 | $310,000 | $0 | $774,376 | $774,376 |
| 2023 | $470,236 | $280,000 | $0 | $750,236 | $750,236 |
| 2022 | $415,200 | $260,000 | $0 | $675,200 | $675,200 |
| 2021 | $365,654 | $220,000 | $0 | $585,654 | $585,654 |
| 2020 | $356,899 | $190,000 | $0 | $546,899 | $546,899 |
| 2019 | $271,517 | $230,000 | $0 | $501,517 | $501,517 |
| 2018 | $272,354 | $200,000 | $0 | $472,354 | $472,354 |
| 2017 | $274,023 | $180,000 | $0 | $454,023 | $454,023 |
| 2016 | $268,230 | $150,000 | $0 | $418,230 | $418,230 |
| 2015 | $271,627 | $125,000 | $0 | $396,627 | $396,627 |
| 2014 | $275,022 | $125,000 | $0 | $400,022 | $400,022 |
| 2013 | $278,418 | $125,000 | $0 | $403,418 | $403,418 |
| 2012 | $281,814 | $120,000 | $0 | $401,814 | $401,814 |
| 2011 | $285,209 | $150,000 | $0 | $435,209 | $435,209 |
| 2010 | $270,379 | $190,000 | $0 | $460,379 | $460,379 |
| 2009 | $281,989 | $200,000 | $0 | $481,989 | $481,989 |
| 2008 | $285,507 | $150,000 | $0 | $435,507 | $435,507 |
| 2007 | $259,192 | $180,116 | $0 | $439,308 | $439,308 |
Deed and Sales History
| 1 | 03/01/1993 | WD | Warranty Deed | GIBBONS, DRILLING I | BEAUCHAMP, MICHAEL J | | | $75,900.00 | 30989 | 93005225 |
| 2 | 01/01/1900 | OTHER | Other - Misc. Documents | Unknown | GIBBONS, DRILLING I | | | $0.00 | 92734 | 89009269 |
Payout Agreement
| No payout information available.. |