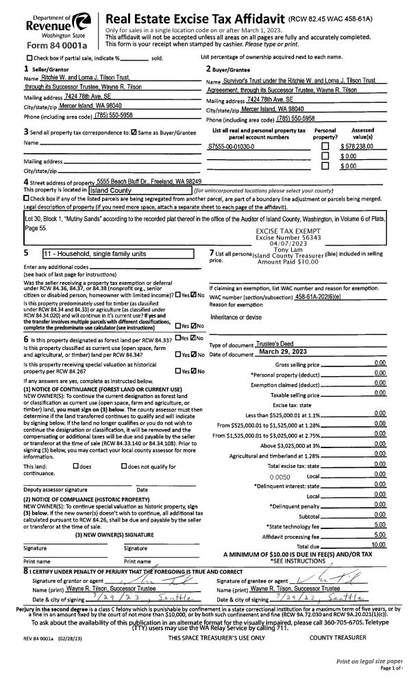
Property
Account |
| Property ID: | 678859 | Abbreviated Legal Description: | FINISTERRE HTS - PRD LOT 12 |
| Geographic ID: | S6627-00-00012-0 | Agent Code: | |
| Type: | Real | | |
| Tax Area: | 510 - APPRAISER-Stan/Cam Schl Dist, improved & 1 acre or less | Land Use Code | 11 |
| Open Space: | N | DFL | N |
| Historic Property: | N | Remodel Property: | N |
| Multi-Family Redevelopment: | N | | |
| Township: | | Section: | |
| Range: | |
Location |
| Address: | 210 MEGGIA LN CAMANO ISLAND, WA 98282 | Mapsco: | |
| Neighborhood: | North Camano | Map ID: | 560 |
| Neighborhood CD: | 06-C |
Owner |
| Name: | SUTKER-YUCUS TTEE, RITA L | Owner ID: | 64705 |
| Mailing Address: | 210 MEGGIA LN CAMANO ISLAND, WA 98282-6618 | % Ownership: | 100.0000000000% |
| | | Exemptions: | |
Taxes and Assessment Details
Values
| (+) Improvement Homesite Value: | + | $0 | |
| (+) Improvement Non-Homesite Value: | + | $525,255 | |
| (+) Land Homesite Value: | + | $0 | |
| (+) Land Non-Homesite Value: | + | $300,000 | |
| (+) Curr Use (HS): | + | $0 | $0 |
| (+) Curr Use (NHS): | + | $0 | $0 |
| | | -------------------------- | |
| (=) Market Value: | = | $825,255 | |
| (–) Productivity Loss: | – | $0 | |
| | | -------------------------- | |
| (=) Subtotal: | = | $825,255 | |
| (+) Senior Appraised Value: | + | $0 | |
| (+) Non-Senior Appraised Value: | + | $825,255 | |
| | | -------------------------- | |
| (=) Total Appraised Value: | = | $825,255 | |
| (–) Senior Exemption Loss: | – | $0 | |
| (–) Exemption Loss: | – | $0 | |
| | | -------------------------- | |
| (=) Taxable Value: | = | $825,255 | |
Taxing Jurisdiction
| Owner: | SUTKER-YUCUS TTEE, RITA L | | |
| % Ownership: | 100.0000000000% | | |
| Total Value: | $825,255 | | |
| Tax Area: | 510 - APPRAISER-Stan/Cam Schl Dist, improved & 1 acre or less |
| CF | Conservation Futures | 0.0316035091 | $825,255 | $825,255 | $26.08 | | |
| EMS1 | Fire & Rescue Dist #1 Camano GEN (EMS) | 0.3677864386 | $825,255 | $825,255 | $303.52 | | |
| FIRE1 | Fire & Rescue Dist #1 Camano GEN | 1.2502910536 | $825,255 | $825,255 | $1,031.81 | | |
| FIRE1BOND | Fire & Rescue Dist #1 Camano BOND | 0.1570001679 | $825,255 | $825,255 | $129.57 | | |
| CE | County Current Expense | 0.3708482477 | $825,255 | $825,255 | $306.04 | | |
| CR | County Roads | 0.4584763726 | $825,255 | $825,255 | $378.36 | | |
| LCIB | Library Sno-Isle BOND (Camano Island) | 0.0396325772 | $825,255 | $825,255 | $32.71 | | |
| LIB | Library Sno-Isle GEN | 0.3153421757 | $825,255 | $825,255 | $260.24 | | |
| SCH205_401 | School 205-401 Enrichment | 1.2698420524 | $825,255 | $825,255 | $1,047.94 | | |
| SCH205BOND | School 205-401 BOND | 0.9396497583 | $825,255 | $825,255 | $775.45 | | |
| ST | State School | 1.3035497053 | $825,255 | $825,255 | $1,075.76 | | |
| ST2 | State School Part 2 | 0.8169543533 | $825,255 | $825,255 | $674.20 | | |
| | Total Tax Rate: | 7.3209764117 | | | | | |
| | | | | Taxes w/Current Exemptions: | $6,041.68 | | |
| | | | | Taxes w/o Exemptions: | $6,041.68 | | |
Improvement / Building
| Improvement #1: | RESIDENTIAL | State Code: | Y | 3108.0 sqft | Value: | $525,255 |
| Bathrooms: | 2.5 | Bedrooms: | 3 | | Ceiling: | DRYWALL PAINTED | Cooling: | HEAT PUMP/CONV/V | | Exterior Wall/Cover: | WOOD SIDING | Floor Covering: | HARDWOOD/CARP 60-40 | | Floor Structure: | WOOD W/SUBFLOOR | Foundation: | CONCRETE | | Interior Finish: | DRYWALL PAINT | Plumbing Fixture Cnt: | 14 | | Roof Slope: | 8" IN 12" | Roof Structure/Cover: | CJ ASPHALT |
|
| | Type | Description | Class CD | Sub Class CD | Year Built | Area |
| | BAS | BASE/MAIN FLOOR | 4 | 0 | 1996 | 1584.0 |
| | OP4 | OPEN PORCH W/CEILING-ROOF | 4 | 0 | 1996 | 118.0 |
| | AGR | ATTACHED GARAGE | 4 | 0 | 1996 | 757.0 |
| | OWP | OPEN WOOD PORCH W/STEPS | 4 | 0 | 1996 | 348.0 |
| | OWP | OPEN WOOD PORCH W/STEPS | 4 | 0 | 1996 | 162.0 |
| | DWN | DOWNSTAIRS LIVING AREA | 4 | 0 | 1996 | 1524.0 |
Sketch
Property Image
Land
| 1 | 16 | AC (00.51-01.00) | 0.0000 | 0.00 | 0.00 | 0.00 | 1.00 | $300,000 | $0 |
Roll Value History
| 2026 | N/A | N/A | N/A | N/A | N/A |
| 2025 | $525,255 | $300,000 | $0 | $825,255 | $825,255 |
| 2024 | $531,564 | $310,000 | $0 | $841,564 | $841,564 |
| 2023 | $537,874 | $280,000 | $0 | $817,874 | $817,874 |
| 2022 | $469,921 | $260,000 | $0 | $729,921 | $729,921 |
| 2021 | $413,611 | $220,000 | $0 | $633,611 | $633,611 |
| 2020 | $403,751 | $190,000 | $0 | $593,751 | $593,751 |
| 2019 | $316,622 | $230,000 | $0 | $546,622 | $546,622 |
| 2018 | $317,549 | $200,000 | $0 | $517,549 | $517,549 |
| 2017 | $303,383 | $180,000 | $0 | $483,383 | $483,383 |
| 2016 | $295,724 | $150,000 | $0 | $445,724 | $445,724 |
| 2015 | $299,286 | $125,000 | $0 | $424,286 | $424,286 |
| 2014 | $302,849 | $125,000 | $0 | $427,849 | $427,849 |
| 2013 | $306,412 | $125,000 | $0 | $431,412 | $431,412 |
| 2012 | $309,974 | $120,000 | $0 | $429,974 | $429,974 |
| 2011 | $313,538 | $150,000 | $0 | $463,538 | $463,538 |
| 2010 | $302,749 | $190,000 | $0 | $492,749 | $492,749 |
| 2009 | $315,943 | $200,000 | $0 | $515,943 | $515,943 |
| 2008 | $319,925 | $200,000 | $0 | $519,925 | $519,925 |
| 2007 | $323,906 | $200,000 | $0 | $523,906 | $523,906 |
Deed and Sales History
| 1 | 02/24/2006 | 5 | DNU - Marriage License/Name Change | SUTKER, RITA L | SUTKER-YUCUS TTEE, RITA L | | | $0.00 | 61128 | 4164991 |
| 2 | 08/01/1996 | WD | Warranty Deed | SCHEI, ROGER D | SUTKER, RITA L | | | $273,000.00 | 62874 | 96014054 |
| 3 | 11/01/1995 | WD | Warranty Deed | GIBBONS, DRILLING I | SCHEI, ROGER D | | | $75,000.00 | 54123 | 95018961 |
| 4 | 01/01/1900 | OTHER | Other - Misc. Documents | Unknown | GIBBONS, DRILLING I | | | $0.00 | 92734 | 89009269 |
Payout Agreement
| No payout information available.. |