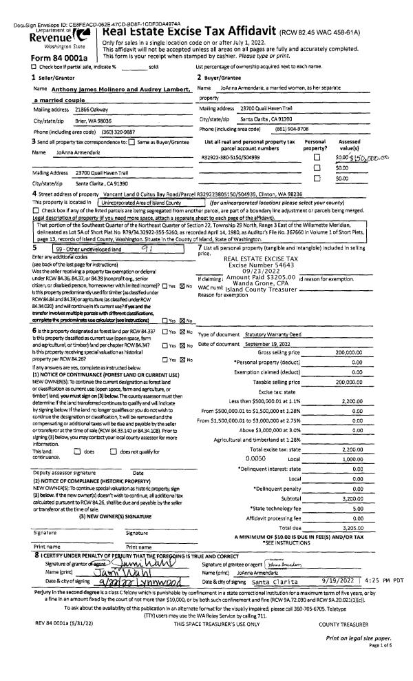
Property
Account |
| Property ID: | 678868 | Abbreviated Legal Description: | FINISTERRE HTS - PRD LOT 13 |
| Geographic ID: | S6627-00-00013-0 | Agent Code: | |
| Type: | Real | | |
| Tax Area: | 510 - APPRAISER-Stan/Cam Schl Dist, improved & 1 acre or less | Land Use Code | 11 |
| Open Space: | N | DFL | N |
| Historic Property: | N | Remodel Property: | N |
| Multi-Family Redevelopment: | N | | |
| Township: | | Section: | |
| Range: | |
Location |
| Address: | 214 MEGGIA LN CAMANO ISLAND, WA 98282 | Mapsco: | |
| Neighborhood: | North Camano | Map ID: | 560 |
| Neighborhood CD: | 06-C |
Owner |
| Name: | ROSE, DAMON | Owner ID: | 303409 |
| Mailing Address: | BERNA TURAL 214 MEGGIA LN CAMANO ISLAND, WA 98282 | % Ownership: | 100.0000000000% |
| | | Exemptions: | |
Taxes and Assessment Details
Values
| (+) Improvement Homesite Value: | + | $0 | |
| (+) Improvement Non-Homesite Value: | + | $540,910 | |
| (+) Land Homesite Value: | + | $0 | |
| (+) Land Non-Homesite Value: | + | $300,000 | |
| (+) Curr Use (HS): | + | $0 | $0 |
| (+) Curr Use (NHS): | + | $0 | $0 |
| | | -------------------------- | |
| (=) Market Value: | = | $840,910 | |
| (–) Productivity Loss: | – | $0 | |
| | | -------------------------- | |
| (=) Subtotal: | = | $840,910 | |
| (+) Senior Appraised Value: | + | $0 | |
| (+) Non-Senior Appraised Value: | + | $840,910 | |
| | | -------------------------- | |
| (=) Total Appraised Value: | = | $840,910 | |
| (–) Senior Exemption Loss: | – | $0 | |
| (–) Exemption Loss: | – | $0 | |
| | | -------------------------- | |
| (=) Taxable Value: | = | $840,910 | |
Taxing Jurisdiction
| Owner: | ROSE, DAMON | | |
| % Ownership: | 100.0000000000% | | |
| Total Value: | $840,910 | | |
| Tax Area: | 510 - APPRAISER-Stan/Cam Schl Dist, improved & 1 acre or less |
| CF | Conservation Futures | 0.0316035091 | $840,910 | $840,910 | $26.58 | | |
| EMS1 | Fire & Rescue Dist #1 Camano GEN (EMS) | 0.3677864386 | $840,910 | $840,910 | $309.28 | | |
| FIRE1 | Fire & Rescue Dist #1 Camano GEN | 1.2502910536 | $840,910 | $840,910 | $1,051.38 | | |
| FIRE1BOND | Fire & Rescue Dist #1 Camano BOND | 0.1570001679 | $840,910 | $840,910 | $132.02 | | |
| CE | County Current Expense | 0.3708482477 | $840,910 | $840,910 | $311.85 | | |
| CR | County Roads | 0.4584763726 | $840,910 | $840,910 | $385.54 | | |
| LCIB | Library Sno-Isle BOND (Camano Island) | 0.0396325772 | $840,910 | $840,910 | $33.33 | | |
| LIB | Library Sno-Isle GEN | 0.3153421757 | $840,910 | $840,910 | $265.17 | | |
| SCH205_401 | School 205-401 Enrichment | 1.2698420524 | $840,910 | $840,910 | $1,067.82 | | |
| SCH205BOND | School 205-401 BOND | 0.9396497583 | $840,910 | $840,910 | $790.16 | | |
| ST | State School | 1.3035497053 | $840,910 | $840,910 | $1,096.17 | | |
| ST2 | State School Part 2 | 0.8169543533 | $840,910 | $840,910 | $686.99 | | |
| | Total Tax Rate: | 7.3209764117 | | | | | |
| | | | | Taxes w/Current Exemptions: | $6,156.29 | | |
| | | | | Taxes w/o Exemptions: | $6,156.29 | | |
Improvement / Building
| Improvement #1: | RESIDENTIAL | State Code: | Y | 2491.0 sqft | Value: | $540,910 |
| Bathrooms: | 2.5 | Bedrooms: | 2 | | Ceiling: | DRYWALL PAINTED | Exterior Wall/Cover: | CEMENT FIBER | | Floor Covering: | CERAMIC TILE/CPT 40-60 | Floor Structure: | WOOD W/SUBFLOOR | | Foundation: | CONCRETE | Heating: | FHA GAS | | Interior Finish: | DRYWALL PAINT | Plumbing Fixture Cnt: | 13 | | Roof Slope: | 6" IN 12" | Roof Structure/Cover: | CJ CLAY TILE |
|
| | Type | Description | Class CD | Sub Class CD | Year Built | Area |
| | BAS | BASE/MAIN FLOOR | 4 | 0 | 1997 | 2491.0 |
| | OP4 | OPEN PORCH W/CEILING-ROOF | 4 | 0 | 1997 | 98.0 |
| | UB8 | BASEMENT UNFINISHED 8" | 4 | 0 | 1997 | 480.0 |
| | OWP | OPEN WOOD PORCH W/STEPS | 4 | 0 | 1997 | 659.5 |
| | AGR | ATTACHED GARAGE | 4 | 0 | 1997 | 784.0 |
Sketch
Property Image
Land
| 1 | 15 | SQ (12001-21780) | 0.0000 | 0.00 | 0.00 | 0.00 | 1.00 | $300,000 | $0 |
Roll Value History
| 2026 | N/A | N/A | N/A | N/A | N/A |
| 2025 | $540,910 | $300,000 | $0 | $840,910 | $840,910 |
| 2024 | $547,486 | $310,000 | $0 | $857,486 | $857,486 |
| 2023 | $554,062 | $280,000 | $0 | $834,062 | $834,062 |
| 2022 | $418,181 | $260,000 | $0 | $678,181 | $678,181 |
| 2021 | $368,157 | $220,000 | $0 | $588,157 | $588,157 |
| 2020 | $359,426 | $190,000 | $0 | $549,426 | $549,426 |
| 2019 | $279,146 | $230,000 | $0 | $509,146 | $509,146 |
| 2018 | $279,985 | $200,000 | $0 | $479,985 | $479,985 |
| 2017 | $281,661 | $180,000 | $0 | $461,661 | $461,661 |
| 2016 | $278,241 | $150,000 | $0 | $428,241 | $428,241 |
| 2015 | $281,593 | $125,000 | $0 | $406,593 | $406,593 |
| 2014 | $284,947 | $125,000 | $0 | $409,947 | $409,947 |
| 2013 | $288,298 | $125,000 | $0 | $413,298 | $413,298 |
| 2012 | $291,650 | $120,000 | $0 | $411,650 | $411,650 |
| 2011 | $295,003 | $150,000 | $0 | $445,003 | $445,003 |
| 2010 | $306,726 | $150,000 | $0 | $456,726 | $456,726 |
| 2009 | $320,017 | $190,000 | $0 | $510,017 | $510,017 |
| 2008 | $324,015 | $200,000 | $0 | $524,015 | $524,015 |
| 2007 | $328,000 | $200,000 | $0 | $528,000 | $528,000 |
Deed and Sales History
| 1 | 03/09/2022 | WD | Warranty Deed | JONES, J MARTIN | ROSE, DAMON | | | $840,000.00 | 52256 | 4541315 |
| 2 | 07/01/1995 | WD | Warranty Deed | GIBBONS, DRILLING I | JONES, J M | | | $74,000.00 | 52574 | 95011835 |
| 3 | 01/01/1900 | OTHER | Other - Misc. Documents | Unknown | GIBBONS, DRILLING I | | | $0.00 | 92734 | 89009269 |
Payout Agreement
| No payout information available.. |