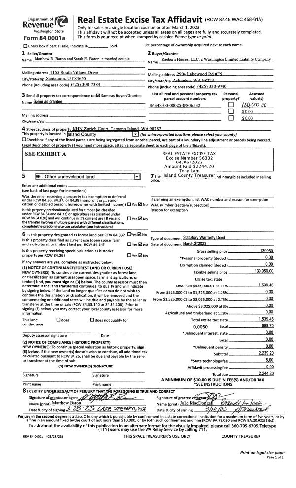
Property
Account |
| Property ID: | 678902 | Abbreviated Legal Description: | FINISTERRE HTS - PRD LOT 17 |
| Geographic ID: | S6627-00-00017-0 | Agent Code: | |
| Type: | Real | | |
| Tax Area: | 510 - APPRAISER-Stan/Cam Schl Dist, improved & 1 acre or less | Land Use Code | 11 |
| Open Space: | N | DFL | N |
| Historic Property: | N | Remodel Property: | N |
| Multi-Family Redevelopment: | N | | |
| Township: | | Section: | |
| Range: | |
Location |
| Address: | 1040 CASSIUS CT CAMANO ISLAND, WA 98282 | Mapsco: | |
| Neighborhood: | North Camano | Map ID: | 560 |
| Neighborhood CD: | 06-C |
Owner |
| Name: | BURDEN, KENT S | Owner ID: | 292034 |
| Mailing Address: | KIMBERLEY R BURDEN 1040 CASSIUS CT CAMANO ISLAND, WA 98282-6632 | % Ownership: | 100.0000000000% |
| | | Exemptions: | |
Taxes and Assessment Details
Values
| (+) Improvement Homesite Value: | + | $0 | |
| (+) Improvement Non-Homesite Value: | + | $669,572 | |
| (+) Land Homesite Value: | + | $0 | |
| (+) Land Non-Homesite Value: | + | $500,000 | |
| (+) Curr Use (HS): | + | $0 | $0 |
| (+) Curr Use (NHS): | + | $0 | $0 |
| | | -------------------------- | |
| (=) Market Value: | = | $1,169,572 | |
| (–) Productivity Loss: | – | $0 | |
| | | -------------------------- | |
| (=) Subtotal: | = | $1,169,572 | |
| (+) Senior Appraised Value: | + | $0 | |
| (+) Non-Senior Appraised Value: | + | $1,169,572 | |
| | | -------------------------- | |
| (=) Total Appraised Value: | = | $1,169,572 | |
| (–) Senior Exemption Loss: | – | $0 | |
| (–) Exemption Loss: | – | $0 | |
| | | -------------------------- | |
| (=) Taxable Value: | = | $1,169,572 | |
Taxing Jurisdiction
| Owner: | BURDEN, KENT S | | |
| % Ownership: | 100.0000000000% | | |
| Total Value: | $1,169,572 | | |
| Tax Area: | 510 - APPRAISER-Stan/Cam Schl Dist, improved & 1 acre or less |
| CF | Conservation Futures | 0.0316035091 | $1,169,572 | $1,169,572 | $36.96 | | |
| EMS1 | Fire & Rescue Dist #1 Camano GEN (EMS) | 0.3677864386 | $1,169,572 | $1,169,572 | $430.15 | | |
| FIRE1 | Fire & Rescue Dist #1 Camano GEN | 1.2502910536 | $1,169,572 | $1,169,572 | $1,462.31 | | |
| FIRE1BOND | Fire & Rescue Dist #1 Camano BOND | 0.1570001679 | $1,169,572 | $1,169,572 | $183.62 | | |
| CE | County Current Expense | 0.3708482477 | $1,169,572 | $1,169,572 | $433.73 | | |
| CR | County Roads | 0.4584763726 | $1,169,572 | $1,169,572 | $536.22 | | |
| LCIB | Library Sno-Isle BOND (Camano Island) | 0.0396325772 | $1,169,572 | $1,169,572 | $46.35 | | |
| LIB | Library Sno-Isle GEN | 0.3153421757 | $1,169,572 | $1,169,572 | $368.82 | | |
| SCH205_401 | School 205-401 Enrichment | 1.2698420524 | $1,169,572 | $1,169,572 | $1,485.17 | | |
| SCH205BOND | School 205-401 BOND | 0.9396497583 | $1,169,572 | $1,169,572 | $1,098.99 | | |
| ST | State School | 1.3035497053 | $1,169,572 | $1,169,572 | $1,524.60 | | |
| ST2 | State School Part 2 | 0.8169543533 | $1,169,572 | $1,169,572 | $955.49 | | |
| | Total Tax Rate: | 7.3209764117 | | | | | |
| | | | | Taxes w/Current Exemptions: | $8,562.41 | | |
| | | | | Taxes w/o Exemptions: | $8,562.41 | | |
Improvement / Building
| Improvement #1: | RESIDENTIAL | State Code: | Y | 3517.0 sqft | Value: | $669,572 |
| Bathrooms: | 2.5 | Bedrooms: | 3 | | Ceiling: | DRYWALL PAINTED | Cooling: | HEAT PUMP/CONV/V | | Exterior Wall/Cover: | CEMENT FIBER | Floor Covering: | HARDWOOD/CARP 60-40 | | Floor Structure: | WOOD W/SUBFLOOR | Foundation: | CONCRETE | | Interior Finish: | DRYWALL PAINT | Plumbing Fixture Cnt: | 17 | | Roof Slope: | 5" IN 12" | Roof Structure/Cover: | CJ ASPHALT |
|
| | Type | Description | Class CD | Sub Class CD | Year Built | Area |
| | BAS | BASE/MAIN FLOOR | 4 | 0 | 2004 | 1897.3 |
| | OP4 | OPEN PORCH W/CEILING-ROOF | 4 | 0 | 2004 | 74.6 |
| | AGR | ATTACHED GARAGE | 4 | 0 | 2004 | 941.5 |
| | OWP | OPEN WOOD PORCH W/STEPS | 4 | 0 | 2004 | 590.0 |
| | DWN | DOWNSTAIRS LIVING AREA | 4 | 0 | 2004 | 1619.7 |
Sketch
Property Image
Land
| 1 | 15 | SQ (12001-21780) | 0.0000 | 0.00 | 0.00 | 0.00 | 1.00 | $500,000 | $0 |
Roll Value History
| 2026 | N/A | N/A | N/A | N/A | N/A |
| 2025 | $669,572 | $500,000 | $0 | $1,169,572 | $1,169,572 |
| 2024 | $677,426 | $490,000 | $0 | $1,167,426 | $1,167,426 |
| 2023 | $685,281 | $470,000 | $0 | $1,155,281 | $1,155,281 |
| 2022 | $599,265 | $450,000 | $0 | $1,049,265 | $1,049,265 |
| 2021 | $527,299 | $260,000 | $0 | $787,299 | $787,299 |
| 2020 | $514,327 | $220,000 | $0 | $734,327 | $734,327 |
| 2019 | $413,677 | $290,000 | $0 | $703,677 | $703,677 |
| 2018 | $414,862 | $250,000 | $0 | $664,862 | $664,862 |
| 2017 | $417,209 | $180,000 | $0 | $597,209 | $597,209 |
| 2016 | $457,561 | $150,000 | $0 | $607,561 | $607,561 |
| 2015 | $457,084 | $125,000 | $0 | $582,084 | $582,084 |
| 2014 | $462,278 | $125,000 | $0 | $587,278 | $587,278 |
| 2013 | $467,472 | $125,000 | $0 | $592,472 | $592,472 |
| 2012 | $472,666 | $120,000 | $0 | $592,666 | $592,666 |
| 2011 | $477,860 | $150,000 | $0 | $627,860 | $627,860 |
| 2010 | $513,514 | $190,000 | $0 | $703,514 | $703,514 |
| 2009 | $540,552 | $200,000 | $0 | $740,552 | $740,552 |
| 2008 | $562,415 | $300,000 | $0 | $862,415 | $862,415 |
| 2007 | $568,843 | $300,000 | $0 | $868,843 | $868,843 |
Deed and Sales History
| 1 | 09/25/2019 | WD | Warranty Deed | IWAMOTO, MATTHEW M | BURDEN, KENT S | | | $769,950.00 | 40495 | 4472444 |
| 2 | 01/14/2004 | WD | Warranty Deed | MARQUEE LLC, GRAND | IWAMOTO, MATTHEW M | | | $525,000.00 | 40390 | 4089950 |
| 3 | 07/21/2003 | QCD | Quit Claim Deed | MARQUEE LLC, GRAND | MARQUEE LLC, GRAND | | | $0.00 | 33161 | 4067939 |
| 4 | 03/24/2003 | WD | Warranty Deed | THOMPSON, RICK J | MARQUEE LLC, GRAND | | | $85,000.00 | 31285 | 4052837 |
| 5 | 08/06/2002 | WD | Warranty Deed | LUCK, CARL M | THOMPSON, RICK J | | | $90,000.00 | 23115 | 4027996 |
| 6 | 10/03/2001 | WD | Warranty Deed | GIBBONS, DRILLING I | LUCK, CARL M | | | $89,900.00 | 13885 | 20044883 |
| 7 | 01/01/1900 | OTHER | Other - Misc. Documents | Unknown | GIBBONS, DRILLING I | | | $0.00 | 92734 | 89009269 |
Payout Agreement
| No payout information available.. |