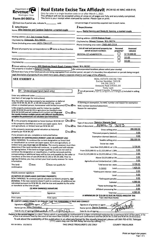
Property
Account |
| Property ID: | 678939 | Abbreviated Legal Description: | FINISTERRE HTS - PRD LOT 20 |
| Geographic ID: | S6627-00-00020-0 | Agent Code: | |
| Type: | Real | | |
| Tax Area: | 510 - APPRAISER-Stan/Cam Schl Dist, improved & 1 acre or less | Land Use Code | 11 |
| Open Space: | N | DFL | N |
| Historic Property: | N | Remodel Property: | N |
| Multi-Family Redevelopment: | N | | |
| Township: | | Section: | |
| Range: | |
Location |
| Address: | 262 ALTA VIA DR CAMANO ISLAND, WA 98282 | Mapsco: | |
| Neighborhood: | North Camano | Map ID: | 560 |
| Neighborhood CD: | 06-C |
Owner |
| Name: | REGAN JR, ROBERT J | Owner ID: | 264234 |
| Mailing Address: | MISTY D REGAN 262 ALTA VIA DR CAMANO ISLAND, WA 98282 | % Ownership: | 100.0000000000% |
| | | Exemptions: | |
Taxes and Assessment Details
Values
| (+) Improvement Homesite Value: | + | $0 | |
| (+) Improvement Non-Homesite Value: | + | $664,768 | |
| (+) Land Homesite Value: | + | $0 | |
| (+) Land Non-Homesite Value: | + | $500,000 | |
| (+) Curr Use (HS): | + | $0 | $0 |
| (+) Curr Use (NHS): | + | $0 | $0 |
| | | -------------------------- | |
| (=) Market Value: | = | $1,164,768 | |
| (–) Productivity Loss: | – | $0 | |
| | | -------------------------- | |
| (=) Subtotal: | = | $1,164,768 | |
| (+) Senior Appraised Value: | + | $0 | |
| (+) Non-Senior Appraised Value: | + | $1,164,768 | |
| | | -------------------------- | |
| (=) Total Appraised Value: | = | $1,164,768 | |
| (–) Senior Exemption Loss: | – | $0 | |
| (–) Exemption Loss: | – | $0 | |
| | | -------------------------- | |
| (=) Taxable Value: | = | $1,164,768 | |
Taxing Jurisdiction
| Owner: | REGAN JR, ROBERT J | | |
| % Ownership: | 100.0000000000% | | |
| Total Value: | $1,164,768 | | |
| Tax Area: | 510 - APPRAISER-Stan/Cam Schl Dist, improved & 1 acre or less |
| CF | Conservation Futures | 0.0316035091 | $1,164,768 | $1,164,768 | $36.81 | | |
| EMS1 | Fire & Rescue Dist #1 Camano GEN (EMS) | 0.3677864386 | $1,164,768 | $1,164,768 | $428.39 | | |
| FIRE1 | Fire & Rescue Dist #1 Camano GEN | 1.2502910536 | $1,164,768 | $1,164,768 | $1,456.30 | | |
| FIRE1BOND | Fire & Rescue Dist #1 Camano BOND | 0.1570001679 | $1,164,768 | $1,164,768 | $182.87 | | |
| CE | County Current Expense | 0.3708482477 | $1,164,768 | $1,164,768 | $431.95 | | |
| CR | County Roads | 0.4584763726 | $1,164,768 | $1,164,768 | $534.02 | | |
| LCIB | Library Sno-Isle BOND (Camano Island) | 0.0396325772 | $1,164,768 | $1,164,768 | $46.16 | | |
| LIB | Library Sno-Isle GEN | 0.3153421757 | $1,164,768 | $1,164,768 | $367.30 | | |
| SCH205_401 | School 205-401 Enrichment | 1.2698420524 | $1,164,768 | $1,164,768 | $1,479.07 | | |
| SCH205BOND | School 205-401 BOND | 0.9396497583 | $1,164,768 | $1,164,768 | $1,094.47 | | |
| ST | State School | 1.3035497053 | $1,164,768 | $1,164,768 | $1,518.33 | | |
| ST2 | State School Part 2 | 0.8169543533 | $1,164,768 | $1,164,768 | $951.56 | | |
| | Total Tax Rate: | 7.3209764117 | | | | | |
| | | | | Taxes w/Current Exemptions: | $8,527.23 | | |
| | | | | Taxes w/o Exemptions: | $8,527.23 | | |
Improvement / Building
| Improvement #1: | RESIDENTIAL | State Code: | Y | 3514.0 sqft | Value: | $664,768 |
| Bathrooms: | 3 | Bedrooms: | 4 | | Ceiling: | DRYWALL PAINTED | Exterior Wall/Cover: | CEMENT FIBER | | Floor Covering: | HARDWOOD/CARP 80-20 | Floor Structure: | WOOD W/SUBFLOOR | | Foundation: | CONCRETE | Heating: | FHA GAS | | Interior Finish: | DRYWALL PAINT | Plumbing Fixture Cnt: | 16 | | Roof Slope: | 8" IN 12" | Roof Structure/Cover: | CJ ASPHALT |
|
| | Type | Description | Class CD | Sub Class CD | Year Built | Area |
| | BAS | BASE/MAIN FLOOR | 4 | 0 | 2004 | 2176.0 |
| | OP4 | OPEN PORCH W/CEILING-ROOF | 4 | 0 | 2004 | 201.2 |
| | AGR | ATTACHED GARAGE | 4 | 0 | 2004 | 745.0 |
| | OWP | OPEN WOOD PORCH W/STEPS | 4 | 0 | 2004 | 452.0 |
| | OWP | OPEN WOOD PORCH W/STEPS | 4 | 0 | 2004 | 286.0 |
| | DWN | DOWNSTAIRS LIVING AREA | 4 | 0 | 2004 | 1338.0 |
Sketch
Property Image
Land
| 1 | 15 | SQ (12001-21780) | 0.0000 | 0.00 | 0.00 | 0.00 | 1.00 | $500,000 | $0 |
Roll Value History
| 2026 | N/A | N/A | N/A | N/A | N/A |
| 2025 | $664,768 | $500,000 | $0 | $1,164,768 | $1,164,768 |
| 2024 | $672,752 | $490,000 | $0 | $1,162,752 | $1,162,752 |
| 2023 | $680,738 | $470,000 | $0 | $1,150,738 | $1,150,738 |
| 2022 | $609,175 | $450,000 | $0 | $1,059,175 | $1,059,175 |
| 2021 | $536,013 | $260,000 | $0 | $796,013 | $796,013 |
| 2020 | $523,060 | $220,000 | $0 | $743,060 | $743,060 |
| 2019 | $421,858 | $290,000 | $0 | $711,858 | $711,858 |
| 2018 | $420,740 | $250,000 | $0 | $670,740 | $670,740 |
| 2017 | $423,138 | $180,000 | $0 | $603,138 | $603,138 |
| 2016 | $459,615 | $150,000 | $0 | $609,615 | $609,615 |
| 2015 | $464,899 | $125,000 | $0 | $589,899 | $589,899 |
| 2014 | $470,183 | $125,000 | $0 | $595,183 | $595,183 |
| 2013 | $475,466 | $125,000 | $0 | $600,466 | $600,466 |
| 2012 | $480,749 | $120,000 | $0 | $600,749 | $600,749 |
| 2011 | $486,031 | $150,000 | $0 | $636,031 | $636,031 |
| 2010 | $567,500 | $190,000 | $0 | $757,500 | $757,500 |
| 2009 | $596,893 | $200,000 | $0 | $796,893 | $796,893 |
| 2008 | $597,397 | $200,000 | $0 | $797,397 | $797,397 |
| 2007 | $603,858 | $200,000 | $0 | $803,858 | $803,858 |
Deed and Sales History
| 1 | 10/28/2013 | WD | Warranty Deed | DEUTSCHE BANK NATIONAL TRUST COMPANY | REGAN JR, ROBERT J | | | $440,000.00 | 13375 | 4350998 |
| 2 | 03/25/2013 | TRUSTEED | Trustee's Deed | BOBOKA, MICHAEL G | DEUTSCHE BANK NATIONAL TRUST COMPANY | | | $357,191.00 | 10835 | 43365868 |
| 3 | 09/09/2004 | WD | Warranty Deed | T G KOOPER CONSTRUCTION INC, | BOBOKA, MICHAEL G | | | $540,200.00 | 44381 | 4113204 |
| 4 | 12/03/2003 | WD | Warranty Deed | GIBBONS, DRILLING I | T G KOOPER CONSTRUCTION INC, | | | $94,900.00 | 35466 | 4085090 |
| 5 | 01/01/1900 | OTHER | Other - Misc. Documents | Unknown | GIBBONS, DRILLING I | | | $0.00 | 92734 | 89009269 |
Payout Agreement
| No payout information available.. |