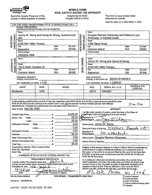
Property
Account |
| Property ID: | 678966 | Abbreviated Legal Description: | FINISTERRE HTS - PRD LOT 23 |
| Geographic ID: | S6627-00-00023-0 | Agent Code: | |
| Type: | Real | | |
| Tax Area: | 510 - APPRAISER-Stan/Cam Schl Dist, improved & 1 acre or less | Land Use Code | 11 |
| Open Space: | N | DFL | N |
| Historic Property: | N | Remodel Property: | N |
| Multi-Family Redevelopment: | N | | |
| Township: | | Section: | |
| Range: | |
Location |
| Address: | 1017 ILEDORA LN CAMANO ISLAND, WA 98282 | Mapsco: | |
| Neighborhood: | North Camano | Map ID: | 560 |
| Neighborhood CD: | 06-C |
Owner |
| Name: | METZGER, DAVID & THERESA | Owner ID: | 155943 |
| Mailing Address: | 1017 ILEDORA CT CAMANO ISLAND, WA 98282-6633 | % Ownership: | 100.0000000000% |
| | | Exemptions: | |
Taxes and Assessment Details
Values
| (+) Improvement Homesite Value: | + | $0 | |
| (+) Improvement Non-Homesite Value: | + | $639,146 | |
| (+) Land Homesite Value: | + | $0 | |
| (+) Land Non-Homesite Value: | + | $500,000 | |
| (+) Curr Use (HS): | + | $0 | $0 |
| (+) Curr Use (NHS): | + | $0 | $0 |
| | | -------------------------- | |
| (=) Market Value: | = | $1,139,146 | |
| (–) Productivity Loss: | – | $0 | |
| | | -------------------------- | |
| (=) Subtotal: | = | $1,139,146 | |
| (+) Senior Appraised Value: | + | $0 | |
| (+) Non-Senior Appraised Value: | + | $1,139,146 | |
| | | -------------------------- | |
| (=) Total Appraised Value: | = | $1,139,146 | |
| (–) Senior Exemption Loss: | – | $0 | |
| (–) Exemption Loss: | – | $0 | |
| | | -------------------------- | |
| (=) Taxable Value: | = | $1,139,146 | |
Taxing Jurisdiction
| Owner: | METZGER, DAVID & THERESA | | |
| % Ownership: | 100.0000000000% | | |
| Total Value: | $1,139,146 | | |
| Tax Area: | 510 - APPRAISER-Stan/Cam Schl Dist, improved & 1 acre or less |
| CF | Conservation Futures | 0.0316035091 | $1,139,146 | $1,139,146 | $36.00 | | |
| EMS1 | Fire & Rescue Dist #1 Camano GEN (EMS) | 0.3677864386 | $1,139,146 | $1,139,146 | $418.96 | | |
| FIRE1 | Fire & Rescue Dist #1 Camano GEN | 1.2502910536 | $1,139,146 | $1,139,146 | $1,424.26 | | |
| FIRE1BOND | Fire & Rescue Dist #1 Camano BOND | 0.1570001679 | $1,139,146 | $1,139,146 | $178.85 | | |
| CE | County Current Expense | 0.3708482477 | $1,139,146 | $1,139,146 | $422.45 | | |
| CR | County Roads | 0.4584763726 | $1,139,146 | $1,139,146 | $522.27 | | |
| LCIB | Library Sno-Isle BOND (Camano Island) | 0.0396325772 | $1,139,146 | $1,139,146 | $45.15 | | |
| LIB | Library Sno-Isle GEN | 0.3153421757 | $1,139,146 | $1,139,146 | $359.22 | | |
| SCH205_401 | School 205-401 Enrichment | 1.2698420524 | $1,139,146 | $1,139,146 | $1,446.54 | | |
| SCH205BOND | School 205-401 BOND | 0.9396497583 | $1,139,146 | $1,139,146 | $1,070.40 | | |
| ST | State School | 1.3035497053 | $1,139,146 | $1,139,146 | $1,484.93 | | |
| ST2 | State School Part 2 | 0.8169543533 | $1,139,146 | $1,139,146 | $930.63 | | |
| | Total Tax Rate: | 7.3209764117 | | | | | |
| | | | | Taxes w/Current Exemptions: | $8,339.66 | | |
| | | | | Taxes w/o Exemptions: | $8,339.66 | | |
Improvement / Building
| Improvement #1: | RESIDENTIAL | State Code: | Y | 3603.5 sqft | Value: | $639,146 |
| Bathrooms: | 3 | Bedrooms: | 3 | | Ceiling: | DRYWALL PAINTED | Exterior Wall/Cover: | WOOD SIDING | | Floor Covering: | HARDWOOD/CARP 60-40 | Floor Structure: | WOOD W/SUBFLOOR | | Foundation: | CONCRETE | Heating: | FHA GAS | | Interior Finish: | DRYWALL PAINT | Plumbing Fixture Cnt: | 16 | | Roof Slope: | 6" IN 12" | Roof Structure/Cover: | CJ ASPHALT |
|
| | Type | Description | Class CD | Sub Class CD | Year Built | Area |
| | BAS | BASE/MAIN FLOOR | 4 | 0 | 1998 | 2132.5 |
| | OP4 | OPEN PORCH W/CEILING-ROOF | 4 | 0 | 1998 | 48.5 |
| | BGR | BASEMENT GARAGE | 4 | 0 | 1998 | 841.0 |
| | OWP | OPEN WOOD PORCH W/STEPS | 4 | 0 | 1998 | 250.0 |
| | ENP | ENCLOSED PORCH | 4 | 0 | 1998 | 260.0 |
| | LOF | LOFT | 4 | 0 | 1998 | 246.0 |
| | DWN | DOWNSTAIRS LIVING AREA | 4 | 0 | 1998 | 1225.0 |
Sketch
Property Image
Land
| 1 | 16 | AC (00.51-01.00) | 0.0000 | 0.00 | 0.00 | 0.00 | 1.00 | $500,000 | $0 |
Roll Value History
| 2026 | N/A | N/A | N/A | N/A | N/A |
| 2025 | $639,146 | $500,000 | $0 | $1,139,146 | $1,139,146 |
| 2024 | $646,822 | $490,000 | $0 | $1,136,822 | $1,136,822 |
| 2023 | $654,503 | $470,000 | $0 | $1,124,503 | $1,124,503 |
| 2022 | $522,396 | $450,000 | $0 | $972,396 | $972,396 |
| 2021 | $459,738 | $260,000 | $0 | $719,738 | $719,738 |
| 2020 | $448,640 | $220,000 | $0 | $668,640 | $668,640 |
| 2019 | $359,621 | $290,000 | $0 | $649,621 | $649,621 |
| 2018 | $360,664 | $250,000 | $0 | $610,664 | $610,664 |
| 2017 | $362,748 | $180,000 | $0 | $542,748 | $542,748 |
| 2016 | $375,475 | $150,000 | $0 | $525,475 | $525,475 |
| 2015 | $379,743 | $125,000 | $0 | $504,743 | $504,743 |
| 2014 | $384,010 | $125,000 | $0 | $509,010 | $509,010 |
| 2013 | $388,277 | $125,000 | $0 | $513,277 | $513,277 |
| 2012 | $320,376 | $120,000 | $0 | $440,376 | $440,376 |
| 2011 | $324,057 | $150,000 | $0 | $474,057 | $474,057 |
| 2010 | $392,907 | $190,000 | $0 | $582,907 | $582,907 |
| 2009 | $410,070 | $200,000 | $0 | $610,070 | $610,070 |
| 2008 | $415,285 | $200,000 | $0 | $615,285 | $615,285 |
| 2007 | $420,530 | $200,000 | $0 | $620,530 | $620,530 |
Deed and Sales History
| 1 | 04/01/1996 | WD | Warranty Deed | GIBBONS, DRILLING I | METZGER, DAVID & | | | $77,000.00 | 61620 | 96008179 |
| 2 | 01/01/1900 | OTHER | Other - Misc. Documents | Unknown | GIBBONS, DRILLING I | | | $0.00 | 92734 | 89009269 |
Payout Agreement
| No payout information available.. |