Property
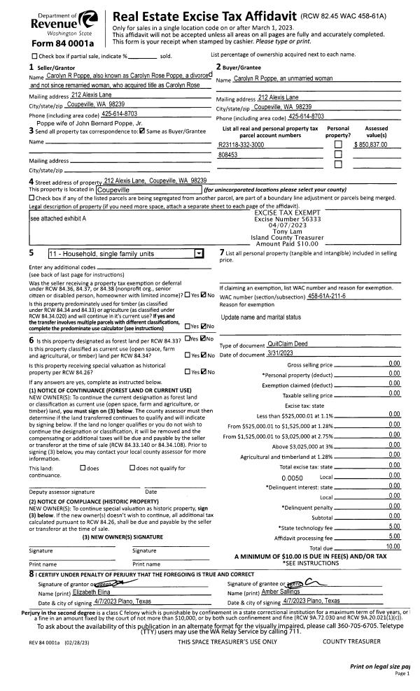
Account |
| Property ID: | 678993 | Abbreviated Legal Description: | FINISTERRE HTS - PRD LOT 26 |
| Geographic ID: | S6627-00-00026-0 | Agent Code: | |
| Type: | Real | | |
| Tax Area: | 510 - APPRAISER-Stan/Cam Schl Dist, improved & 1 acre or less | Land Use Code | 11 |
| Open Space: | N | DFL | N |
| Historic Property: | N | Remodel Property: | N |
| Multi-Family Redevelopment: | N | | |
| Township: | | Section: | |
| Range: | |
Location |
| Address: | 1026 ILEDORA LN CAMANO ISLAND, WA 98282 | Mapsco: | |
| Neighborhood: | North Camano | Map ID: | 560 |
| Neighborhood CD: | 06-C |
Owner |
| Name: | WOLF TRUSTEE, JON H | Owner ID: | 64719 |
| Mailing Address: | DEBRA S WOLF TRUSTEE 1026 ILEDORA CT CAMANO ISLAND, WA 98282-6633 | % Ownership: | 100.0000000000% |
| | | Exemptions: | |
Taxes and Assessment Details
Values
| (+) Improvement Homesite Value: | + | $0 | |
| (+) Improvement Non-Homesite Value: | + | $535,759 | |
| (+) Land Homesite Value: | + | $0 | |
| (+) Land Non-Homesite Value: | + | $500,000 | |
| (+) Curr Use (HS): | + | $0 | $0 |
| (+) Curr Use (NHS): | + | $0 | $0 |
| | | -------------------------- | |
| (=) Market Value: | = | $1,035,759 | |
| (–) Productivity Loss: | – | $0 | |
| | | -------------------------- | |
| (=) Subtotal: | = | $1,035,759 | |
| (+) Senior Appraised Value: | + | $0 | |
| (+) Non-Senior Appraised Value: | + | $1,035,759 | |
| | | -------------------------- | |
| (=) Total Appraised Value: | = | $1,035,759 | |
| (–) Senior Exemption Loss: | – | $0 | |
| (–) Exemption Loss: | – | $0 | |
| | | -------------------------- | |
| (=) Taxable Value: | = | $1,035,759 | |
Taxing Jurisdiction
| Owner: | WOLF TRUSTEE, JON H | | |
| % Ownership: | 100.0000000000% | | |
| Total Value: | $1,035,759 | | |
| Tax Area: | 510 - APPRAISER-Stan/Cam Schl Dist, improved & 1 acre or less |
| CF | Conservation Futures | 0.0316035091 | $1,035,759 | $1,035,759 | $32.73 | | |
| EMS1 | Fire & Rescue Dist #1 Camano GEN (EMS) | 0.3677864386 | $1,035,759 | $1,035,759 | $380.94 | | |
| FIRE1 | Fire & Rescue Dist #1 Camano GEN | 1.2502910536 | $1,035,759 | $1,035,759 | $1,295.00 | | |
| FIRE1BOND | Fire & Rescue Dist #1 Camano BOND | 0.1570001679 | $1,035,759 | $1,035,759 | $162.61 | | |
| CE | County Current Expense | 0.3708482477 | $1,035,759 | $1,035,759 | $384.11 | | |
| CR | County Roads | 0.4584763726 | $1,035,759 | $1,035,759 | $474.87 | | |
| LCIB | Library Sno-Isle BOND (Camano Island) | 0.0396325772 | $1,035,759 | $1,035,759 | $41.05 | | |
| LIB | Library Sno-Isle GEN | 0.3153421757 | $1,035,759 | $1,035,759 | $326.62 | | |
| SCH205_401 | School 205-401 Enrichment | 1.2698420524 | $1,035,759 | $1,035,759 | $1,315.25 | | |
| SCH205BOND | School 205-401 BOND | 0.9396497583 | $1,035,759 | $1,035,759 | $973.25 | | |
| ST | State School | 1.3035497053 | $1,035,759 | $1,035,759 | $1,350.16 | | |
| ST2 | State School Part 2 | 0.8169543533 | $1,035,759 | $1,035,759 | $846.17 | | |
| | Total Tax Rate: | 7.3209764117 | | | | | |
| | | | | Taxes w/Current Exemptions: | $7,582.76 | | |
| | | | | Taxes w/o Exemptions: | $7,582.76 | | |
Improvement / Building
| Improvement #1: | RESIDENTIAL | State Code: | Y | 3633.8 sqft | Value: | $535,759 |
| Bathrooms: | 3 | Bedrooms: | 2 | | Ceiling: | DRYWALL PAINTED | Exterior Wall/Cover: | PLY/HARDBOARD T-111 | | Floor Covering: | CARPET/VINYL 60-40 | Floor Structure: | WOOD W/SUBFLOOR | | Foundation: | CONCRETE | Heating: | FHA GAS | | Interior Finish: | DRYWALL PAINT | Plumbing Fixture Cnt: | 14 | | Roof Slope: | 6" IN 12" | Roof Structure/Cover: | CJ ASPHALT |
|
| | Type | Description | Class CD | Sub Class CD | Year Built | Area |
| | BAS | BASE/MAIN FLOOR | 4 | 0 | 1996 | 2453.8 |
| | OP4 | OPEN PORCH W/CEILING-ROOF | 4 | 0 | 1996 | 42.0 |
| | AGR | ATTACHED GARAGE | 4 | 0 | 1996 | 686.0 |
| | OWP | OPEN WOOD PORCH W/STEPS | 4 | 0 | 1996 | 686.0 |
| | UTY | STORAGE/UTILITY | 4 | 0 | 1996 | 590.5 |
| | DWN | DOWNSTAIRS LIVING AREA | 4 | 0 | 1996 | 1180.0 |
Sketch
Property Image
Land
| 1 | 15 | SQ (12001-21780) | 0.0000 | 0.00 | 0.00 | 0.00 | 1.00 | $500,000 | $0 |
Roll Value History
| 2026 | N/A | N/A | N/A | N/A | N/A |
| 2025 | $535,759 | $500,000 | $0 | $1,035,759 | $1,035,759 |
| 2024 | $542,434 | $490,000 | $0 | $1,032,434 | $1,032,434 |
| 2023 | $549,111 | $470,000 | $0 | $1,019,111 | $1,019,111 |
| 2022 | $434,359 | $450,000 | $0 | $884,359 | $884,359 |
| 2021 | $382,404 | $260,000 | $0 | $642,404 | $642,404 |
| 2020 | $373,675 | $220,000 | $0 | $593,675 | $593,675 |
| 2019 | $309,278 | $290,000 | $0 | $599,278 | $599,278 |
| 2018 | $310,206 | $250,000 | $0 | $560,206 | $560,206 |
| 2017 | $312,000 | $180,000 | $0 | $492,000 | $492,000 |
| 2016 | $325,375 | $150,000 | $0 | $475,375 | $475,375 |
| 2015 | $329,295 | $125,000 | $0 | $454,295 | $454,295 |
| 2014 | $333,215 | $125,000 | $0 | $458,215 | $458,215 |
| 2013 | $337,134 | $125,000 | $0 | $462,134 | $462,134 |
| 2012 | $341,055 | $120,000 | $0 | $461,055 | $461,055 |
| 2011 | $344,976 | $150,000 | $0 | $494,976 | $494,976 |
| 2010 | $348,206 | $190,000 | $0 | $538,206 | $538,206 |
| 2009 | $319,508 | $200,000 | $0 | $519,508 | $519,508 |
| 2008 | $285,875 | $200,000 | $0 | $485,875 | $485,875 |
| 2007 | $289,497 | $200,000 | $0 | $489,497 | $489,497 |
Deed and Sales History
| 1 | 11/11/2004 | 5 | DNU - Marriage License/Name Change | WOLF, JON H | WOLF TRUSTEE, JON H | | | $0.00 | 45424 | 4118406 |
| 2 | 11/27/2000 | WD | Warranty Deed | THOMAS, KEITH L | WOLF, JON H | | | $280,000.00 | 4621 | 20021453 |
| 3 | 12/01/1995 | WD | Warranty Deed | CLASSIC, DESIGN C | THOMAS, KEITH L | | | $253,500.00 | 54423 | 95020430 |
| 4 | 06/01/1995 | WD | Warranty Deed | GIBBONS, DRILLING I | CLASSIC, DESIGN C | | | $66,000.00 | 52219 | 95010185 |
| 5 | 01/01/1900 | OTHER | Other - Misc. Documents | Unknown | GIBBONS, DRILLING I | | | $0.00 | 92734 | 89009269 |
Payout Agreement
| No payout information available.. |