Property
Account |
| Property ID: | 67901 | Abbreviated Legal Description: | FR R230 MS2:412-5110 E/2 N/2 N/2 NE NE EX RD TGW & SUB EZS |
| Geographic ID: | R23028-512-5110 | Agent Code: | |
| Type: | Real | | |
| Tax Area: | 312 - APPRAISER-Cpvl Schl Dist, outside Cpvl, improved, greater than 1 acre | Land Use Code | 11 |
| Open Space: | N | DFL | N |
| Historic Property: | N | Remodel Property: | N |
| Multi-Family Redevelopment: | N | | |
| Township: | 30 | Section: | 28 |
| Range: | R2 |
Location |
| Address: | 4010 RESORT RD GREENBANK, WA 98253 | Mapsco: | |
| Neighborhood: | Cycle 3 | Map ID: | 424 |
| Neighborhood CD: | 3 |
Owner |
| Name: | WHITESIDE, GREGORY C | Owner ID: | 287661 |
| Mailing Address: | JANICE C. WHITESIDE 21131 LOCUST WAY LYNNWOOD, WA 98036 | % Ownership: | 100.0000000000% |
| | | Exemptions: | |
Taxes and Assessment Details
Values
| (+) Improvement Homesite Value: | + | $0 | |
| (+) Improvement Non-Homesite Value: | + | $455,946 | |
| (+) Land Homesite Value: | + | $0 | |
| (+) Land Non-Homesite Value: | + | $350,000 | |
| (+) Curr Use (HS): | + | $0 | $0 |
| (+) Curr Use (NHS): | + | $0 | $0 |
| | | -------------------------- | |
| (=) Market Value: | = | $805,946 | |
| (–) Productivity Loss: | – | $0 | |
| | | -------------------------- | |
| (=) Subtotal: | = | $805,946 | |
| (+) Senior Appraised Value: | + | $0 | |
| (+) Non-Senior Appraised Value: | + | $805,946 | |
| | | -------------------------- | |
| (=) Total Appraised Value: | = | $805,946 | |
| (–) Senior Exemption Loss: | – | $0 | |
| (–) Exemption Loss: | – | $0 | |
| | | -------------------------- | |
| (=) Taxable Value: | = | $805,946 | |
Taxing Jurisdiction
| Owner: | WHITESIDE, GREGORY C | | |
| % Ownership: | 100.0000000000% | | |
| Total Value: | $805,946 | | |
| Tax Area: | 312 - APPRAISER-Cpvl Schl Dist, outside Cpvl, improved, greater than 1 acre |
| CF | Conservation Futures | 0.0316035091 | $805,946 | $805,946 | $25.47 | | |
| CEM2 | Cemetery #2 | 0.0095056933 | $805,946 | $805,946 | $7.66 | | |
| FIRE5 | Fire & Rescue Dist #5 C Whidbey GEN | 1.2008080668 | $805,946 | $805,946 | $967.79 | | |
| FIRE5BOND | Fire & Rescue Dist #5 C Whidbey BOND | 0.1400090713 | $805,946 | $805,946 | $112.84 | | |
| HOBOND | Hospital BOND | 0.1910887512 | $805,946 | $805,946 | $154.01 | | |
| HOGEN | Hospital GEN | 0.3902502903 | $805,946 | $805,946 | $314.52 | | |
| CE | County Current Expense | 0.3708482477 | $805,946 | $805,946 | $298.88 | | |
| CR | County Roads | 0.4584763726 | $805,946 | $805,946 | $369.51 | | |
| ISLANDEMS | Hospital GEN (EMS) | 0.5000000000 | $805,946 | $805,946 | $402.97 | | |
| LIB | Library Sno-Isle GEN | 0.3153421757 | $805,946 | $805,946 | $254.15 | | |
| LIBCAP | Library Sno-Isle BOND (Cap Fac Imp Area) | 0.0543427938 | $805,946 | $805,946 | $43.80 | | |
| POCOUP | Port of Coupeville GEN | 0.1093371703 | $805,946 | $805,946 | $88.12 | | |
| POCOUPIDD | Port of Coupeville IDD | 0.3409740022 | $805,946 | $805,946 | $274.81 | | |
| COUPSDTECH | School 204 CP (TECH) | 0.7545480007 | $805,946 | $805,946 | $608.12 | | |
| SCH204MO | School 204 Enrichment | 0.6716186034 | $805,946 | $805,946 | $541.29 | | |
| ST | State School | 1.3035497053 | $805,946 | $805,946 | $1,050.59 | | |
| ST2 | State School Part 2 | 0.8169543533 | $805,946 | $805,946 | $658.42 | | |
| | Total Tax Rate: | 7.6592568070 | | | | | |
| | | | | Taxes w/Current Exemptions: | $6,172.95 | | |
| | | | | Taxes w/o Exemptions: | $6,172.95 | | |
Improvement / Building
| Improvement #1: | RESIDENTIAL | State Code: | Y | 1730.8 sqft | Value: | $455,946 |
| Bathrooms: | 2 | Bedrooms: | 2 | | Ceiling: | TONGUE & GROOVE | Exterior Wall/Cover: | SHINGLE | | Floor Covering: | HARDWOOD/CARP 60-40 | Floor Structure: | WOOD W/SUBFLOOR | | Foundation: | CONCRETE | Heating: | RADIANT FLOOR | | Interior Finish: | DRYWALL PAINT | Plumbing Fixture Cnt: | 9 | | Roof Slope: | 4" IN 12" | Roof Structure/Cover: | BEAM ALUMINUM HEAVY |
|
| | Type | Description | Class CD | Sub Class CD | Year Built | Area |
| | BAS | BASE/MAIN FLOOR | 3 | 0 | 2007 | 1730.8 |
| | AGR | ATTACHED GARAGE | 3 | 0 | 2007 | 448.1 |
| | OWP | OPEN WOOD PORCH W/STEPS | 3 | 0 | 2007 | 298.0 |
| | ATU | ATTIC UNFINISHED | 3 | 0 | 2007 | 864.0 |
| | DGR | DETACHED GARAGE | 3 | 0 | 2007 | 864.0 |
| | UTY | STORAGE/UTILITY | 3 | 0 | 2007 | 144.0 |
| | UTY | STORAGE/UTILITY | 3 | 0 | 2007 | 144.0 |
| | OWP | OPEN WOOD PORCH W/STEPS | 3 | 0 | 2007 | 360.0 |
| | CPD | OPEN CARPORT DIRT FLOOR | 3 | 0 | 2007 | 432.0 |
| | CPD | OPEN CARPORT DIRT FLOOR | 3 | 0 | 2007 | 168.0 |
| | CPD | OPEN CARPORT DIRT FLOOR | 3 | 0 | 2007 | 252.0 |
Sketch
Property Image
Land
| 1 | 32 | AC (03.01-09.99) | 4.8500 | 0.00 | 0.00 | 0.00 | 1.00 | $350,000 | $0 |
Roll Value History
| 2026 | N/A | N/A | N/A | N/A | N/A |
| 2025 | $455,946 | $350,000 | $0 | $805,946 | $805,946 |
| 2024 | $461,169 | $340,000 | $0 | $801,169 | $801,169 |
| 2023 | $466,395 | $320,000 | $0 | $786,395 | $786,395 |
| 2022 | $425,889 | $260,000 | $0 | $685,889 | $685,889 |
| 2021 | $373,622 | $230,000 | $0 | $603,622 | $603,622 |
| 2020 | $363,154 | $180,000 | $0 | $543,154 | $543,154 |
| 2019 | $232,525 | $220,000 | $0 | $452,525 | $452,525 |
| 2018 | $233,099 | $170,000 | $0 | $403,099 | $403,099 |
| 2017 | $234,245 | $160,000 | $0 | $394,245 | $394,245 |
| 2016 | $236,541 | $120,000 | $0 | $356,541 | $356,541 |
| 2015 | $238,836 | $130,000 | $0 | $368,836 | $368,836 |
| 2014 | $241,134 | $125,000 | $0 | $366,134 | $366,134 |
| 2013 | $243,429 | $117,855 | $0 | $361,284 | $301,578 |
| 2012 | $245,725 | $117,855 | $0 | $363,580 | $301,578 |
| 2011 | $248,020 | $130,950 | $0 | $378,970 | $301,578 |
| 2010 | $252,612 | $130,950 | $0 | $383,562 | $301,578 |
| 2009 | $223,118 | $190,064 | $0 | $413,182 | $269,692 |
| 2008 | $210,474 | $165,372 | $0 | $375,846 | $256,566 |
| 2007 | $66,831 | $150,350 | $0 | $217,181 | $217,181 |
Deed and Sales History
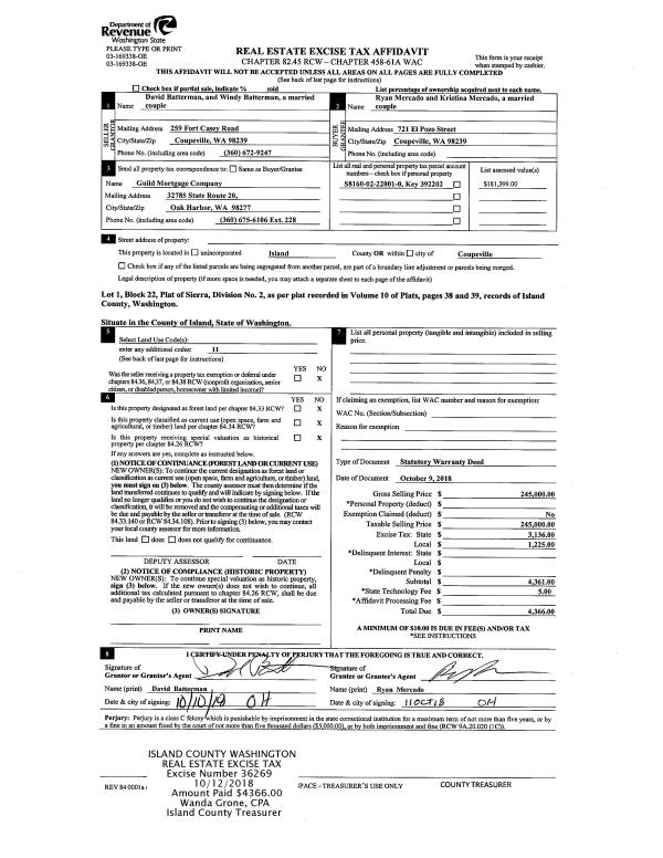
| 1 | 10/01/2018 | QCD | Quit Claim Deed | WHITESIDE, LEON C | WHITESIDE, GREGORY C | | | $0.00 | 36427 | 4454013 |
| 2 | 09/13/2005 | WD | Warranty Deed | WINTERS-GREEN, REBECCA | WHITESIDE, LEON C | | | $100,000.00 | 54683 | 4147931 |
| 3 | 09/01/1990 | WD | Warranty Deed | MILLER, GEORGE R | WINTERS-GREEN, REBECCA | | | $22,500.00 | 5402 | 90018057 |
| 4 | 06/01/1986 | QCD | Quit Claim Deed | MILLER, GEORGE R | MILLER, GEORGE R | | | $0.00 | 61487 | 86007001 |
| 5 | 04/01/1978 | OTHER | Other - Misc. Documents | Unknown | MILLER, GEORGE R | | | $12,500.00 | 81365 | 3302950 |
| 6 | 01/01/1900 | OTHER | Other - Misc. Documents | WINTERS-GREEN, REBECCA | WINTERS-GREEN, REBECCA | | | $0.00 | 0 | 0 |
Payout Agreement
| No payout information available.. |