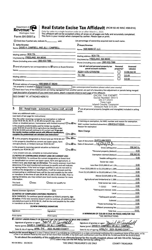
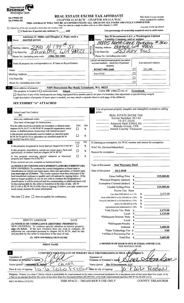
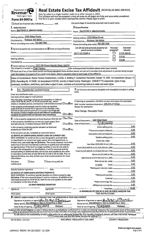
Property
Account |
| Property ID: | 679037 | Abbreviated Legal Description: | FINISTERRE HTS - PRD LOT 30 |
| Geographic ID: | S6627-00-00030-0 | Agent Code: | |
| Type: | Real | | |
| Tax Area: | 510 - APPRAISER-Stan/Cam Schl Dist, improved & 1 acre or less | Land Use Code | 11 |
| Open Space: | N | DFL | N |
| Historic Property: | N | Remodel Property: | N |
| Multi-Family Redevelopment: | N | | |
| Township: | | Section: | |
| Range: | |
Location |
| Address: | 1029 JOANNA LN CAMANO ISLAND, WA 98282 | Mapsco: | |
| Neighborhood: | North Camano | Map ID: | 560 |
| Neighborhood CD: | 06-C |
Owner |
| Name: | MCLAUCHLAN, STACIE | Owner ID: | 307875 |
| Mailing Address: | KATHERINE KNOWLES 1029 JOANNA LANE CAMANO ISLAND, WA 98277 | % Ownership: | 100.0000000000% |
| | | Exemptions: | |
Taxes and Assessment Details
Values
| (+) Improvement Homesite Value: | + | $0 | |
| (+) Improvement Non-Homesite Value: | + | $502,321 | |
| (+) Land Homesite Value: | + | $0 | |
| (+) Land Non-Homesite Value: | + | $240,000 | |
| (+) Curr Use (HS): | + | $0 | $0 |
| (+) Curr Use (NHS): | + | $0 | $0 |
| | | -------------------------- | |
| (=) Market Value: | = | $742,321 | |
| (–) Productivity Loss: | – | $0 | |
| | | -------------------------- | |
| (=) Subtotal: | = | $742,321 | |
| (+) Senior Appraised Value: | + | $0 | |
| (+) Non-Senior Appraised Value: | + | $742,321 | |
| | | -------------------------- | |
| (=) Total Appraised Value: | = | $742,321 | |
| (–) Senior Exemption Loss: | – | $0 | |
| (–) Exemption Loss: | – | $0 | |
| | | -------------------------- | |
| (=) Taxable Value: | = | $742,321 | |
Taxing Jurisdiction
| Owner: | MCLAUCHLAN, STACIE | | |
| % Ownership: | 100.0000000000% | | |
| Total Value: | $742,321 | | |
| Tax Area: | 510 - APPRAISER-Stan/Cam Schl Dist, improved & 1 acre or less |
| CF | Conservation Futures | 0.0316035091 | $742,321 | $742,321 | $23.46 | | |
| EMS1 | Fire & Rescue Dist #1 Camano GEN (EMS) | 0.3677864386 | $742,321 | $742,321 | $273.02 | | |
| FIRE1 | Fire & Rescue Dist #1 Camano GEN | 1.2502910536 | $742,321 | $742,321 | $928.12 | | |
| FIRE1BOND | Fire & Rescue Dist #1 Camano BOND | 0.1570001679 | $742,321 | $742,321 | $116.54 | | |
| CE | County Current Expense | 0.3708482477 | $742,321 | $742,321 | $275.29 | | |
| CR | County Roads | 0.4584763726 | $742,321 | $742,321 | $340.34 | | |
| LCIB | Library Sno-Isle BOND (Camano Island) | 0.0396325772 | $742,321 | $742,321 | $29.42 | | |
| LIB | Library Sno-Isle GEN | 0.3153421757 | $742,321 | $742,321 | $234.09 | | |
| SCH205_401 | School 205-401 Enrichment | 1.2698420524 | $742,321 | $742,321 | $942.63 | | |
| SCH205BOND | School 205-401 BOND | 0.9396497583 | $742,321 | $742,321 | $697.52 | | |
| ST | State School | 1.3035497053 | $742,321 | $742,321 | $967.65 | | |
| ST2 | State School Part 2 | 0.8169543533 | $742,321 | $742,321 | $606.44 | | |
| | Total Tax Rate: | 7.3209764117 | | | | | |
| | | | | Taxes w/Current Exemptions: | $5,434.52 | | |
| | | | | Taxes w/o Exemptions: | $5,434.52 | | |
Improvement / Building
| Improvement #1: | RESIDENTIAL | State Code: | Y | 2734.0 sqft | Value: | $502,321 |
| Bathrooms: | 2.5 | Bedrooms: | 4 | | Ceiling: | DRYWALL PAINTED | Exterior Wall/Cover: | CEMENT FIBER | | Floor Covering: | HARDWOOD/CARP 20-80 | Floor Structure: | WOOD W/SUBFLOOR | | Foundation: | CONCRETE | Heating: | FHA GAS | | Interior Finish: | DRYWALL PAINT | Plumbing Fixture Cnt: | 14 | | Roof Slope: | 12" IN 12" | Roof Structure/Cover: | CJ ASPHALT |
|
| | Type | Description | Class CD | Sub Class CD | Year Built | Area |
| | BAS | BASE/MAIN FLOOR | 4 | 0 | 1994 | 1413.0 |
| | UTY | STORAGE/UTILITY | 4 | 0 | 1994 | 192.0 |
| | OP4 | OPEN PORCH W/CEILING-ROOF | 4 | 0 | 1994 | 40.0 |
| | OWP | OPEN WOOD PORCH W/STEPS | 4 | 0 | 1994 | 280.0 |
| | BIG | BUILT IN GARAGE | 4 | 0 | 1994 | 462.0 |
| | UPS | UPPER STORY | 4 | 0 | 1994 | 1137.0 |
| | LOF | LOFT | 4 | 0 | 1994 | 184.0 |
Sketch
Property Image
Land
| 1 | 15 | SQ (12001-21780) | 0.0000 | 0.00 | 0.00 | 0.00 | 1.00 | $240,000 | $0 |
Roll Value History
| 2026 | N/A | N/A | N/A | N/A | N/A |
| 2025 | $502,321 | $240,000 | $0 | $742,321 | $742,321 |
| 2024 | $508,013 | $250,000 | $0 | $758,013 | $758,013 |
| 2023 | $512,282 | $210,000 | $0 | $722,282 | $722,282 |
| 2022 | $444,568 | $210,000 | $0 | $654,568 | $654,568 |
| 2021 | $391,047 | $150,000 | $0 | $541,047 | $541,047 |
| 2020 | $381,159 | $130,000 | $0 | $511,159 | $511,159 |
| 2019 | $270,240 | $170,000 | $0 | $440,240 | $440,240 |
| 2018 | $271,033 | $150,000 | $0 | $421,033 | $421,033 |
| 2017 | $272,338 | $120,000 | $0 | $392,338 | $392,338 |
| 2016 | $278,285 | $115,000 | $0 | $393,285 | $393,285 |
| 2015 | $281,613 | $100,000 | $0 | $381,613 | $381,613 |
| 2014 | $284,942 | $100,000 | $0 | $384,942 | $384,942 |
| 2013 | $288,270 | $100,000 | $0 | $388,270 | $388,270 |
| 2012 | $291,599 | $96,000 | $0 | $387,599 | $387,599 |
| 2011 | $294,928 | $120,000 | $0 | $414,928 | $414,928 |
| 2010 | $297,379 | $120,000 | $0 | $417,379 | $417,379 |
| 2009 | $310,025 | $150,000 | $0 | $460,025 | $460,025 |
| 2008 | $313,946 | $130,000 | $0 | $443,946 | $443,946 |
| 2007 | $317,899 | $130,000 | $0 | $447,899 | $447,899 |
Deed and Sales History
| 1 | 03/03/2023 | WD | Warranty Deed | MUMBULUMA, SHAVON | MCLAUCHLAN, STACIE | | | $785,000.00 | 56037 | 4557413 |
| 2 | 05/01/2020 | WD | Warranty Deed | OSTRANDER, HANS | MUMBULUMA, SHAVON | | | $575,000.00 | 42938 | 4486163 |
| 3 | 10/21/2014 | SPWARDEED | Special Warranty Deed | FEDERAL HOME LOAN MORTGAGE CORPORATION | OSTRANDER, HANS | | | $260,000.00 | 17395 | 4367797 |
| 4 | 06/30/2014 | TRUSTEED | Trustee's Deed | TANKERSLEY, KURT L | FEDERAL HOME LOAN MORTGAGE CORPORATION | | | $288,708.00 | 15934 | 4361999 |
| 5 | 05/22/2006 | WD | Warranty Deed | KENWORTHY, LESLIE R | TANKERSLEY, KURT L | | | $447,500.00 | 62323 | 4171628 |
| 6 | 03/01/1994 | WD | Warranty Deed | GIBBONS, DRILLING I | KENWORTHY, LESLIE R | | | $48,400.00 | 41083 | 94007012 |
| 7 | 01/01/1900 | OTHER | Other - Misc. Documents | Unknown | GIBBONS, DRILLING I | | | $0.00 | 92734 | 89009269 |
Payout Agreement
| No payout information available.. |