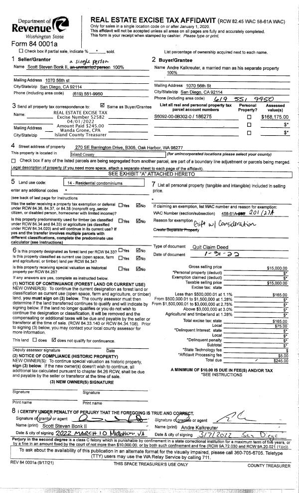
Property
Account |
| Property ID: | 679055 | Abbreviated Legal Description: | FINISTERRE HTS - PRD PTS LOTS 32 & 33 LY ELY OF FOLL DESC LN: BG SWCR LOT 33 ELY ALG SLY LN 123' TPB NLY 164' TP ON NLN OF SD LOT 32 73' ELY FR NWCR SD LOT 33 & TERM SD LN |
| Geographic ID: | S6627-00-00032-0 | Agent Code: | |
| Type: | Real | | |
| Tax Area: | 510 - APPRAISER-Stan/Cam Schl Dist, improved & 1 acre or less | Land Use Code | 11 |
| Open Space: | N | DFL | N |
| Historic Property: | N | Remodel Property: | N |
| Multi-Family Redevelopment: | N | | |
| Township: | | Section: | |
| Range: | |
Location |
| Address: | 1019 JOANNA LN CAMANO ISLAND, WA 98282 | Mapsco: | |
| Neighborhood: | North Camano | Map ID: | 560 |
| Neighborhood CD: | 06-C |
Owner |
| Name: | HUEHNERHOFF, EDWARD D | Owner ID: | 302233 |
| Mailing Address: | CLAIRE L HUENERHOFF 1019 JOANNA LANE CAMANO ISLAND, WA 98282 | % Ownership: | 100.0000000000% |
| | | Exemptions: | |
Taxes and Assessment Details
Values
| (+) Improvement Homesite Value: | + | $0 | |
| (+) Improvement Non-Homesite Value: | + | $388,717 | |
| (+) Land Homesite Value: | + | $0 | |
| (+) Land Non-Homesite Value: | + | $240,000 | |
| (+) Curr Use (HS): | + | $0 | $0 |
| (+) Curr Use (NHS): | + | $0 | $0 |
| | | -------------------------- | |
| (=) Market Value: | = | $628,717 | |
| (–) Productivity Loss: | – | $0 | |
| | | -------------------------- | |
| (=) Subtotal: | = | $628,717 | |
| (+) Senior Appraised Value: | + | $0 | |
| (+) Non-Senior Appraised Value: | + | $628,717 | |
| | | -------------------------- | |
| (=) Total Appraised Value: | = | $628,717 | |
| (–) Senior Exemption Loss: | – | $0 | |
| (–) Exemption Loss: | – | $0 | |
| | | -------------------------- | |
| (=) Taxable Value: | = | $628,717 | |
Taxing Jurisdiction
| Owner: | HUEHNERHOFF, EDWARD D | | |
| % Ownership: | 100.0000000000% | | |
| Total Value: | $628,717 | | |
| Tax Area: | 510 - APPRAISER-Stan/Cam Schl Dist, improved & 1 acre or less |
| CF | Conservation Futures | 0.0316035091 | $628,717 | $628,717 | $19.87 | | |
| EMS1 | Fire & Rescue Dist #1 Camano GEN (EMS) | 0.3677864386 | $628,717 | $628,717 | $231.23 | | |
| FIRE1 | Fire & Rescue Dist #1 Camano GEN | 1.2502910536 | $628,717 | $628,717 | $786.08 | | |
| FIRE1BOND | Fire & Rescue Dist #1 Camano BOND | 0.1570001679 | $628,717 | $628,717 | $98.71 | | |
| CE | County Current Expense | 0.3708482477 | $628,717 | $628,717 | $233.16 | | |
| CR | County Roads | 0.4584763726 | $628,717 | $628,717 | $288.25 | | |
| LCIB | Library Sno-Isle BOND (Camano Island) | 0.0396325772 | $628,717 | $628,717 | $24.92 | | |
| LIB | Library Sno-Isle GEN | 0.3153421757 | $628,717 | $628,717 | $198.26 | | |
| SCH205_401 | School 205-401 Enrichment | 1.2698420524 | $628,717 | $628,717 | $798.37 | | |
| SCH205BOND | School 205-401 BOND | 0.9396497583 | $628,717 | $628,717 | $590.77 | | |
| ST | State School | 1.3035497053 | $628,717 | $628,717 | $819.56 | | |
| ST2 | State School Part 2 | 0.8169543533 | $628,717 | $628,717 | $513.63 | | |
| | Total Tax Rate: | 7.3209764117 | | | | | |
| | | | | Taxes w/Current Exemptions: | $4,602.81 | | |
| | | | | Taxes w/o Exemptions: | $4,602.81 | | |
Improvement / Building
| Improvement #1: | RESIDENTIAL | State Code: | Y | 2045.8 sqft | Value: | $388,717 |
| Bathrooms: | 2 | Bedrooms: | 3 | | Ceiling: | DRYWALL PAINTED | Exterior Wall/Cover: | PLY/HARDBOARD T-111 | | Floor Covering: | CARPET/VINYL 80-20 | Floor Structure: | WOOD W/SUBFLOOR | | Foundation: | CONCRETE | Heating: | FHA GAS | | Interior Finish: | DRYWALL PAINT | Plumbing Fixture Cnt: | 10 | | Roof Slope: | 5" IN 12" | Roof Structure/Cover: | CJ ASPHALT |
|
| | Type | Description | Class CD | Sub Class CD | Year Built | Area |
| | BAS | BASE/MAIN FLOOR | 3 | 0 | 1994 | 2045.8 |
| | OP4 | OPEN PORCH W/CEILING-ROOF | 3 | 0 | 1994 | 32.0 |
| | AGR | ATTACHED GARAGE | 3 | 0 | 1994 | 640.0 |
| | OWP | OPEN WOOD PORCH W/STEPS | 3 | 0 | 1994 | 332.0 |
| | DGR | DETACHED GARAGE | 3 | 0 | 1994 | 1076.0 |
Sketch
Property Image
Land
| 1 | 15 | SQ (12001-21780) | 0.3886 | 16927.42 | 0.00 | 0.00 | 1.00 | $240,000 | $0 |
Roll Value History
| 2026 | N/A | N/A | N/A | N/A | N/A |
| 2025 | $388,717 | $240,000 | $0 | $628,717 | $628,717 |
| 2024 | $393,502 | $250,000 | $0 | $643,502 | $643,502 |
| 2023 | $398,285 | $210,000 | $0 | $608,285 | $608,285 |
| 2022 | $364,971 | $210,000 | $0 | $574,971 | $574,971 |
| 2021 | $298,541 | $150,000 | $0 | $448,541 | $448,541 |
| 2020 | $291,382 | $130,000 | $0 | $421,382 | $421,382 |
| 2019 | $223,152 | $170,000 | $0 | $393,152 | $393,152 |
| 2018 | $223,838 | $150,000 | $0 | $373,838 | $373,838 |
| 2017 | $225,211 | $120,000 | $0 | $345,211 | $345,211 |
| 2016 | $209,840 | $115,000 | $0 | $324,840 | $324,840 |
| 2015 | $212,496 | $85,000 | $0 | $297,496 | $297,496 |
| 2014 | $215,151 | $85,000 | $0 | $300,151 | $300,151 |
| 2013 | $217,807 | $85,000 | $0 | $302,807 | $302,807 |
| 2012 | $220,464 | $76,000 | $0 | $296,464 | $296,464 |
| 2011 | $223,120 | $95,000 | $0 | $318,120 | $318,120 |
| 2010 | $231,914 | $95,000 | $0 | $326,914 | $326,914 |
| 2009 | $241,753 | $120,000 | $0 | $361,753 | $361,753 |
| 2008 | $245,715 | $130,000 | $0 | $375,715 | $375,715 |
| 2007 | $249,821 | $130,000 | $0 | $379,821 | $379,821 |
Deed and Sales History
| 1 | 11/29/2021 | WD | Warranty Deed | SIVESIND, KATHLEEN | HUEHNERHOFF, EDWARD D | | | $675,000.00 | 51186 | 4535134 |
| 2 | 10/28/2021 | QCD | Quit Claim Deed | SUND, VIVIAN G | SIVESIND, KATHLEEN | | | $0.00 | 51041 | 4534315 |
| 3 | 08/01/2007 | TRUSTEED | Trustee's Deed | SUND, HAROLD K & VIVIAN G | SUND, VIVIAN G | | | $0.00 | 72760 | 4209527 |
| 4 | 06/29/2000 | BLA | DNU - Boundary Line Adjustment | SUND, HAROLD K | SUND, HAROLD K & VIVIAN G | | | $0.00 | 68709 | 99025209 |
| 5 | 12/01/1995 | OTHER | Other - Misc. Documents | SUND, HAROLD K | SUND, HAROLD K | | | $0.00 | 66732 | 95020135 |
| 6 | 04/01/1994 | WD | Warranty Deed | GIBBONS, DRILLING I | SUND, HAROLD K | | | $40,000.00 | 41520 | 94009227 |
| 7 | 01/01/1900 | OTHER | Other - Misc. Documents | Unknown | GIBBONS, DRILLING I | | | $0.00 | 92734 | 89009269 |
Payout Agreement
| No payout information available.. |