Property
Account |
| Property ID: | 679144 | Abbreviated Legal Description: | FINISTERRE HTS - PRD LOT 41 |
| Geographic ID: | S6627-00-00041-0 | Agent Code: | |
| Type: | Real | | |
| Tax Area: | 510 - APPRAISER-Stan/Cam Schl Dist, improved & 1 acre or less | Land Use Code | 11 |
| Open Space: | N | DFL | N |
| Historic Property: | N | Remodel Property: | N |
| Multi-Family Redevelopment: | N | | |
| Township: | | Section: | |
| Range: | |
Location |
| Address: | 1038 JOANNA LN CAMANO ISLAND, WA 98282 | Mapsco: | |
| Neighborhood: | North Camano | Map ID: | 560 |
| Neighborhood CD: | 06-C |
Owner |
| Name: | BECHARD TTEE, RAYMOND TAM | Owner ID: | 288160 |
| Mailing Address: | CAROL LEE BECHARD, TTEE 1038 JOANNA LN CAMANO ISLAND, WA 98282 | % Ownership: | 100.0000000000% |
| | | Exemptions: | |
Taxes and Assessment Details
Values
| (+) Improvement Homesite Value: | + | $0 | |
| (+) Improvement Non-Homesite Value: | + | $582,827 | |
| (+) Land Homesite Value: | + | $0 | |
| (+) Land Non-Homesite Value: | + | $300,000 | |
| (+) Curr Use (HS): | + | $0 | $0 |
| (+) Curr Use (NHS): | + | $0 | $0 |
| | | -------------------------- | |
| (=) Market Value: | = | $882,827 | |
| (–) Productivity Loss: | – | $0 | |
| | | -------------------------- | |
| (=) Subtotal: | = | $882,827 | |
| (+) Senior Appraised Value: | + | $0 | |
| (+) Non-Senior Appraised Value: | + | $882,827 | |
| | | -------------------------- | |
| (=) Total Appraised Value: | = | $882,827 | |
| (–) Senior Exemption Loss: | – | $0 | |
| (–) Exemption Loss: | – | $0 | |
| | | -------------------------- | |
| (=) Taxable Value: | = | $882,827 | |
Taxing Jurisdiction
| Owner: | BECHARD TTEE, RAYMOND TAM | | |
| % Ownership: | 100.0000000000% | | |
| Total Value: | $882,827 | | |
| Tax Area: | 510 - APPRAISER-Stan/Cam Schl Dist, improved & 1 acre or less |
| CF | Conservation Futures | 0.0316035091 | $882,827 | $882,827 | $27.90 | | |
| EMS1 | Fire & Rescue Dist #1 Camano GEN (EMS) | 0.3677864386 | $882,827 | $882,827 | $324.69 | | |
| FIRE1 | Fire & Rescue Dist #1 Camano GEN | 1.2502910536 | $882,827 | $882,827 | $1,103.79 | | |
| FIRE1BOND | Fire & Rescue Dist #1 Camano BOND | 0.1570001679 | $882,827 | $882,827 | $138.60 | | |
| CE | County Current Expense | 0.3708482477 | $882,827 | $882,827 | $327.39 | | |
| CR | County Roads | 0.4584763726 | $882,827 | $882,827 | $404.76 | | |
| LCIB | Library Sno-Isle BOND (Camano Island) | 0.0396325772 | $882,827 | $882,827 | $34.99 | | |
| LIB | Library Sno-Isle GEN | 0.3153421757 | $882,827 | $882,827 | $278.39 | | |
| SCH205_401 | School 205-401 Enrichment | 1.2698420524 | $882,827 | $882,827 | $1,121.05 | | |
| SCH205BOND | School 205-401 BOND | 0.9396497583 | $882,827 | $882,827 | $829.55 | | |
| ST | State School | 1.3035497053 | $882,827 | $882,827 | $1,150.81 | | |
| ST2 | State School Part 2 | 0.8169543533 | $882,827 | $882,827 | $721.23 | | |
| | Total Tax Rate: | 7.3209764117 | | | | | |
| | | | | Taxes w/Current Exemptions: | $6,463.15 | | |
| | | | | Taxes w/o Exemptions: | $6,463.15 | | |
Improvement / Building
| Improvement #1: | RESIDENTIAL | State Code: | Y | 2795.0 sqft | Value: | $582,827 |
| Bathrooms: | 2.5 | Bedrooms: | 3 | | Ceiling: | DRYWALL PAINTED | Cooling: | HEAT PUMP/CONV/V | | Exterior Wall/Cover: | WOOD SIDING | Floor Covering: | HARDWOOD 100% | | Floor Structure: | WOOD W/SUBFLOOR | Foundation: | CONCRETE | | Interior Finish: | DRYWALL PAINT | Plumbing Fixture Cnt: | 15 | | Roof Slope: | 6" IN 12" | Roof Structure/Cover: | CJ ASPHALT |
|
| | Type | Description | Class CD | Sub Class CD | Year Built | Area |
| | BAS | BASE/MAIN FLOOR | 4 | 0 | 1999 | 1853.1 |
| | OP4 | OPEN PORCH W/CEILING-ROOF | 4 | 0 | 1999 | 100.0 |
| | AGR | ATTACHED GARAGE | 4 | 0 | 1999 | 836.5 |
| | OWC | OPEN WOOD PORCH W/STEPS/ROOF/C | 4 | 0 | 1999 | 96.0 |
| | OWP | OPEN WOOD PORCH W/STEPS | 4 | 0 | 1999 | 669.5 |
| | DWN | DOWNSTAIRS LIVING AREA | 4 | 0 | 1999 | 941.9 |
| | UTY | STORAGE/UTILITY | 4 | 0 | 1999 | 101.6 |
Sketch
Property Image
Land
| 1 | 16 | AC (00.51-01.00) | 0.0000 | 0.00 | 0.00 | 0.00 | 1.00 | $300,000 | $0 |
Roll Value History
| 2026 | N/A | N/A | N/A | N/A | N/A |
| 2025 | $582,827 | $300,000 | $0 | $882,827 | $882,827 |
| 2024 | $590,277 | $310,000 | $0 | $900,277 | $900,277 |
| 2023 | $597,725 | $280,000 | $0 | $877,725 | $877,725 |
| 2022 | $500,325 | $260,000 | $0 | $760,325 | $760,325 |
| 2021 | $440,689 | $220,000 | $0 | $660,689 | $660,689 |
| 2020 | $429,982 | $190,000 | $0 | $619,982 | $619,982 |
| 2019 | $331,236 | $230,000 | $0 | $561,236 | $561,236 |
| 2018 | $332,267 | $200,000 | $0 | $532,267 | $532,267 |
| 2017 | $334,331 | $180,000 | $0 | $514,331 | $514,331 |
| 2016 | $392,397 | $150,000 | $0 | $542,397 | $542,397 |
| 2015 | $397,182 | $125,000 | $0 | $522,182 | $522,182 |
| 2014 | $401,966 | $125,000 | $0 | $526,966 | $526,966 |
| 2013 | $406,753 | $125,000 | $0 | $531,753 | $531,753 |
| 2012 | $411,538 | $120,000 | $0 | $531,538 | $531,538 |
| 2011 | $416,323 | $150,000 | $0 | $566,323 | $566,323 |
| 2010 | $431,162 | $200,000 | $0 | $631,162 | $631,162 |
| 2009 | $449,577 | $250,000 | $0 | $699,577 | $699,577 |
| 2008 | $455,006 | $200,000 | $0 | $655,006 | $655,006 |
| 2007 | $460,412 | $200,000 | $0 | $660,412 | $660,412 |
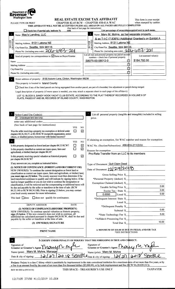
Deed and Sales History
| 1 | 11/27/2018 | QCD | Quit Claim Deed | BECHARD, RAYMOND T | BECHARD TTEE, RAYMOND TAM | | | $0.00 | 36913 | 4456174 |
| 2 | 02/21/2018 | WD | Warranty Deed | NRZ REO V-2 CORP, | BECHARD, RAYMOND T | | | $500,000.00 | 33046 | 4439676 |
| 3 | 09/14/2017 | TRUSTEED | Trustee's Deed | WELLS FARGO BANK NA | NRZ REO V-2 CORP, | | | $0.00 | 31123 | 4430338 |
| 4 | 07/31/2017 | TRUSTEED | Trustee's Deed | BALLE, DAVID R | WELLS FARGO BANK NA | | | $513,927.00 | 30459 | 4427407 |
| 5 | 10/27/1999 | WD | Warranty Deed | NEMO, DOUGLAS A | BALLE, DAVID R | | | $369,900.00 | 94526 | 99025034 |
| 6 | 10/02/1998 | WD | Warranty Deed | GIBBONS, DRILLING I | NEMO, DOUGLAS A | | | $72,000.00 | 84114 | 98022281 |
| 7 | 01/01/1900 | OTHER | Other - Misc. Documents | Unknown | GIBBONS, DRILLING I | | | $0.00 | 92734 | 89009269 |
Payout Agreement
| No payout information available.. |