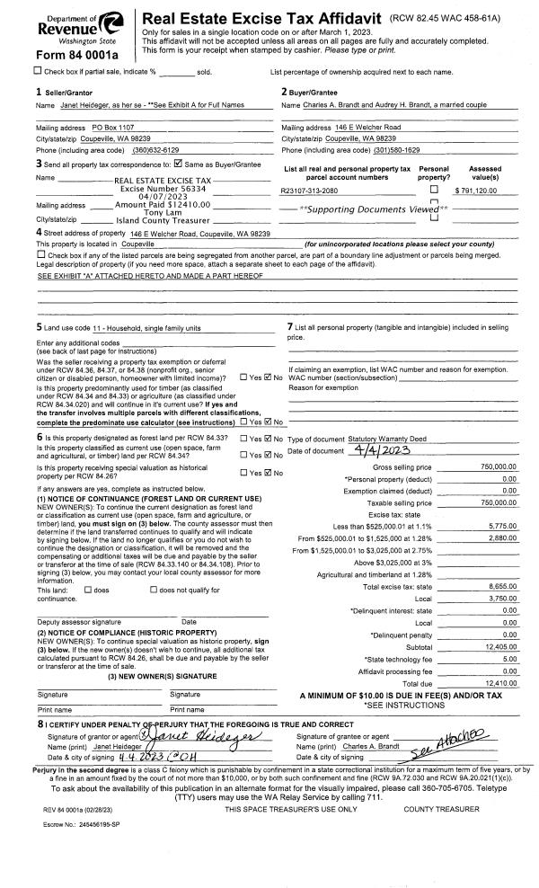
Property
Account |
| Property ID: | 679162 | Abbreviated Legal Description: | FINISTERRE HTS - PRD LOT 43 |
| Geographic ID: | S6627-00-00043-0 | Agent Code: | |
| Type: | Real | | |
| Tax Area: | 510 - APPRAISER-Stan/Cam Schl Dist, improved & 1 acre or less | Land Use Code | 11 |
| Open Space: | N | DFL | N |
| Historic Property: | N | Remodel Property: | N |
| Multi-Family Redevelopment: | N | | |
| Township: | | Section: | |
| Range: | |
Location |
| Address: | 276 ALTA VIA DR CAMANO ISLAND, WA 98282 | Mapsco: | |
| Neighborhood: | North Camano | Map ID: | 560 |
| Neighborhood CD: | 06-C |
Owner |
| Name: | HENTON, HAROLD H / NANCY L | Owner ID: | 64736 |
| Mailing Address: | 276 ALTA VIA DR CAMANO ISLAND, WA 98282-6623 | % Ownership: | 100.0000000000% |
| | | Exemptions: | |
Taxes and Assessment Details
Values
| (+) Improvement Homesite Value: | + | $0 | |
| (+) Improvement Non-Homesite Value: | + | $503,482 | |
| (+) Land Homesite Value: | + | $0 | |
| (+) Land Non-Homesite Value: | + | $500,000 | |
| (+) Curr Use (HS): | + | $0 | $0 |
| (+) Curr Use (NHS): | + | $0 | $0 |
| | | -------------------------- | |
| (=) Market Value: | = | $1,003,482 | |
| (–) Productivity Loss: | – | $0 | |
| | | -------------------------- | |
| (=) Subtotal: | = | $1,003,482 | |
| (+) Senior Appraised Value: | + | $0 | |
| (+) Non-Senior Appraised Value: | + | $1,003,482 | |
| | | -------------------------- | |
| (=) Total Appraised Value: | = | $1,003,482 | |
| (–) Senior Exemption Loss: | – | $0 | |
| (–) Exemption Loss: | – | $0 | |
| | | -------------------------- | |
| (=) Taxable Value: | = | $1,003,482 | |
Taxing Jurisdiction
| Owner: | HENTON, HAROLD H / NANCY L | | |
| % Ownership: | 100.0000000000% | | |
| Total Value: | $1,003,482 | | |
| Tax Area: | 510 - APPRAISER-Stan/Cam Schl Dist, improved & 1 acre or less |
| CF | Conservation Futures | 0.0316035091 | $1,003,482 | $1,003,482 | $31.71 | | |
| EMS1 | Fire & Rescue Dist #1 Camano GEN (EMS) | 0.3677864386 | $1,003,482 | $1,003,482 | $369.07 | | |
| FIRE1 | Fire & Rescue Dist #1 Camano GEN | 1.2502910536 | $1,003,482 | $1,003,482 | $1,254.64 | | |
| FIRE1BOND | Fire & Rescue Dist #1 Camano BOND | 0.1570001679 | $1,003,482 | $1,003,482 | $157.55 | | |
| CE | County Current Expense | 0.3708482477 | $1,003,482 | $1,003,482 | $372.14 | | |
| CR | County Roads | 0.4584763726 | $1,003,482 | $1,003,482 | $460.07 | | |
| LCIB | Library Sno-Isle BOND (Camano Island) | 0.0396325772 | $1,003,482 | $1,003,482 | $39.77 | | |
| LIB | Library Sno-Isle GEN | 0.3153421757 | $1,003,482 | $1,003,482 | $316.44 | | |
| SCH205_401 | School 205-401 Enrichment | 1.2698420524 | $1,003,482 | $1,003,482 | $1,274.26 | | |
| SCH205BOND | School 205-401 BOND | 0.9396497583 | $1,003,482 | $1,003,482 | $942.92 | | |
| ST | State School | 1.3035497053 | $1,003,482 | $1,003,482 | $1,308.09 | | |
| ST2 | State School Part 2 | 0.8169543533 | $1,003,482 | $1,003,482 | $819.80 | | |
| | Total Tax Rate: | 7.3209764117 | | | | | |
| | | | | Taxes w/Current Exemptions: | $7,346.46 | | |
| | | | | Taxes w/o Exemptions: | $7,346.46 | | |
Improvement / Building
| Improvement #1: | RESIDENTIAL | State Code: | Y | 2274.4 sqft | Value: | $503,482 |
| Bathrooms: | 2 | Bedrooms: | 3 | | Ceiling: | BEAM PAINTED | Exterior Wall/Cover: | PLY/HARDBOARD T-111 | | Floor Covering: | HARDWOOD/CARP 60-40 | Floor Structure: | WOOD W/SUBFLOOR | | Foundation: | CONCRETE | Heating: | WALL HEAT ELECTRIC | | Interior Finish: | DRYWALL PAINT | Plumbing Fixture Cnt: | 12 | | Roof Slope: | 6" IN 12" | Roof Structure/Cover: | CJ ASPHALT |
|
| | Type | Description | Class CD | Sub Class CD | Year Built | Area |
| | BAS | BASE/MAIN FLOOR | 4 | 0 | 1993 | 2274.4 |
| | OP4 | OPEN PORCH W/CEILING-ROOF | 4 | 0 | 1993 | 87.5 |
| | AGR | ATTACHED GARAGE | 4 | 0 | 1993 | 635.0 |
| | OWP | OPEN WOOD PORCH W/STEPS | 4 | 0 | 1993 | 558.4 |
Sketch
Property Image
Land
| 1 | 16 | AC (00.51-01.00) | 0.0000 | 0.00 | 0.00 | 0.00 | 1.00 | $500,000 | $0 |
Roll Value History
| 2026 | N/A | N/A | N/A | N/A | N/A |
| 2025 | $503,482 | $500,000 | $0 | $1,003,482 | $1,003,482 |
| 2024 | $501,258 | $490,000 | $0 | $991,258 | $991,258 |
| 2023 | $507,139 | $470,000 | $0 | $977,139 | $977,139 |
| 2022 | $437,903 | $450,000 | $0 | $887,903 | $887,903 |
| 2021 | $385,429 | $260,000 | $0 | $645,429 | $645,429 |
| 2020 | $375,673 | $220,000 | $0 | $595,673 | $595,673 |
| 2019 | $282,055 | $290,000 | $0 | $572,055 | $572,055 |
| 2018 | $282,883 | $250,000 | $0 | $532,883 | $532,883 |
| 2017 | $284,498 | $180,000 | $0 | $464,498 | $464,498 |
| 2016 | $282,350 | $175,000 | $0 | $457,350 | $457,350 |
| 2015 | $285,751 | $150,000 | $0 | $435,751 | $435,751 |
| 2014 | $289,153 | $150,000 | $0 | $439,153 | $439,153 |
| 2013 | $292,556 | $150,000 | $0 | $442,556 | $442,556 |
| 2012 | $295,957 | $160,000 | $0 | $455,957 | $455,957 |
| 2011 | $299,358 | $200,000 | $0 | $499,358 | $499,358 |
| 2010 | $344,487 | $200,000 | $0 | $544,487 | $544,487 |
| 2009 | $359,181 | $250,000 | $0 | $609,181 | $609,181 |
| 2008 | $363,871 | $300,000 | $0 | $663,871 | $663,871 |
| 2007 | $368,597 | $300,000 | $0 | $668,597 | $668,597 |
Deed and Sales History
| 1 | 11/01/1995 | WD | Warranty Deed | BEAM, GLEN & | HENTON, HAROLD H | | | $273,000.00 | 54056 | 95018608 |
| 2 | 06/01/1993 | WD | Warranty Deed | GIBBONS, DRILLING I | BEAM, GLEN & | | | $122,000.00 | 32067 | 93010708 |
| 3 | 01/01/1900 | OTHER | Other - Misc. Documents | Unknown | GIBBONS, DRILLING I | | | $0.00 | 92734 | 89009269 |
Payout Agreement
| No payout information available.. |