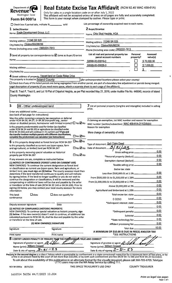
Property
Account |
| Property ID: | 679180 | Abbreviated Legal Description: | FINISTERRE HTS - PRD LOT 45 |
| Geographic ID: | S6627-00-00045-0 | Agent Code: | |
| Type: | Real | | |
| Tax Area: | 510 - APPRAISER-Stan/Cam Schl Dist, improved & 1 acre or less | Land Use Code | 11 |
| Open Space: | N | DFL | N |
| Historic Property: | N | Remodel Property: | N |
| Multi-Family Redevelopment: | N | | |
| Township: | | Section: | |
| Range: | |
Location |
| Address: | 294 ALTA VIA DR CAMANO ISLAND, WA 98282 | Mapsco: | |
| Neighborhood: | North Camano | Map ID: | 560 |
| Neighborhood CD: | 06-C |
Owner |
| Name: | BEACH, LEWIS JEFFREY | Owner ID: | 282133 |
| Mailing Address: | JANET J BEACH 294 ALTA VIA DR CAMANO ISLAND, WA 98282 | % Ownership: | 100.0000000000% |
| | | Exemptions: | |
Taxes and Assessment Details
Values
| (+) Improvement Homesite Value: | + | $0 | |
| (+) Improvement Non-Homesite Value: | + | $575,890 | |
| (+) Land Homesite Value: | + | $0 | |
| (+) Land Non-Homesite Value: | + | $500,000 | |
| (+) Curr Use (HS): | + | $0 | $0 |
| (+) Curr Use (NHS): | + | $0 | $0 |
| | | -------------------------- | |
| (=) Market Value: | = | $1,075,890 | |
| (–) Productivity Loss: | – | $0 | |
| | | -------------------------- | |
| (=) Subtotal: | = | $1,075,890 | |
| (+) Senior Appraised Value: | + | $0 | |
| (+) Non-Senior Appraised Value: | + | $1,075,890 | |
| | | -------------------------- | |
| (=) Total Appraised Value: | = | $1,075,890 | |
| (–) Senior Exemption Loss: | – | $0 | |
| (–) Exemption Loss: | – | $0 | |
| | | -------------------------- | |
| (=) Taxable Value: | = | $1,075,890 | |
Taxing Jurisdiction
| Owner: | BEACH, LEWIS JEFFREY | | |
| % Ownership: | 100.0000000000% | | |
| Total Value: | $1,075,890 | | |
| Tax Area: | 510 - APPRAISER-Stan/Cam Schl Dist, improved & 1 acre or less |
| CF | Conservation Futures | 0.0316035091 | $1,075,890 | $1,075,890 | $34.00 | | |
| EMS1 | Fire & Rescue Dist #1 Camano GEN (EMS) | 0.3677864386 | $1,075,890 | $1,075,890 | $395.70 | | |
| FIRE1 | Fire & Rescue Dist #1 Camano GEN | 1.2502910536 | $1,075,890 | $1,075,890 | $1,345.18 | | |
| FIRE1BOND | Fire & Rescue Dist #1 Camano BOND | 0.1570001679 | $1,075,890 | $1,075,890 | $168.91 | | |
| CE | County Current Expense | 0.3708482477 | $1,075,890 | $1,075,890 | $398.99 | | |
| CR | County Roads | 0.4584763726 | $1,075,890 | $1,075,890 | $493.27 | | |
| LCIB | Library Sno-Isle BOND (Camano Island) | 0.0396325772 | $1,075,890 | $1,075,890 | $42.64 | | |
| LIB | Library Sno-Isle GEN | 0.3153421757 | $1,075,890 | $1,075,890 | $339.27 | | |
| SCH205_401 | School 205-401 Enrichment | 1.2698420524 | $1,075,890 | $1,075,890 | $1,366.21 | | |
| SCH205BOND | School 205-401 BOND | 0.9396497583 | $1,075,890 | $1,075,890 | $1,010.96 | | |
| ST | State School | 1.3035497053 | $1,075,890 | $1,075,890 | $1,402.48 | | |
| ST2 | State School Part 2 | 0.8169543533 | $1,075,890 | $1,075,890 | $878.95 | | |
| | Total Tax Rate: | 7.3209764117 | | | | | |
| | | | | Taxes w/Current Exemptions: | $7,876.56 | | |
| | | | | Taxes w/o Exemptions: | $7,876.56 | | |
Improvement / Building
| Improvement #1: | RESIDENTIAL | State Code: | Y | 2728.0 sqft | Value: | $575,890 |
| Bathrooms: | 2.5 | Bedrooms: | 2 | | Ceiling: | DRYWALL PAINTED | Cooling: | HEAT PUMP/CONV/V | | Exterior Wall/Cover: | CEMENT FIBER | Floor Covering: | HARDWOOD/CARP 20-80 | | Floor Structure: | WOOD W/SUBFLOOR | Foundation: | CONCRETE | | Interior Finish: | DRYWALL PAINT | Plumbing Fixture Cnt: | 14 | | Roof Slope: | 8" IN 12" | Roof Structure/Cover: | CJ ASPHALT |
|
| | Type | Description | Class CD | Sub Class CD | Year Built | Area |
| | BAS | BASE/MAIN FLOOR | 4 | 0 | 2019 | 2728.0 |
| | AGR | ATTACHED GARAGE | 4 | 0 | 2019 | 720.0 |
| | OP4 | OPEN PORCH W/CEILING-ROOF | 4 | 0 | 2019 | 140.0 |
| | OP4 | OPEN PORCH W/CEILING-ROOF | 4 | 0 | 2019 | 210.0 |
Sketch
Property Image
Land
| 1 | 16 | AC (00.51-01.00) | 0.0000 | 0.00 | 0.00 | 0.00 | 1.00 | $500,000 | $0 |
Roll Value History
| 2026 | N/A | N/A | N/A | N/A | N/A |
| 2025 | $575,890 | $500,000 | $0 | $1,075,890 | $1,075,890 |
| 2024 | $580,460 | $490,000 | $0 | $1,070,460 | $1,070,460 |
| 2023 | $586,554 | $470,000 | $0 | $1,056,554 | $1,056,554 |
| 2022 | $525,633 | $450,000 | $0 | $975,633 | $975,633 |
| 2021 | $461,870 | $260,000 | $0 | $721,870 | $721,870 |
| 2020 | $453,136 | $220,000 | $0 | $673,136 | $673,136 |
| 2019 | $346,415 | $290,000 | $0 | $636,415 | $636,415 |
| 2018 | $0 | $240,000 | $0 | $240,000 | $240,000 |
| 2017 | $0 | $150,000 | $0 | $150,000 | $150,000 |
| 2016 | $0 | $150,000 | $0 | $150,000 | $150,000 |
| 2015 | $0 | $150,000 | $0 | $150,000 | $150,000 |
| 2014 | $0 | $150,000 | $0 | $150,000 | $150,000 |
| 2013 | $0 | $150,000 | $0 | $150,000 | $150,000 |
| 2012 | $0 | $160,000 | $0 | $160,000 | $160,000 |
| 2011 | $0 | $200,000 | $0 | $200,000 | $200,000 |
| 2010 | $0 | $240,000 | $0 | $240,000 | $240,000 |
| 2009 | $0 | $300,000 | $0 | $300,000 | $300,000 |
| 2008 | $0 | $250,000 | $0 | $250,000 | $250,000 |
| 2007 | $0 | $250,000 | $0 | $250,000 | $250,000 |
Deed and Sales History
| 1 | 09/25/2017 | WD | Warranty Deed | WADELL TRUSTEE, JAMES A | BEACH, LEWIS JEFFREY | | | $257,000.00 | 31241 | 4430900 |
| 2 | 06/26/2002 | QCD | Quit Claim Deed | WADELL, JAMES A/ELEANOR R | WADELL TRUSTEE, JAMES A | | | $0.00 | 22623 | 4025034 |
| 3 | 09/15/1998 | QCD | Quit Claim Deed | WADELL, JAMES A | WADELL, JAMES A/ELEANOR R | | | $0.00 | 83746 | 98020252 |
| 4 | 01/01/1998 | WD | Warranty Deed | KENNA, RICHARD F | WADELL, JAMES A | | | $139,900.00 | 80122 | 98000627 |
| 5 | 08/01/1995 | WD | Warranty Deed | GIBBONS, DRILLING I | KENNA, RICHARD F | | | $130,000.00 | 53059 | 95014141 |
| 6 | 01/01/1900 | OTHER | Other - Misc. Documents | Unknown | GIBBONS, DRILLING I | | | $0.00 | 92734 | 89009269 |
Payout Agreement
| No payout information available.. |