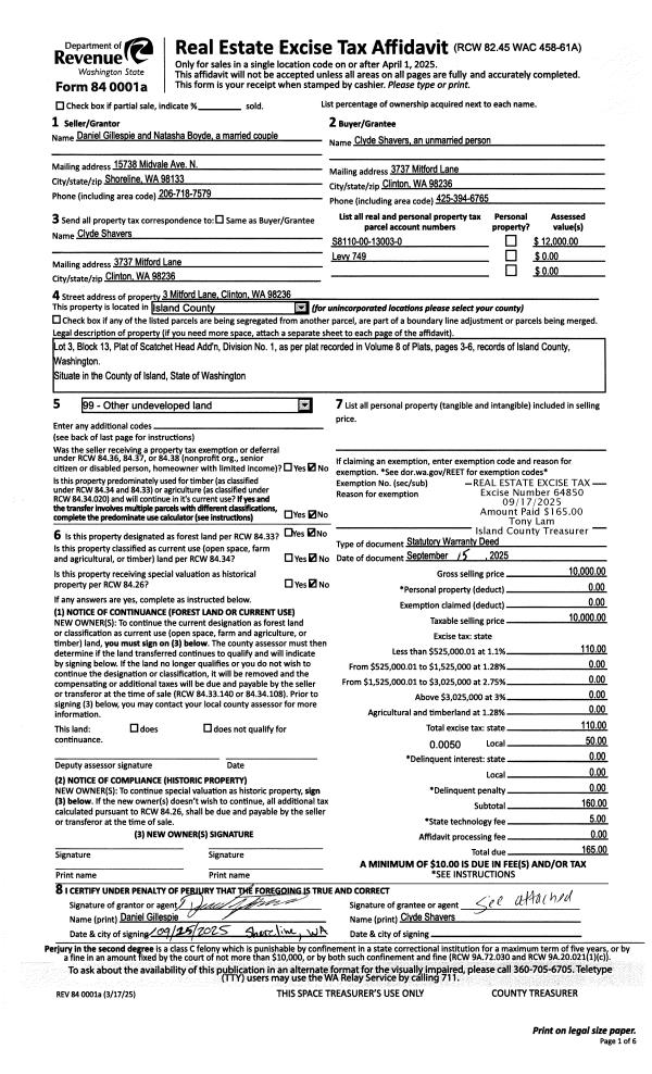
Property
Account |
| Property ID: | 679260 | Abbreviated Legal Description: | FINISTERRE HTS - PRD LOT 52 TGW EZ AF#94019073 |
| Geographic ID: | S6627-00-00052-0 | Agent Code: | |
| Type: | Real | | |
| Tax Area: | 519 - APPRAISER-Stan/Cam Schl Dist, vacant & 50 acres or less | Land Use Code | 99 |
| Open Space: | N | DFL | N |
| Historic Property: | N | Remodel Property: | N |
| Multi-Family Redevelopment: | N | | |
| Township: | | Section: | |
| Range: | |
Location |
| Address: | | Mapsco: | |
| Neighborhood: | North Camano | Map ID: | 560 |
| Neighborhood CD: | 06-C |
Owner |
| Name: | HEZEL HOMES, LLC | Owner ID: | 308460 |
| Mailing Address: | 762 INDIAN BEACH RD CAMANO ISLAND, WA 98282 | % Ownership: | 100.0000000000% |
| | | Exemptions: | |
Taxes and Assessment Details
Values
| (+) Improvement Homesite Value: | + | $0 | |
| (+) Improvement Non-Homesite Value: | + | $0 | |
| (+) Land Homesite Value: | + | $0 | |
| (+) Land Non-Homesite Value: | + | $255,000 | |
| (+) Curr Use (HS): | + | $0 | $0 |
| (+) Curr Use (NHS): | + | $0 | $0 |
| | | -------------------------- | |
| (=) Market Value: | = | $255,000 | |
| (–) Productivity Loss: | – | $0 | |
| | | -------------------------- | |
| (=) Subtotal: | = | $255,000 | |
| (+) Senior Appraised Value: | + | $0 | |
| (+) Non-Senior Appraised Value: | + | $255,000 | |
| | | -------------------------- | |
| (=) Total Appraised Value: | = | $255,000 | |
| (–) Senior Exemption Loss: | – | $0 | |
| (–) Exemption Loss: | – | $0 | |
| | | -------------------------- | |
| (=) Taxable Value: | = | $255,000 | |
Taxing Jurisdiction
| Owner: | HEZEL HOMES, LLC | | |
| % Ownership: | 100.0000000000% | | |
| Total Value: | $255,000 | | |
| Tax Area: | 519 - APPRAISER-Stan/Cam Schl Dist, vacant & 50 acres or less |
| CF | Conservation Futures | 0.0316035091 | $255,000 | $255,000 | $8.06 | | |
| EMS1 | Fire & Rescue Dist #1 Camano GEN (EMS) | 0.3677864386 | $255,000 | $255,000 | $93.79 | | |
| CE | County Current Expense | 0.3708482477 | $255,000 | $255,000 | $94.57 | | |
| CR | County Roads | 0.4584763726 | $255,000 | $255,000 | $116.91 | | |
| LCIB | Library Sno-Isle BOND (Camano Island) | 0.0396325772 | $255,000 | $255,000 | $10.11 | | |
| LIB | Library Sno-Isle GEN | 0.3153421757 | $255,000 | $255,000 | $80.41 | | |
| SCH205_401 | School 205-401 Enrichment | 1.2698420524 | $255,000 | $255,000 | $323.81 | | |
| SCH205BOND | School 205-401 BOND | 0.9396497583 | $255,000 | $255,000 | $239.61 | | |
| ST | State School | 1.3035497053 | $255,000 | $255,000 | $332.41 | | |
| ST2 | State School Part 2 | 0.8169543533 | $255,000 | $255,000 | $208.32 | | |
| | Total Tax Rate: | 5.9136851902 | | | | | |
| | | | | Taxes w/Current Exemptions: | $1,508.00 | | |
| | | | | Taxes w/o Exemptions: | $1,508.00 | | |
Improvement / Building
Sketch
| No sketches available for this property. |
Property Image
Land
| 1 | 16 | AC (00.51-01.00) | 0.0000 | 0.00 | 0.00 | 0.00 | 1.00 | $255,000 | $0 |
Roll Value History
| 2026 | N/A | N/A | N/A | N/A | N/A |
| 2025 | $0 | $255,000 | $0 | $255,000 | $255,000 |
| 2024 | $0 | $250,000 | $0 | $250,000 | $250,000 |
| 2023 | $0 | $240,000 | $0 | $240,000 | $240,000 |
| 2022 | $0 | $230,000 | $0 | $230,000 | $230,000 |
| 2021 | $0 | $225,000 | $0 | $225,000 | $225,000 |
| 2020 | $0 | $225,000 | $0 | $225,000 | $225,000 |
| 2019 | $0 | $200,000 | $0 | $200,000 | $200,000 |
| 2018 | $0 | $180,000 | $0 | $180,000 | $180,000 |
| 2017 | $0 | $180,000 | $0 | $180,000 | $180,000 |
| 2016 | $0 | $150,000 | $0 | $150,000 | $150,000 |
| 2015 | $0 | $150,000 | $0 | $150,000 | $150,000 |
| 2014 | $0 | $150,000 | $0 | $150,000 | $150,000 |
| 2013 | $0 | $150,000 | $0 | $150,000 | $150,000 |
| 2012 | $0 | $160,000 | $0 | $160,000 | $160,000 |
| 2011 | $0 | $200,000 | $0 | $200,000 | $200,000 |
| 2010 | $0 | $290,400 | $0 | $290,400 | $290,400 |
| 2009 | $0 | $300,000 | $0 | $300,000 | $300,000 |
| 2008 | $0 | $250,000 | $0 | $250,000 | $250,000 |
| 2007 | $0 | $250,000 | $0 | $250,000 | $250,000 |
Deed and Sales History
| 1 | 06/06/2025 | WD | Warranty Deed | MORENO, HECTOR | HEZEL HOMES, LLC | | | $225,000.00 | 63710 | 4586697 |
| 2 | 09/01/1996 | WD | Warranty Deed | HAYES, DEAN S | MORENO, HECTOR | | | $137,000.00 | 63486 | 96017093 |
| 3 | 09/01/1994 | EZ | Easement | HAYES, DEAN S | HAYES, DEAN S | | | $0.00 | 43618 | 94019073 |
| 4 | 05/01/1994 | WD | Warranty Deed | GIBBONS, DRILLING I | HAYES, DEAN S | | | $129,900.00 | 42182 | 94012534 |
| 5 | 01/01/1900 | OTHER | Other - Misc. Documents | Unknown | GIBBONS, DRILLING I | | | $0.00 | 92734 | 89009269 |
Payout Agreement
| No payout information available.. |