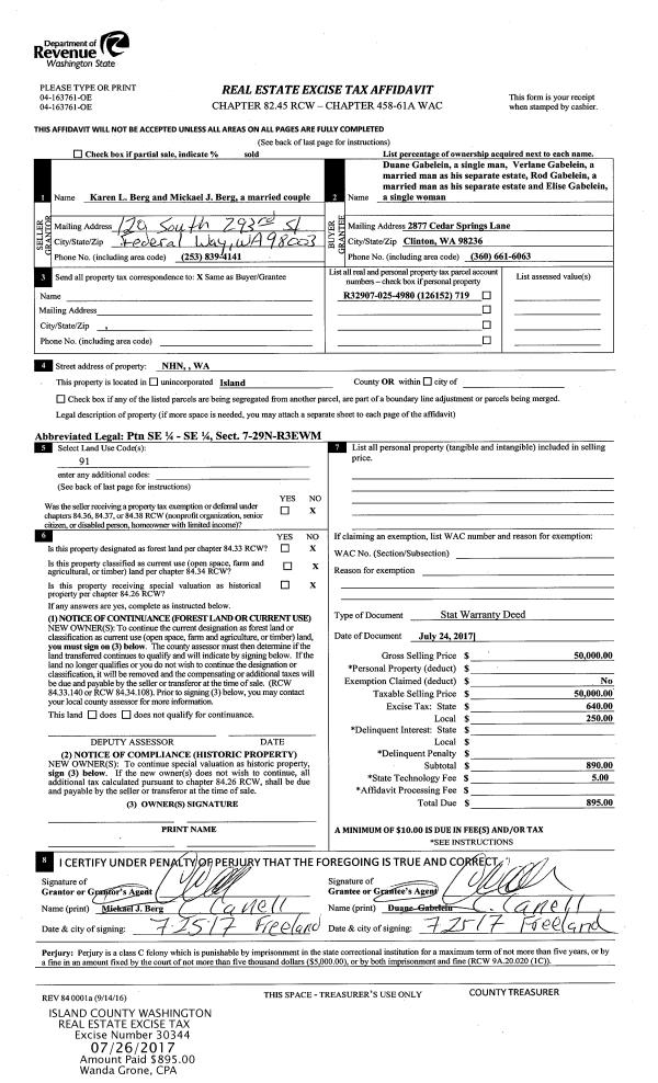
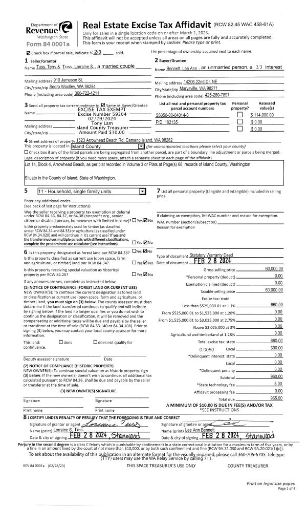
Property
Account |
| Property ID: | 679420 | Abbreviated Legal Description: | FINISTERRE HTS - PRD LOT 67 |
| Geographic ID: | S6627-00-00067-0 | Agent Code: | |
| Type: | Real | | |
| Tax Area: | 510 - APPRAISER-Stan/Cam Schl Dist, improved & 1 acre or less | Land Use Code | 11 |
| Open Space: | N | DFL | N |
| Historic Property: | N | Remodel Property: | N |
| Multi-Family Redevelopment: | N | | |
| Township: | | Section: | |
| Range: | |
Location |
| Address: | 376 ALTA VIA DR CAMANO ISLAND, WA 98282 | Mapsco: | |
| Neighborhood: | North Camano | Map ID: | 560 |
| Neighborhood CD: | 06-C |
Owner |
| Name: | ANDERSON TTEE, JOHN MELVILLE | Owner ID: | 310836 |
| Mailing Address: | 376 ALTA VIA DR CAMANO ISLAND, WA 98282 | % Ownership: | 100.0000000000% |
| | | Exemptions: | |
Taxes and Assessment Details
Values
| (+) Improvement Homesite Value: | + | $0 | |
| (+) Improvement Non-Homesite Value: | + | $764,503 | |
| (+) Land Homesite Value: | + | $0 | |
| (+) Land Non-Homesite Value: | + | $500,000 | |
| (+) Curr Use (HS): | + | $0 | $0 |
| (+) Curr Use (NHS): | + | $0 | $0 |
| | | -------------------------- | |
| (=) Market Value: | = | $1,264,503 | |
| (–) Productivity Loss: | – | $0 | |
| | | -------------------------- | |
| (=) Subtotal: | = | $1,264,503 | |
| (+) Senior Appraised Value: | + | $0 | |
| (+) Non-Senior Appraised Value: | + | $1,264,503 | |
| | | -------------------------- | |
| (=) Total Appraised Value: | = | $1,264,503 | |
| (–) Senior Exemption Loss: | – | $0 | |
| (–) Exemption Loss: | – | $0 | |
| | | -------------------------- | |
| (=) Taxable Value: | = | $1,264,503 | |
Taxing Jurisdiction
| Owner: | ANDERSON TTEE, JOHN MELVILLE | | |
| % Ownership: | 100.0000000000% | | |
| Total Value: | $1,264,503 | | |
| Tax Area: | 510 - APPRAISER-Stan/Cam Schl Dist, improved & 1 acre or less |
| CF | Conservation Futures | 0.0316035091 | $1,264,503 | $1,264,503 | $39.96 | | |
| EMS1 | Fire & Rescue Dist #1 Camano GEN (EMS) | 0.3677864386 | $1,264,503 | $1,264,503 | $465.07 | | |
| FIRE1 | Fire & Rescue Dist #1 Camano GEN | 1.2502910536 | $1,264,503 | $1,264,503 | $1,581.00 | | |
| FIRE1BOND | Fire & Rescue Dist #1 Camano BOND | 0.1570001679 | $1,264,503 | $1,264,503 | $198.53 | | |
| CE | County Current Expense | 0.3708482477 | $1,264,503 | $1,264,503 | $468.94 | | |
| CR | County Roads | 0.4584763726 | $1,264,503 | $1,264,503 | $579.74 | | |
| LCIB | Library Sno-Isle BOND (Camano Island) | 0.0396325772 | $1,264,503 | $1,264,503 | $50.12 | | |
| LIB | Library Sno-Isle GEN | 0.3153421757 | $1,264,503 | $1,264,503 | $398.75 | | |
| SCH205_401 | School 205-401 Enrichment | 1.2698420524 | $1,264,503 | $1,264,503 | $1,605.72 | | |
| SCH205BOND | School 205-401 BOND | 0.9396497583 | $1,264,503 | $1,264,503 | $1,188.19 | | |
| ST | State School | 1.3035497053 | $1,264,503 | $1,264,503 | $1,648.34 | | |
| ST2 | State School Part 2 | 0.8169543533 | $1,264,503 | $1,264,503 | $1,033.04 | | |
| | Total Tax Rate: | 7.3209764117 | | | | | |
| | | | | Taxes w/Current Exemptions: | $9,257.40 | | |
| | | | | Taxes w/o Exemptions: | $9,257.40 | | |
Improvement / Building
| Improvement #1: | RESIDENTIAL | State Code: | Y | 4491.4 sqft | Value: | $764,503 |
| Bathrooms: | 2.5 | Bedrooms: | 2 | | Ceiling: | DRYWALL PAINTED | Cooling: | HEAT PUMP/CONV/V | | Exterior Wall/Cover: | CEMENT FIBER | Floor Covering: | HARDWOOD/CARP 20-80 | | Floor Structure: | WOOD W/SUBFLOOR | Foundation: | CONCRETE | | Interior Finish: | DRYWALL PAINT | Plumbing Fixture Cnt: | 14 | | Roof Slope: | 6" IN 12" | Roof Structure/Cover: | BEAM CONCRETE TILE |
|
| | Type | Description | Class CD | Sub Class CD | Year Built | Area |
| | BAS | BASE/MAIN FLOOR | 5 | 0 | 1998 | 2994.6 |
| | OP1 | OPEN PORCH SLAB | 5 | 0 | 1998 | 220.0 |
| | OP4 | OPEN PORCH W/CEILING-ROOF | 5 | 0 | 1998 | 110.0 |
| | AGR | ATTACHED GARAGE | 5 | 0 | 1998 | 881.0 |
| | UPS | UPPER STORY | 5 | 0 | 1998 | 734.8 |
| | DWN | DOWNSTAIRS LIVING AREA | 5 | 0 | 1998 | 762.0 |
| | OWP | OPEN WOOD PORCH W/STEPS | 5 | 0 | 1998 | 115.5 |
Sketch
Property Image
Land
| 1 | 15 | SQ (12001-21780) | 0.0000 | 0.00 | 0.00 | 0.00 | 1.00 | $500,000 | $0 |
Roll Value History
| 2026 | N/A | N/A | N/A | N/A | N/A |
| 2025 | $764,503 | $500,000 | $0 | $1,264,503 | $1,264,503 |
| 2024 | $773,469 | $490,000 | $0 | $1,263,469 | $1,263,469 |
| 2023 | $782,437 | $470,000 | $0 | $1,252,437 | $1,252,437 |
| 2022 | $684,296 | $450,000 | $0 | $1,134,296 | $1,134,296 |
| 2021 | $602,122 | $260,000 | $0 | $862,122 | $862,122 |
| 2020 | $588,224 | $220,000 | $0 | $808,224 | $808,224 |
| 2019 | $526,710 | $290,000 | $0 | $816,710 | $816,710 |
| 2018 | $528,218 | $250,000 | $0 | $778,218 | $778,218 |
| 2017 | $531,152 | $180,000 | $0 | $711,152 | $711,152 |
| 2016 | $533,179 | $175,000 | $0 | $708,179 | $708,179 |
| 2015 | $514,324 | $150,000 | $0 | $664,324 | $664,324 |
| 2014 | $520,105 | $150,000 | $0 | $670,105 | $670,105 |
| 2013 | $525,883 | $150,000 | $0 | $675,883 | $675,883 |
| 2012 | $531,661 | $160,000 | $0 | $691,661 | $691,661 |
| 2011 | $537,441 | $200,000 | $0 | $737,441 | $737,441 |
| 2010 | $497,193 | $200,000 | $0 | $697,193 | $697,193 |
| 2009 | $518,631 | $250,000 | $0 | $768,631 | $768,631 |
| 2008 | $544,319 | $200,000 | $0 | $744,319 | $744,319 |
| 2007 | $488,104 | $262,825 | $0 | $750,929 | $750,929 |
Deed and Sales History
| 1 | 11/14/2023 | QCD | Quit Claim Deed | ANDERSON, JOHN MELVILLE | ANDERSON TTEE, JOHN MELVILLE | | | $0.00 | 58672 | 4567273 |
| 2 | 05/09/2017 | QCD | Quit Claim Deed | ANDERSON, JOHN MELVILLE | ANDERSON, JOHN MELVILLE | | | $0.00 | 29195 | 4422108 |
| 3 | 09/09/2015 | WD | Warranty Deed | REYNOLDS, JANE T | ANDERSON, JOHN MELVILLE | | | $735,000.00 | 21337 | 4385932 |
| 4 | 10/07/2005 | 5 | DNU - Marriage License/Name Change | ANKENMANN, JANE T | REYNOLDS, JANE T | | | $0.00 | 70660 | 0 |
| 5 | 04/21/2005 | WD | Warranty Deed | MACNEAL, MELISSA | ANKENMANN, JANE T | | | $660,000.00 | 51762 | 4132393 |
| 6 | 10/02/1998 | QCD | Quit Claim Deed | MAC, NEAL, M | MACNEAL, MELISSA | | | $0.00 | 83971 | 98021384 |
| 7 | 04/01/1997 | WD | Warranty Deed | GIBBONS, DRILLING I | MAC, NEAL, M | | | $100,000.00 | 70990 | 97004531 |
| 8 | 04/01/1997 | ESTSEPPROP | Establish Separate Property | MAC, NEAL, M | MAC, NEAL, M | | | $0.00 | 70991 | 97004532 |
| 9 | 01/01/1900 | OTHER | Other - Misc. Documents | Unknown | GIBBONS, DRILLING I | | | $0.00 | 92734 | 89009269 |
Payout Agreement
| No payout information available.. |