Property
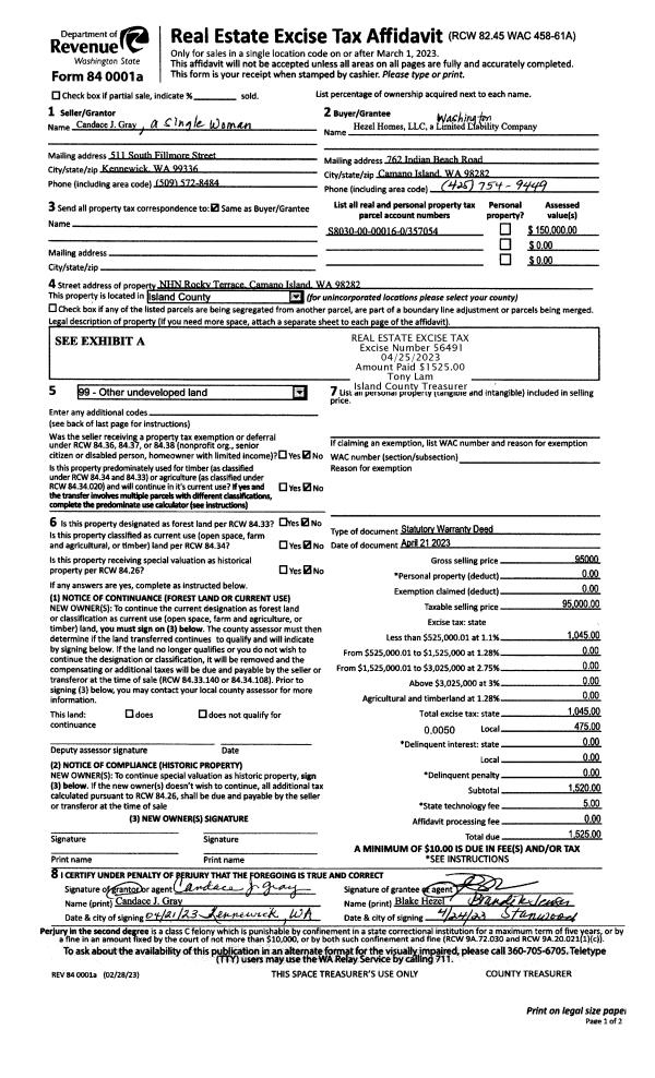
Account |
| Property ID: | 679475 | Abbreviated Legal Description: | FINISTERRE HTS - PRD LOT 72 |
| Geographic ID: | S6627-00-00072-0 | Agent Code: | |
| Type: | Real | | |
| Tax Area: | 510 - APPRAISER-Stan/Cam Schl Dist, improved & 1 acre or less | Land Use Code | 11 |
| Open Space: | N | DFL | N |
| Historic Property: | N | Remodel Property: | N |
| Multi-Family Redevelopment: | N | | |
| Township: | | Section: | |
| Range: | |
Location |
| Address: | 1033 KERRIA LN CAMANO ISLAND, WA 98282 | Mapsco: | |
| Neighborhood: | North Camano | Map ID: | 560 |
| Neighborhood CD: | 06-C |
Owner |
| Name: | WRIGHT TRUSTEE, MICHAEL LEROY | Owner ID: | 256259 |
| Mailing Address: | LYNDA SUZANN WRIGHT TRUSTEE 1033 KERRIA LN CAMANO ISLAND, WA 98282 | % Ownership: | 100.0000000000% |
| | | Exemptions: | |
Taxes and Assessment Details
Values
| (+) Improvement Homesite Value: | + | $0 | |
| (+) Improvement Non-Homesite Value: | + | $386,727 | |
| (+) Land Homesite Value: | + | $0 | |
| (+) Land Non-Homesite Value: | + | $240,000 | |
| (+) Curr Use (HS): | + | $0 | $0 |
| (+) Curr Use (NHS): | + | $0 | $0 |
| | | -------------------------- | |
| (=) Market Value: | = | $626,727 | |
| (–) Productivity Loss: | – | $0 | |
| | | -------------------------- | |
| (=) Subtotal: | = | $626,727 | |
| (+) Senior Appraised Value: | + | $0 | |
| (+) Non-Senior Appraised Value: | + | $626,727 | |
| | | -------------------------- | |
| (=) Total Appraised Value: | = | $626,727 | |
| (–) Senior Exemption Loss: | – | $0 | |
| (–) Exemption Loss: | – | $0 | |
| | | -------------------------- | |
| (=) Taxable Value: | = | $626,727 | |
Taxing Jurisdiction
| Owner: | WRIGHT TRUSTEE, MICHAEL LEROY | | |
| % Ownership: | 100.0000000000% | | |
| Total Value: | $626,727 | | |
| Tax Area: | 510 - APPRAISER-Stan/Cam Schl Dist, improved & 1 acre or less |
| CF | Conservation Futures | 0.0316035091 | $626,727 | $626,727 | $19.81 | | |
| EMS1 | Fire & Rescue Dist #1 Camano GEN (EMS) | 0.3677864386 | $626,727 | $626,727 | $230.50 | | |
| FIRE1 | Fire & Rescue Dist #1 Camano GEN | 1.2502910536 | $626,727 | $626,727 | $783.59 | | |
| FIRE1BOND | Fire & Rescue Dist #1 Camano BOND | 0.1570001679 | $626,727 | $626,727 | $98.40 | | |
| CE | County Current Expense | 0.3708482477 | $626,727 | $626,727 | $232.42 | | |
| CR | County Roads | 0.4584763726 | $626,727 | $626,727 | $287.34 | | |
| LCIB | Library Sno-Isle BOND (Camano Island) | 0.0396325772 | $626,727 | $626,727 | $24.84 | | |
| LIB | Library Sno-Isle GEN | 0.3153421757 | $626,727 | $626,727 | $197.63 | | |
| SCH205_401 | School 205-401 Enrichment | 1.2698420524 | $626,727 | $626,727 | $795.84 | | |
| SCH205BOND | School 205-401 BOND | 0.9396497583 | $626,727 | $626,727 | $588.90 | | |
| ST | State School | 1.3035497053 | $626,727 | $626,727 | $816.97 | | |
| ST2 | State School Part 2 | 0.8169543533 | $626,727 | $626,727 | $512.01 | | |
| | Total Tax Rate: | 7.3209764117 | | | | | |
| | | | | Taxes w/Current Exemptions: | $4,588.25 | | |
| | | | | Taxes w/o Exemptions: | $4,588.25 | | |
Improvement / Building
| Improvement #1: | RESIDENTIAL | State Code: | Y | 2274.0 sqft | Value: | $386,727 |
| Bathrooms: | 2 | Bedrooms: | 3 | | Ceiling: | DRYWALL PAINTED | Exterior Wall/Cover: | PLY/HARDBOARD T-111 | | Floor Covering: | HARDWOOD/CARP 20-80 | Floor Structure: | WOOD W/SUBFLOOR | | Foundation: | CONCRETE | Heating: | FHA GAS | | Interior Finish: | DRYWALL PAINT | Plumbing Fixture Cnt: | 12 | | Roof Slope: | 5" IN 12" | Roof Structure/Cover: | CJ ASPHALT |
|
| | Type | Description | Class CD | Sub Class CD | Year Built | Area |
| | BAS | BASE/MAIN FLOOR | 3 | 0 | 1994 | 2274.0 |
| | OP2 | OPEN PORCH W/STEPS | 3 | 0 | 1994 | 64.0 |
| | OP4 | OPEN PORCH W/CEILING-ROOF | 3 | 0 | 1994 | 64.0 |
| | OP4 | OPEN PORCH W/CEILING-ROOF | 3 | 0 | 1994 | 80.0 |
| | AGR | ATTACHED GARAGE | 3 | 0 | 1994 | 836.0 |
| | OWP | OPEN WOOD PORCH W/STEPS | 3 | 0 | 1994 | 80.0 |
Sketch
Property Image
Land
| 1 | 15 | SQ (12001-21780) | 0.0000 | 0.00 | 0.00 | 0.00 | 1.00 | $240,000 | $0 |
Roll Value History
| 2026 | N/A | N/A | N/A | N/A | N/A |
| 2025 | $386,727 | $240,000 | $0 | $626,727 | $626,727 |
| 2024 | $391,485 | $250,000 | $0 | $641,485 | $641,485 |
| 2023 | $396,246 | $210,000 | $0 | $606,246 | $606,246 |
| 2022 | $348,789 | $210,000 | $0 | $558,789 | $558,789 |
| 2021 | $307,084 | $150,000 | $0 | $457,084 | $457,084 |
| 2020 | $299,553 | $130,000 | $0 | $429,553 | $429,553 |
| 2019 | $230,229 | $170,000 | $0 | $400,229 | $400,229 |
| 2018 | $230,920 | $150,000 | $0 | $380,920 | $380,920 |
| 2017 | $232,303 | $120,000 | $0 | $352,303 | $352,303 |
| 2016 | $234,428 | $115,000 | $0 | $349,428 | $349,428 |
| 2015 | $237,252 | $85,000 | $0 | $322,252 | $322,252 |
| 2014 | $240,077 | $85,000 | $0 | $325,077 | $325,077 |
| 2013 | $242,902 | $85,000 | $0 | $327,902 | $327,902 |
| 2012 | $245,726 | $76,000 | $0 | $321,726 | $321,726 |
| 2011 | $248,551 | $95,000 | $0 | $343,551 | $343,551 |
| 2010 | $310,447 | $95,000 | $0 | $405,447 | $405,447 |
| 2009 | $323,887 | $120,000 | $0 | $443,887 | $443,887 |
| 2008 | $328,320 | $130,000 | $0 | $458,320 | $458,320 |
| 2007 | $332,822 | $130,000 | $0 | $462,822 | $462,822 |
Deed and Sales History
| 1 | 11/22/2011 | QCD | Quit Claim Deed | WRIGHT, MICHAEL | WRIGHT TRUSTEE, MICHAEL LEROY | | | $0.00 | 6259 | 4305553 |
| 2 | 08/03/2010 | WD | Warranty Deed | STRICK, STANLEY R / JANET L G | WRIGHT, MICHAEL | | | $360,000.00 | 1919 | 4278210 |
| 3 | 11/01/1994 | WD | Warranty Deed | CLASSIC, DESIGN C | STRICK, STANLEY R | | | $207,000.00 | 44727 | 94024139 |
| 4 | 09/01/1993 | WD | Warranty Deed | GIBBONS, DRILLING I | CLASSIC, DESIGN C | | | $40,000.00 | 33712 | 93019289 |
| 5 | 01/01/1900 | OTHER | Other - Misc. Documents | Unknown | GIBBONS, DRILLING I | | | $0.00 | 92734 | 89009269 |
Payout Agreement
| No payout information available.. |