Property
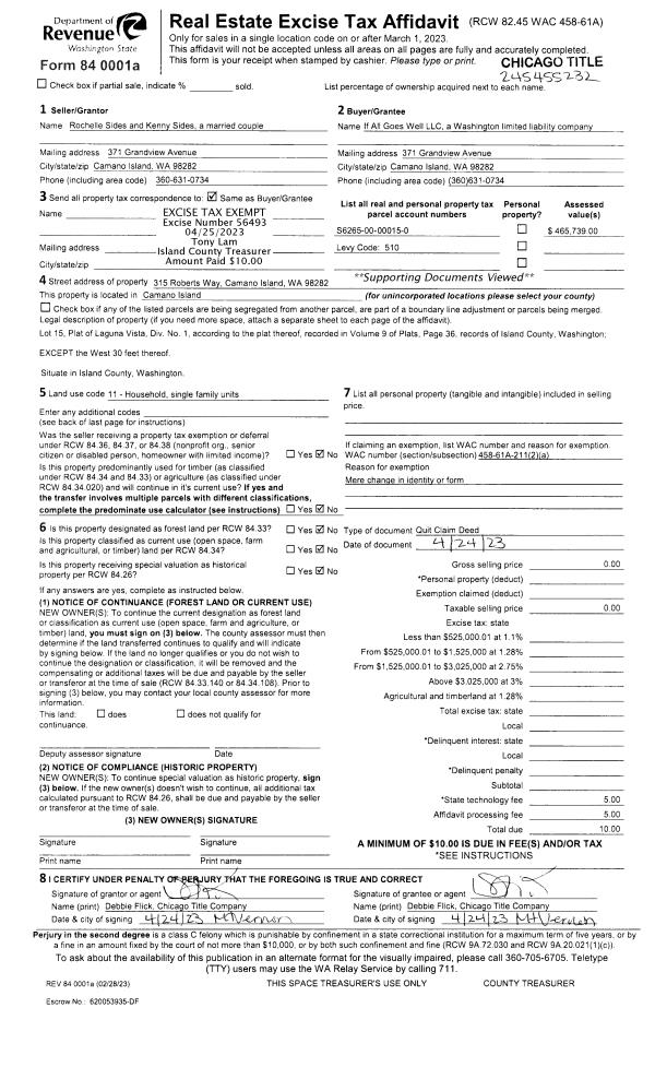
Account |
| Property ID: | 679493 | Abbreviated Legal Description: | FINISTERRE HTS - PRD LOT 74 |
| Geographic ID: | S6627-00-00074-0 | Agent Code: | |
| Type: | Real | | |
| Tax Area: | 510 - APPRAISER-Stan/Cam Schl Dist, improved & 1 acre or less | Land Use Code | 11 |
| Open Space: | N | DFL | N |
| Historic Property: | N | Remodel Property: | N |
| Multi-Family Redevelopment: | N | | |
| Township: | | Section: | |
| Range: | |
Location |
| Address: | 1025 KERRIA LN CAMANO ISLAND, WA 98282 | Mapsco: | |
| Neighborhood: | North Camano | Map ID: | 560 |
| Neighborhood CD: | 06-C |
Owner |
| Name: | LEE, JAMES P & MOLLY ANN | Owner ID: | 64767 |
| Mailing Address: | 1025 KERRIA LN CAMANO ISLAND, WA 98282-6627 | % Ownership: | 100.0000000000% |
| | | Exemptions: | |
Taxes and Assessment Details
Values
| (+) Improvement Homesite Value: | + | $0 | |
| (+) Improvement Non-Homesite Value: | + | $397,239 | |
| (+) Land Homesite Value: | + | $0 | |
| (+) Land Non-Homesite Value: | + | $240,000 | |
| (+) Curr Use (HS): | + | $0 | $0 |
| (+) Curr Use (NHS): | + | $0 | $0 |
| | | -------------------------- | |
| (=) Market Value: | = | $637,239 | |
| (–) Productivity Loss: | – | $0 | |
| | | -------------------------- | |
| (=) Subtotal: | = | $637,239 | |
| (+) Senior Appraised Value: | + | $0 | |
| (+) Non-Senior Appraised Value: | + | $637,239 | |
| | | -------------------------- | |
| (=) Total Appraised Value: | = | $637,239 | |
| (–) Senior Exemption Loss: | – | $0 | |
| (–) Exemption Loss: | – | $0 | |
| | | -------------------------- | |
| (=) Taxable Value: | = | $637,239 | |
Taxing Jurisdiction
| Owner: | LEE, JAMES P & MOLLY ANN | | |
| % Ownership: | 100.0000000000% | | |
| Total Value: | $637,239 | | |
| Tax Area: | 510 - APPRAISER-Stan/Cam Schl Dist, improved & 1 acre or less |
| CF | Conservation Futures | 0.0316035091 | $637,239 | $637,239 | $20.14 | | |
| EMS1 | Fire & Rescue Dist #1 Camano GEN (EMS) | 0.3677864386 | $637,239 | $637,239 | $234.37 | | |
| FIRE1 | Fire & Rescue Dist #1 Camano GEN | 1.2502910536 | $637,239 | $637,239 | $796.73 | | |
| FIRE1BOND | Fire & Rescue Dist #1 Camano BOND | 0.1570001679 | $637,239 | $637,239 | $100.05 | | |
| CE | County Current Expense | 0.3708482477 | $637,239 | $637,239 | $236.32 | | |
| CR | County Roads | 0.4584763726 | $637,239 | $637,239 | $292.16 | | |
| LCIB | Library Sno-Isle BOND (Camano Island) | 0.0396325772 | $637,239 | $637,239 | $25.26 | | |
| LIB | Library Sno-Isle GEN | 0.3153421757 | $637,239 | $637,239 | $200.95 | | |
| SCH205_401 | School 205-401 Enrichment | 1.2698420524 | $637,239 | $637,239 | $809.19 | | |
| SCH205BOND | School 205-401 BOND | 0.9396497583 | $637,239 | $637,239 | $598.78 | | |
| ST | State School | 1.3035497053 | $637,239 | $637,239 | $830.67 | | |
| ST2 | State School Part 2 | 0.8169543533 | $637,239 | $637,239 | $520.60 | | |
| | Total Tax Rate: | 7.3209764117 | | | | | |
| | | | | Taxes w/Current Exemptions: | $4,665.22 | | |
| | | | | Taxes w/o Exemptions: | $4,665.22 | | |
Improvement / Building
| Improvement #1: | RESIDENTIAL | State Code: | Y | 2357.0 sqft | Value: | $397,239 |
| Bathrooms: | 2.5 | Ceiling: | DRYWALL PAINTED | | Exterior Wall/Cover: | PLY/HARDBOARD T-111 | Floor Covering: | HARDWOOD/CARP 60-40 | | Floor Structure: | WOOD W/SUBFLOOR | Foundation: | CONCRETE | | Heating: | FHA GAS | Interior Finish: | DRYWALL PAINT | | Plumbing Fixture Cnt: | 13 | Roof Slope: | 6" IN 12" | | Roof Structure/Cover: | CJ WOOD SHAKES |   |   |
|
| | Type | Description | Class CD | Sub Class CD | Year Built | Area |
| | BAS | BASE/MAIN FLOOR | 3 | 0 | 1994 | 1368.0 |
| | OP4 | OPEN PORCH W/CEILING-ROOF | 3 | 0 | 1994 | 45.0 |
| | AGR | ATTACHED GARAGE | 3 | 0 | 1994 | 552.0 |
| | UPS | UPPER STORY | 3 | 0 | 1994 | 989.0 |
| | OWP | OPEN WOOD PORCH W/STEPS | 3 | 0 | 1994 | 544.0 |
Sketch
Property Image
Land
| 1 | 16 | AC (00.51-01.00) | 0.0000 | 0.00 | 0.00 | 0.00 | 1.00 | $240,000 | $0 |
Roll Value History
| 2026 | N/A | N/A | N/A | N/A | N/A |
| 2025 | $397,239 | $240,000 | $0 | $637,239 | $637,239 |
| 2024 | $402,010 | $250,000 | $0 | $652,010 | $652,010 |
| 2023 | $406,782 | $210,000 | $0 | $616,782 | $616,782 |
| 2022 | $355,398 | $210,000 | $0 | $565,398 | $565,398 |
| 2021 | $312,803 | $150,000 | $0 | $462,803 | $462,803 |
| 2020 | $305,045 | $130,000 | $0 | $435,045 | $435,045 |
| 2019 | $234,822 | $170,000 | $0 | $404,822 | $404,822 |
| 2018 | $235,511 | $150,000 | $0 | $385,511 | $385,511 |
| 2017 | $236,889 | $120,000 | $0 | $356,889 | $356,889 |
| 2016 | $236,418 | $115,000 | $0 | $351,418 | $351,418 |
| 2015 | $239,267 | $85,000 | $0 | $324,267 | $324,267 |
| 2014 | $242,116 | $85,000 | $0 | $327,116 | $327,116 |
| 2013 | $244,963 | $85,000 | $0 | $329,963 | $329,963 |
| 2012 | $247,812 | $80,000 | $0 | $327,812 | $327,812 |
| 2011 | $250,660 | $100,000 | $0 | $350,660 | $350,660 |
| 2010 | $316,254 | $100,430 | $0 | $416,684 | $416,684 |
| 2009 | $329,676 | $120,000 | $0 | $449,676 | $449,676 |
| 2008 | $333,763 | $130,000 | $0 | $463,763 | $463,763 |
| 2007 | $337,856 | $130,000 | $0 | $467,856 | $467,856 |
Deed and Sales History
| 1 | 02/01/1995 | WD | Warranty Deed | CLASSIC, DESIGN C | LEE, JAMES P | | | $200,000.00 | 50506 | 95002482 |
| 2 | 09/01/1993 | WD | Warranty Deed | GIBBONS, DRILLING I | CLASSIC, DESIGN C | | | $40,000.00 | 33714 | 93019295 |
| 3 | 01/01/1900 | OTHER | Other - Misc. Documents | Unknown | GIBBONS, DRILLING I | | | $0.00 | 92734 | 89009269 |
Payout Agreement
| No payout information available.. |