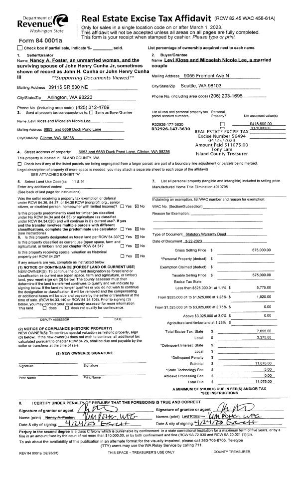
Property
Account |
| Property ID: | 679518 | Abbreviated Legal Description: | FINISTERRE HTS - PRD LOT 76 |
| Geographic ID: | S6627-00-00076-0 | Agent Code: | |
| Type: | Real | | |
| Tax Area: | 510 - APPRAISER-Stan/Cam Schl Dist, improved & 1 acre or less | Land Use Code | 11 |
| Open Space: | N | DFL | N |
| Historic Property: | N | Remodel Property: | N |
| Multi-Family Redevelopment: | N | | |
| Township: | | Section: | |
| Range: | |
Location |
| Address: | 1017 KERRIA LN CAMANO ISLAND, WA 98282 | Mapsco: | |
| Neighborhood: | North Camano | Map ID: | 560 |
| Neighborhood CD: | 06-C |
Owner |
| Name: | OLSEN, MARK | Owner ID: | 184772 |
| Mailing Address: | LARA OLSEN 1017 KERRIA LN CAMANO ISLAND, WA 98282-6627 | % Ownership: | 100.0000000000% |
| | | Exemptions: | |
Taxes and Assessment Details
Values
| (+) Improvement Homesite Value: | + | $0 | |
| (+) Improvement Non-Homesite Value: | + | $450,212 | |
| (+) Land Homesite Value: | + | $0 | |
| (+) Land Non-Homesite Value: | + | $240,000 | |
| (+) Curr Use (HS): | + | $0 | $0 |
| (+) Curr Use (NHS): | + | $0 | $0 |
| | | -------------------------- | |
| (=) Market Value: | = | $690,212 | |
| (–) Productivity Loss: | – | $0 | |
| | | -------------------------- | |
| (=) Subtotal: | = | $690,212 | |
| (+) Senior Appraised Value: | + | $0 | |
| (+) Non-Senior Appraised Value: | + | $690,212 | |
| | | -------------------------- | |
| (=) Total Appraised Value: | = | $690,212 | |
| (–) Senior Exemption Loss: | – | $0 | |
| (–) Exemption Loss: | – | $0 | |
| | | -------------------------- | |
| (=) Taxable Value: | = | $690,212 | |
Taxing Jurisdiction
| Owner: | OLSEN, MARK | | |
| % Ownership: | 100.0000000000% | | |
| Total Value: | $690,212 | | |
| Tax Area: | 510 - APPRAISER-Stan/Cam Schl Dist, improved & 1 acre or less |
| CF | Conservation Futures | 0.0316035091 | $690,212 | $690,212 | $21.81 | | |
| EMS1 | Fire & Rescue Dist #1 Camano GEN (EMS) | 0.3677864386 | $690,212 | $690,212 | $253.85 | | |
| FIRE1 | Fire & Rescue Dist #1 Camano GEN | 1.2502910536 | $690,212 | $690,212 | $862.97 | | |
| FIRE1BOND | Fire & Rescue Dist #1 Camano BOND | 0.1570001679 | $690,212 | $690,212 | $108.36 | | |
| CE | County Current Expense | 0.3708482477 | $690,212 | $690,212 | $255.96 | | |
| CR | County Roads | 0.4584763726 | $690,212 | $690,212 | $316.45 | | |
| LCIB | Library Sno-Isle BOND (Camano Island) | 0.0396325772 | $690,212 | $690,212 | $27.35 | | |
| LIB | Library Sno-Isle GEN | 0.3153421757 | $690,212 | $690,212 | $217.65 | | |
| SCH205_401 | School 205-401 Enrichment | 1.2698420524 | $690,212 | $690,212 | $876.46 | | |
| SCH205BOND | School 205-401 BOND | 0.9396497583 | $690,212 | $690,212 | $648.56 | | |
| ST | State School | 1.3035497053 | $690,212 | $690,212 | $899.73 | | |
| ST2 | State School Part 2 | 0.8169543533 | $690,212 | $690,212 | $563.87 | | |
| | Total Tax Rate: | 7.3209764117 | | | | | |
| | | | | Taxes w/Current Exemptions: | $5,053.02 | | |
| | | | | Taxes w/o Exemptions: | $5,053.02 | | |
Improvement / Building
| Improvement #1: | RESIDENTIAL | State Code: | Y | 2277.4 sqft | Value: | $450,212 |
| Bathrooms: | 3 | Bedrooms: | 4 | | Ceiling: | DRYWALL PAINTED | Exterior Wall/Cover: | CEMENT FIBER | | Floor Covering: | HARDWOOD/CARP 80-20 | Floor Structure: | WOOD W/SUBFLOOR | | Foundation: | CONCRETE | Heating: | FHA GAS | | Interior Finish: | DRYWALL PAINT | Plumbing Fixture Cnt: | 14 | | Roof Slope: | 12" IN 12" | Roof Structure/Cover: | CJ ASPHALT |
|
| | Type | Description | Class CD | Sub Class CD | Year Built | Area |
| | BAS | BASE/MAIN FLOOR | 4 | 0 | 2001 | 1331.5 |
| | BIG | BUILT IN GARAGE | 4 | 0 | 2001 | 491.9 |
| | OWP | OPEN WOOD PORCH W/STEPS | 4 | 0 | 2001 | 36.0 |
| | OWC | OPEN WOOD PORCH W/STEPS/ROOF/C | 4 | 0 | 2001 | 138.0 |
| | UPH | HALF STORY | 4 | 0 | 2001 | 945.9 |
Sketch
Property Image
Land
| 1 | 15 | SQ (12001-21780) | 0.0000 | 0.00 | 0.00 | 0.00 | 1.00 | $240,000 | $0 |
Roll Value History
| 2026 | N/A | N/A | N/A | N/A | N/A |
| 2025 | $450,212 | $240,000 | $0 | $690,212 | $690,212 |
| 2024 | $455,556 | $250,000 | $0 | $705,556 | $705,556 |
| 2023 | $460,899 | $210,000 | $0 | $670,899 | $670,899 |
| 2022 | $353,138 | $210,000 | $0 | $563,138 | $563,138 |
| 2021 | $310,802 | $150,000 | $0 | $460,802 | $460,802 |
| 2020 | $303,050 | $130,000 | $0 | $433,050 | $433,050 |
| 2019 | $233,059 | $170,000 | $0 | $403,059 | $403,059 |
| 2018 | $233,741 | $150,000 | $0 | $383,741 | $383,741 |
| 2017 | $235,041 | $120,000 | $0 | $355,041 | $355,041 |
| 2016 | $236,648 | $115,000 | $0 | $351,648 | $351,648 |
| 2015 | $239,433 | $85,000 | $0 | $324,433 | $324,433 |
| 2014 | $242,217 | $85,000 | $0 | $327,217 | $327,217 |
| 2013 | $245,002 | $85,000 | $0 | $330,002 | $330,002 |
| 2012 | $247,784 | $76,000 | $0 | $323,784 | $323,784 |
| 2011 | $250,569 | $95,000 | $0 | $345,569 | $345,569 |
| 2010 | $319,387 | $95,000 | $0 | $414,387 | $414,387 |
| 2009 | $329,310 | $120,000 | $0 | $449,310 | $449,310 |
| 2008 | $332,921 | $130,000 | $0 | $462,921 | $462,921 |
| 2007 | $340,004 | $130,000 | $0 | $470,004 | $470,004 |
Deed and Sales History
| 1 | 06/17/2003 | WD | Warranty Deed | KERR, ANDREW | OLSEN, MARK | | | $265,000.00 | 33027 | 4066765 |
| 2 | 01/25/2001 | WD | Warranty Deed | GIBBONS, DRILLING I | KERR, ANDREW | | | $44,900.00 | 10292 | 20024341 |
| 3 | 01/01/1900 | OTHER | Other - Misc. Documents | Unknown | GIBBONS, DRILLING I | | | $0.00 | 92734 | 89009269 |
Payout Agreement
| No payout information available.. |