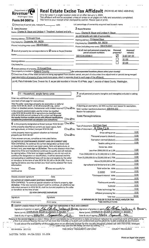
Property
Account |
| Property ID: | 679545 | Abbreviated Legal Description: | FINISTERRE HTS - PRD LOT 79 |
| Geographic ID: | S6627-00-00079-0 | Agent Code: | |
| Type: | Real | | |
| Tax Area: | 510 - APPRAISER-Stan/Cam Schl Dist, improved & 1 acre or less | Land Use Code | 11 |
| Open Space: | N | DFL | N |
| Historic Property: | N | Remodel Property: | N |
| Multi-Family Redevelopment: | N | | |
| Township: | | Section: | |
| Range: | |
Location |
| Address: | 1005 KERRIA LN CAMANO ISLAND, WA 98282 | Mapsco: | |
| Neighborhood: | North Camano | Map ID: | 560 |
| Neighborhood CD: | 06-C |
Owner |
| Name: | TURNER, DONALD W | Owner ID: | 180682 |
| Mailing Address: | JENNIFER L TURNER 1005 KERRIA LN CAMANO ISLAND, WA 98282 | % Ownership: | 100.0000000000% |
| | | Exemptions: | |
Taxes and Assessment Details
Values
| (+) Improvement Homesite Value: | + | $0 | |
| (+) Improvement Non-Homesite Value: | + | $541,971 | |
| (+) Land Homesite Value: | + | $0 | |
| (+) Land Non-Homesite Value: | + | $240,000 | |
| (+) Curr Use (HS): | + | $0 | $0 |
| (+) Curr Use (NHS): | + | $0 | $0 |
| | | -------------------------- | |
| (=) Market Value: | = | $781,971 | |
| (–) Productivity Loss: | – | $0 | |
| | | -------------------------- | |
| (=) Subtotal: | = | $781,971 | |
| (+) Senior Appraised Value: | + | $0 | |
| (+) Non-Senior Appraised Value: | + | $781,971 | |
| | | -------------------------- | |
| (=) Total Appraised Value: | = | $781,971 | |
| (–) Senior Exemption Loss: | – | $0 | |
| (–) Exemption Loss: | – | $0 | |
| | | -------------------------- | |
| (=) Taxable Value: | = | $781,971 | |
Taxing Jurisdiction
| Owner: | TURNER, DONALD W | | |
| % Ownership: | 100.0000000000% | | |
| Total Value: | $781,971 | | |
| Tax Area: | 510 - APPRAISER-Stan/Cam Schl Dist, improved & 1 acre or less |
| CF | Conservation Futures | 0.0316035091 | $781,971 | $781,971 | $24.71 | | |
| EMS1 | Fire & Rescue Dist #1 Camano GEN (EMS) | 0.3677864386 | $781,971 | $781,971 | $287.60 | | |
| FIRE1 | Fire & Rescue Dist #1 Camano GEN | 1.2502910536 | $781,971 | $781,971 | $977.69 | | |
| FIRE1BOND | Fire & Rescue Dist #1 Camano BOND | 0.1570001679 | $781,971 | $781,971 | $122.77 | | |
| CE | County Current Expense | 0.3708482477 | $781,971 | $781,971 | $289.99 | | |
| CR | County Roads | 0.4584763726 | $781,971 | $781,971 | $358.52 | | |
| LCIB | Library Sno-Isle BOND (Camano Island) | 0.0396325772 | $781,971 | $781,971 | $30.99 | | |
| LIB | Library Sno-Isle GEN | 0.3153421757 | $781,971 | $781,971 | $246.59 | | |
| SCH205_401 | School 205-401 Enrichment | 1.2698420524 | $781,971 | $781,971 | $992.98 | | |
| SCH205BOND | School 205-401 BOND | 0.9396497583 | $781,971 | $781,971 | $734.78 | | |
| ST | State School | 1.3035497053 | $781,971 | $781,971 | $1,019.34 | | |
| ST2 | State School Part 2 | 0.8169543533 | $781,971 | $781,971 | $638.83 | | |
| | Total Tax Rate: | 7.3209764117 | | | | | |
| | | | | Taxes w/Current Exemptions: | $5,724.79 | | |
| | | | | Taxes w/o Exemptions: | $5,724.79 | | |
Improvement / Building
| Improvement #1: | RESIDENTIAL | State Code: | Y | 2704.9 sqft | Value: | $541,971 |
| Bathrooms: | 3 | Bedrooms: | 3 | | Ceiling: | DRYWALL PAINTED | Cooling: | HEAT PUMP/CONV/V | | Exterior Wall/Cover: | WOOD SIDING | Floor Covering: | HARDWOOD/CARP 80-20 | | Floor Structure: | WOOD W/SUBFLOOR | Foundation: | CONCRETE | | Interior Finish: | DRYWALL PAINT | Plumbing Fixture Cnt: | 15 | | Roof Slope: | 12" IN 12" | Roof Structure/Cover: | CJ ASPHALT |
|
| | Type | Description | Class CD | Sub Class CD | Year Built | Area |
| | BAS | BASE/MAIN FLOOR | 4 | 0 | 2000 | 2284.8 |
| | OP4 | OPEN PORCH W/CEILING-ROOF | 4 | 0 | 2000 | 56.0 |
| | AGR | ATTACHED GARAGE | 4 | 0 | 2000 | 221.0 |
| | BIG | BUILT IN GARAGE | 4 | 0 | 2000 | 692.2 |
| | UPS | UPPER STORY | 4 | 0 | 2000 | 420.1 |
Sketch
Property Image
Land
| 1 | 16 | AC (00.51-01.00) | 0.0000 | 0.00 | 0.00 | 0.00 | 1.00 | $240,000 | $0 |
Roll Value History
| 2026 | N/A | N/A | N/A | N/A | N/A |
| 2025 | $541,971 | $240,000 | $0 | $781,971 | $781,971 |
| 2024 | $548,482 | $250,000 | $0 | $798,482 | $798,482 |
| 2023 | $554,992 | $210,000 | $0 | $764,992 | $764,992 |
| 2022 | $496,660 | $210,000 | $0 | $706,660 | $706,660 |
| 2021 | $437,005 | $150,000 | $0 | $587,005 | $587,005 |
| 2020 | $426,043 | $130,000 | $0 | $556,043 | $556,043 |
| 2019 | $322,304 | $170,000 | $0 | $492,304 | $492,304 |
| 2018 | $323,228 | $150,000 | $0 | $473,228 | $473,228 |
| 2017 | $325,070 | $120,000 | $0 | $445,070 | $445,070 |
| 2016 | $325,305 | $115,000 | $0 | $440,305 | $440,305 |
| 2015 | $329,044 | $85,000 | $0 | $414,044 | $414,044 |
| 2014 | $332,783 | $85,000 | $0 | $417,783 | $417,783 |
| 2013 | $336,523 | $85,000 | $0 | $421,523 | $421,523 |
| 2012 | $340,262 | $80,344 | $0 | $420,606 | $420,606 |
| 2011 | $344,002 | $100,430 | $0 | $444,432 | $444,432 |
| 2010 | $410,114 | $100,430 | $0 | $510,544 | $510,544 |
| 2009 | $427,570 | $120,000 | $0 | $547,570 | $547,570 |
| 2008 | $447,037 | $130,000 | $0 | $577,037 | $577,037 |
| 2007 | $447,414 | $130,000 | $0 | $577,414 | $577,414 |
Deed and Sales History
| 1 | 07/20/1999 | WD | Warranty Deed | GIBBONS DRILLING INC, | TURNER, DONALD W | | | $41,500.00 | 92932 | 99017307 |
| 2 | 01/01/1900 | OTHER | Other - Misc. Documents | Unknown | GIBBONS, DRILLING I | | | $0.00 | 92734 | 89009269 |
| 3 | 01/01/1900 | OTHER | Other - Misc. Documents | GIBBONS, DRILLING I | GIBBONS DRILLING INC, | | | $0.00 | 0 | 0 |
Payout Agreement
| No payout information available.. |