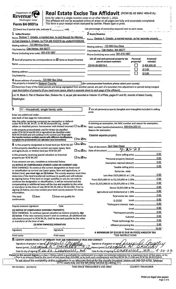
Property
Account |
| Property ID: | 679554 | Abbreviated Legal Description: | FINISTERRE HTS - PRD LOT 80 |
| Geographic ID: | S6627-00-00080-0 | Agent Code: | |
| Type: | Real | | |
| Tax Area: | 510 - APPRAISER-Stan/Cam Schl Dist, improved & 1 acre or less | Land Use Code | 11 |
| Open Space: | N | DFL | N |
| Historic Property: | N | Remodel Property: | N |
| Multi-Family Redevelopment: | N | | |
| Township: | | Section: | |
| Range: | |
Location |
| Address: | 1002 KERRIA LN CAMANO ISLAND, WA 98282 | Mapsco: | |
| Neighborhood: | North Camano | Map ID: | 560 |
| Neighborhood CD: | 06-C |
Owner |
| Name: | MARTIN, STEVEN ROSS | Owner ID: | 257756 |
| Mailing Address: | ELLIANNA MARTIN 1002 KERRIA LN CAMANO ISLAND, WA 98282 | % Ownership: | 100.0000000000% |
| | | Exemptions: | |
Taxes and Assessment Details
Values
| (+) Improvement Homesite Value: | + | $0 | |
| (+) Improvement Non-Homesite Value: | + | $397,233 | |
| (+) Land Homesite Value: | + | $0 | |
| (+) Land Non-Homesite Value: | + | $240,000 | |
| (+) Curr Use (HS): | + | $0 | $0 |
| (+) Curr Use (NHS): | + | $0 | $0 |
| | | -------------------------- | |
| (=) Market Value: | = | $637,233 | |
| (–) Productivity Loss: | – | $0 | |
| | | -------------------------- | |
| (=) Subtotal: | = | $637,233 | |
| (+) Senior Appraised Value: | + | $0 | |
| (+) Non-Senior Appraised Value: | + | $637,233 | |
| | | -------------------------- | |
| (=) Total Appraised Value: | = | $637,233 | |
| (–) Senior Exemption Loss: | – | $0 | |
| (–) Exemption Loss: | – | $0 | |
| | | -------------------------- | |
| (=) Taxable Value: | = | $637,233 | |
Taxing Jurisdiction
| Owner: | MARTIN, STEVEN ROSS | | |
| % Ownership: | 100.0000000000% | | |
| Total Value: | $637,233 | | |
| Tax Area: | 510 - APPRAISER-Stan/Cam Schl Dist, improved & 1 acre or less |
| CF | Conservation Futures | 0.0316035091 | $637,233 | $637,233 | $20.14 | | |
| EMS1 | Fire & Rescue Dist #1 Camano GEN (EMS) | 0.3677864386 | $637,233 | $637,233 | $234.37 | | |
| FIRE1 | Fire & Rescue Dist #1 Camano GEN | 1.2502910536 | $637,233 | $637,233 | $796.73 | | |
| FIRE1BOND | Fire & Rescue Dist #1 Camano BOND | 0.1570001679 | $637,233 | $637,233 | $100.05 | | |
| CE | County Current Expense | 0.3708482477 | $637,233 | $637,233 | $236.32 | | |
| CR | County Roads | 0.4584763726 | $637,233 | $637,233 | $292.16 | | |
| LCIB | Library Sno-Isle BOND (Camano Island) | 0.0396325772 | $637,233 | $637,233 | $25.26 | | |
| LIB | Library Sno-Isle GEN | 0.3153421757 | $637,233 | $637,233 | $200.95 | | |
| SCH205_401 | School 205-401 Enrichment | 1.2698420524 | $637,233 | $637,233 | $809.19 | | |
| SCH205BOND | School 205-401 BOND | 0.9396497583 | $637,233 | $637,233 | $598.78 | | |
| ST | State School | 1.3035497053 | $637,233 | $637,233 | $830.66 | | |
| ST2 | State School Part 2 | 0.8169543533 | $637,233 | $637,233 | $520.59 | | |
| | Total Tax Rate: | 7.3209764117 | | | | | |
| | | | | Taxes w/Current Exemptions: | $4,665.20 | | |
| | | | | Taxes w/o Exemptions: | $4,665.20 | | |
Improvement / Building
| Improvement #1: | RESIDENTIAL | State Code: | Y | 2443.5 sqft | Value: | $397,233 |
| Bathrooms: | 2.5 | Bedrooms: | 3 | | Ceiling: | DRYWALL PAINTED | Exterior Wall/Cover: | CEMENT FIBER | | Floor Covering: | HARDWOOD/CARP 20-80 | Floor Structure: | WOOD W/SUBFLOOR | | Foundation: | CONCRETE | Heating: | FHA GAS | | Interior Finish: | DRYWALL PAINT | Plumbing Fixture Cnt: | 14 | | Roof Slope: | 6" IN 12" | Roof Structure/Cover: | CJ ASPHALT |
|
| | Type | Description | Class CD | Sub Class CD | Year Built | Area |
| | BAS | BASE/MAIN FLOOR | 3 | 0 | 1999 | 1276.9 |
| | AGR | ATTACHED GARAGE | 3 | 0 | 1999 | 229.2 |
| | BIG | BUILT IN GARAGE | 3 | 0 | 1999 | 410.4 |
| | UPS | UPPER STORY | 3 | 0 | 1999 | 1166.6 |
| | OWP | OPEN WOOD PORCH W/STEPS | 3 | 0 | 1999 | 31.5 |
| | OWP | OPEN WOOD PORCH W/STEPS | 3 | 0 | 1999 | 31.5 |
| | OWC | OPEN WOOD PORCH W/STEPS/ROOF/C | 3 | 0 | 1999 | 83.0 |
Sketch
Property Image
Land
| 1 | 15 | SQ (12001-21780) | 0.0000 | 0.00 | 0.00 | 0.00 | 1.00 | $240,000 | $0 |
Roll Value History
| 2026 | N/A | N/A | N/A | N/A | N/A |
| 2025 | $397,233 | $240,000 | $0 | $637,233 | $637,233 |
| 2024 | $402,061 | $250,000 | $0 | $652,061 | $652,061 |
| 2023 | $406,892 | $210,000 | $0 | $616,892 | $616,892 |
| 2022 | $350,946 | $210,000 | $0 | $560,946 | $560,946 |
| 2021 | $308,978 | $150,000 | $0 | $458,978 | $458,978 |
| 2020 | $301,249 | $130,000 | $0 | $431,249 | $431,249 |
| 2019 | $231,754 | $170,000 | $0 | $401,754 | $401,754 |
| 2018 | $232,450 | $150,000 | $0 | $382,450 | $382,450 |
| 2017 | $233,768 | $120,000 | $0 | $353,768 | $353,768 |
| 2016 | $223,988 | $115,000 | $0 | $338,988 | $338,988 |
| 2015 | $226,721 | $85,000 | $0 | $311,721 | $311,721 |
| 2014 | $229,451 | $85,000 | $0 | $314,451 | $314,451 |
| 2013 | $232,183 | $85,000 | $0 | $317,183 | $317,183 |
| 2012 | $234,915 | $76,000 | $0 | $310,915 | $310,915 |
| 2011 | $237,646 | $95,000 | $0 | $332,646 | $332,646 |
| 2010 | $218,610 | $95,000 | $0 | $313,610 | $313,610 |
| 2009 | $227,874 | $120,000 | $0 | $347,874 | $347,874 |
| 2008 | $230,499 | $130,000 | $0 | $360,499 | $360,499 |
| 2007 | $233,104 | $130,000 | $0 | $363,104 | $363,104 |
Deed and Sales History
| 1 | 05/29/2012 | WD | Warranty Deed | MUNNER, MELO JEAN | MARTIN, STEVEN ROSS | | | $306,000.00 | 7809 | 4316275 |
| 2 | 08/23/2006 | ESTSEPPROP | Establish Separate Property | MUNNER, MELO JEAN | MUNNER, MELO JEAN | | | $0.00 | 63780 | 4180589 |
| 3 | 08/23/2006 | WD | Warranty Deed | BOWDEN, IVER | MUNNER, MELO JEAN | | | $250,000.00 | 63779 | 4180588 |
| 4 | 06/18/2002 | OTHER | Other - Misc. Documents | BAILEY, LESTER R | BOWDEN, IVER | | | $250,000.00 | 22587 | 4024795 |
| 5 | 11/09/1998 | WD | Warranty Deed | GIBBONS, DRILLING I | BAILEY, LESTER R | | | $44,900.00 | 84552 | 98024742 |
| 6 | 01/01/1900 | OTHER | Other - Misc. Documents | Unknown | GIBBONS, DRILLING I | | | $0.00 | 92734 | 89009269 |
Payout Agreement
| No payout information available.. |