Property
Account |
| Property ID: | 679581 | Abbreviated Legal Description: | FINISTERRE HTS - PRD LOT 83 |
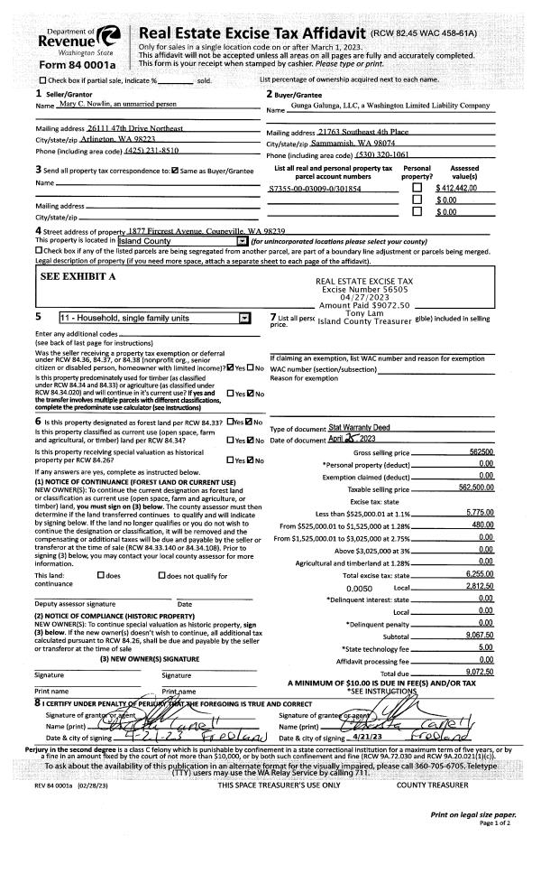
| Geographic ID: | S6627-00-00083-0 | Agent Code: | |
| Type: | Real | | |
| Tax Area: | 510 - APPRAISER-Stan/Cam Schl Dist, improved & 1 acre or less | Land Use Code | 11 |
| Open Space: | N | DFL | N |
| Historic Property: | N | Remodel Property: | N |
| Multi-Family Redevelopment: | N | | |
| Township: | | Section: | |
| Range: | |
Location |
| Address: | 1040 KERRIA LN CAMANO ISLAND, WA 98282 | Mapsco: | |
| Neighborhood: | North Camano | Map ID: | 560 |
| Neighborhood CD: | 06-C |
Owner |
| Name: | JOHNSON, ERIC | Owner ID: | 291249 |
| Mailing Address: | DALE JOHNSON 1040 KERRIA LN CAMANO ISLAND, WA 98282 | % Ownership: | 100.0000000000% |
| | | Exemptions: | |
Taxes and Assessment Details
Values
| (+) Improvement Homesite Value: | + | $0 | |
| (+) Improvement Non-Homesite Value: | + | $435,156 | |
| (+) Land Homesite Value: | + | $0 | |
| (+) Land Non-Homesite Value: | + | $240,000 | |
| (+) Curr Use (HS): | + | $0 | $0 |
| (+) Curr Use (NHS): | + | $0 | $0 |
| | | -------------------------- | |
| (=) Market Value: | = | $675,156 | |
| (–) Productivity Loss: | – | $0 | |
| | | -------------------------- | |
| (=) Subtotal: | = | $675,156 | |
| (+) Senior Appraised Value: | + | $0 | |
| (+) Non-Senior Appraised Value: | + | $675,156 | |
| | | -------------------------- | |
| (=) Total Appraised Value: | = | $675,156 | |
| (–) Senior Exemption Loss: | – | $0 | |
| (–) Exemption Loss: | – | $0 | |
| | | -------------------------- | |
| (=) Taxable Value: | = | $675,156 | |
Taxing Jurisdiction
| Owner: | JOHNSON, ERIC | | |
| % Ownership: | 100.0000000000% | | |
| Total Value: | $675,156 | | |
| Tax Area: | 510 - APPRAISER-Stan/Cam Schl Dist, improved & 1 acre or less |
| CF | Conservation Futures | 0.0316035091 | $675,156 | $675,156 | $21.34 | | |
| EMS1 | Fire & Rescue Dist #1 Camano GEN (EMS) | 0.3677864386 | $675,156 | $675,156 | $248.31 | | |
| FIRE1 | Fire & Rescue Dist #1 Camano GEN | 1.2502910536 | $675,156 | $675,156 | $844.14 | | |
| FIRE1BOND | Fire & Rescue Dist #1 Camano BOND | 0.1570001679 | $675,156 | $675,156 | $106.00 | | |
| CE | County Current Expense | 0.3708482477 | $675,156 | $675,156 | $250.38 | | |
| CR | County Roads | 0.4584763726 | $675,156 | $675,156 | $309.54 | | |
| LCIB | Library Sno-Isle BOND (Camano Island) | 0.0396325772 | $675,156 | $675,156 | $26.76 | | |
| LIB | Library Sno-Isle GEN | 0.3153421757 | $675,156 | $675,156 | $212.91 | | |
| SCH205_401 | School 205-401 Enrichment | 1.2698420524 | $675,156 | $675,156 | $857.34 | | |
| SCH205BOND | School 205-401 BOND | 0.9396497583 | $675,156 | $675,156 | $634.41 | | |
| ST | State School | 1.3035497053 | $675,156 | $675,156 | $880.10 | | |
| ST2 | State School Part 2 | 0.8169543533 | $675,156 | $675,156 | $551.57 | | |
| | Total Tax Rate: | 7.3209764117 | | | | | |
| | | | | Taxes w/Current Exemptions: | $4,942.80 | | |
| | | | | Taxes w/o Exemptions: | $4,942.80 | | |
Improvement / Building
| Improvement #1: | RESIDENTIAL | State Code: | Y | 2175.0 sqft | Value: | $435,156 |
| Bathrooms: | 2.5 | Bedrooms: | 3 | | Ceiling: | DRYWALL PAINTED | Exterior Wall/Cover: | CEMENT FIBER | | Floor Covering: | HARDWOOD/CARP 20-80 | Floor Structure: | WOOD W/SUBFLOOR | | Foundation: | CONCRETE | Heating: | FHA GAS | | Interior Finish: | DRYWALL PAINT | Plumbing Fixture Cnt: | 14 | | Roof Slope: | 6" IN 12" | Roof Structure/Cover: | CJ WOOD SHAKES |
|
| | Type | Description | Class CD | Sub Class CD | Year Built | Area |
| | BAS | BASE/MAIN FLOOR | 4 | 0 | 1996 | 2175.0 |
| | OP4 | OPEN PORCH W/CEILING-ROOF | 4 | 0 | 1996 | 144.0 |
| | AGR | ATTACHED GARAGE | 4 | 0 | 1996 | 572.0 |
| | UTY | STORAGE/UTILITY | 4 | 0 | 1996 | 154.0 |
| | OWP | OPEN WOOD PORCH W/STEPS | 4 | 0 | 1996 | 216.0 |
Sketch
Property Image
Land
| 1 | 16 | AC (00.51-01.00) | 0.0000 | 0.00 | 0.00 | 0.00 | 1.00 | $240,000 | $0 |
Roll Value History
| 2026 | N/A | N/A | N/A | N/A | N/A |
| 2025 | $435,156 | $240,000 | $0 | $675,156 | $675,156 |
| 2024 | $440,447 | $250,000 | $0 | $690,447 | $690,447 |
| 2023 | $445,737 | $210,000 | $0 | $655,737 | $655,737 |
| 2022 | $398,827 | $210,000 | $0 | $608,827 | $608,827 |
| 2021 | $350,981 | $150,000 | $0 | $500,981 | $500,981 |
| 2020 | $341,605 | $130,000 | $0 | $471,605 | $471,605 |
| 2019 | $218,678 | $170,000 | $0 | $388,678 | $388,678 |
| 2018 | $219,334 | $150,000 | $0 | $369,334 | $369,334 |
| 2017 | $220,277 | $120,000 | $0 | $340,277 | $340,277 |
| 2016 | $220,068 | $115,000 | $0 | $335,068 | $335,068 |
| 2015 | $222,717 | $85,000 | $0 | $307,717 | $307,717 |
| 2014 | $225,369 | $85,000 | $0 | $310,369 | $310,369 |
| 2013 | $224,708 | $85,000 | $0 | $309,708 | $309,708 |
| 2012 | $227,320 | $80,344 | $0 | $307,664 | $307,664 |
| 2011 | $229,932 | $100,430 | $0 | $330,362 | $330,362 |
| 2010 | $288,651 | $100,430 | $0 | $389,081 | $389,081 |
| 2009 | $301,060 | $120,000 | $0 | $421,060 | $421,060 |
| 2008 | $304,643 | $130,000 | $0 | $434,643 | $434,643 |
| 2007 | $308,222 | $130,000 | $0 | $438,222 | $438,222 |
Deed and Sales History
| 1 | 07/26/2019 | WD | Warranty Deed | MILLER TRUSTEE, MICHAEL W | JOHNSON, ERIC | | | $526,000.00 | 39750 | 4468839 |
| 2 | 07/08/2014 | TRUSTEED | Trustee's Deed | MILLER, MICHAEL W | MILLER TRUSTEE, MICHAEL W | | | $0.00 | 18512 | 4373442 |
| 3 | 02/27/2013 | WD | Warranty Deed | KOOI, DAVID J / ELIZABETH AN | MILLER, MICHAEL W | | | $309,000.00 | 10601 | 4335011 |
| 4 | 01/01/1998 | WD | Warranty Deed | CLASSIC, DESIGN C | KOOI, DAVID J | | | $214,000.00 | 80028 | 98000121 |
| 5 | 03/01/1996 | WD | Warranty Deed | GIBBONS, DRILLING I | CLASSIC, DESIGN C | | | $39,900.00 | 61127 | 96005772 |
| 6 | 01/01/1900 | OTHER | Other - Misc. Documents | Unknown | GIBBONS, DRILLING I | | | $0.00 | 92734 | 89009269 |
Payout Agreement
| No payout information available.. |