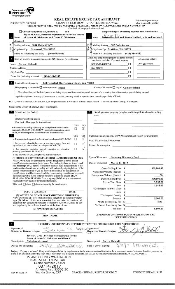
| 1 | 10/03/2019 | QCD | Quit Claim Deed | JAMESDUERKSEN, SANDRA | JAMESDUERKESEN TTEE, SANDRA | | | $0.00 | 40569 | 4472754 |
| 2 | 03/13/2018 | WD | Warranty Deed | SECRETARY OF VETERAN AFFAIRS | JAMESDUERKSEN, SANDRA | | | $265,000.00 | 33323 | 4440984 |
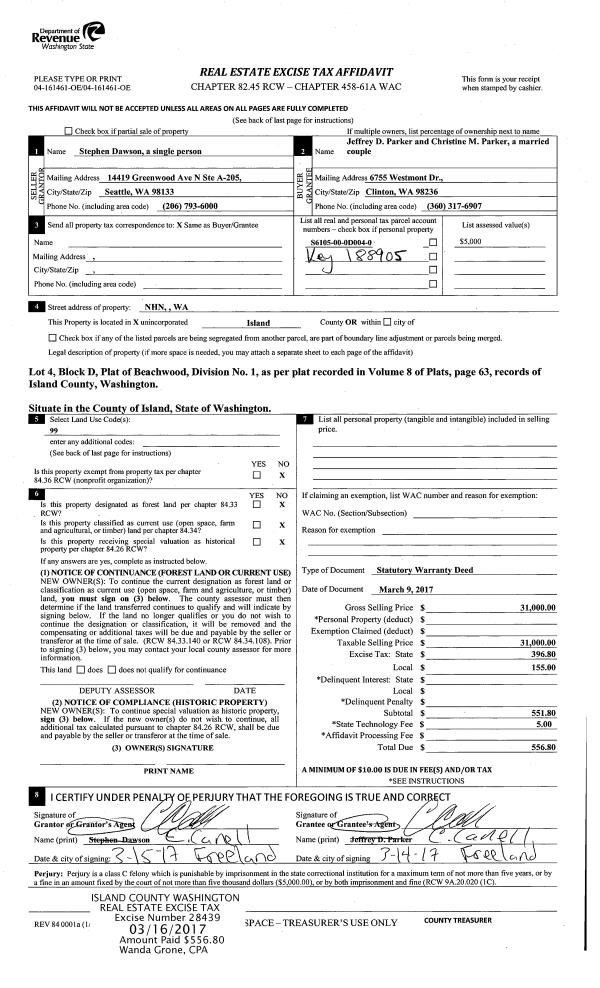
| 3 | 03/08/2017 | WD | Warranty Deed | ALASKA USA FEDERAL CREDIT UNION | SECRETARY OF VETERAN AFFAIRS | | | $0.00 | 28403 | 4418705 |
| 4 | 03/07/2017 | TRUSTEED | Trustee's Deed | ST ONGE, NICHOLAS R | ALASKA USA FEDERAL CREDIT UNION | | | $258,857.00 | 28335 | 4418444 |
| 5 | 01/16/2009 | ESTSEPPROP | Establish Separate Property | ST ONGE, NICHOLAS R | ST ONGE, NICHOLAS R | | | $0.00 | 90152 | 4243237 |
| 6 | 01/20/2009 | TRUSTEED | Trustee's Deed | US BANK NA, TTEE, | ST ONGE, NICHOLAS R | | | $260,000.00 | 90151 | 4243236 |
| 7 | 01/20/2009 | QCD | Quit Claim Deed | FED NAT MORT ASSOC, | US BANK NA, TTEE, | | | $0.00 | 90150 | 4243235 |
| 8 | 06/29/2008 | TRUSTEED | Trustee's Deed | PERALTA, CAROL L | FED NAT MORT ASSOC, | | | $232,500.00 | 81738 | 4232129 |
| 9 | 03/12/2007 | BLA | DNU - Boundary Line Adjustment | PERALTA, CAROL L | PERALTA, CAROL L | | | $0.00 | 80135 | 4141001 |
| 10 | 03/01/1993 | OTHER | Other - Misc. Documents | PERALTA, CAROL L | PERALTA, CAROL L | | | $0.00 | 65258 | 0 |
| 11 | 08/01/1990 | DECREE | Divorce Decree/Legal Separation | Unknown | PERALTA, CAROL L | | | $0.00 | 63792 | 0 |